賃貸マンション
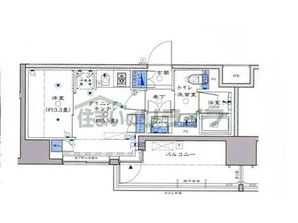
リビオレゾン勝どきNEXの賃貸物件情報(1DK/4階)
| 家賃 | 管理費等 | 敷金 | 礼金 | 間取り | 専有面積 |
|---|---|---|---|---|---|
| 12万円 | 1.5万円 | 12万円 | 12万円 | 1DK | 25.27m2 |
入居決定でお祝い金最大100,000円
- 保証金
- -
- 償却・敷引
- -
- 築年数
- 築5年
- 所在階
- 4階
- 向き
- 北東
Point
まずはお問い合わせ!
不動産会社は街のプロ、あなたに合った物件がきっと見つかります。
提供:ハウスホーム(株)TK(SUUMO経由)

詳細情報 リビオレゾン勝どきNEX
物件紹介
リビオレゾン勝どきNEXは都営大江戸線勝どき駅から徒歩10分にあり、駅近で通勤通学に便利なマンションです。
このお部屋は2階以上に位置しているので、通行人や周囲の住人からの視線が気になりにくく、防犯面でも安心。建物のエントランスはオートロックがついており、インターホンにはTVモニタもついているため、相手の顔を確認してから来客対応することができます。
フローリングのお部屋なのでお掃除もラクラク。キッチンはシステムキッチン仕様になっていますので、お料理好きの方にもぴったり。バス・トイレは別なので、のんびりお風呂タイムも楽しめるでしょう。また、雨の日でも浴室乾燥機を使えば、お洗濯も問題ありません。
通信設備面では、インターネットが無料で使えるので、月々の出費を抑えられるのも魅力です(別途工事等が必要な場合あり)。
建物にはエレベーターがついているので、重い荷物があっても安心。共用部には宅配ボックスが設定されているので、不在の時にも荷物を受け取ることができます。
このお部屋は2階以上に位置しているので、通行人や周囲の住人からの視線が気になりにくく、防犯面でも安心。建物のエントランスはオートロックがついており、インターホンにはTVモニタもついているため、相手の顔を確認してから来客対応することができます。
フローリングのお部屋なのでお掃除もラクラク。キッチンはシステムキッチン仕様になっていますので、お料理好きの方にもぴったり。バス・トイレは別なので、のんびりお風呂タイムも楽しめるでしょう。また、雨の日でも浴室乾燥機を使えば、お洗濯も問題ありません。
通信設備面では、インターネットが無料で使えるので、月々の出費を抑えられるのも魅力です(別途工事等が必要な場合あり)。
建物にはエレベーターがついているので、重い荷物があっても安心。共用部には宅配ボックスが設定されているので、不在の時にも荷物を受け取ることができます。
お金・契約の情報
※「-」と表示されているものは、実際は料金が発生するものもございます。詳細はお問い合わせください。
| 家賃 | 12万円 | 管理費・共益費 | 1.5万円 |
|---|---|---|---|
| 敷金 | 12万円 | 礼金 | 12万円 |
| 入居決定でお祝い金最大100,000円 | |||
| 保証金 | - | 償却・敷引 | - |
| 住宅保険料 | - | 更新料 | - |
| 保証会社利用 | 必須 | 保証会社名 | - |
| 保証会社費用 | - | 保証会社備考 | 保証会社利用必 初回保証料:100%、年間更新15,000円 初回保証料:100%、年間更新15,000円 |
| 契約形態 | - | 契約期間 | - |
| 入居・引渡期間 | - | 現況 | - |
| 契約備考 | 合計7.7万円(内訳:契約事務手数料1.1万円防虫・抗菌施工2.2万円鍵交換代4.4万円) 更新料 新賃料1.00ヶ月分 24時間緊急サービス(2年毎) 月額19800円 Mamorocca(2年毎) 月額13200円 口座振替手数料 月額660円 1DK 普通借家2年 損保【2万円2年】 バストイレ別、バルコニー、エアコン、ガスコンロ対応、フローリング、TVインターホン、浴室乾燥機、オートロック、室内洗濯置、シューズボックス、システムキッチン、追焚機能浴室、温水洗浄便座、エレベーター、洗面所独立、2口コンロ、宅配ボックス、防犯カメラ、分譲賃貸、24時間緊急通報システム、全居室フローリング、ネット使用料不要、24時間換気システム、駅徒歩10分以内、24時間ゴミ出し可、敷地内ごみ置き場、セキュリティ会社加入済、都市ガス、保証会社利用可 入居日:'26年3月上旬 | ||
部屋の情報
| 間取り | 1DK | 専有面積 | 25.27m2 |
|---|---|---|---|
| 所在階 / 向き | 4階 / 北東 | バルコニー面積 | - |
| 水道 / ガス | - | ||
| 設備 | バス・トイレ別、2階以上、オートロック、テレビドアホン、宅配ボックス、浴室乾燥機、追い焚き、インターネット対応、システムキッチン、エアコン、エレベーター、温水洗浄便座、バルコニー、フローリング、洗髪洗面化粧台、2口コンロ、コンロ:ガス、インターネット使用料無料、洗濯機:室内 | ||
| 当社物件ID | 101409791 | ||
建物の情報
| 建物名 | リビオレゾン勝どきNEX | ||
|---|---|---|---|
| 所在地 | 東京都中央区勝どき | ||
| 交通 | 都営大江戸線 勝どき駅 徒歩10分 都営大江戸線 築地市場駅 徒歩19分 東京メトロ有楽町線 月島駅 徒歩21分 | ||
| 階数 | 13階建 | 総戸数 | - |
| 築年月 | 2021年03月 / 築5年 | エレベーター | あり |
| 駐車場 | なし | バイク置き場 | - |
| 駐輪場 | - | 管理人/管理会社 | - |
| 周辺環境 | その他 モスバーガー(飲食店)まで1378m その他 マクドナルド(飲食店)まで1710m その他 浜離宮恩賜庭園(公園)まで1831m その他 旧芝離宮恩賜庭園(公園)まで2633m その他 ライフ勝どきミッド店(スーパー)まで813m その他 ダイエー(スーパー)まで1438m | ||
| 建物種別 | マンション | 建物構造 | RC(鉄筋コンクリート) |
この部屋の取扱い不動産会社
| 会社名 | ハウスホーム(株)TK(SUUMO経由) | ||
|---|---|---|---|
| 所在地 | 東京都中央区日本橋室町1-9-4 井上第3ビル6階 | 交通 | - |
| 営業時間 | 9時~18時 | 定休日 | 年中無休 |
| 免許番号 | 東京都知事107891 | 取引態様 | 仲介 |
| 不動産会社管理番号 | 100490574881 | 当社管理番号 | 89 |
| 所属団体 | (公社)東京都宅地建物取引業協会会員 | ||
| 公正取引協議会 | (公社)首都圏不動産公正取引協議会加盟 | ||
| 取扱い物件情報 | 物件詳細へ | ||
※各種情報と現状に差異がある場合は、現状優先となります。問い合わせをすることで、より詳しい条件、情報を確認する事ができます。
提供:ハウスホーム(株)TK(SUUMO経由)
この物件が気になったら掲載期限まであと10日
リビオレゾン勝どきNEXに条件(家賃・エリア)が近い物件一覧
| 写真 | 家賃 管理費等 | 敷金 礼金 | 間取り 専有面積 | 築年数 | 最寄り駅 所在地 | キープ | 詳細 |
|---|---|---|---|---|---|---|---|
マンション サンクレスト茅場町(ワンルーム/5階) | |||||||
![]() | 7.5万円 1万円 | 7.5万円 7.5万円 | ワンルーム 25.71m2 | 築41年 | 東京地下鉄東西線 茅場町駅 徒歩6分 東京地下鉄日比谷線 茅場町駅 徒歩6分 京葉線 八丁堀駅(東京) 徒歩7分 東京都中央区新川1丁目 | 詳細を見る | |
マンション シーズンフラッツ蔵前清澄通(ワンルーム/7階) | |||||||
![]() | 13万円 1万円 | なし なし | ワンルーム 26.07m2 | 築3年 | 東京都大江戸線 蔵前駅 徒歩5分 東京都浅草線 浅草駅(東武・都営・メトロ) 徒歩8分 東京都大江戸線 両国駅 徒歩10分 東京都墨田区本所1丁目 | 詳細を見る | |
マンション ARCOBALENO OSHIAGE BLOSSOM(1LDK/1階) | |||||||
![]() | 17.1万円 2万円 | なし なし | 1LDK 40.76m2 | 築1年 | 京成電鉄押上線 押上駅 徒歩12分 東京都墨田区文花1丁目 | 詳細を見る | |
マンション パークアクシス錦糸町ウエスト(ワンルーム/2階) | |||||||
![]() | 12.4万円 2万円 | 12.4万円 なし | ワンルーム 26.19m2 | 築7年 | 東京都新宿線 菊川駅(東京) 徒歩9分 総武・中央緩行線 錦糸町駅 徒歩11分 東京都大江戸線 両国駅 徒歩15分 東京都墨田区緑4丁目 | 詳細を見る | |
マンション スカイコート日本橋(1K/8階) | |||||||
![]() | 8.9万円 5,000円 | 8.9万円 8.9万円 | 1K 19.34m2 | 築26年 | 東京地下鉄半蔵門線 水天宮前駅 徒歩3分 東京地下鉄日比谷線 人形町駅 徒歩9分 東京都浅草線 人形町駅 徒歩9分 東京都中央区日本橋箱崎町 | 詳細を見る | |
マンション セントラル銀座(1K/9階) | |||||||
![]() | 13.9万円 1.2万円 | なし 13.9万円 | 1K 23.38m2 | 築22年 | 東京メトロ有楽町線 新富町駅(東京) 徒歩2分 都営浅草線 東銀座駅 徒歩6分 東京メトロ日比谷線 東銀座駅 徒歩6分 東京都中央区銀座 | 詳細を見る | |
マンション プランドール蔵前(1K/1階) | |||||||
![]() | 8.8万円 4,000円 | 8.8万円 なし | 1K 20.82m2 | 築11年 | 東京都浅草線 蔵前駅 徒歩6分 東京都大江戸線 新御徒町駅 徒歩7分 東京都台東区三筋1丁目 | 詳細を見る | |
マンション クレストコート蔵前(1K/5階) | |||||||
![]() | 10.2万円 1万円 | 10.2万円 10.2万円 | 1K 25.85m2 | 築10年 | 東京都大江戸線 蔵前駅 徒歩6分 東京都大江戸線 両国駅 徒歩7分 東京都浅草線 蔵前駅 徒歩9分 東京都墨田区本所1丁目 | 詳細を見る | |









