賃貸マンション
KAWARAMACHI PLACEの賃貸物件情報(ワンルーム/4階)
| 家賃 | 管理費等 | 敷金 | 礼金 | 間取り | 専有面積 |
|---|---|---|---|---|---|
| 10.6万円 | 9,000円 | 21.2万円 | 10.6万円 | ワンルーム | 33.97m2 |
入居決定でお祝い金最大100,000円
- 保証金
- -
- 償却・敷引
- -
- 築年数
- 築25年
- 所在階
- 4階
- 向き
- 南東
Point
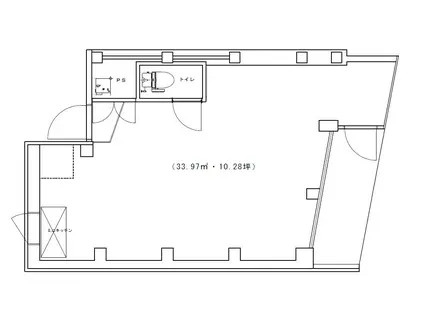
モルタル床と白の塗装壁、ハイサッシから差し込む自然光が気持ちいい、事務所仕様のお部屋です。
提供:(株)長谷本社(SUUMO経由)

詳細情報 KAWARAMACHI PLACE
物件紹介
KAWARAMACHI PLACEは京阪本線清水五条駅から徒歩5分にあり、駅近で通勤通学に便利なマンションです。
このお部屋は2階以上に位置しているので通行人や周囲の住人からの視線が気になりにくく、建物のエントランスはオートロックがついているので防犯性が高くなっています。
おしゃれなデザイナーズ物件!人気の南向き・フローリングのお部屋。角部屋でもあるため、周囲の居住者の生活音も気になりにくい場所です。
通信設備面では、インターネット接続が可能です。また、BSアンテナもありますので、おうち時間も充実するでしょう(別途工事、契約料が必要な場合あり)。
建物にはエレベーターがついているので、重い荷物があっても安心。
このお部屋は2階以上に位置しているので通行人や周囲の住人からの視線が気になりにくく、建物のエントランスはオートロックがついているので防犯性が高くなっています。
おしゃれなデザイナーズ物件!人気の南向き・フローリングのお部屋。角部屋でもあるため、周囲の居住者の生活音も気になりにくい場所です。
通信設備面では、インターネット接続が可能です。また、BSアンテナもありますので、おうち時間も充実するでしょう(別途工事、契約料が必要な場合あり)。
建物にはエレベーターがついているので、重い荷物があっても安心。
お金・契約の情報
※「-」と表示されているものは、実際は料金が発生するものもございます。詳細はお問い合わせください。
| 家賃 | 10.6万円 | 管理費・共益費 | 9,000円 |
|---|---|---|---|
| 敷金 | 21.2万円 | 礼金 | 10.6万円 |
| 入居決定でお祝い金最大100,000円 | |||
| 保証金 | - | 償却・敷引 | - |
| 住宅保険料 | - | 更新料 | - |
| 保証会社利用 | 必須 | 保証会社名 | リクルートフォレントインシュア |
| 保証会社費用 | - | 保証会社備考 | オリコフォレントインシュア利用必 初回保証委託料:賃料共益費等の1ヶ月分、継続保証料:10,000円/年 |
| 契約形態 | - | 契約期間 | - |
| 入居・引渡期間 | 即時 | 現況 | - |
| 入居可能条件 | 事務所可 | ||
| 契約備考 | 巡回管理/リフォーム:2017年6月床材変更(モルタル)、バスルーム撤去 合計0.2万円(内訳:水道料定額) 退去時クリーニング費用44000円 ワンルーム 単身者可 損保【要】 バルコニー、エアコン、オートロック、陽当り良好、角住戸、温水洗浄便座、エレベーター、2口コンロ、駐輪場、IHクッキングヒーター、保証人不要、東南角住戸、仲介手数料不要、デザイナーズ、駅まで平坦、敷金2ヶ月、1フロア2住戸、事務所相談、ハイサッシ、3沿線以上利用可、駅徒歩10分以内、東南向き、当社管理物件、リノベーション、年度内入居可、礼金1ヶ月、ブラインド付 | ||
部屋の情報
| 間取り | ワンルーム | 専有面積 | 33.97m2 |
|---|---|---|---|
| 所在階 / 向き | 4階 / 南東 | バルコニー面積 | - |
| 水道 / ガス | - | ||
| 設備 | 2階以上、オートロック、エアコン、エレベーター、温水洗浄便座、南向き、角部屋、バルコニー、2口コンロ、コンロ:IH、デザイナーズ | ||
| 当社物件ID | 20050368 | ||
建物の情報
| 建物名 | KAWARAMACHI PLACE | ||
|---|---|---|---|
| 所在地 | 京都府京都市下京区本塩竈町 | ||
| 交通 | 京阪本線 清水五条駅 徒歩5分 地下鉄烏丸線 五条駅(京都市営) 徒歩10分 阪急京都線 京都河原町駅 徒歩16分 | ||
| 階数 | 10階建 | 総戸数 | 26戸 |
| 築年月 | 2002年03月 / 築25年 | エレベーター | あり |
| 駐車場 | なし | バイク置き場 | - |
| 駐輪場 | あり | 管理人/管理会社 | - |
| 周辺環境 | その他 セブンイレブン京都河原町五条店(コンビニ)まで227m その他 ダックス下京五条高倉店(ドラッグストア)まで492m その他 フレスコ五条大橋店(スーパー)まで224m その他 フレスコ五条店(スーパー)まで515m その他 ローソンストア100京阪五条駅前店(コンビニ)まで447m その他 京都銀行河原町支店(銀行)まで227m | ||
| 建物種別 | マンション | 建物構造 | RC(鉄筋コンクリート) |
この部屋の取扱い不動産会社
| 会社名 | (株)長谷本社(SUUMO経由) | ||
|---|---|---|---|
| 所在地 | 京都府京都市下京区烏丸通四条下る水銀屋町 637 | 交通 | - |
| 営業時間 | 9:00~17:30 | 定休日 | 土日祝 |
| 免許番号 | 京都府知事5407 | 取引態様 | 貸主 |
| 不動産会社管理番号 | 100199782194 | 当社管理番号 | 89 |
| 所属団体 | (公社)京都府宅地建物取引業協会会員 | ||
| 公正取引協議会 | (公社)近畿地区不動産公正取引協議会加盟 | ||
| 取扱い物件情報 | 物件詳細へ | ||
※各種情報と現状に差異がある場合は、現状優先となります。問い合わせをすることで、より詳しい条件、情報を確認する事ができます。
提供:(株)長谷本社(SUUMO経由)
この物件が気になったら掲載期限まであと11日
KAWARAMACHI PLACEに条件(家賃・エリア)が近い物件一覧
| 写真 | 家賃 管理費等 | 敷金 礼金 | 間取り 専有面積 | 築年数 | 最寄り駅 所在地 | キープ | 詳細 |
|---|---|---|---|---|---|---|---|
マンション 奈良線 宇治駅(JR) 徒歩8分 築31年(3LDK/4階) | |||||||
![]() | 8.3万円 なし | 8.3万円 16.6万円 | 3LDK 63.78m2 | 築31年 | 奈良線 宇治駅(JR) 徒歩8分 京阪電気鉄道宇治線 宇治駅(京阪) 徒歩14分 京都府宇治市宇治矢落 | 詳細を見る | |
マンション 山陰本線 丹波口駅 徒歩10分 築17年(1DK/1階) | |||||||
![]() | 8.4万円 8,000円 | なし なし | 1DK 31.05m2 | 築17年 | 山陰本線 丹波口駅 徒歩10分 東海道本線 京都駅 徒歩18分 京都府京都市下京区夷馬場町 | 詳細を見る | |
アパート 阪急電鉄京都線 西山天王山駅 徒歩10分 築1年(1LDK/1階) | |||||||
![]() | 8.1万円 5,000円 | なし なし | 1LDK 35.96m2 | 築1年 | 阪急電鉄京都線 西山天王山駅 徒歩10分 東海道本線 長岡京駅 徒歩22分 京都府長岡京市調子1丁目 | 詳細を見る | |
アパート 阪急電鉄京都線 東向日駅 徒歩10分 築23年(1K/2階) | |||||||
![]() | 7.8万円 5,000円 | なし 7.8万円 | 1K 19.87m2 | 築23年 | 阪急電鉄京都線 東向日駅 徒歩10分 東海道本線 向日町駅 徒歩17分 京都府向日市寺戸町北前田 | 詳細を見る | |
マンション 京阪電気鉄道京阪線 清水五条駅 徒歩13分 築4年(ワンルーム/2階) | |||||||
![]() | 6.8万円 5,000円 | なし 6.8万円 | ワンルーム 24.93m2 | 築4年 | 京阪電気鉄道京阪線 清水五条駅 徒歩13分 京阪電気鉄道京阪線 七条駅 徒歩16分 京都府京都市東山区下馬町 | 詳細を見る | |
マンション 東海道本線 西大路駅 徒歩7分 築8年(1K/4階) | |||||||
![]() | 7.6万円 1.1万円 | なし 7.6万円 | 1K 26.1m2 | 築8年 | 東海道本線 西大路駅 徒歩7分 山陰本線 丹波口駅 徒歩26分 京都府京都市下京区梅小路高畑町 | 詳細を見る | |
マンション 京都市烏丸線 四条駅(京都市営) 徒歩7分 築6年(1SLDK/1階) | |||||||
![]() | 15.7万円 5,000円 | なし なし | 1SLDK 57.7m2 | 築6年 | 京都市烏丸線 四条駅(京都市営) 徒歩7分 阪急電鉄京都線 烏丸駅 徒歩10分 京都府京都市下京区夕顔町 | 詳細を見る | |








