賃貸マンション
ビレッジハウスひの2号棟の賃貸物件情報(3DK/4階)
| 家賃 | 管理費等 | 敷金 | 礼金 | 間取り | 専有面積 |
|---|---|---|---|---|---|
| 4.94万円 | なし | なし | なし | 3DK | 53.08m2 |
入居決定でお祝い金最大100,000円
- 保証金
- -
- 償却・敷引
- -
- 築年数
- 築41年
- 所在階
- 4階
- 向き
- 南西
Point
まずはお問い合わせ!
不動産会社は街のプロ、あなたに合った物件がきっと見つかります。
提供:ビレッジハウス住まい相談センター

詳細情報 ビレッジハウスひの2号棟
物件紹介
ビレッジハウスひの2号棟は近江鉄道本線朝日野駅から徒歩36分にあるマンションです。
このお部屋は2階以上に位置しているので、通行人や周囲の住人からの視線が気になりにくく、防犯面でも安心です。
バス・トイレ別の仕様で、のんびりお風呂タイムも楽しめます。
ペット飼育の相談ができますので、あなたの大切な家族の一員も快適に暮らせるか、ぜひ確認してみてください。
このお部屋は2階以上に位置しているので、通行人や周囲の住人からの視線が気になりにくく、防犯面でも安心です。
バス・トイレ別の仕様で、のんびりお風呂タイムも楽しめます。
ペット飼育の相談ができますので、あなたの大切な家族の一員も快適に暮らせるか、ぜひ確認してみてください。
お金・契約の情報
※「-」と表示されているものは、実際は料金が発生するものもございます。詳細はお問い合わせください。
| 家賃 | 4.94万円 | 管理費・共益費 | なし |
|---|---|---|---|
| 敷金 | なし | 礼金 | なし |
| フリーレント | 0ヶ月 | ||
| 入居決定でお祝い金最大100,000円 | |||
| 保証金 | - | 償却・敷引 | - |
| 住宅保険料 | 1万円(2年) | 更新料 | - |
| 保証会社利用 | - | 保証会社名 | - |
| 保証会社費用 | - | 保証会社備考 | - |
| 契約形態 | - | 契約期間 | - |
| 入居・引渡期間 | - | 現況 | 空室 |
| 入居可能条件 | 2人入居可、高齢者相談、学生可、ペット相談 | ||
| 契約備考 | 契約種類:普通契約、24時間緊急対応、ウォシュレット、ウォームレット、洗面台 | ||
部屋の情報
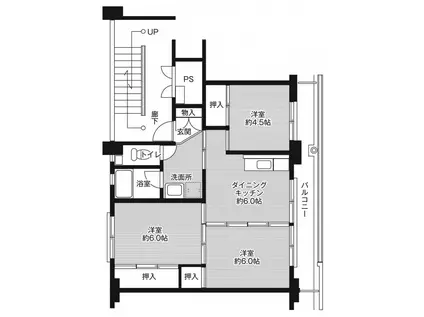
| 間取り | 3DK | 専有面積 | 53.08m2 |
|---|---|---|---|
| 所在階 / 向き | 4階 / 南西 | バルコニー面積 | - |
| 水道 / ガス | - | ||
| 設備 | バス・トイレ別、追い焚き、エアコン、バルコニー、給湯、洗濯機:室内 | ||
| 当社物件ID | 39223351 | ||
建物の情報
| 建物名 | ビレッジハウスひの2号棟 | ||
|---|---|---|---|
| 所在地 | 滋賀県蒲生郡日野町 | ||
| 交通 | 近江鉄道本線 朝日野駅 徒歩36分 近江鉄道本線 日野駅(滋賀) 徒歩60分 近江鉄道本線 朝日大塚駅 徒歩92分 | ||
| 階数 | 5階建 | 総戸数 | - |
| 築年月 | 1985年03月 / 築41年 | エレベーター | - |
| 駐車場 | 空有 3,300円/月 円 | バイク置き場 | - |
| 駐輪場 | - | 管理人/管理会社 | 日勤 |
| 建物種別 | マンション | 建物構造 | RC(鉄筋コンクリート) |
この部屋の取扱い不動産会社
| 会社名 | ビレッジハウス住まい相談センター | ||
|---|---|---|---|
| 所在地 | 愛知県名古屋市中区大須4-10-32 上前津KDビル5階 | 交通 | 名城線「上前津駅」徒歩3分 |
| 営業時間 | 平日:9:00-18:30/土日祝:9:00-18:00 | 定休日 | 年中無休(年末年始を除く) |
| 免許番号 | 東京都知事(2)第100758号 | 取引態様 | 貸主 |
| 不動産会社管理番号 | 00013689655 | 当社管理番号 | 459 |
| 所属団体 | 公益社団法人東京都宅地建物取引業協会会員 日本賃貸住宅管理協会会員 | ||
| 取扱い物件情報 | 物件詳細へ | ||
※各種情報と現状に差異がある場合は、現状優先となります。問い合わせをすることで、より詳しい条件、情報を確認する事ができます。
提供:ビレッジハウス住まい相談センター
この物件が気になったら掲載期限まであと12日
ビレッジハウスひの2号棟に条件(家賃・エリア)が近い物件一覧
| 写真 | 家賃 管理費等 | 敷金 礼金 | 間取り 専有面積 | 築年数 | 最寄り駅 所在地 | キープ | 詳細 |
|---|---|---|---|---|---|---|---|
アパート メゾン・ド・ジュネス(2LDK/2階) | |||||||
![]() | 6.3万円 5,200円 | なし 6.3万円 | 2LDK 56.12m2 | 築3年 | 近江鉄道本線 朝日野駅 徒歩71分 近江鉄道本線 水口松尾駅 徒歩97分 滋賀県蒲生郡日野町 | 詳細を見る | |
アパート センターコート(1K/4階) | |||||||
![]() | 3.9万円 3,000円 | なし なし | 1K 22.68m2 | 築34年 | JR草津線 貴生川駅 徒歩11分 近江鉄道本線 貴生川駅 徒歩11分 信楽高原鐵道 貴生川駅 徒歩11分 滋賀県甲賀市水口町三本柳 | 詳細を見る | |
一戸建て 草津線 寺庄駅 徒歩5分 築41年(5LDK) | |||||||
![]() | 6.8万円 なし | なし なし | 5LDK 103.2m2 | 築41年 | 草津線 寺庄駅 徒歩5分 草津線 甲南駅 徒歩30分 草津線 甲賀駅 徒歩42分 滋賀県甲賀市甲南町寺庄 | 詳細を見る | |
アパート ピア・BELL(1K/2階) | |||||||
![]() | 4.1万円 5,000円 | 4.1万円 なし | 1K 29.75m2 | 築21年 | 滋賀県甲賀市土山町北土山 | 詳細を見る | |
アパート ハートフル信楽(2DK/2階) | |||||||
![]() | 4.9万円 3,000円 | なし 4.9万円 | 2DK 39m2 | 築36年 | 信楽高原鐵道 勅旨駅 徒歩8分 信楽高原鐵道 玉桂寺前駅 徒歩19分 信楽高原鐵道 雲井駅 徒歩47分 滋賀県甲賀市信楽町勅旨 | 詳細を見る | |
マンション ヴィラ梅ノ井(3DK/3階) | |||||||
![]() | 6.8万円 4,500円 | なし 6.8万円 | 3DK 56.07m2 | 築26年 | 近江鉄道本線 水口城南駅 徒歩7分 近江鉄道本線 水口石橋駅 徒歩14分 近江鉄道本線 水口駅 徒歩23分 滋賀県甲賀市水口町的場 | 詳細を見る | |
アパート レジーナ(1K/1階) | |||||||
![]() | 4.4万円 5,500円 | なし なし | 1K 26m2 | 築2年 | 近江鉄道本線 日野駅(滋賀) 徒歩37分 近江鉄道本線 朝日野駅 徒歩67分 近江鉄道本線 水口松尾駅 徒歩99分 滋賀県蒲生郡日野町 | 詳細を見る | |
アパート GREENAWAY(1LDK/1階) | |||||||
![]() | 6.35万円 4,400円 | なし 6.35万円 | 1LDK 46.88m2 | 新築 | 近江鉄道八日市線 八日市駅 徒歩28分 近江鉄道八日市線 新八日市駅 徒歩29分 近江鉄道八日市線 太郎坊宮前駅 徒歩38分 滋賀県東近江市東沖野2丁目 | 詳細を見る | |









