賃貸アパート
シャーメゾン本多町スタイルの賃貸物件情報(2LDK/1階)
| 家賃 | 管理費等 | 敷金 | 礼金 | 間取り | 専有面積 |
|---|---|---|---|---|---|
| 7.9万円 | 3,000円 | なし | 15.8万円 | 2LDK | 57.03m2 |
入居決定でお祝い金最大100,000円
- 保証金
- -
- 償却・敷引
- -
- 築年数
- 築14年
- 所在階
- 1階
- 向き
- 南
Point
来客時にはTVインターホンで訪問者の顔を確認することがきるので防犯対策につながります。共用部には敷地内ごみ置き場・バイク置場などが揃っております。ぜひご覧いただきたい賃貸物件です。
提供:ミニミニFC金剛店日本ビルディング(株)(SUUMO経由)

詳細情報 シャーメゾン本多町スタイル
物件紹介
シャーメゾン本多町スタイルは南海高野線河内長野駅から徒歩10分にあり、駅近で通勤通学に便利なアパートです。
このお部屋のインターホンにはTVモニタがついているため、相手の顔を確認してから来客対応することができます。
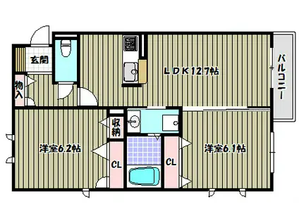
人気の南向き・フローリングのお部屋。角部屋でもあるため、周囲の居住者の生活音も気になりにくい場所です。キッチンはシステムキッチン仕様になっていますので、お料理好きの方にもぴったり。バス・トイレは別なので、のんびりお風呂タイムも楽しめるでしょう。また、雨の日でも浴室乾燥機を使えば、お洗濯も問題ありません。
通信設備面では、インターネット接続が可能です。また、BSアンテナがありCATVにも対応しているので、おうち時間も充実するでしょう(別途工事、契約料が必要な場合あり)。
このお部屋のインターホンにはTVモニタがついているため、相手の顔を確認してから来客対応することができます。
人気の南向き・フローリングのお部屋。角部屋でもあるため、周囲の居住者の生活音も気になりにくい場所です。キッチンはシステムキッチン仕様になっていますので、お料理好きの方にもぴったり。バス・トイレは別なので、のんびりお風呂タイムも楽しめるでしょう。また、雨の日でも浴室乾燥機を使えば、お洗濯も問題ありません。
通信設備面では、インターネット接続が可能です。また、BSアンテナがありCATVにも対応しているので、おうち時間も充実するでしょう(別途工事、契約料が必要な場合あり)。
お金・契約の情報
※「-」と表示されているものは、実際は料金が発生するものもございます。詳細はお問い合わせください。
| 家賃 | 7.9万円 | 管理費・共益費 | 3,000円 |
|---|---|---|---|
| 敷金 | なし | 礼金 | 15.8万円 |
| 入居決定でお祝い金最大100,000円 | |||
| 保証金 | - | 償却・敷引 | - |
| 住宅保険料 | - | 更新料 | - |
| 契約形態 | - | 契約期間 | - |
| 入居・引渡期間 | - | 現況 | - |
| 契約備考 | 昭和61年創業。信頼と実績の不動産パートナー不動産会社として地域に根ざしてきた実績と信頼で、多くのお客様にご満足いただいております。物件紹介からご契約、アフターサポートまで、地域密着型ならではの丁寧な対応をお約束いたします。不動産の事なら『喜志不動産』にお任せください。 合計2.97万円(内訳:鍵交換代2.97万円) 保険 月額1200円 2LDK 事務所利用不可 普通借家2年 損保【要】 バストイレ別、バルコニー、ガスコンロ対応、クロゼット、フローリング、シャワー付洗面台、TVインターホン、浴室乾燥機、室内洗濯置、陽当り良好、シューズボックス、システムキッチン、南向き、追焚機能浴室、角住戸、温水洗浄便座、脱衣所、洗面所独立、駐輪場、光ファイバー、外壁タイル張り、2面採光、敷金不要、3口以上コンロ、対面式キッチン、照明付、オートバス、グリル付、全居室洋室、振分、保証人不要、単身者相談、二人入居相談、バイク置場、全居室フローリング、2沿線利用可、テラス、眺望良好、床下収納、クロゼット2ヶ所、クロゼット3ヶ所、始発駅、2駅利用可、3駅以上利用可、駅徒歩10分以内、敷地内ごみ置き場、平面駐車場、LDK12畳以上、全居室6畳以上、都市ガス、洗面所にドア、南面バルコニー、シャッター、保証会社利用可、初期費用カード決済可、通風良好 入居日:'26年2月中旬 | ||
部屋の情報
| 間取り | 2LDK | 専有面積 | 57.03m2 |
|---|---|---|---|
| 所在階 / 向き | 1階 / 南 | バルコニー面積 | - |
| 水道 / ガス | - | ||
| 設備 | バス・トイレ別、テレビドアホン、浴室乾燥機、追い焚き、インターネット対応、システムキッチン、温水洗浄便座、南向き、角部屋、バルコニー、フローリング、床下収納、洗髪洗面化粧台、2口コンロ、コンロ:ガス、洗濯機:室内 | ||
| 当社物件ID | 19841263 | ||
建物の情報
| 建物名 | シャーメゾン本多町スタイル | ||
|---|---|---|---|
| 所在地 | 大阪府河内長野市本多町 | ||
| 交通 | 南海高野線 河内長野駅 徒歩10分 南海高野線 千代田駅 徒歩20分 近鉄長野線 汐ノ宮駅 徒歩26分 | ||
| 階数 | 2階建 | 総戸数 | - |
| 築年月 | 2012年02月 / 築14年 | エレベーター | - |
| 駐車場 | 空有 7700円 | バイク置き場 | あり |
| 駐輪場 | あり | 管理人/管理会社 | - |
| 周辺環境 | その他 寒川歯科医院(病院)まで710m その他 セブンイレブン 河内長野本町店(コンビニ)まで700m その他 サンプラザ 河内長野店(スーパー)まで701m その他 河内長野警察署河内長野駅前交番(警察署・交番)まで832m その他 マツモトキヨシ ノバティながの店(ドラッグストア)まで800m その他 三菱UFJ銀行河内長野支店(銀行)まで867m | ||
| 建物種別 | アパート | 建物構造 | 軽量鉄骨造 |
この部屋の取扱い不動産会社
| 会社名 | 喜志不動産(株)(SUUMO経由) | ||
|---|---|---|---|
| 所在地 | 大阪府富田林市喜志町5-1-4 | 交通 | - |
| 営業時間 | 9:00~18:00 | 定休日 | 年末年始 |
| 免許番号 | 大阪府知事52941 | 取引態様 | 仲介 |
| 不動産会社管理番号 | 100476559801 | 当社管理番号 | 89 |
| 所属団体 | (一社)大阪府宅地建物取引業協会会員 | ||
| 公正取引協議会 | (公社)近畿地区不動産公正取引協議会加盟 | ||
| 取扱い物件情報 | 物件詳細へ | ||
※各種情報と現状に差異がある場合は、現状優先となります。問い合わせをすることで、より詳しい条件、情報を確認する事ができます。
提供:喜志不動産(株)(SUUMO経由)
この物件が気になったら掲載期限まであと11日
シャーメゾン本多町スタイルに条件(家賃・エリア)が近い物件一覧
| 写真 | 家賃 管理費等 | 敷金 礼金 | 間取り 専有面積 | 築年数 | 最寄り駅 所在地 | キープ | 詳細 |
|---|---|---|---|---|---|---|---|
マンション S-RESIDENCE堺浜寺AXIAL(1K/2階) | |||||||
![]() | 5.8万円 1万円 | なし なし | 1K 24.98m2 | 築2年 | 阪堺電気軌道阪堺線 石津北駅 徒歩5分 南海電鉄南海本線 石津川駅 徒歩6分 南海電鉄南海本線 湊駅 徒歩17分 大阪府堺市西区浜寺石津町中1丁 | 詳細を見る | |
アパート グレイスコート浜寺(1LDK/2階) | |||||||
![]() | 7.9万円 6,500円 | なし 11.85万円 | 1LDK 44.95m2 | 築12年 | 南海電鉄南海本線 浜寺公園駅 徒歩5分 阪和線 東羽衣駅 徒歩9分 南海電鉄南海本線 羽衣駅 徒歩10分 大阪府堺市西区浜寺公園町3丁 | 詳細を見る | |
アパート 阪和線 和泉府中駅 徒歩11分 築6年(1K/1階) | |||||||
![]() | 5.3万円 3,000円 | なし 5.3万円 | 1K 28m2 | 築6年 | 阪和線 和泉府中駅 徒歩11分 阪和線 信太山駅 徒歩11分 阪和線 北信太駅 徒歩28分 大阪府和泉市伯太町1丁目 | 詳細を見る | |
マンション 南海電鉄泉北線 深井駅 徒歩17分 築29年(3LDK/4階) | |||||||
![]() | 8.4万円 6,500円 | なし 8.4万円 | 3LDK 65.67m2 | 築29年 | 南海電鉄泉北線 深井駅 徒歩17分 南海電鉄泉北線 泉ケ丘駅 徒歩41分 南海電鉄高野線 初芝駅 徒歩43分 大阪府堺市中区東山 | 詳細を見る | |
マンション 千代田司マンション(3LDK/1階) | |||||||
![]() | 6.2万円 3,000円 | なし 6.2万円 | 3LDK 60.77m2 | 築38年 | 南海電鉄高野線 千代田駅 徒歩1分 南海電鉄高野線 滝谷駅(大阪) 徒歩19分 近鉄長野線 汐ノ宮駅 徒歩19分 大阪府河内長野市楠町東 | 詳細を見る | |
マンション 南海電鉄泉北線 深井駅 徒歩5分 築12年(1K/1階) | |||||||
![]() | 5.5万円 6,000円 | なし なし | 1K 27.41m2 | 築12年 | 南海電鉄泉北線 深井駅 徒歩5分 阪和線 上野芝駅 徒歩40分 阪和線 津久野駅 徒歩44分 大阪府堺市中区深井沢町 | 詳細を見る | |
マンション 阪和線 鳳駅 徒歩10分 築33年(2LDK/2階) | |||||||
![]() | 6.5万円 5,000円 | なし 13万円 | 2LDK 55.24m2 | 築33年 | 阪和線 鳳駅 徒歩10分 南海電鉄南海本線 羽衣駅 徒歩13分 南海電鉄南海本線 浜寺公園駅 徒歩18分 大阪府堺市西区鳳中町10丁 | 詳細を見る | |
マンション ARCA鳳(1DK/6階) | |||||||
![]() | 7.3万円 6,000円 | なし なし | 1DK 25.11m2 | 築2年 | 阪和線 鳳駅 徒歩6分 阪和線 富木駅 徒歩16分 阪和線 津久野駅 徒歩25分 大阪府堺市西区鳳南町2丁 | 詳細を見る | |








