賃貸マンション
ガーデニエール砧レジデンスの賃貸物件情報(3LDK/4階)
| 家賃 | 管理費等 | 敷金 | 礼金 | 間取り | 専有面積 |
|---|---|---|---|---|---|
| 29.2万円 | 2万円 | 29.2万円 | 58.4万円 | 3LDK | 67.31m2 |
入居決定でお祝い金最大100,000円
Point
まずはお問い合わせ!
不動産会社は街のプロ、あなたに合った物件がきっと見つかります。
提供:アパマンショップ経堂店

詳細情報 ガーデニエール砧レジデンス
物件紹介
ガーデニエール砧レジデンスは小田急電鉄小田原線千歳船橋駅から徒歩10分にあり、駅近で通勤通学に便利なマンションです。
このお部屋は2階以上に位置しているので、通行人や周囲の住人からの視線が気になりにくく、防犯面でも安心。建物のエントランスはオートロックがついており、インターホンにはTVモニタもついているため、相手の顔を確認してから来客対応することができます。
おしゃれなデザイナーズ物件!また、楽器相談が可能な物件となっているので、楽器演奏をお考えの方はぜひ相談してみてください。人気の南向き・フローリングのお部屋。角部屋でもあるため、周囲の居住者の生活音も気になりにくい場所です。室内にはウォークインクローゼットがありますので、たくさんの荷物も効率的に収納ができます。キッチンはシステムキッチン仕様になっていますので、お料理好きの方にもぴったり。バス・トイレは別なので、のんびりお風呂タイムも楽しめるでしょう。また、雨の日でも浴室乾燥機を使えば、お洗濯も問題ありません。
通信設備面では、インターネット接続が可能です。また、BSアンテナ・CSアンテナがありCATVにも対応しているので、おうち時間も充実するでしょう(別途工事、契約料が必要な場合あり)。
床暖房があり、冬も足元から暖かく快適に過ごすことができます。建物にはエレベーターがついているので、重い荷物があっても安心。共用部には宅配ボックスが設定されているので、不在の時にも荷物を受け取ることができます。また、ペット飼育の相談ができますので、あなたの大切な家族の一員も快適に暮らせるか、ぜひ確認してみてください。
このお部屋は2階以上に位置しているので、通行人や周囲の住人からの視線が気になりにくく、防犯面でも安心。建物のエントランスはオートロックがついており、インターホンにはTVモニタもついているため、相手の顔を確認してから来客対応することができます。
おしゃれなデザイナーズ物件!また、楽器相談が可能な物件となっているので、楽器演奏をお考えの方はぜひ相談してみてください。人気の南向き・フローリングのお部屋。角部屋でもあるため、周囲の居住者の生活音も気になりにくい場所です。室内にはウォークインクローゼットがありますので、たくさんの荷物も効率的に収納ができます。キッチンはシステムキッチン仕様になっていますので、お料理好きの方にもぴったり。バス・トイレは別なので、のんびりお風呂タイムも楽しめるでしょう。また、雨の日でも浴室乾燥機を使えば、お洗濯も問題ありません。
通信設備面では、インターネット接続が可能です。また、BSアンテナ・CSアンテナがありCATVにも対応しているので、おうち時間も充実するでしょう(別途工事、契約料が必要な場合あり)。
床暖房があり、冬も足元から暖かく快適に過ごすことができます。建物にはエレベーターがついているので、重い荷物があっても安心。共用部には宅配ボックスが設定されているので、不在の時にも荷物を受け取ることができます。また、ペット飼育の相談ができますので、あなたの大切な家族の一員も快適に暮らせるか、ぜひ確認してみてください。
お金・契約の情報
※「-」と表示されているものは、実際は料金が発生するものもございます。詳細はお問い合わせください。
| 家賃 | 29.2万円 | 管理費・共益費 | 2万円 |
|---|---|---|---|
| 敷金 | 29.2万円 | 礼金 | 58.4万円 |
| 入居決定でお祝い金最大100,000円 | |||
| 保証金 | - | 償却・敷引 | - |
| 住宅保険料 | - | 更新料 | - |
| 契約形態 | 定期借家 | 契約期間 | 2年 |
| 入居・引渡期間 | 2026年03月下旬 | 現況 | - |
| 入居可能条件 | 楽器可、ペット可 | ||
| 契約備考 | 口座振替事務手数料 110円/鍵交換費 33000円、[退去時費用:室内清掃費 125,869円 ※故意・過失等別途実費] | ||
部屋の情報
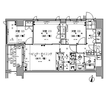
| 間取り | 3LDK | 専有面積 | 67.31m2 |
|---|---|---|---|
| 間取り詳細 | LDK(12.6帖)、洋室(6.1帖)、洋室(5.5帖)、洋室(4.5帖) | ||
| 所在階 / 向き | 4階 / 南西 | バルコニー面積 | 6m2 |
| 水道 / ガス | - | ||
| 設備 | バス・トイレ別、オートロック、テレビドアホン、宅配ボックス、浴室乾燥機、追い焚き、インターネット対応、システムキッチン、エレベーター、温水洗浄便座、バルコニー、フローリング、床暖房、コンロ:ガス、CSアンテナ、シャワー、給湯、洗濯機:室内 | ||
| 当社物件ID | 40264758 | ||
建物の情報
| 建物名 | ガーデニエール砧レジデンス | ||
|---|---|---|---|
| 所在地 | 東京都世田谷区砧2丁目 | ||
| 交通 | 小田急電鉄小田原線 千歳船橋駅 徒歩10分 | ||
| 階数 | 10階建 | 総戸数 | - |
| 築年月 | 2008年02月 / 築18年 | エレベーター | あり |
| 駐車場 | - | バイク置き場 | - |
| 駐輪場 | あり | 管理人/管理会社 | - |
| 周辺環境 | その他 ドコモ 徒歩8分(602m) その他 (株)みずほ銀行/千歳船橋支店 徒歩9分(662m) その他 オオゼキ千歳船橋店 徒歩9分(716m) その他 ココカラファイン(ドラッグストア) 徒歩10分(762m) その他 祖師ヶ谷大蔵駅 徒歩10分(782m) その他 千歳船橋駅 徒歩11分(836m) その他 ココカラファイン(ドラッグストア) 徒歩11分(864m) その他 オオゼキ祖師谷店 徒歩12分(887m) | ||
| 建物種別 | マンション | 建物構造 | RC(鉄筋コンクリート) |
この部屋の取扱い不動産会社
| 会社名 | アパマンショップ西荻窪店 | ||
|---|---|---|---|
| 所在地 | 東京都杉並区西荻北3丁目 19-1ニシオギビル西側2階 | 交通 | 中央本線西荻窪から徒歩1分 |
| 営業時間 | 10:00〜19:00(時間外もLINEで連絡下さい♪) | 定休日 | 水曜日 |
| 免許番号 | 国土交通大臣(5)6971 | 取引態様 | 仲介 |
| 不動産会社管理番号 | 87062867 | 当社管理番号 | 4 |
| 所属団体 | (公社)東京都宅地建物取引業協会 | ||
| 公正取引協議会 | (公社) 首都圏不動産公正取引協議会加盟 | ||
| 取扱い物件情報 | 物件詳細へ | ||
※各種情報と現状に差異がある場合は、現状優先となります。問い合わせをすることで、より詳しい条件、情報を確認する事ができます。
提供:アパマンショップ西荻窪店
この物件が気になったら掲載期限まであと12日
ガーデニエール砧レジデンスに条件(家賃・エリア)が近い物件一覧
| 写真 | 家賃 管理費等 | 敷金 礼金 | 間取り 専有面積 | 築年数 | 最寄り駅 所在地 | キープ | 詳細 |
|---|---|---|---|---|---|---|---|
マンション ラティエラ大鳥居(1LDK/8階) | |||||||
![]() | 18.8万円 1.2万円 | 18.8万円 18.8万円 | 1LDK 41.07m2 | 築4年 | 京浜急行電鉄空港線 大鳥居駅 徒歩6分 東京都大田区萩中3丁目 | 詳細を見る | |
マンション CHART HOUSEふるはま公園(2LDK/1階) | |||||||
![]() | 18.8万円 4,000円 | 18.8万円 なし | 2LDK 52.5m2 | 築6年 | 京急本線 大森町駅 徒歩14分 東京モノレール 昭和島駅 徒歩16分 京急本線 平和島駅 徒歩21分 東京都大田区大森東 | 詳細を見る | |
一戸建て 京浜東北・根岸線 蒲田駅 徒歩11分 築4年(2SLDK) | |||||||
![]() | 32.3万円 なし | 32.3万円 32.3万円 | 2SLDK 94.36m2 | 築4年 | 京浜東北・根岸線 蒲田駅 徒歩11分 東京都大田区東矢口3丁目 | 詳細を見る | |
マンション SAKURA(2LDK/2階) | |||||||
![]() | 20.1万円 5,000円 | 20.1万円 なし | 2LDK 54.84m2 | 築5年 | 京急本線 梅屋敷駅(東京) 徒歩7分 京急本線 大森町駅 徒歩9分 東京都大田区大森中 | 詳細を見る | |
マンション シャルマンドミール(2LDK/2階) | |||||||
![]() | 17.6万円 3,000円 | 17.6万円 35.2万円 | 2LDK 57.22m2 | 築11年 | 京浜急行電鉄本線 大森町駅 徒歩14分 京浜急行電鉄本線 梅屋敷駅(東京) 徒歩15分 東京都大田区大森南1丁目 | 詳細を見る | |
アパート ラメゾネットヴェルトゥ(3LDK/1階) | |||||||
![]() | 19.9万円 5,500円 | 19.9万円 19.9万円 | 3LDK 84.84m2 | 築12年 | 東急多摩川線 下丸子駅 徒歩5分 東急池上線 千鳥町駅 徒歩9分 東京都大田区南久が原 | 詳細を見る | |
マンション RJRプレシア大森北(2SLDK/2階) | |||||||
![]() | 27.4万円 1.5万円 | 27.4万円 なし | 2SLDK 59.47m2 | 築2年 | 京浜東北・根岸線 大森駅(東京) 徒歩11分 東京都大田区大森北5丁目 | 詳細を見る | |
マンション オーベルグランディオ萩中(2DK/12階) | |||||||
![]() | 18万円 1万円 | 18万円 18万円 | 2DK 50m2 | 築20年 | 京急空港線 糀谷駅 徒歩6分 京急空港線 大鳥居駅 徒歩15分 京急空港線 京急蒲田駅 徒歩15分 東京都大田区萩中 | 詳細を見る | |








