賃貸マンション
ウェルタワー深川の賃貸物件情報(3LDK/21階)
| 家賃 | 管理費等 | 敷金 | 礼金 | 間取り | 専有面積 |
|---|---|---|---|---|---|
| 25.5万円 | 2万円 | 25.5万円 | 25.5万円 | 3LDK | 82.27m2 |
入居決定でお祝い金最大100,000円
- 保証金
- -
- 償却・敷引
- -
- 築年数
- 築24年
- 所在階
- 21階
- 向き
- -
Point
便利なシャワー/エアコン/室内洗濯機置場/洗面所独立/ユニットバスと嬉しい設備が充実しています。お気軽に株式会社ハウスポンまでお問い合わせください 東京メトロ東西線 木場(東京)駅まで徒歩10分で通勤・通学に便利ですよ 生活に便利な江東区。広々とした3LDKタイプ 82.27m2 2F以上/エレベー
提供:株式会社ハウスポン レントドゥ門前仲町店(賃貸スモッカ経由)

詳細情報 ウェルタワー深川
物件紹介
ウェルタワー深川は東京地下鉄東西線門前仲町駅から徒歩9分にあり、駅近で通勤通学に便利なマンションです。
このお部屋は2階以上に位置しているので、通行人や周囲の住人からの視線が気になりにくく、防犯面でも安心。建物のエントランスはオートロックがついており、インターホンにはTVモニタもついているため、相手の顔を確認してから来客対応することができます。
おしゃれなデザイナーズ物件!人気の南向き・フローリングのお部屋。角部屋でもあるため、周囲の居住者の生活音も気になりにくい場所です。キッチンはシステムキッチン仕様になっていますので、お料理好きの方にもぴったり。バス・トイレは別なので、のんびりお風呂タイムも楽しめるでしょう。また、雨の日でも浴室乾燥機を使えば、お洗濯も問題ありません。
通信設備面では、インターネット接続が可能です。また、BSアンテナ・CSアンテナがありCATVにも対応しているので、おうち時間も充実するでしょう(別途工事、契約料が必要な場合あり)。
床暖房があり、冬も足元から暖かく快適に過ごすことができます。建物にはエレベーターがついているので、重い荷物があっても安心。共用部には宅配ボックスが設定されているので、不在の時にも荷物を受け取ることができます。また、ペット飼育の相談ができますので、あなたの大切な家族の一員も快適に暮らせるか、ぜひ確認してみてください。
このお部屋は2階以上に位置しているので、通行人や周囲の住人からの視線が気になりにくく、防犯面でも安心。建物のエントランスはオートロックがついており、インターホンにはTVモニタもついているため、相手の顔を確認してから来客対応することができます。
おしゃれなデザイナーズ物件!人気の南向き・フローリングのお部屋。角部屋でもあるため、周囲の居住者の生活音も気になりにくい場所です。キッチンはシステムキッチン仕様になっていますので、お料理好きの方にもぴったり。バス・トイレは別なので、のんびりお風呂タイムも楽しめるでしょう。また、雨の日でも浴室乾燥機を使えば、お洗濯も問題ありません。
通信設備面では、インターネット接続が可能です。また、BSアンテナ・CSアンテナがありCATVにも対応しているので、おうち時間も充実するでしょう(別途工事、契約料が必要な場合あり)。
床暖房があり、冬も足元から暖かく快適に過ごすことができます。建物にはエレベーターがついているので、重い荷物があっても安心。共用部には宅配ボックスが設定されているので、不在の時にも荷物を受け取ることができます。また、ペット飼育の相談ができますので、あなたの大切な家族の一員も快適に暮らせるか、ぜひ確認してみてください。
お金・契約の情報
※「-」と表示されているものは、実際は料金が発生するものもございます。詳細はお問い合わせください。
| 家賃 | 25.5万円 | 管理費・共益費 | 2万円 |
|---|---|---|---|
| 敷金 | 25.5万円 | 礼金 | 25.5万円 |
| 入居決定でお祝い金最大100,000円 | |||
| 保証金 | - | 償却・敷引 | - |
| 住宅保険料 | 住宅保険料あり | 更新料 | - |
| 契約形態 | 定期借家 | 契約期間 | 3年 |
| 入居・引渡期間 | 2026年02月 | 現況 | - |
| 契約備考 | 積増し敷金:1ヶ月 敷金積増し理由:ペット可 更新料:1ヶ月 更新料区分:新賃料 その他費用:コンフォート+2422,000円 保証人代行:必須 その他 保証人代行詳細:エポスカード その他設備/条件:コンロ2口以上 | ||
部屋の情報
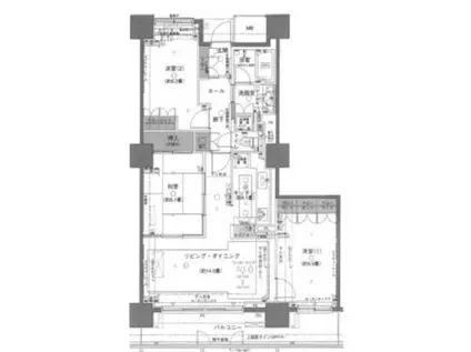
| 間取り | 3LDK | 専有面積 | 82.27m2 |
|---|---|---|---|
| 間取り詳細 | LD(14帖)、K(4.1帖)、和室(6帖)、洋室(6.9帖)、洋室(6.2帖) | ||
| 所在階 / 向き | 21階 / - | バルコニー面積 | - |
| 水道 / ガス | ガス【都市】 | ||
| 設備 | 2階以上、エアコン、エレベーター、フローリング、コンロ:ガス、洗濯機:室内 | ||
| 当社物件ID | 11750768 | ||
建物の情報
| 建物名 | ウェルタワー深川 | ||
|---|---|---|---|
| 所在地 | 東京都江東区古石場2丁目 | ||
| 交通 | 東京地下鉄東西線 門前仲町駅 徒歩9分 東京地下鉄東西線 木場駅 徒歩10分 京葉線 越中島駅 徒歩12分 | ||
| 階数 | 35階建 | 総戸数 | - |
| 築年月 | 2002年07月 / 築24年 | エレベーター | あり |
| 駐車場 | - | バイク置き場 | - |
| 駐輪場 | - | 管理人/管理会社 | - |
| 建物種別 | マンション | 建物構造 | SRC(鉄骨鉄筋コンクリート) |
この部屋の取扱い不動産会社
| 会社名 | 株式会社ハウスポン レントドゥ門前仲町店(賃貸スモッカ経由) | ||
|---|---|---|---|
| 所在地 | 東京都江東区門前仲町1丁目20番5号 | 交通 | - |
| 営業時間 | - | 定休日 | - |
| 免許番号 | 東京都知事免許(3)第86715号 | 取引態様 | 仲介 |
| 不動産会社管理番号 | housepon_2111408_1120919340720000033698 | 当社管理番号 | 463 |
| 所属団体 | 不動産保証協会 | ||
| 取扱い物件情報 | 物件詳細へ | ||
※各種情報と現状に差異がある場合は、現状優先となります。問い合わせをすることで、より詳しい条件、情報を確認する事ができます。
提供:株式会社ハウスポン レントドゥ門前仲町店(賃貸スモッカ経由)
この物件が気になったら掲載期限まであと5日
ウェルタワー深川に条件(家賃・エリア)が近い物件一覧
| 写真 | 家賃 管理費等 | 敷金 礼金 | 間取り 専有面積 | 築年数 | 最寄り駅 所在地 | キープ | 詳細 |
|---|---|---|---|---|---|---|---|
マンション プレディアコート森下テラス(1LDK/3階) | |||||||
![]() | 15.8万円 1万円 | 15.8万円 なし | 1LDK 35.3m2 | 築4年 | 総武・中央緩行線 両国駅 徒歩9分 東京都新宿線 森下駅(東京) 徒歩10分 東京都大江戸線 両国駅 徒歩14分 東京都墨田区千歳1丁目 | 詳細を見る | |
マンション ステラコート洗足(1LDK/5階) | |||||||
![]() | 18.8万円 1万円 | 18.8万円 18.8万円 | 1LDK 48.39m2 | 築20年 | 東急大井町線 北千束駅 徒歩3分 東急目黒線 洗足駅 徒歩4分 東急大井町線 大岡山駅 徒歩10分 東京都大田区北千束 | 詳細を見る | |
マンション パークアクシス本所・親水公園(1LDK/8階) | |||||||
![]() | 19.4万円 1.5万円 | なし なし | 1LDK 40.52m2 | 築5年 | 東京都浅草線 本所吾妻橋駅 徒歩9分 東京地下鉄半蔵門線 押上駅 徒歩10分 総武・中央緩行線 錦糸町駅 徒歩19分 東京都墨田区本所4丁目 | 詳細を見る | |
マンション GENOVIA両国ⅥGREEN VEIL(ワンルーム/2階) | |||||||
![]() | 20万円 なし | なし なし | ワンルーム 26.53m2 | 築4年 | 東京都大江戸線 両国駅 徒歩9分 東京都新宿線 菊川駅(東京) 徒歩10分 総武・中央緩行線 錦糸町駅 徒歩11分 東京都墨田区緑3丁目 | 詳細を見る | |
マンション カノン押上(1LDK/8階) | |||||||
![]() | 17.2万円 8,000円 | 17.2万円 17.2万円 | 1LDK 34.08m2 | 築5年 | 東京地下鉄半蔵門線 押上駅 徒歩4分 東武伊勢崎・大師線 曳舟駅 徒歩10分 京成電鉄押上線 京成曳舟駅 徒歩13分 東京都墨田区押上3丁目 | 詳細を見る | |
一戸建て 東京都新宿線 大島駅(東京) 徒歩7分 築76年(1DK) | |||||||
![]() | 15.8万円 1万円 | 15.8万円 15.8万円 | 1DK 27.91m2 | 築76年 | 東京都新宿線 大島駅(東京) 徒歩7分 東京都新宿線 西大島駅 徒歩7分 総武・中央緩行線 亀戸駅 徒歩11分 東京都江東区大島3丁目 | 詳細を見る | |
マンション グランツ スエヒロ(1LDK/4階) | |||||||
![]() | 16.7万円 8,100円 | なし 33.4万円 | 1LDK 40.23m2 | 築7年 | 東京都浅草線 浅草駅(東武・都営・メトロ) 徒歩5分 東京地下鉄銀座線 浅草駅(東武・都営・メトロ) 徒歩8分 東京都浅草線 本所吾妻橋駅 徒歩8分 東京都墨田区東駒形1丁目 | 詳細を見る | |
マンション エスティメゾン錦糸町2(1LDK/6階) | |||||||
![]() | 17.5万円 1.2万円 | 17.5万円 なし | 1LDK 40m2 | 築18年 | 総武・中央緩行線 錦糸町駅 徒歩5分 東京地下鉄半蔵門線 錦糸町駅 徒歩5分 東京都墨田区江東橋3丁目 | 詳細を見る | |








