賃貸アパート
リリックコートWISTERIAの賃貸物件情報(1K/1階)
| 家賃 | 管理費等 | 敷金 | 礼金 | 間取り | 専有面積 |
|---|---|---|---|---|---|
| 8.5万円 | 3,000円 | なし | 8.5万円 | 1K | 21.73m2 |
入居決定でお祝い金最大100,000円
- 保証金
- -
- 償却・敷引
- -
- 築年数
- 築20年
- 所在階
- 1階
- 向き
- 西
Point
★三軒茶屋含め田園都市線沿いを中心に、デザイナーズや分譲マンション、初期費用を抑えた部屋探しはぜひ当社にお任せください♪よくある不動産とは違ったご提案方法で一番合った理想のお部屋をご紹介いたします!★
提供:三軒茶屋不動産(株)(SUUMO経由)

詳細情報 リリックコートWISTERIA
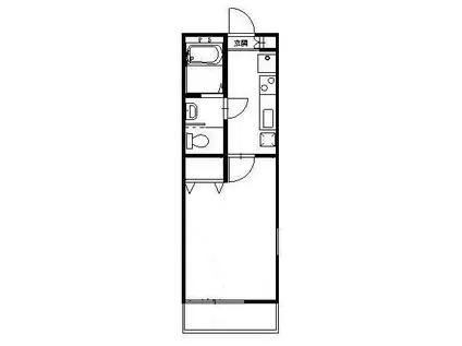
物件紹介
リリックコートWISTERIAは東急目黒線武蔵小山駅から徒歩10分にあり、駅近で通勤通学に便利なアパートです。
このお部屋のインターホンにはTVモニタがついているため、相手の顔を確認してから来客対応することができます。
人気の角部屋で周囲の居住者の生活音も気になりにくく、また、フローリングのお部屋なのでお掃除もラクラク。キッチンはシステムキッチン仕様になっていますので、お料理好きの方にもぴったり。また、バス・トイレは別で、のんびりお風呂タイムも楽しめるでしょう。
通信設備面ではCATVに対応しているので、おうち時間も充実するでしょう(別途工事、契約料が必要な場合あり)。
共用部には宅配ボックスが設定されているので、不在の時にも荷物を受け取ることができます。
このお部屋のインターホンにはTVモニタがついているため、相手の顔を確認してから来客対応することができます。
人気の角部屋で周囲の居住者の生活音も気になりにくく、また、フローリングのお部屋なのでお掃除もラクラク。キッチンはシステムキッチン仕様になっていますので、お料理好きの方にもぴったり。また、バス・トイレは別で、のんびりお風呂タイムも楽しめるでしょう。
通信設備面ではCATVに対応しているので、おうち時間も充実するでしょう(別途工事、契約料が必要な場合あり)。
共用部には宅配ボックスが設定されているので、不在の時にも荷物を受け取ることができます。
お金・契約の情報
※「-」と表示されているものは、実際は料金が発生するものもございます。詳細はお問い合わせください。
| 家賃 | 8.5万円 | 管理費・共益費 | 3,000円 |
|---|---|---|---|
| 敷金 | なし | 礼金 | 8.5万円 |
| 入居決定でお祝い金最大100,000円 | |||
| 保証金 | - | 償却・敷引 | - |
| 住宅保険料 | - | 更新料 | - |
| 保証会社利用 | 必須 | 保証会社名 | - |
| 保証会社費用 | - | 保証会社備考 | 保証会社利用必 初回:月額賃料等の100%、月額保証料:賃料等の1.1%(更新無) ご質問等ございましたらお問合せください。 |
| 契約形態 | 定期借家 | 契約期間 | 2年 |
| 入居・引渡期間 | 相談 | 現況 | - |
| 契約備考 | ★当社では初期費用分割・カード決済可能★お客様一人一人に合ったお部屋と生活をご提案させていただきます★TEL: 合計4.84万円(内訳:24時間サポート0.77万円室内消毒1.65万円鍵交換代2.42万円) 室内清掃費用 36300円 口座振替手数料 月額330円 1K 定期借家2年 損保【1.9万円2年】 バストイレ別、バルコニー、エアコン、ガスコンロ対応、クロゼット、フローリング、シャワー付洗面台、TVインターホン、室内洗濯置、シューズボックス、システムキッチン、角住戸、洗面所独立、洗面化粧台、2口コンロ、宅配ボックス、CATV、敷金不要、全居室洋室、保証人不要、全居室フローリング、2沿線利用可、24時間換気システム、2駅利用可、3駅以上利用可、駅徒歩10分以内、都市ガス、保証会社利用可、初期費用カード決済可、通風良好 | ||
部屋の情報
| 間取り | 1K | 専有面積 | 21.73m2 |
|---|---|---|---|
| 所在階 / 向き | 1階 / 西 | バルコニー面積 | - |
| 水道 / ガス | - | ||
| 設備 | バス・トイレ別、テレビドアホン、宅配ボックス、システムキッチン、エアコン、角部屋、バルコニー、フローリング、洗髪洗面化粧台、2口コンロ、コンロ:ガス、CATV、洗濯機:室内 | ||
| 当社物件ID | 26065781 | ||
建物の情報
| 建物名 | リリックコートWISTERIA | ||
|---|---|---|---|
| 所在地 | 東京都目黒区目黒本町 | ||
| 交通 | 東急目黒線 武蔵小山駅 徒歩10分 東急東横線 学芸大学駅 徒歩13分 東急目黒線 西小山駅 徒歩13分 | ||
| 階数 | 2階建 | 総戸数 | - |
| 築年月 | 2006年09月 / 築20年 | エレベーター | - |
| 駐車場 | 近隣 300m35000円 | バイク置き場 | - |
| 駐輪場 | - | 管理人/管理会社 | - |
| 周辺環境 | その他 清水池公園(公園)まで381m その他 まいばすけっと目黒本町2丁目(スーパー)まで402m その他 ファミリーマート目黒本町三丁目(コンビニ)まで357m その他 目黒区立げっこうはらこども園(その他)まで184m その他 COSTA COFFEE 学芸大学店(飲食店)まで1250m その他 スーパーつかさ学芸大学店(スーパー)まで897m | ||
| 建物種別 | アパート | 建物構造 | 軽量鉄骨造 |
この部屋の取扱い不動産会社
| 会社名 | 三軒茶屋不動産(株)(SUUMO経由) | ||
|---|---|---|---|
| 所在地 | 東京都世田谷区太子堂4-18-4 TS三軒茶屋104 | 交通 | - |
| 営業時間 | 10時~19時 | 定休日 | 水曜日 |
| 免許番号 | 東京都知事102997 | 取引態様 | 仲介 |
| 不動産会社管理番号 | 100474370802 | 当社管理番号 | 89 |
| 所属団体 | (公社)東京都宅地建物取引業協会会員 | ||
| 公正取引協議会 | (公社)首都圏不動産公正取引協議会加盟 | ||
| 取扱い物件情報 | 物件詳細へ | ||
※各種情報と現状に差異がある場合は、現状優先となります。問い合わせをすることで、より詳しい条件、情報を確認する事ができます。
提供:三軒茶屋不動産(株)(SUUMO経由)
この物件が気になったら掲載期限まであと10日
リリックコートWISTERIAに条件(家賃・エリア)が近い物件一覧
| 写真 | 家賃 管理費等 | 敷金 礼金 | 間取り 専有面積 | 築年数 | 最寄り駅 所在地 | キープ | 詳細 |
|---|---|---|---|---|---|---|---|
マンション SEED JUST B-BASE Ⅱ(1LDK/4階) | |||||||
![]() | 9.9万円 1.5万円 | 9.9万円 9.9万円 | 1LDK 25.41m2 | 新築 | 東京モノレール羽田 昭和島駅 徒歩11分 京浜急行電鉄本線 梅屋敷駅(東京) 徒歩19分 東京都大田区大森南4丁目 | 詳細を見る | |
マンション カーサ・ヴェルデ(1K/1階) | |||||||
![]() | 5.8万円 3,000円 | 5.8万円 なし | 1K 15.63m2 | 築36年 | 京浜東北・根岸線 蒲田駅 徒歩14分 東急池上線 池上駅 徒歩16分 東京都大田区西蒲田1丁目 | 詳細を見る | |
アパート ケイ・アパルトメント山王(1K/2階) | |||||||
![]() | 8.5万円 3,000円 | 4.25万円 12.75万円 | 1K 19.8m2 | 築3年 | JR京浜東北線 大森駅(東京) 徒歩12分 都営浅草線 馬込駅 徒歩15分 JR横須賀線 西大井駅 徒歩20分 東京都大田区山王 | 詳細を見る | |
アパート SEED SAVE PETIRASU Ⅲ(1LDK/2階) | |||||||
![]() | 11.5万円 1万円 | 23万円 11.5万円 | 1LDK 30.55m2 | 新築 | 東京モノレール羽田 昭和島駅 徒歩12分 京浜急行電鉄本線 大森町駅 徒歩18分 東京都大田区大森東5丁目 | 詳細を見る | |
アパート M SONIA KUGAHARA(ワンルーム/1階) | |||||||
![]() | 9.1万円 3,000円 | 9.1万円 13.65万円 | ワンルーム 24.64m2 | 築1年 | 東急池上線 久が原駅 徒歩8分 東急池上線 御嶽山駅 徒歩9分 東京都大田区西嶺町 | 詳細を見る | |
マンション セジョリ鵜の木(1DK/1階) | |||||||
![]() | 10.5万円 1.5万円 | なし なし | 1DK 25.83m2 | 築4年 | 東急多摩川線 鵜の木駅 徒歩7分 東急多摩川線 沼部駅 徒歩11分 東急池上線 久が原駅 徒歩13分 東京都大田区鵜の木 | 詳細を見る | |
マンション ビバリーホームズ中延Ⅱ(1K/4階) | |||||||
![]() | 9.5万円 1万円 | 9.5万円 なし | 1K 18.65m2 | 築17年 | 東京都浅草線 馬込駅 徒歩7分 埼京線 西大井駅 徒歩9分 東京都浅草線 中延駅 徒歩9分 東京都品川区西大井6丁目 | 詳細を見る | |
アパート タカマルハイム(1LDK/1階) | |||||||
![]() | 11.1万円 3,000円 | 11.1万円 22.2万円 | 1LDK 34m2 | 築11年 | 東急多摩川線 武蔵新田駅 徒歩8分 東急多摩川線 下丸子駅 徒歩9分 東京都大田区下丸子2丁目 | 詳細を見る | |









