賃貸アパート
クレール星田の賃貸物件情報(2LDK/3階)
| 家賃 | 管理費等 | 敷金 | 礼金 | 間取り | 専有面積 |
|---|---|---|---|---|---|
| 6.5万円 | 5,000円 | 6.5万円 | 6.5万円 | 2LDK | 55m2 |
入居決定でお祝い金最大100,000円
- 保証金
- -
- 償却・敷引
- -
- 築年数
- 築35年
- 所在階
- 3階
- 向き
- 南
Point
まずはお問い合わせ!
不動産会社は街のプロ、あなたに合った物件がきっと見つかります。
提供:アピア(株)賃貸事業部アパレン寝屋川本店(SUUMO経由)

詳細情報 クレール星田
物件紹介
クレール星田はJR片町線星田駅から徒歩8分にあり、駅近で通勤通学に便利なアパートです。
このお部屋は2階以上に位置しているので、通行人や周囲の住人からの視線が気になりにくく、防犯面でも安心です。
人気の南向きのお部屋。バス・トイレ別の仕様で、のんびりお風呂タイムも楽しめます。
通信設備面ではBSアンテナがありCATVにも対応しているので、おうち時間も充実するでしょう(別途工事、契約料が必要な場合あり)。
ペット飼育の相談ができますので、あなたの大切な家族の一員も快適に暮らせるか、ぜひ確認してみてください。
このお部屋は2階以上に位置しているので、通行人や周囲の住人からの視線が気になりにくく、防犯面でも安心です。
人気の南向きのお部屋。バス・トイレ別の仕様で、のんびりお風呂タイムも楽しめます。
通信設備面ではBSアンテナがありCATVにも対応しているので、おうち時間も充実するでしょう(別途工事、契約料が必要な場合あり)。
ペット飼育の相談ができますので、あなたの大切な家族の一員も快適に暮らせるか、ぜひ確認してみてください。
お金・契約の情報
※「-」と表示されているものは、実際は料金が発生するものもございます。詳細はお問い合わせください。
| 家賃 | 6.5万円 | 管理費・共益費 | 5,000円 |
|---|---|---|---|
| 敷金 | 6.5万円 | 礼金 | 6.5万円 |
| 入居決定でお祝い金最大100,000円 | |||
| 保証金 | - | 償却・敷引 | - |
| 住宅保険料 | - | 更新料 | - |
| 契約形態 | - | 契約期間 | - |
| 入居・引渡期間 | 即時 | 現況 | - |
| 入居可能条件 | ペット相談 | ||
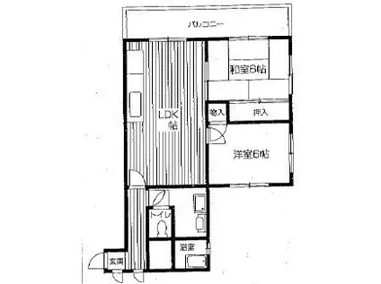
| 契約備考 | 2LDK ペット相談 普通借家2年 バストイレ別、ガスコンロ対応、室内洗濯置、南向き、洗面所独立、駐輪場、CATV、即入居可、最上階、ペット相談、敷金1ヶ月、バイク置場、2沿線利用可、3駅以上利用可、駅徒歩10分以内、和室、全居室6畳以上、プロパンガス、BS、礼金1ヶ月、初期費用カード決済可 | ||
部屋の情報
| 間取り | 2LDK | 専有面積 | 55m2 |
|---|---|---|---|
| 所在階 / 向き | 3階 / 南 | バルコニー面積 | - |
| 水道 / ガス | - | ||
| 設備 | バス・トイレ別、2階以上、南向き、洗髪洗面化粧台、コンロ:ガス、CATV、BSアンテナ、洗濯機:室内 | ||
| 当社物件ID | 160148399 | ||
建物の情報
| 建物名 | クレール星田 | ||
|---|---|---|---|
| 所在地 | 大阪府交野市大字星田 | ||
| 交通 | JR片町線 星田駅 徒歩8分 JR片町線 寝屋川公園駅 徒歩23分 京阪交野線 私市駅 徒歩32分 | ||
| 階数 | 3階建 | 総戸数 | 8戸 |
| 築年月 | 1991年10月 / 築35年 | エレベーター | - |
| 駐車場 | 空有 7000円 | バイク置き場 | あり |
| 駐輪場 | あり | 管理人/管理会社 | - |
| 周辺環境 | その他 旭小学校(小学校)まで656m その他 第三中学校(中学校)まで889m | ||
| 建物種別 | アパート | 建物構造 | 軽量鉄骨造 |
この部屋の取扱い不動産会社
| 会社名 | アピア(株)賃貸事業部アパレン寝屋川本店(SUUMO経由) | ||
|---|---|---|---|
| 所在地 | 大阪府寝屋川市早子町 23-12 | 交通 | - |
| 営業時間 | 9:00~19:00 | 定休日 | なし |
| 免許番号 | 大阪府知事43696 | 取引態様 | 仲介 |
| 不動産会社管理番号 | 100480774668 | 当社管理番号 | 89 |
| 所属団体 | (公社)全日本不動産協会大阪府本部会員 | ||
| 公正取引協議会 | (公社)近畿地区不動産公正取引協議会加盟 | ||
| 取扱い物件情報 | 物件詳細へ | ||
※各種情報と現状に差異がある場合は、現状優先となります。問い合わせをすることで、より詳しい条件、情報を確認する事ができます。
提供:アピア(株)賃貸事業部アパレン寝屋川本店(SUUMO経由)
この物件が気になったら掲載期限まであと10日
クレール星田に条件(家賃・エリア)が近い物件一覧
| 写真 | 家賃 管理費等 | 敷金 礼金 | 間取り 専有面積 | 築年数 | 最寄り駅 所在地 | キープ | 詳細 |
|---|---|---|---|---|---|---|---|
マンション 都マンション(2LDK/2階) | |||||||
![]() | 5万円 なし | なし なし | 2LDK 45m2 | 築43年 | 京阪電気鉄道京阪線 寝屋川市駅 徒歩10分 京阪電気鉄道京阪線 萱島駅 徒歩20分 京阪電気鉄道京阪線 大和田駅(大阪) 徒歩27分 大阪府寝屋川市中木田町 | 詳細を見る | |
アパート クレイノかもめ(1K/4階) | |||||||
![]() | 7.1万円 5,000円 | なし なし | 1K 25.07m2 | 築7年 | 京阪本線 寝屋川市駅 徒歩14分 京阪本線 香里園駅 徒歩31分 京阪本線 萱島駅 徒歩44分 大阪府寝屋川市本町 | 詳細を見る | |
マンション アートプラザ枚方(1K/4階) | |||||||
![]() | 5.9万円 6,000円 | 5万円 5万円 | 1K 30.5m2 | 築7年 | 片町線 長尾駅(大阪) 徒歩23分 片町線 松井山手駅 徒歩37分 大阪府枚方市長尾家具町 | 詳細を見る | |
アパート セピアハイツ(2DK/2階) | |||||||
![]() | 5.6万円 なし | なし なし | 2DK 45m2 | 築37年 | 京阪本線 寝屋川市駅 徒歩9分 京阪本線 萱島駅 徒歩22分 京阪本線 香里園駅 徒歩45分 大阪府寝屋川市木田町 | 詳細を見る | |
マンション 京阪電気鉄道京阪線 枚方公園駅 徒歩13分 築22年(1K/3階) | |||||||
![]() | 5.3万円 3,000円 | なし 10万円 | 1K 28.63m2 | 築22年 | 京阪電気鉄道京阪線 枚方公園駅 徒歩13分 大阪府枚方市伊加賀西町 | 詳細を見る | |
アパート 片町線 長尾駅(大阪) 徒歩9分 築16年(1K/1階) | |||||||
![]() | 5.25万円 3,500円 | なし 5.25万円 | 1K 26.63m2 | 築16年 | 片町線 長尾駅(大阪) 徒歩9分 片町線 藤阪駅 徒歩19分 大阪府枚方市藤阪東町2丁目 | 詳細を見る | |
アパート グリーン(1K/1階) | |||||||
![]() | 6.45万円 5,800円 | なし 6.45万円 | 1K 35m2 | 築3年 | 京阪電気鉄道京阪線 光善寺駅 徒歩10分 京阪電気鉄道京阪線 香里園駅 徒歩28分 大阪府枚方市 | 詳細を見る | |
マンション 京阪電気鉄道京阪線 樟葉駅 徒歩10分 築33年(3DK/3階) | |||||||
![]() | 8.8万円 5,000円 | なし 15万円 | 3DK 63m2 | 築33年 | 京阪電気鉄道京阪線 樟葉駅 徒歩10分 京阪電気鉄道京阪線 橋本駅(京都) 徒歩32分 大阪府枚方市南楠葉1丁目 | 詳細を見る | |








