賃貸マンション
AXAS白山の賃貸物件情報(1K/2階)
| 家賃 | 管理費等 | 敷金 | 礼金 | 間取り | 専有面積 |
|---|---|---|---|---|---|
| 8.7万円 | 1万円 | なし | 8.7万円 | 1K | 20.55m2 |
入居決定でお祝い金最大100,000円
- 保証金
- -
- 償却・敷引
- -
- 築年数
- 築19年
- 所在階
- 2階
- 向き
- 東
Point
まずはお問い合わせ!
不動産会社は街のプロ、あなたに合った物件がきっと見つかります。
提供:(株)ヘヤコミュニケーションマエムキ神田支店(SUUMO経由)

詳細情報 AXAS白山
物件紹介
AXAS白山は都営三田線白山駅から徒歩10分にあり、駅近で通勤通学に便利なマンションです。
このお部屋は2階以上に位置しているので、通行人や周囲の住人からの視線が気になりにくく、防犯面でも安心。建物のエントランスはオートロックがついており、インターホンにはTVモニタもついているため、相手の顔を確認してから来客対応することができます。
フローリングのお部屋なのでお掃除もラクラク。キッチンはシステムキッチン仕様になっていますので、お料理好きの方にもぴったり。バス・トイレは別なので、のんびりお風呂タイムも楽しめるでしょう。また、雨の日でも浴室乾燥機を使えば、お洗濯も問題ありません。
通信設備面では、インターネット接続が可能です。また、BSアンテナ・CSアンテナがありCATVにも対応しているので、おうち時間も充実するでしょう(別途工事、契約料が必要な場合あり)。
建物にはエレベーターがついているので、重い荷物があっても安心。共用部には宅配ボックスが設定されているので、不在の時にも荷物を受け取ることができます。
このお部屋は2階以上に位置しているので、通行人や周囲の住人からの視線が気になりにくく、防犯面でも安心。建物のエントランスはオートロックがついており、インターホンにはTVモニタもついているため、相手の顔を確認してから来客対応することができます。
フローリングのお部屋なのでお掃除もラクラク。キッチンはシステムキッチン仕様になっていますので、お料理好きの方にもぴったり。バス・トイレは別なので、のんびりお風呂タイムも楽しめるでしょう。また、雨の日でも浴室乾燥機を使えば、お洗濯も問題ありません。
通信設備面では、インターネット接続が可能です。また、BSアンテナ・CSアンテナがありCATVにも対応しているので、おうち時間も充実するでしょう(別途工事、契約料が必要な場合あり)。
建物にはエレベーターがついているので、重い荷物があっても安心。共用部には宅配ボックスが設定されているので、不在の時にも荷物を受け取ることができます。
お金・契約の情報
※「-」と表示されているものは、実際は料金が発生するものもございます。詳細はお問い合わせください。
| 家賃 | 8.7万円 | 管理費・共益費 | 1万円 |
|---|---|---|---|
| 敷金 | なし | 礼金 | 8.7万円 |
| 入居決定でお祝い金最大100,000円 | |||
| 保証金 | - | 償却・敷引 | - |
| 住宅保険料 | - | 更新料 | - |
| 保証会社利用 | 必須 | 保証会社名 | - |
| 保証会社費用 | - | 保証会社備考 | 保証会社利用必 貸主指定保証会社有 初回保証料:総賃料の100%、月額保証料:総賃料の1.5% |
| 契約形態 | - | 契約期間 | - |
| 入居・引渡期間 | 相談 | 現況 | - |
| 契約備考 | 通勤管理 合計5.83万円(内訳:鍵交換代:27500円、契約事務手数料:11000円、くらしーど24:19800円/2年) クリーニング費用:借主負担 1K 二人入居可/子供可 損保【2万円2年】 バストイレ別、バルコニー、エアコン、ガスコンロ対応、クロゼット、フローリング、TVインターホン、浴室乾燥機、オートロック、室内洗濯置、シューズボックス、システムキッチン、温水洗浄便座、エレベーター、2口コンロ、駐輪場、宅配ボックス、CATV、光ファイバー、外壁タイル張り、BS・CS、防犯カメラ、照明付、分譲賃貸、全居室洋室、保証人不要、二人入居相談、24時間緊急通報システム、全居室フローリング、2沿線利用可、CS、ネット専用回線、保証金不要、24時間換気システム、耐火構造、耐震構造、2駅利用可、3駅以上利用可、3沿線以上利用可、駅徒歩10分以内、敷地内ごみ置き場、日勤管理、全居室6畳以上、都市ガス、南面バルコニー、BS、高速ネット対応、LAN、マルチメディアコンセント、保証会社利用可、IT重説対応物件 | ||
部屋の情報
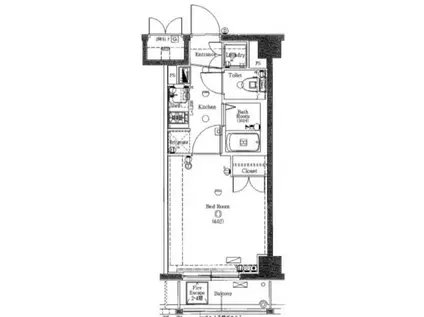
| 間取り | 1K | 専有面積 | 20.55m2 |
|---|---|---|---|
| 所在階 / 向き | 2階 / 東 | バルコニー面積 | - |
| 水道 / ガス | - | ||
| 設備 | バス・トイレ別、2階以上、オートロック、テレビドアホン、宅配ボックス、浴室乾燥機、インターネット対応、システムキッチン、エアコン、エレベーター、温水洗浄便座、バルコニー、フローリング、2口コンロ、コンロ:ガス、CATV、CSアンテナ、BSアンテナ、洗濯機:室内 | ||
| 当社物件ID | 11377952 | ||
建物の情報
| 建物名 | AXAS白山 | ||
|---|---|---|---|
| 所在地 | 東京都文京区白山 | ||
| 交通 | 都営三田線 白山駅(東京) 徒歩10分 都営大江戸線 春日駅(東京) 徒歩11分 東京メトロ丸ノ内線 後楽園駅 徒歩12分 | ||
| 階数 | 6階建 | 総戸数 | - |
| 築年月 | 2007年07月 / 築19年 | エレベーター | あり |
| 駐車場 | 近隣 300m45000円 | バイク置き場 | - |
| 駐輪場 | あり | 管理人/管理会社 | - |
| 周辺環境 | その他 まいばすけっと白山1丁目店(スーパー)まで698m その他 セブンイレブン文京植物園前店(コンビニ)まで356m その他 スギ薬局小石川1丁目店(ドラッグストア)まで468m その他 キッチンオリジン春日店(飲食店)まで580m その他 小石川一郵便局(郵便局)まで405m その他 富坂警察署(警察署・交番)まで1090m | ||
| 建物種別 | マンション | 建物構造 | RC(鉄筋コンクリート) |
この部屋の取扱い不動産会社
| 会社名 | (株)ヘヤコミュニケーションマエムキ神田支店(SUUMO経由) | ||
|---|---|---|---|
| 所在地 | 東京都千代田区内神田2-8-15 アビタシオン創1階 | 交通 | - |
| 営業時間 | 09:30-19:00 | 定休日 | 年中無休 |
| 免許番号 | 東京都知事94900 | 取引態様 | 仲介 |
| 不動産会社管理番号 | 100483952067 | 当社管理番号 | 89 |
| 所属団体 | (公社)全日本不動産協会東京都本部会員 | ||
| 公正取引協議会 | (公社)首都圏不動産公正取引協議会加盟 | ||
| 取扱い物件情報 | 物件詳細へ | ||
※各種情報と現状に差異がある場合は、現状優先となります。問い合わせをすることで、より詳しい条件、情報を確認する事ができます。
提供:(株)ヘヤコミュニケーションマエムキ神田支店(SUUMO経由)
この物件が気になったら掲載期限まであと10日
AXAS白山に条件(家賃・エリア)が近い物件一覧
| 写真 | 家賃 管理費等 | 敷金 礼金 | 間取り 専有面積 | 築年数 | 最寄り駅 所在地 | キープ | 詳細 |
|---|---|---|---|---|---|---|---|
マンション J.GRAN COURT 浅草(1DK/10階) | |||||||
![]() | 14万円 1万円 | 14万円 なし | 1DK 26.26m2 | 築3年 | つくばエクスプレス 浅草駅(つくばEXP) 徒歩7分 東京地下鉄銀座線 浅草駅(東武・都営・メトロ) 徒歩8分 東京都浅草線 浅草駅(東武・都営・メトロ) 徒歩8分 東京都台東区浅草3丁目 | 詳細を見る | |
マンション マガンダ(1DK/4階) | |||||||
![]() | 10.6万円 7,000円 | 5.3万円 15.9万円 | 1DK 32.35m2 | 築13年 | 東京地下鉄日比谷線 南千住駅 徒歩7分 東京地下鉄日比谷線 三ノ輪駅 徒歩12分 東京都荒川線 三ノ輪橋駅 徒歩15分 東京都台東区清川2丁目 | 詳細を見る | |
マンション サンテミリオン白山(1K/5階) | |||||||
![]() | 8万円 1万円 | 8万円 なし | 1K 21.6m2 | 築21年 | 東京都三田線 白山駅(東京) 徒歩3分 東京地下鉄南北線 本駒込駅 徒歩9分 東京地下鉄南北線 東大前駅 徒歩10分 東京都文京区白山2丁目 | 詳細を見る | |
マンション ドゥーエ入谷1(1DK/2階) | |||||||
![]() | 12.7万円 1.5万円 | なし なし | 1DK 26.57m2 | 築3年 | 東京地下鉄日比谷線 入谷駅(東京) 徒歩3分 山手線 鶯谷駅 徒歩13分 つくばエクスプレス 浅草駅(つくばEXP) 徒歩15分 東京都台東区入谷2丁目 | 詳細を見る | |
マンション 鈴木ビル(1K/1階) | |||||||
![]() | 7万円 3,000円 | 7万円 7万円 | 1K 26.17m2 | 築45年 | 東京地下鉄千代田線 町屋駅 徒歩8分 東京都荒川線 町屋駅前駅 徒歩8分 京成電鉄本線 町屋駅 徒歩10分 東京都荒川区町屋三丁目 | 詳細を見る | |
マンション プライマル小石川(ワンルーム/3階) | |||||||
![]() | 13.3万円 7,000円 | 13.3万円 なし | ワンルーム 31.5m2 | 築20年 | 東京都大江戸線 飯田橋駅 徒歩9分 総武・中央緩行線 飯田橋駅 徒歩9分 東京地下鉄丸ノ内線 後楽園駅 徒歩11分 東京都文京区水道1丁目 | 詳細を見る | |
マンション アーバンパーク浅草2(1K/7階) | |||||||
![]() | 11.5万円 1万円 | なし なし | 1K 25.62m2 | 築3年 | 東武伊勢崎・大師線 浅草駅(東武・都営・メトロ) 徒歩12分 東京地下鉄銀座線 浅草駅(東武・都営・メトロ) 徒歩14分 東京都浅草線 浅草駅(東武・都営・メトロ) 徒歩14分 東京都台東区今戸1丁目 | 詳細を見る | |








