賃貸マンション
プレジオ緑地公園の賃貸物件情報(1LDK/2階)
| 家賃 | 管理費等 | 敷金 | 礼金 | 間取り | 専有面積 |
|---|---|---|---|---|---|
| 11.3万円 | 1.5万円 | なし | 11.3万円 | 1LDK | 32.39m2 |
入居決定でお祝い金最大100,000円
Point
まずはお問い合わせ!
不動産会社は街のプロ、あなたに合った物件がきっと見つかります。
提供:賃貸・売買のアシスト江坂店(株)アシストOSAKA(SUUMO経由)

詳細情報 プレジオ緑地公園
物件紹介
プレジオ緑地公園は北大阪急行緑地公園駅から徒歩2分にあり、駅近で通勤通学に便利なマンションです。
このお部屋は2階以上に位置しているので、通行人や周囲の住人からの視線が気になりにくく、防犯面でも安心。建物のエントランスはオートロックがついており、インターホンにはTVモニタもついているため、相手の顔を確認してから来客対応することができます。
人気の角部屋で周囲の居住者の生活音も気になりにくく、また、フローリングのお部屋なのでお掃除もラクラク。キッチンはシステムキッチン仕様になっていますので、お料理好きの方にもぴったり。バス・トイレは別なので、のんびりお風呂タイムも楽しめるでしょう。また、雨の日でも浴室乾燥機を使えば、お洗濯も問題ありません。
通信設備面では、インターネットが無料で使えるので、月々の出費を抑えられるのも魅力です。また、BSアンテナ・CSアンテナがありCATVにも対応しているので、おうち時間も充実するでしょう(別途工事、BS・CS・CATVの契約料等が必要な場合あり)。
建物にはエレベーターがついているので、重い荷物があっても安心。共用部には宅配ボックスが設定されているので、不在の時にも荷物を受け取ることができます。また、ペット飼育の相談ができますので、あなたの大切な家族の一員も快適に暮らせるか、ぜひ確認してみてください。
コンビニまで徒歩7分の場所にあり、日用品や食料品のお買い物にも便利です。
このお部屋は2階以上に位置しているので、通行人や周囲の住人からの視線が気になりにくく、防犯面でも安心。建物のエントランスはオートロックがついており、インターホンにはTVモニタもついているため、相手の顔を確認してから来客対応することができます。
人気の角部屋で周囲の居住者の生活音も気になりにくく、また、フローリングのお部屋なのでお掃除もラクラク。キッチンはシステムキッチン仕様になっていますので、お料理好きの方にもぴったり。バス・トイレは別なので、のんびりお風呂タイムも楽しめるでしょう。また、雨の日でも浴室乾燥機を使えば、お洗濯も問題ありません。
通信設備面では、インターネットが無料で使えるので、月々の出費を抑えられるのも魅力です。また、BSアンテナ・CSアンテナがありCATVにも対応しているので、おうち時間も充実するでしょう(別途工事、BS・CS・CATVの契約料等が必要な場合あり)。
建物にはエレベーターがついているので、重い荷物があっても安心。共用部には宅配ボックスが設定されているので、不在の時にも荷物を受け取ることができます。また、ペット飼育の相談ができますので、あなたの大切な家族の一員も快適に暮らせるか、ぜひ確認してみてください。
コンビニまで徒歩7分の場所にあり、日用品や食料品のお買い物にも便利です。
お金・契約の情報
※「-」と表示されているものは、実際は料金が発生するものもございます。詳細はお問い合わせください。
| 家賃 | 11.3万円 | 管理費・共益費 | 1.5万円 |
|---|---|---|---|
| 敷金 | なし | 礼金 | 11.3万円 |
| 入居決定でお祝い金最大100,000円 | |||
| 保証金 | - | 償却・敷引 | - |
| 住宅保険料 | 1円 | 更新料 | - |
| その他費用 | 駐輪場利用料:550円 | ||
| 保証会社利用 | 利用可 | 保証会社名 | - |
| 保証会社費用 | - | 保証会社備考 | 総賃料の50%・更新1万円/年 連帯保証人無し相談可 |
| 契約形態 | - | 契約期間 | 2年 |
| 入居・引渡期間 | 2026年03月下旬 | 現況 | - |
| 入居可能条件 | 法人可、2人入居可、高齢者可、ペット相談 | ||
| 契約備考 | 鍵交換費用:33000 室内清掃費用:77000 その他設備/条件:室内洗濯機置き場、独立洗面台、防犯カメラ、シューズボックス | ||
部屋の情報
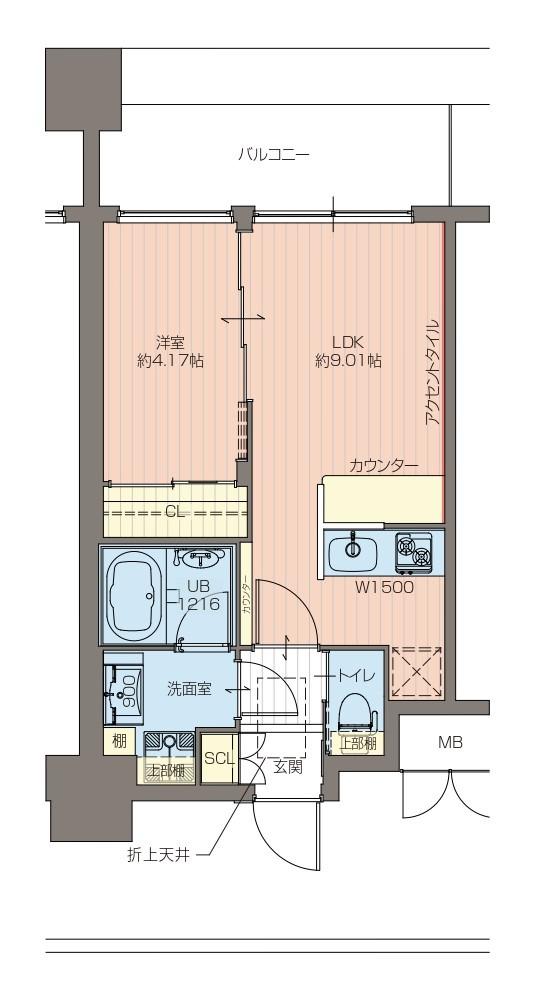
| 間取り | 1LDK | 専有面積 | 32.39m2 |
|---|---|---|---|
| 所在階 / 向き | 2階 / 西 | バルコニー面積 | - |
| 水道 / ガス | ガス【都市】 | ||
| 設備 | バス・トイレ別、オートロック、テレビドアホン、宅配ボックス、浴室乾燥機、追い焚き、インターネット対応、システムキッチン、カウンターキッチン、エアコン、エレベーター、温水洗浄便座、角部屋、バルコニー、2口コンロ、コンロ:ガス、CATV、CSアンテナ、BSアンテナ、インターネット使用料無料、給湯 | ||
| 当社物件ID | 122340678 | ||
建物の情報
| 建物名 | プレジオ緑地公園 | ||
|---|---|---|---|
| 所在地 | 大阪府豊中市東寺内町 | ||
| 交通 | 北大阪急行南北線 緑地公園駅 徒歩2分 | ||
| 階数 | 13階建 | 総戸数 | 96戸 |
| 築年月 | 2022年12月 / 築4年 | エレベーター | あり |
| 駐車場 | 空有 3.08万円/月 礼金1ヶ月要サイズ:全長5300・幅1950・高さ2100(屋根有2階のみ高さ1550) | バイク置き場 | - |
| 駐輪場 | あり | 管理人/管理会社 | - |
| 周辺環境 | コンビニ 徒歩7分(550m) 販売店 徒歩5分(339m) その他 ドラッグストア その他 公園 その他 銀行 その他 * | ||
| 建物種別 | マンション | 建物構造 | RC(鉄筋コンクリート) |
この部屋の取扱い不動産会社
| 会社名 | 大阪ハウスコム株式会社 江坂店 | ||
|---|---|---|---|
| 所在地 | 大阪府吹田市23-34第二梓ビル2階 | 交通 | - |
| 営業時間 | 10:00~18:00 | 定休日 | - |
| 免許番号 | 国土交通大臣(3)第8685号 | 取引態様 | 仲介 |
| 不動産会社管理番号 | HC5-3838272-201-0241 | 当社管理番号 | 468 |
| 所属団体 | 、 | ||
| 取扱い物件情報 | 物件詳細へ | ||
※各種情報と現状に差異がある場合は、現状優先となります。問い合わせをすることで、より詳しい条件、情報を確認する事ができます。
提供:大阪ハウスコム株式会社 江坂店
この物件が気になったら掲載期限まであと4日
プレジオ緑地公園に条件(家賃・エリア)が近い物件一覧
| 写真 | 家賃 管理費等 | 敷金 礼金 | 間取り 専有面積 | 築年数 | 最寄り駅 所在地 | キープ | 詳細 |
|---|---|---|---|---|---|---|---|
マンション レオネクストラ メイジュ天神橋(1K/4階) | |||||||
| 7.7万円 5,500円 | なし なし | 1K 21.11m2 | 築13年 | 大阪市谷町線 中崎町駅 徒歩7分 大阪市谷町線 天神橋筋六丁目駅 徒歩14分 大阪環状線 天満駅 徒歩20分 大阪府大阪市北区長柄中3丁目12-7 | 詳細を見る | ||
マンション グレイスマンション(3LDK/2階) | |||||||
| 8.6万円 4,000円 | なし 20万円 | 3LDK 69.72m2 | 築36年 | 阪急電鉄千里線 山田駅(大阪) 徒歩13分 大阪モノレール本線 山田駅(大阪) 徒歩14分 大阪モノレール彩都 公園東口駅 徒歩26分 大阪府吹田市山田東4丁目38-23 | 詳細を見る | ||
マンション オルキデア クオーレ(2LDK/3階) | |||||||
| 15.3万円 1.2万円 | 5万円 なし | 2LDK 68.75m2 | 新築 | 阪急電鉄京都線 上新庄駅 徒歩8分 阪急電鉄千里線 下新庄駅 徒歩13分 阪急電鉄京都線 相川駅 徒歩24分 大阪府大阪市東淀川区上新庄2丁目252-1-2-3-4-6-1 | 詳細を見る | ||
マンション スプランディッド京橋イースト(1K/8階) | |||||||
![]() | 8.65万円 8,000円 | なし 8.65万円 | 1K 27.6m2 | 築3年 | 大阪市今里筋線 鴫野駅 徒歩5分 大阪市長堀鶴見緑地 蒲生四丁目駅 徒歩10分 大阪府大阪市城東区鴫野東2丁目 | 詳細を見る | |
マンション プレサンスOSAKA江坂(1K/2階) | |||||||
| 8.45万円 1.1万円 | なし 8.45万円 | 1K 24.84m2 | 築13年 | 北大阪急行南北線 江坂駅 徒歩5分 阪急電鉄千里線 豊津駅(大阪) 徒歩17分 おおさか東線 南吹田駅 徒歩25分 大阪府吹田市広芝町5-34 | 詳細を見る | ||
アパート ALIVIS緑橋(1LDK/1階) | |||||||
![]() | 8.9万円 1万円 | なし なし | 1LDK 29.57m2 | 築1年 | 大阪市今里筋線 緑橋駅 徒歩5分 大阪環状線 大阪城公園駅 徒歩10分 大阪府大阪市城東区中浜2丁目 | 詳細を見る | |
マンション プレサンス天神橋筋六丁目ヴォワール(1DK/2階) | |||||||
| 8.66万円 8,400円 | なし 10万円 | 1DK 25.84m2 | 築5年 | 大阪市堺筋線 天神橋筋六丁目駅 徒歩7分 大阪市谷町線 天神橋筋六丁目駅 徒歩7分 大阪環状線 天満駅 徒歩16分 大阪府大阪市北区本庄東3丁目2-17 | 詳細を見る | ||
マンション クリアコートU(2DK/3階) | |||||||
| 6.8万円 5,000円 | なし 6.8万円 | 2DK 48m2 | 築36年 | 阪急電鉄京都線 上新庄駅 徒歩9分 大阪市今里筋線 だいどう豊里駅 徒歩12分 大阪市今里筋線 瑞光四丁目駅 徒歩15分 大阪府大阪市東淀川区豊新4丁目12-9 | 詳細を見る | ||
豊中市の町名から探す
豊中市の部屋を間取りから探す
豊中市の駅から探す
豊中市と隣接している市区町村から探す
- 豊中市(5,302)
- 大阪市都島区(2,040)
- 大阪市福島区(2,407)
- 大阪市此花区(411)
- 大阪市西区(4,886)
- 大阪市港区(1,331)
- 大阪市大正区(1,048)
- 大阪市天王寺区(1,449)
- 大阪市浪速区(3,839)
- 大阪市西淀川区(2,192)
- 大阪市東淀川区(4,945)
- 大阪市東成区(2,739)
- 大阪市生野区(1,801)
- 大阪市旭区(2,290)
- 大阪市城東区(2,367)
- 大阪市阿倍野区(1,512)
- 大阪市住吉区(2,089)
- 大阪市東住吉区(2,104)
- 大阪市西成区(744)
- 大阪市淀川区(5,483)
- 大阪市鶴見区(1,200)
- 大阪市住之江区(998)
- 大阪市平野区(1,871)
- 大阪市北区(5,569)
- 大阪市中央区(5,712)
- 池田市(1,647)
- 吹田市(6,389)
- 箕面市(1,732)


