賃貸マンション
THE GLOW MITA ザ・グロウ三田の賃貸物件情報(1DK/11階)
| 家賃 | 管理費等 | 敷金 | 礼金 | 間取り | 専有面積 |
|---|---|---|---|---|---|
| 21.5万円 | 1万円 | 21.5万円 | 21.5万円 | 1DK | 29.02m2 |
入居決定でお祝い金最大100,000円
- 保証金
- -
- 償却・敷引
- -
- 築年数
- 築2年
- 所在階
- 11階
- 向き
- -
Point
★システムキッチン★2口コンロ★追焚機能★浴室乾燥機★温水洗浄便座★独立洗面台★シューズボックス★エアコン★フローリング★TVドアホン★そらうみリアルエステートへお気軽にお問い合わせください!★
提供:(株)ユウキ・ホーム麻布十番サテライト店(SUUMO経由)

詳細情報 THE GLOW MITA ザ・グロウ三田
物件紹介
THE GLOW MITA ザ・グロウ三田は都営三田線三田駅から徒歩5分にあり、駅近で通勤通学に便利なマンションです。
このお部屋は2階以上に位置しているので、通行人や周囲の住人からの視線が気になりにくく、防犯面でも安心。建物のエントランスはオートロックがついており、インターホンにはTVモニタもついているため、相手の顔を確認してから来客対応することができます。
フローリングのお部屋なのでお掃除もラクラク。室内には人気のウォークインクローゼットがありますので、たくさんの荷物も効率的に収納ができます。キッチンはシステムキッチン仕様になっていますので、お料理好きの方にもぴったり。バス・トイレは別なので、のんびりお風呂タイムも楽しめるでしょう。また、雨の日でも浴室乾燥機を使えば、お洗濯も問題ありません。
通信設備面では、インターネットが無料で使えるので、月々の出費を抑えられるのも魅力です(別途工事等が必要な場合あり)。
建物にはエレベーターがついているので、重い荷物があっても安心。共用部には宅配ボックスが設定されているので、不在の時にも荷物を受け取ることができます。
このお部屋は2階以上に位置しているので、通行人や周囲の住人からの視線が気になりにくく、防犯面でも安心。建物のエントランスはオートロックがついており、インターホンにはTVモニタもついているため、相手の顔を確認してから来客対応することができます。
フローリングのお部屋なのでお掃除もラクラク。室内には人気のウォークインクローゼットがありますので、たくさんの荷物も効率的に収納ができます。キッチンはシステムキッチン仕様になっていますので、お料理好きの方にもぴったり。バス・トイレは別なので、のんびりお風呂タイムも楽しめるでしょう。また、雨の日でも浴室乾燥機を使えば、お洗濯も問題ありません。
通信設備面では、インターネットが無料で使えるので、月々の出費を抑えられるのも魅力です(別途工事等が必要な場合あり)。
建物にはエレベーターがついているので、重い荷物があっても安心。共用部には宅配ボックスが設定されているので、不在の時にも荷物を受け取ることができます。
お金・契約の情報
※「-」と表示されているものは、実際は料金が発生するものもございます。詳細はお問い合わせください。
| 家賃 | 21.5万円 | 管理費・共益費 | 1万円 |
|---|---|---|---|
| 敷金 | 21.5万円 | 礼金 | 21.5万円 |
| 入居決定でお祝い金最大100,000円 | |||
| 保証金 | - | 償却・敷引 | - |
| 住宅保険料 | - | 更新料 | - |
| 保証会社利用 | 必須 | 保証会社名 | - |
| 保証会社費用 | - | 保証会社備考 | 保証会社利用必 初回保証料:賃料等の50%※詳細はお問い合わせください |
| 契約形態 | - | 契約期間 | - |
| 入居・引渡期間 | - | 現況 | - |
| 契約備考 | 未入居/巡回管理/平面駐車場:月額41800円・敷金1ヶ月※空詳細要確認 駐輪場:220円/月※空詳細要確認 バイク置場:3300円/月、敷金1ヶ月※空詳細要確認 1階ワークラウンジ・会議室・事務所有り(有料・法人登記可)※詳細はお問い合わせください 合計3.3万円(内訳:鍵交換費用) 室内清掃費用 38500円エアコンクリーニング費用:22000円 1DK 単身者可 普通借家2年 損保【1.66万円】 バストイレ別、バルコニー、フローリング、TVインターホン、浴室乾燥機、オートロック、室内洗濯置、シューズボックス、システムキッチン、追焚機能浴室、温水洗浄便座、エレベーター、洗面所独立、洗面化粧台、2口コンロ、駐輪場、宅配ボックス、防犯カメラ、オートバス、ウォークインクロゼット、保証人不要、バイク置場、エアコン2台、ディンプルキー、ネット使用料不要、3駅以上利用可、3沿線以上利用可、駅徒歩5分以内、24時間ゴミ出し可、敷地内ごみ置き場、平面駐車場、都市ガス、保証会社利用可 入居日:'26年4月下旬 | ||
部屋の情報
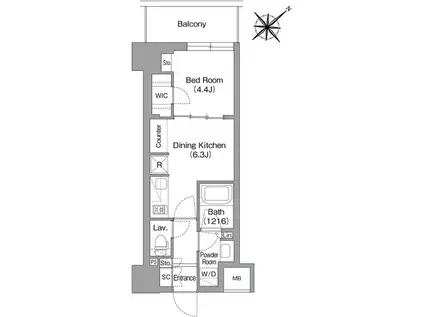
| 間取り | 1DK | 専有面積 | 29.02m2 |
|---|---|---|---|
| 所在階 / 向き | 11階 / - | バルコニー面積 | - |
| 水道 / ガス | - | ||
| 設備 | バス・トイレ別、2階以上、オートロック、テレビドアホン、宅配ボックス、浴室乾燥機、ウォークインクローゼット、追い焚き、インターネット対応、システムキッチン、エアコン、エレベーター、温水洗浄便座、バルコニー、フローリング、洗髪洗面化粧台、2口コンロ、インターネット使用料無料、洗濯機:室内 | ||
| 当社物件ID | 158565741 | ||
建物の情報
| 建物名 | THE GLOW MITA ザ・グロウ三田 | ||
|---|---|---|---|
| 所在地 | 東京都港区三田 | ||
| 交通 | 都営三田線 三田駅(東京) 徒歩5分 JR山手線 田町駅(東京) 徒歩7分 都営大江戸線 赤羽橋駅 徒歩14分 | ||
| 階数 | 12階建 | 総戸数 | - |
| 築年月 | 2025年02月 / 築2年 | エレベーター | あり |
| 駐車場 | 空有 41800円 | バイク置き場 | あり |
| 駐輪場 | あり | 管理人/管理会社 | - |
| 周辺環境 | その他 マルエツ プチ 三田二丁目店(スーパー)まで263m その他 ローソン 港三田三丁目店(コンビニ)まで96m その他 ヘルスケアセイジョー 三田店(ドラッグストア)まで132m | ||
| 建物種別 | マンション | 建物構造 | RC(鉄筋コンクリート) |
この部屋の取扱い不動産会社
| 会社名 | そらうみリアルエステート(株)賃貸事業本部(SUUMO経由) | ||
|---|---|---|---|
| 所在地 | 東京都港区麻布十番1-11-16 SHビル1階 | 交通 | - |
| 営業時間 | 午前9時30分~午後9時30分 | 定休日 | 無休 |
| 免許番号 | 東京都知事94395 | 取引態様 | 仲介 |
| 不動産会社管理番号 | 100490766637 | 当社管理番号 | 89 |
| 所属団体 | (公社)東京都宅地建物取引業協会会員 | ||
| 公正取引協議会 | (公社)首都圏不動産公正取引協議会加盟 | ||
| 取扱い物件情報 | 物件詳細へ | ||
※各種情報と現状に差異がある場合は、現状優先となります。問い合わせをすることで、より詳しい条件、情報を確認する事ができます。
提供:そらうみリアルエステート(株)賃貸事業本部(SUUMO経由)
この物件が気になったら掲載期限まであと11日
THE GLOW MITA ザ・グロウ三田に条件(家賃・エリア)が近い物件一覧
| 写真 | 家賃 管理費等 | 敷金 礼金 | 間取り 専有面積 | 築年数 | 最寄り駅 所在地 | キープ | 詳細 |
|---|---|---|---|---|---|---|---|
マンション RIDGE豊洲(1LDK/3階) | |||||||
![]() | 18.6万円 1.5万円 | なし なし | 1LDK 39.99m2 | 築6年 | 東京メトロ有楽町線 豊洲駅 徒歩11分 りんかい線 東雲駅(東京) 徒歩14分 新交通ゆりかもめ 新豊洲駅 徒歩23分 東京都江東区東雲 | 詳細を見る | |
マンション クレヴィスタ亀戸IV(1K/10階) | |||||||
![]() | 13.5万円 1.1万円 | なし 13.5万円 | 1K 25.56m2 | 築6年 | 総武・中央緩行線 亀戸駅 徒歩4分 東武鉄道亀戸線 亀戸駅 徒歩4分 総武本線 錦糸町駅 徒歩12分 東京都江東区亀戸2丁目 | 詳細を見る | |
マンション プレール・ドゥーク大島(2LDK/2階) | |||||||
![]() | 23.3万円 1.1万円 | なし 23.3万円 | 2LDK 53.96m2 | 築2年 | 都営新宿線 東大島駅 徒歩6分 都営新宿線 大島駅(東京) 徒歩8分 都営新宿線 西大島駅 徒歩18分 東京都江東区大島 | 詳細を見る | |
マンション あやめガーデン(2K/10階) | |||||||
![]() | 17.5万円 1万円 | 17.5万円 17.5万円 | 2K 42.26m2 | 築12年 | 東京メトロ日比谷線 築地駅 徒歩1分 東京メトロ有楽町線 新富町駅(東京) 徒歩6分 東京メトロ日比谷線 東銀座駅 徒歩6分 東京都中央区築地 | 詳細を見る | |
マンション コンフォリア・リヴ豊洲キャナル(2LDK/3階) | |||||||
![]() | 20.8万円 1.2万円 | 20.8万円 なし | 2LDK 46.4m2 | 築1年 | 東京メトロ有楽町線 豊洲駅 徒歩14分 JR京葉線 潮見駅 徒歩22分 東京メトロ有楽町線 辰巳駅 徒歩32分 東京都江東区枝川 | 詳細を見る | |
マンション パートナーシップアパートメント(2LDK/4階) | |||||||
![]() | 21.9万円 1.7万円 | 21.9万円 21.9万円 | 2LDK 53.18m2 | 築21年 | 東京メトロ東西線 茅場町駅 徒歩4分 東京メトロ日比谷線 八丁堀駅(東京) 徒歩6分 東京メトロ半蔵門線 水天宮前駅 徒歩10分 東京都中央区新川 | 詳細を見る | |
一戸建て 東京都新宿線 大島駅(東京) 徒歩7分 築77年(1DK) | |||||||
![]() | 15.8万円 なし | 15.8万円 15.8万円 | 1DK 27.91m2 | 築77年 | 東京都新宿線 大島駅(東京) 徒歩7分 東京都新宿線 西大島駅 徒歩7分 総武・中央緩行線 亀戸駅 徒歩11分 東京都江東区大島3丁目 | 詳細を見る | |
マンション ルフォンプログレ門前仲町マークス(1DK/2階) | |||||||
![]() | 14.9万円 1.5万円 | 14.9万円 なし | 1DK 27.25m2 | 築5年 | 東京メトロ東西線 門前仲町駅 徒歩6分 東京メトロ半蔵門線 清澄白河駅 徒歩12分 JR京葉線 越中島駅 徒歩16分 東京都江東区深川 | 詳細を見る | |








