賃貸マンション
ステラ御幸町の賃貸物件情報(1LDK/3階)
| 家賃 | 管理費等 | 敷金 | 礼金 | 間取り | 専有面積 |
|---|---|---|---|---|---|
| 20.5万円 | 1.6万円 | 20.5万円 | 41万円 | 1LDK | 62.31m2 |
入居決定でお祝い金最大100,000円
- 保証金
- -
- 償却・敷引
- -
- 築年数
- 築19年
- 所在階
- 3階
- 向き
- 東
Point
京都の台所錦市場なで徒歩2分フジイダイマルや新京極に寺町何処にでも徒歩で行けます
提供:(株)アルティム七条店(SUUMO経由)

詳細情報 ステラ御幸町
物件紹介
ステラ御幸町は阪急京都線京都河原町駅から徒歩5分にあり、駅近で通勤通学に便利なマンションです。
このお部屋は2階以上に位置しているので、通行人や周囲の住人からの視線が気になりにくく、防犯面でも安心。建物のエントランスはオートロックがついており、インターホンにはTVモニタもついているため、相手の顔を確認してから来客対応することができます。
おしゃれなデザイナーズ物件!フローリングのお部屋なのでお掃除もラクラク。キッチンはシステムキッチン仕様になっていますので、お料理好きの方にもぴったり。バス・トイレは別なので、のんびりお風呂タイムも楽しめるでしょう。また、雨の日でも浴室乾燥機を使えば、お洗濯も問題ありません。
通信設備面では、インターネットが無料で使えるので、月々の出費を抑えられるのも魅力です(別途工事等が必要な場合あり)。
共用部には宅配ボックスが設定されているので、不在の時にも荷物を受け取ることができます。
このお部屋は2階以上に位置しているので、通行人や周囲の住人からの視線が気になりにくく、防犯面でも安心。建物のエントランスはオートロックがついており、インターホンにはTVモニタもついているため、相手の顔を確認してから来客対応することができます。
おしゃれなデザイナーズ物件!フローリングのお部屋なのでお掃除もラクラク。キッチンはシステムキッチン仕様になっていますので、お料理好きの方にもぴったり。バス・トイレは別なので、のんびりお風呂タイムも楽しめるでしょう。また、雨の日でも浴室乾燥機を使えば、お洗濯も問題ありません。
通信設備面では、インターネットが無料で使えるので、月々の出費を抑えられるのも魅力です(別途工事等が必要な場合あり)。
共用部には宅配ボックスが設定されているので、不在の時にも荷物を受け取ることができます。
お金・契約の情報
※「-」と表示されているものは、実際は料金が発生するものもございます。詳細はお問い合わせください。
| 家賃 | 20.5万円 | 管理費・共益費 | 1.6万円 |
|---|---|---|---|
| 敷金 | 20.5万円 | 礼金 | 41万円 |
| 入居決定でお祝い金最大100,000円 | |||
| 保証金 | - | 償却・敷引 | - |
| 住宅保険料 | - | 更新料 | - |
| 保証会社利用 | 必須 | 保証会社名 | - |
| 保証会社費用 | - | 保証会社備考 | 保証会社利用必 フォーシーズ:221,000円 |
| 契約形態 | - | 契約期間 | - |
| 入居・引渡期間 | 即時 | 現況 | - |
| 契約備考 | 自転車駐輪可能です 合計0.99万円(内訳:タグキー代(1個)9900円) 1LDK 単身者可/二人入居可/事務所利用不可 普通借家2年 損保【1.5万円1年】 バストイレ別、エアコン、クロゼット、フローリング、シャワー付洗面台、TVインターホン、浴室乾燥機、オートロック、室内洗濯置、システムキッチン、温水洗浄便座、洗面所独立、駐輪場、宅配ボックス、即入居可、対面式キッチン、IHクッキングヒーター、敷金1ヶ月、オール電化、デザイナーズ、仲手0.55ヶ月、ネット使用料不要、保証金不要、3駅以上利用可、3沿線以上利用可、駅徒歩5分以内、24時間ゴミ出し可、LDK18畳以上、三面鏡付洗面化粧台、礼金2ヶ月、IT重説対応物件 | ||
部屋の情報
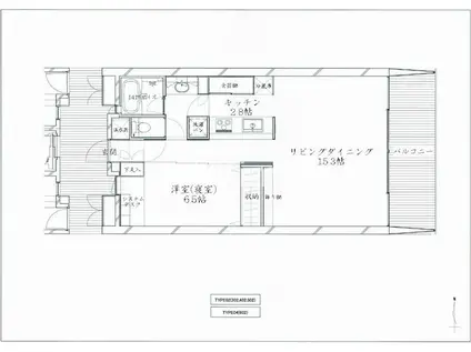
| 間取り | 1LDK | 専有面積 | 62.31m2 |
|---|---|---|---|
| 所在階 / 向き | 3階 / 東 | バルコニー面積 | - |
| 水道 / ガス | - | ||
| 設備 | バス・トイレ別、2階以上、オートロック、テレビドアホン、宅配ボックス、浴室乾燥機、インターネット対応、システムキッチン、エアコン、温水洗浄便座、フローリング、洗髪洗面化粧台、オール電化、コンロ:IH、デザイナーズ、インターネット使用料無料、洗濯機:室内 | ||
| 当社物件ID | 418962 | ||
建物の情報
| 建物名 | ステラ御幸町 | ||
|---|---|---|---|
| 所在地 | 京都府京都市中京区船屋町 | ||
| 交通 | 阪急京都線 京都河原町駅 徒歩5分 京阪本線 祇園四条駅 徒歩10分 地下鉄東西線 京都市役所前駅 徒歩12分 | ||
| 階数 | 6階建 | 総戸数 | 14戸 |
| 築年月 | 2007年11月 / 築19年 | エレベーター | - |
| 駐車場 | なし | バイク置き場 | - |
| 駐輪場 | あり | 管理人/管理会社 | - |
| 周辺環境 | その他 錦市場商店街(ショッピングセンター)まで96m その他 新京極商店街(ショッピングセンター)まで238m その他 寺町京極商店街(ショッピングセンター)まで356m その他 京都高島屋(ショッピングセンター)まで534m その他 大丸京都店(ショッピングセンター)まで533m その他 ファミリーマート 新京極蛸薬師店(コンビニ)まで98m | ||
| 建物種別 | マンション | 建物構造 | RC(鉄筋コンクリート) |
この部屋の取扱い不動産会社
| 会社名 | (株)アルティム七条店(SUUMO経由) | ||
|---|---|---|---|
| 所在地 | 京都府京都市東山区七条通大和大路西入西之門町 549 澤村ビル1F | 交通 | - |
| 営業時間 | 10:00-19:00 | 定休日 | 毎週水曜日 |
| 免許番号 | 京都府知事11894 | 取引態様 | 仲介 |
| 不動産会社管理番号 | 100488729251 | 当社管理番号 | 89 |
| 所属団体 | (公社)京都府宅地建物取引業協会会員 | ||
| 公正取引協議会 | (公社)近畿地区不動産公正取引協議会加盟 | ||
| 取扱い物件情報 | 物件詳細へ | ||
※各種情報と現状に差異がある場合は、現状優先となります。問い合わせをすることで、より詳しい条件、情報を確認する事ができます。
提供:(株)アルティム七条店(SUUMO経由)
この物件が気になったら掲載期限まであと11日
ステラ御幸町に条件(家賃・エリア)が近い物件一覧
| 写真 | 家賃 管理費等 | 敷金 礼金 | 間取り 専有面積 | 築年数 | 最寄り駅 所在地 | キープ | 詳細 |
|---|---|---|---|---|---|---|---|
マンション 京阪電気鉄道京阪線 清水五条駅 徒歩4分 築1年(1LDK/5階) | |||||||
![]() | 21.65万円 3.6万円 | なし 43.3万円 | 1LDK 58.05m2 | 築1年 | 京阪電気鉄道京阪線 清水五条駅 徒歩4分 阪急電鉄京都線 京都河原町駅 徒歩9分 京都府京都市下京区西橋詰町 | 詳細を見る | |
マンション 京都市烏丸線 烏丸御池駅 徒歩7分 築8年(1SDK/4階) | |||||||
![]() | 12.6万円 6,000円 | 10万円 25万円 | 1SDK 42.42m2 | 築8年 | 京都市烏丸線 烏丸御池駅 徒歩7分 京都市烏丸線 丸太町駅(京都市営) 徒歩7分 京都府京都市中京区天守町 | 詳細を見る | |
アパート 京都市東西線 二条城前駅 徒歩4分 築1年(1LDK/1階) | |||||||
![]() | 13.3万円 5,000円 | なし 26.6万円 | 1LDK 38.92m2 | 築1年 | 京都市東西線 二条城前駅 徒歩4分 京都市烏丸線 烏丸御池駅 徒歩9分 京都府京都市中京区鍛冶町 | 詳細を見る | |
アパート 京都市烏丸線 丸太町駅(京都市営) 徒歩10分 築13年(1SLDK/2階) | |||||||
![]() | 16.5万円 8,000円 | 5万円 25万円 | 1SLDK 68.76m2 | 築13年 | 京都市烏丸線 丸太町駅(京都市営) 徒歩10分 京阪電気鉄道鴨東線 神宮丸太町駅 徒歩10分 京都府京都市中京区達磨町 | 詳細を見る | |
マンション 京都市烏丸線 烏丸御池駅 徒歩7分 築11年(2LDK/2階) | |||||||
![]() | 16.2万円 5,000円 | 5万円 33万円 | 2LDK 57.33m2 | 築11年 | 京都市烏丸線 烏丸御池駅 徒歩7分 京都市烏丸線 丸太町駅(京都市営) 徒歩8分 京都府京都市中京区上松屋町 | 詳細を見る | |
マンション エギュー・ド・ブランシェ(3LDK/4階) | |||||||
![]() | 18万円 1.2万円 | 18万円 36万円 | 3LDK 79.78m2 | 築44年 | 京都市東西線 京都市役所前駅 徒歩8分 京都府京都市中京区海老屋町御幸町通三条下る | 詳細を見る | |
マンション 京都市烏丸線 四条駅(京都市営) 徒歩11分 築19年(3LDK/11階) | |||||||
![]() | 21.5万円 1.5万円 | なし 43万円 | 3LDK 75.22m2 | 築19年 | 京都市烏丸線 四条駅(京都市営) 徒歩11分 阪急電鉄京都線 烏丸駅 徒歩11分 京都府京都市中京区橋浦町 | 詳細を見る | |
マンション 京都市東西線 二条城前駅 徒歩3分 築36年(3SDK/9階) | |||||||
![]() | 19万円 1万円 | なし 38万円 | 3SDK 67.79m2 | 築36年 | 京都市東西線 二条城前駅 徒歩3分 京都市烏丸線 烏丸御池駅 徒歩8分 京都府京都市中京区押油小路町 | 詳細を見る | |









