賃貸アパート
サンライズ西つつじヶ丘の賃貸物件情報(ワンルーム/2階)
| 家賃 | 管理費等 | 敷金 | 礼金 | 間取り | 専有面積 |
|---|---|---|---|---|---|
| 10.4万円 | 3,500円 | 10.4万円 | 10.4万円 | ワンルーム | 36.32m2 |
入居決定でお祝い金最大100,000円
Point
調布市の物件はアパマンショップ三鷹店まで!
提供:アパマンショップ荻窪店

詳細情報 サンライズ西つつじヶ丘
物件紹介
サンライズ西つつじヶ丘は京王電鉄京王線つつじケ丘駅から徒歩11分にあるアパートです。
このお部屋は2階以上に位置しているので、通行人や周囲の住人からの視線が気になりにくく、防犯面でも安心。建物のエントランスはオートロックがついており、インターホンにはTVモニタもついているため、相手の顔を確認してから来客対応することができます。
おしゃれなデザイナーズ物件!キッチンはシステムキッチン仕様になっていますので、お料理好きの方にもぴったり。バス・トイレは別なので、のんびりお風呂タイムも楽しめるでしょう。また、雨の日でも浴室乾燥機を使えば、お洗濯も問題ありません。
通信設備面では、インターネット接続が可能です。また、BSアンテナがありCATVにも対応しているので、おうち時間も充実するでしょう(別途工事、契約料が必要な場合あり)。
共用部には宅配ボックスが設定されているので、不在の時にも荷物を受け取ることができます。
コンビニまで徒歩12分の場所にあり、日用品や食料品のお買い物にも便利です。
このお部屋は2階以上に位置しているので、通行人や周囲の住人からの視線が気になりにくく、防犯面でも安心。建物のエントランスはオートロックがついており、インターホンにはTVモニタもついているため、相手の顔を確認してから来客対応することができます。
おしゃれなデザイナーズ物件!キッチンはシステムキッチン仕様になっていますので、お料理好きの方にもぴったり。バス・トイレは別なので、のんびりお風呂タイムも楽しめるでしょう。また、雨の日でも浴室乾燥機を使えば、お洗濯も問題ありません。
通信設備面では、インターネット接続が可能です。また、BSアンテナがありCATVにも対応しているので、おうち時間も充実するでしょう(別途工事、契約料が必要な場合あり)。
共用部には宅配ボックスが設定されているので、不在の時にも荷物を受け取ることができます。
コンビニまで徒歩12分の場所にあり、日用品や食料品のお買い物にも便利です。
お金・契約の情報
※「-」と表示されているものは、実際は料金が発生するものもございます。詳細はお問い合わせください。
| 家賃 | 10.4万円 | 管理費・共益費 | 3,500円 |
|---|---|---|---|
| 敷金 | 10.4万円 | 礼金 | 10.4万円 |
| 入居決定でお祝い金最大100,000円 | |||
| 保証金 | - | 償却・敷引 | - |
| 住宅保険料 | 1.8万円(2年) | 更新料 | - |
| 保証会社利用 | 必須 | 保証会社名 | その他 |
| 保証会社費用 | - | 保証会社備考 | 「株式会社Casaまたは日本セーフティ株式会社」初回月額合計の50% |
| 契約形態 | - | 契約期間 | 2年 |
| 入居・引渡期間 | 2025年12月下旬 | 現況 | - |
| 入居可能条件 | 事務所可 | ||
| 契約備考 | 1年未満の解約の場合、短期解約違約金1ヶ月。ハウスクリーニング費は退去時借主負担。【TV】共用アンテナ。【残置物】居室照明×2。 鍵交換代(金額) 40700円 | ||
部屋の情報
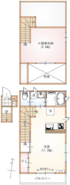
| 間取り | ワンルーム | 専有面積 | 36.32m2 |
|---|---|---|---|
| 間取り詳細 | 洋室(11.3帖)、S(8.6帖) | ||
| 所在階 / 向き | 2階 / 南 | バルコニー面積 | - |
| 水道 / ガス | ガス【都市】 | ||
| 設備 | バス・トイレ別、テレビドアホン、宅配ボックス、浴室乾燥機、追い焚き、インターネット対応、システムキッチン、温水洗浄便座、角部屋、バルコニー、フローリング、コンロ:IH、BSアンテナ、シャワー、給湯、洗濯機:室内、閑静な住宅街 | ||
| 当社物件ID | 28323063 | ||
建物の情報
| 建物名 | サンライズ西つつじヶ丘 | ||
|---|---|---|---|
| 所在地 | 東京都調布市西つつじケ丘1丁目 | ||
| 交通 | 京王電鉄京王線 つつじケ丘駅 徒歩11分 | ||
| 階数 | 2階建 | 総戸数 | 4戸 |
| 築年月 | 2018年09月 / 築8年 | エレベーター | - |
| 駐車場 | 空有 1.32万円/月 | バイク置き場 | - |
| 駐輪場 | あり | 管理人/管理会社 | - |
| 周辺環境 | 小学校 調布市立上ノ原小学校 徒歩8分(612m) その他 浄土真宗本願寺派光源寺 徒歩1分(66m) その他 ファミリーマート 徒歩5分(394m) その他 業務スーパー柴崎店 徒歩5分(399m) その他 調布西つつじケ丘郵便局 徒歩7分(549m) その他 セブンイレブン 徒歩8分(610m) その他 神代郵便局 徒歩9分(652m) その他 三鷹新川一郵便局 徒歩9分(657m) | ||
| 建物種別 | アパート | 建物構造 | 木造 |
この部屋の取扱い不動産会社
| 会社名 | アパマンショップ三鷹店 | ||
|---|---|---|---|
| 所在地 | 東京都三鷹市下連雀3丁目 27−15春木屋興産ビル3F | 交通 | 中央本線三鷹から徒歩1分 |
| 営業時間 | 09:30〜19:00 | 定休日 | 水曜日 |
| 免許番号 | 国土交通大臣(1)10927 | 取引態様 | 仲介 |
| 不動産会社管理番号 | 97467673 | 当社管理番号 | 4 |
| 所属団体 | (公社)東京都宅地建物取引業協会 | ||
| 公正取引協議会 | (公社) 首都圏不動産公正取引協議会加盟 | ||
| 取扱い物件情報 | 物件詳細へ | ||
※各種情報と現状に差異がある場合は、現状優先となります。問い合わせをすることで、より詳しい条件、情報を確認する事ができます。
提供:アパマンショップ三鷹店
この物件が気になったら掲載期限まであと12日
サンライズ西つつじヶ丘に条件(家賃・エリア)が近い物件一覧
| 写真 | 家賃 管理費等 | 敷金 礼金 | 間取り 専有面積 | 築年数 | 最寄り駅 所在地 | キープ | 詳細 |
|---|---|---|---|---|---|---|---|
マンション GRACE世田谷(1LDK/8階) | |||||||
![]() | 16.7万円 6,900円 | なし 30万円 | 1LDK 40.43m2 | 築8年 | 京王線 代田橋駅 徒歩5分 京王線 笹塚駅 徒歩9分 京王井の頭線 明大前駅 徒歩15分 東京都世田谷区大原 | 詳細を見る | |
マンション 三益ビル(2DK/3階) | |||||||
![]() | 14.5万円 5,000円 | 14.5万円 14.5万円 | 2DK 41.25m2 | 築49年 | 京王井の頭線 池ノ上駅 徒歩2分 京王井の頭線 下北沢駅 徒歩8分 小田急線 東北沢駅 徒歩10分 東京都世田谷区代沢 | 詳細を見る | |
マンション ベルファース駒沢三丁目(1DK/3階) | |||||||
![]() | 14.2万円 1万円 | 14.2万円 なし | 1DK 25.28m2 | 築3年 | 東急田園都市線 駒沢大学駅 徒歩12分 東急田園都市線 桜新町駅 徒歩12分 東急世田谷線 世田谷駅 徒歩18分 東京都世田谷区駒沢 | 詳細を見る | |
アパート アトリエ経堂(ワンルーム/2階) | |||||||
![]() | 8.5万円 2,000円 | 8.5万円 8.5万円 | ワンルーム 19.57m2 | 築17年 | 小田急線 経堂駅 徒歩5分 東急世田谷線 宮の坂駅 徒歩10分 小田急線 豪徳寺駅 徒歩17分 東京都世田谷区経堂 | 詳細を見る | |
マンション ハイム・カルミア(2DK/2階) | |||||||
![]() | 6.6万円 2,000円 | 6.6万円 なし | 2DK 38.88m2 | 築40年 | 京王線 中河原駅 徒歩19分 東京都府中市四谷 | 詳細を見る | |
マンション YSコート奥沢 ワイズコートオクサワ(1K/1階) | |||||||
![]() | 11.5万円 5,000円 | 11.5万円 17.25万円 | 1K 30.23m2 | 築14年 | 東急大井町線 九品仏駅 徒歩6分 東急大井町線 尾山台駅 徒歩9分 東急東横線 自由が丘駅(東京) 徒歩15分 東京都世田谷区奥沢 | 詳細を見る | |
アパート パークテラス・つつじヶ丘(1DK/1階) | |||||||
![]() | 9.5万円 3,000円 | 9.5万円 9.5万円 | 1DK 33.84m2 | 築8年 | 京王線 つつじケ丘駅 徒歩11分 京王線 柴崎駅 徒歩18分 京王線 仙川駅 徒歩21分 東京都調布市西つつじケ丘 | 詳細を見る | |
マンション マキシブ調布国領(1K/2階) | |||||||
![]() | 8.35万円 1万円 | なし 8.35万円 | 1K 25.81m2 | 築4年 | 京王線 布田駅 徒歩4分 京王線 国領駅 徒歩5分 京王線 調布駅 徒歩15分 東京都調布市国領町 | 詳細を見る | |








