賃貸マンション
赤坂 ザ レジデンスの賃貸物件情報(2LDK/10階)
| 家賃 | 管理費等 | 敷金 | 礼金 | 間取り | 専有面積 |
|---|---|---|---|---|---|
| 95万円 | なし | 380万円 | 190万円 | 2LDK | 98.37m2 |
入居決定でお祝い金最大100,000円
- 保証金
- -
- 償却・敷引
- -
- 築年数
- 築19年
- 所在階
- 10階
- 向き
- 北東
Point
■電子契約不可/HP掲載禁止/定借3年/再契約料1ヵ月/トランクルーム利用料を賃料に含む/ヒーツ利用料10000円を賃料に含む
提供:三井の賃貸レジデントファースト(株)プレミアムデスク(SUUMO経由)

詳細情報 赤坂 ザ レジデンス
物件紹介
赤坂 ザ レジデンスは東京メトロ千代田線赤坂駅から徒歩3分にあり、駅近で通勤通学に便利なマンションです。
このお部屋は2階以上に位置しているので通行人や周囲の住人からの視線が気になりにくく、建物のエントランスはオートロックがついているので防犯性が高くなっています。
こちらは楽器相談が可能な物件。楽器演奏をお考えの方はぜひ相談してみてください。バス・トイレ別の仕様で、のんびりお風呂タイムも楽しめます。また、浴室乾燥機を使えば、雨の日でもお洗濯は問題ありません。
通信設備面ではCATVに対応しているので、おうち時間も充実するでしょう(別途工事、契約料が必要な場合あり)。
床暖房があり、冬も足元から暖かく快適に過ごすことができます。建物にはエレベーターがついているので、重い荷物があっても安心。共用部には宅配ボックスが設定されているので、不在の時にも荷物を受け取ることができます。また、ペット飼育の相談ができますので、あなたの大切な家族の一員も快適に暮らせるか、ぜひ確認してみてください。
このお部屋は2階以上に位置しているので通行人や周囲の住人からの視線が気になりにくく、建物のエントランスはオートロックがついているので防犯性が高くなっています。
こちらは楽器相談が可能な物件。楽器演奏をお考えの方はぜひ相談してみてください。バス・トイレ別の仕様で、のんびりお風呂タイムも楽しめます。また、浴室乾燥機を使えば、雨の日でもお洗濯は問題ありません。
通信設備面ではCATVに対応しているので、おうち時間も充実するでしょう(別途工事、契約料が必要な場合あり)。
床暖房があり、冬も足元から暖かく快適に過ごすことができます。建物にはエレベーターがついているので、重い荷物があっても安心。共用部には宅配ボックスが設定されているので、不在の時にも荷物を受け取ることができます。また、ペット飼育の相談ができますので、あなたの大切な家族の一員も快適に暮らせるか、ぜひ確認してみてください。
お金・契約の情報
※「-」と表示されているものは、実際は料金が発生するものもございます。詳細はお問い合わせください。
| 家賃 | 95万円 | 管理費・共益費 | なし |
|---|---|---|---|
| 敷金 | 380万円 | 礼金 | 190万円 |
| 入居決定でお祝い金最大100,000円 | |||
| 保証金 | - | 償却・敷引 | - |
| 住宅保険料 | - | 更新料 | - |
| 保証会社利用 | 必須 | 保証会社名 | - |
| 保証会社費用 | - | 保証会社備考 | 保証会社利用必 初回保証委託料(最低20,000円):月額賃料等の50%、 2年目以降:9,600円/年 |
| 契約形態 | 定期借家 | 契約期間 | 3年 |
| 入居・引渡期間 | - | 現況 | - |
| 入居可能条件 | 楽器相談、ペット相談 | ||
| 契約備考 | 常駐管理 合計18.4万円(内訳:退去時の通常清掃費用183951円) 2LDK ペット相談/楽器相談/事務所利用不可 定期借家36ヶ月 損保【要】 バストイレ別、バルコニー、エアコン、クロゼット、浴室乾燥機、オートロック、室内洗濯置、シューズボックス、追焚機能浴室、エレベーター、宅配ボックス、CATV、防犯カメラ、ペット相談、IHクッキングヒーター、カードキー、洗濯機、床暖房、食器洗乾燥機、乾燥機、保証金不要、楽器相談、フロントサービス、3駅以上利用可、3沿線以上利用可、駅徒歩5分以内、駅徒歩10分以内、タワー型マンション、敷地内ごみ置き場、専有面積25坪以上、LDK18畳以上、礼金2ヶ月 入居日:'26年4月上旬 | ||
部屋の情報
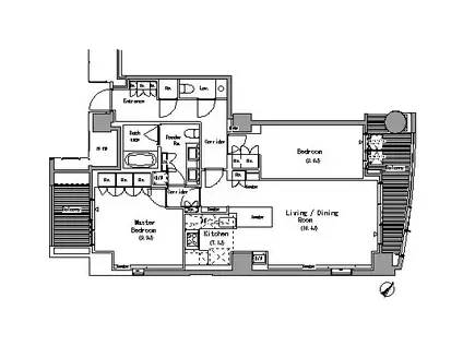
| 間取り | 2LDK | 専有面積 | 98.37m2 |
|---|---|---|---|
| 所在階 / 向き | 10階 / 北東 | バルコニー面積 | - |
| 水道 / ガス | - | ||
| 設備 | バス・トイレ別、2階以上、オートロック、宅配ボックス、浴室乾燥機、追い焚き、エアコン、エレベーター、バルコニー、タワーマンション、床暖房、コンロ:IH、CATV、洗濯機:室内 | ||
| 当社物件ID | 9516110 | ||
建物の情報
| 建物名 | 赤坂 ザ レジデンス | ||
|---|---|---|---|
| 所在地 | 東京都港区赤坂 | ||
| 交通 | 東京メトロ千代田線 赤坂駅(東京) 徒歩3分 東京メトロ銀座線 赤坂見附駅 徒歩9分 東京メトロ丸ノ内線 赤坂見附駅 徒歩9分 | ||
| 階数 | 地下1地上21階建 | 総戸数 | - |
| 築年月 | 2008年02月 / 築19年 | エレベーター | あり |
| 駐車場 | なし | バイク置き場 | - |
| 駐輪場 | - | 管理人/管理会社 | - |
| 建物種別 | マンション | 建物構造 | RC(鉄筋コンクリート) |
この部屋の取扱い不動産会社
| 会社名 | 三井の賃貸レジデントファースト(株)プレミアムデスク(SUUMO経由) | ||
|---|---|---|---|
| 所在地 | 東京都港区赤坂8-4-14 青山タワープレイス | 交通 | - |
| 営業時間 | 9:30~18:00 | 定休日 | 水曜日 |
| 免許番号 | 東京都知事96482 | 取引態様 | 仲介 |
| 不動産会社管理番号 | 100487173012 | 当社管理番号 | 89 |
| 所属団体 | (一社)不動産流通経営協会会員 | ||
| 公正取引協議会 | (公社)首都圏不動産公正取引協議会加盟 | ||
| 取扱い物件情報 | 物件詳細へ | ||
※各種情報と現状に差異がある場合は、現状優先となります。問い合わせをすることで、より詳しい条件、情報を確認する事ができます。
提供:三井の賃貸レジデントファースト(株)プレミアムデスク(SUUMO経由)
この物件が気になったら掲載期限まであと10日
赤坂 ザ レジデンスに条件(家賃・エリア)が近い物件一覧
| 写真 | 家賃 管理費等 | 敷金 礼金 | 間取り 専有面積 | 築年数 | 最寄り駅 所在地 | キープ | 詳細 |
|---|---|---|---|---|---|---|---|
マンション パークコート千代田一番町(2LDK/12階) | |||||||
![]() | 70万円 なし | 140万円 70万円 | 2LDK 73.22m2 | 築4年 | 東京メトロ半蔵門線 半蔵門駅 徒歩4分 東京メトロ有楽町線 麹町駅 徒歩7分 都営新宿線 市ケ谷駅 徒歩8分 東京都千代田区一番町 | 詳細を見る | |
マンション クラス青山(3LDK/21階) | |||||||
![]() | 127.7万円 なし | 255.4万円 なし | 3LDK 104.13m2 | 築6年 | 東京メトロ銀座線 表参道駅 徒歩5分 東京メトロ千代田線 表参道駅 徒歩5分 東京メトロ銀座線 外苑前駅 徒歩7分 東京都港区北青山 | 詳細を見る | |
マンション リーハウス高輪(3LDK/1階) | |||||||
![]() | 80万円 2万円 | 160万円 なし | 3LDK 195.43m2 | 築39年 | JR山手線 品川駅 徒歩10分 東京都品川区北品川 | 詳細を見る | |
マンション WORLD TOWER RESIDENCE(2LDK/30階) | |||||||
![]() | 85万円 5万円 | 170万円 85万円 | 2LDK 80.88m2 | 築2年 | 山手線 浜松町駅 徒歩2分 東京都浅草線 大門駅(東京) 徒歩4分 東京都港区浜松町2丁目 | 詳細を見る | |
マンション アルカサル目黒花房山(3LDK/4階) | |||||||
![]() | 69万円 3万円 | 69万円 69万円 | 3LDK 120.72m2 | 築40年 | 都営三田線 目黒駅 徒歩6分 東京メトロ南北線 目黒駅 徒歩6分 東急目黒線 目黒駅 徒歩6分 東京都品川区上大崎 | 詳細を見る | |
マンション THE CONOE 代官山(3LDK/8階) | |||||||
![]() | 68万円 5万円 | 68万円 68万円 | 3LDK 85.82m2 | 築11年 | 東急東横線 代官山駅 徒歩1分 東京メトロ日比谷線 恵比寿駅 徒歩6分 JR山手線 恵比寿駅 徒歩8分 東京都渋谷区恵比寿西 | 詳細を見る | |
マンション グランスイート麻布台ヒルトップタワー(2LDK/23階) | |||||||
![]() | 70万円 なし | 140万円 70万円 | 2LDK 76.71m2 | 築13年 | 東京メトロ南北線 六本木一丁目駅 徒歩7分 東京メトロ日比谷線 神谷町駅 徒歩8分 都営大江戸線 麻布十番駅 徒歩8分 東京都港区麻布台 | 詳細を見る | |
マンション 三田ガーデンヒルズ ノースヒル(2LDK/7階) | |||||||
![]() | 85万円 なし | 170万円 85万円 | 2LDK 68.9m2 | 築2年 | 東京メトロ南北線 麻布十番駅 徒歩5分 都営大江戸線 赤羽橋駅 徒歩5分 都営三田線 芝公園駅 徒歩10分 東京都港区三田 | 詳細を見る | |









