賃貸マンション
リブリ・津田沼の賃貸物件情報(1K/1階)
| 家賃 | 管理費等 | 敷金 | 礼金 | 間取り | 専有面積 |
|---|---|---|---|---|---|
| 7.5万円 | 4,000円 | なし | 7.5万円 | 1K | 26.08m2 |
入居決定でお祝い金最大100,000円
Point
共用部には宅配ボックスが備え付けられているため、対面で荷物を受け取る必要が無くなります。
提供:(有)ミライアン不動産(SUUMO経由)

詳細情報 リブリ・津田沼
物件紹介
リブリ・津田沼は京成本線京成津田沼駅から徒歩6分にあり、駅近で通勤通学に便利なマンションです。
このお部屋のインターホンにはTVモニタがついているため、相手の顔を確認してから来客対応することができます。
人気の南向きのお部屋。また、フローリングなのでお掃除もラクラク。キッチンはシステムキッチン仕様になっていますので、お料理好きの方にもぴったり。バス・トイレは別なので、のんびりお風呂タイムも楽しめるでしょう。また、雨の日でも浴室乾燥機を使えば、お洗濯も問題ありません。
通信設備面では、インターネット接続が可能です。また、BSアンテナ・CSアンテナがありCATVにも対応しているので、おうち時間も充実するでしょう(別途工事、契約料が必要な場合あり)。
共用部には宅配ボックスが設定されているので、不在の時にも荷物を受け取ることができます。
このお部屋のインターホンにはTVモニタがついているため、相手の顔を確認してから来客対応することができます。
人気の南向きのお部屋。また、フローリングなのでお掃除もラクラク。キッチンはシステムキッチン仕様になっていますので、お料理好きの方にもぴったり。バス・トイレは別なので、のんびりお風呂タイムも楽しめるでしょう。また、雨の日でも浴室乾燥機を使えば、お洗濯も問題ありません。
通信設備面では、インターネット接続が可能です。また、BSアンテナ・CSアンテナがありCATVにも対応しているので、おうち時間も充実するでしょう(別途工事、契約料が必要な場合あり)。
共用部には宅配ボックスが設定されているので、不在の時にも荷物を受け取ることができます。
お金・契約の情報
※「-」と表示されているものは、実際は料金が発生するものもございます。詳細はお問い合わせください。
| 家賃 | 7.5万円 | 管理費・共益費 | 4,000円 |
|---|---|---|---|
| 敷金 | なし | 礼金 | 7.5万円 |
| 入居決定でお祝い金最大100,000円 | |||
| 保証金 | - | 償却・敷引 | - |
| 住宅保険料 | 1円 | 更新料 | - |
| その他費用 | 室内消毒:1.65万円、7700円: | ||
| 保証会社利用 | 必須 | 保証会社名 | - |
| 保証会社費用 | - | 保証会社備考 | 初回保証料100% 月額1.1% 口座振替330円 |
| 契約形態 | - | 契約期間 | 2年 |
| 入居・引渡期間 | 即時 | 現況 | - |
| 契約備考 | 1年未満の解約の場合違約金1ケ月(賃料共益費) 月額(リブリクラブ(月額) 2200円) 鍵交換費用:22000 室内清掃費用:36300 その他設備/条件:室内洗濯機置き場、独立洗面台、クローゼット、シューズボックス | ||
部屋の情報
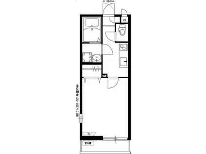
| 間取り | 1K | 専有面積 | 26.08m2 |
|---|---|---|---|
| 間取り詳細 | 洋室(7.8帖) | ||
| 所在階 / 向き | 1階 / 南東 | バルコニー面積 | - |
| 水道 / ガス | 水道【公営】、ガス【都市】 | ||
| 設備 | バス・トイレ別、テレビドアホン、宅配ボックス、浴室乾燥機、インターネット対応、システムキッチン、エアコン、温水洗浄便座、バルコニー、フローリング、2口コンロ、コンロ:IH、BSアンテナ、シャワー、給湯 | ||
| 当社物件ID | 8836398 | ||
建物の情報
| 建物名 | リブリ・津田沼 | ||
|---|---|---|---|
| 所在地 | 千葉県習志野市津田沼1丁目 | ||
| 交通 | 京成電鉄松戸線 新津田沼駅 徒歩7分 総武・中央緩行線 津田沼駅 徒歩9分 | ||
| 階数 | 3階建 | 総戸数 | - |
| 築年月 | 2013年03月 / 築14年 | エレベーター | - |
| 駐車場 | なし | バイク置き場 | - |
| 駐輪場 | あり | 管理人/管理会社 | - |
| 周辺環境 | 販売店 徒歩6分(478m) その他 ドラッグストア その他 公園 その他 銀行 その他 * | ||
| 建物種別 | マンション | 建物構造 | 鉄骨造 |
この部屋の取扱い不動産会社
| 会社名 | ハウスコム千葉株式会社 西船橋店 | ||
|---|---|---|---|
| 所在地 | 千葉県船橋市26-61階 | 交通 | - |
| 営業時間 | 10:00~18:00 | 定休日 | - |
| 免許番号 | 千葉県知事(1)第18235号 | 取引態様 | 仲介 |
| 不動産会社管理番号 | HC2-443888-103-0049 | 当社管理番号 | 468 |
| 所属団体 | 、 | ||
| 取扱い物件情報 | 物件詳細へ | ||
※各種情報と現状に差異がある場合は、現状優先となります。問い合わせをすることで、より詳しい条件、情報を確認する事ができます。
提供:ハウスコム千葉株式会社 西船橋店
この物件が気になったら掲載期限まであと5日
リブリ・津田沼に条件(家賃・エリア)が近い物件一覧
| 写真 | 家賃 管理費等 | 敷金 礼金 | 間取り 専有面積 | 築年数 | 最寄り駅 所在地 | キープ | 詳細 |
|---|---|---|---|---|---|---|---|
アパート リブリ・カーサシエテ(1K/1階) | |||||||
![]() | 6.2万円 4,000円 | なし 6.2万円 | 1K 26.08m2 | 築9年 | 千葉都市モノレール 穴川駅(千葉) 徒歩6分 千葉都市モノレール 天台駅 徒歩11分 千葉県千葉市稲毛区天台 | 詳細を見る | |
アパート ラ・ソラーナ(2LDK/2階) | |||||||
![]() | 7.5万円 5,000円 | なし 4万円 | 2LDK 61.28m2 | 築13年 | 千葉県千葉市若葉区加曽利町 | 詳細を見る | |
マンション レオパレスコーポ御代川Ⅱ(1K/3階) | |||||||
![]() | 8.1万円 7,000円 | なし 8.1万円 | 1K 19.87m2 | 築25年 | 総武・中央緩行線 船橋駅 徒歩13分 千葉県船橋市海神1丁目 | 詳細を見る | |
アパート ROBOT HOME 新検見川Ⅴ(1LDK/1階) | |||||||
![]() | 7.1万円 3,000円 | なし 7.1万円 | 1LDK 28.04m2 | 新築 | 京成電鉄千葉線 検見川駅 徒歩8分 千葉県千葉市花見川区検見川町2丁目 | 詳細を見る | |
アパート REGALEST 千葉駅(1LDK/1階) | |||||||
![]() | 7.1万円 3,000円 | なし なし | 1LDK 26.91m2 | 新築 | JR総武本線 東千葉駅 徒歩10分 千葉都市モノレール 栄町駅(千葉) 徒歩15分 JR総武線 千葉駅 徒歩21分 千葉県千葉市中央区祐光 | 詳細を見る | |
マンション ピーチヒル加茂(2LDK/2階) | |||||||
![]() | 7.8万円 7,000円 | なし 15.6万円 | 2LDK 66.8m2 | 築29年 | JR福知山線 川西池田駅 徒歩12分 阪急宝塚線 川西能勢口駅 徒歩15分 阪急宝塚線 雲雀丘花屋敷駅 徒歩17分 兵庫県川西市加茂 | 詳細を見る | |
アパート エトワール(1LDK/2階) | |||||||
![]() | 9万円 4,000円 | 9万円 9万円 | 1LDK 53.17m2 | 築8年 | 京成松戸線 薬園台駅 徒歩12分 東葉高速鉄道 飯山満駅 徒歩15分 京成松戸線 習志野駅 徒歩17分 千葉県船橋市飯山満町 | 詳細を見る | |
マンション パレス稲毛M(1LDK/4階) | |||||||
![]() | 8.5万円 5,000円 | 8.5万円 12.75万円 | 1LDK 31.54m2 | 築3年 | 京成千葉線 京成稲毛駅 徒歩2分 JR総武線 稲毛駅 徒歩6分 JR京葉線 稲毛海岸駅 徒歩22分 千葉県千葉市稲毛区稲毛東 | 詳細を見る | |




/105x80-f1-q70-wp1)



