賃貸アパート
フジパレス武庫之荘駅北II番館の賃貸物件情報(1LDK/1階)
| 家賃 | 管理費等 | 敷金 | 礼金 | 間取り | 専有面積 |
|---|---|---|---|---|---|
| 8.1万円 | 4,400円 | なし | 10万円 | 1LDK | 41.1m2 |
入居決定でお祝い金最大100,000円
- 保証金
- -
- 償却・敷引
- -
- 築年数
- 築3年
- 所在階
- 1階
- 向き
- 南
Point
ご来店者様全員に、クオカード2000円プレゼント!※1グループ1名様、期限3月31日まで。
提供:CLASiS 立花支店(株)オアシス(SUUMO経由)

詳細情報 フジパレス武庫之荘駅北II番館
物件紹介
フジパレス武庫之荘駅北II番館は阪急神戸線武庫之荘駅から徒歩7分にあり、駅近で通勤通学に便利なアパートです。
建物のエントランスはオートロックがついており、インターホンにはTVモニタもついているため、相手の顔を確認してから来客対応することができます。
おしゃれなデザイナーズ物件!人気の南向き・フローリングのお部屋。角部屋でもあるため、周囲の居住者の生活音も気になりにくい場所です。室内にはウォークインクローゼットがありますので、たくさんの荷物も効率的に収納ができます。キッチンはシステムキッチン仕様になっていますので、お料理好きの方にもぴったり。バス・トイレは別なので、のんびりお風呂タイムも楽しめるでしょう。また、雨の日でも浴室乾燥機を使えば、お洗濯も問題ありません。
通信設備面では、インターネットが無料で使えるので、月々の出費を抑えられるのも魅力です。また、BSアンテナ・CSアンテナがありCATVにも対応しているので、おうち時間も充実するでしょう(別途工事、BS・CS・CATVの契約料等が必要な場合あり)。
共用部には宅配ボックスが設定されているので、不在の時にも荷物を受け取ることができます。
建物のエントランスはオートロックがついており、インターホンにはTVモニタもついているため、相手の顔を確認してから来客対応することができます。
おしゃれなデザイナーズ物件!人気の南向き・フローリングのお部屋。角部屋でもあるため、周囲の居住者の生活音も気になりにくい場所です。室内にはウォークインクローゼットがありますので、たくさんの荷物も効率的に収納ができます。キッチンはシステムキッチン仕様になっていますので、お料理好きの方にもぴったり。バス・トイレは別なので、のんびりお風呂タイムも楽しめるでしょう。また、雨の日でも浴室乾燥機を使えば、お洗濯も問題ありません。
通信設備面では、インターネットが無料で使えるので、月々の出費を抑えられるのも魅力です。また、BSアンテナ・CSアンテナがありCATVにも対応しているので、おうち時間も充実するでしょう(別途工事、BS・CS・CATVの契約料等が必要な場合あり)。
共用部には宅配ボックスが設定されているので、不在の時にも荷物を受け取ることができます。
お金・契約の情報
※「-」と表示されているものは、実際は料金が発生するものもございます。詳細はお問い合わせください。
| 家賃 | 8.1万円 | 管理費・共益費 | 4,400円 |
|---|---|---|---|
| 敷金 | なし | 礼金 | 10万円 |
| 入居決定でお祝い金最大100,000円 | |||
| 保証金 | - | 償却・敷引 | - |
| 住宅保険料 | - | 更新料 | - |
| 保証会社利用 | 必須 | 保証会社名 | リクルートフォレントインシュア |
| 保証会社費用 | - | 保証会社備考 | オリコフォレントインシュア利用必 初回保証料 総賃料50% 月額保証料 1% 必須 (オリコフォレントインシュア) 初回保証料 総賃料50% 月額保証料 1% |
| 契約形態 | - | 契約期間 | - |
| 入居・引渡期間 | - | 現況 | - |
| 契約備考 | 初期費用、入居審査の不安など、その他お困りごと是非SumoSumoにご相談下さい★女性スタッフ対応も可能☆ 合計4.4万円(内訳:鍵交換費用1.1万円ルームクリーニング費用3.3万円) 1LDK 二人入居可 普通借家1年 損保【要】 バストイレ別、バルコニー、エアコン、クロゼット、フローリング、シャワー付洗面台、TVインターホン、浴室乾燥機、オートロック、室内洗濯置、陽当り良好、システムキッチン、南向き、角住戸、温水洗浄便座、脱衣所、洗面所独立、洗面化粧台、2口コンロ、駐輪場、宅配ボックス、CATV、外壁タイル張り、閑静な住宅地、2面採光、BS・CS、防犯カメラ、IHクッキングヒーター、全居室洋室、ウォークインクロゼット、デザイナーズ、エアコン2台、CS、ネット使用料不要、眺望良好、24時間換気システム、平坦地、敷地内ごみ置き場、都市ガス、洗面所にドア、南面バルコニー、BS、IT重説対応物件、通風良好 入居日:'26年2月下旬 | ||
部屋の情報
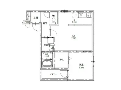
| 間取り | 1LDK | 専有面積 | 41.1m2 |
|---|---|---|---|
| 所在階 / 向き | 1階 / 南 | バルコニー面積 | - |
| 水道 / ガス | - | ||
| 設備 | バス・トイレ別、オートロック、テレビドアホン、宅配ボックス、浴室乾燥機、ウォークインクローゼット、インターネット対応、システムキッチン、エアコン、温水洗浄便座、南向き、角部屋、バルコニー、フローリング、洗髪洗面化粧台、2口コンロ、コンロ:IH、デザイナーズ、CATV、CSアンテナ、BSアンテナ、インターネット使用料無料、洗濯機:室内 | ||
| 当社物件ID | 145882686 | ||
建物の情報
| 建物名 | フジパレス武庫之荘駅北II番館 | ||
|---|---|---|---|
| 所在地 | 兵庫県尼崎市武庫之荘 | ||
| 交通 | 阪急神戸線 武庫之荘駅 徒歩7分 JR東海道本線 立花駅 徒歩32分 阪急神戸線 塚口駅(阪急) 徒歩33分 | ||
| 階数 | 3階建 | 総戸数 | 9戸 |
| 築年月 | 2023年12月 / 築3年 | エレベーター | - |
| 駐車場 | 近隣 100m15000円 | バイク置き場 | - |
| 駐輪場 | あり | 管理人/管理会社 | - |
| 周辺環境 | その他 尼崎武庫之荘郵便局(郵便局)まで107m その他 ローソン 武庫之荘四丁目店(コンビニ)まで131m その他 尼崎北警察署武庫之荘交番(警察署・交番)まで227m その他 ウエルシア訪問薬局尼崎店(ドラッグストア)まで305m その他 生活協同組合コープこうべ コープ武庫之荘(スーパー)まで371m その他 セブンイレブン 尼崎武庫之荘1丁目店(コンビニ)まで456m | ||
| 建物種別 | アパート | 建物構造 | 木造 |
この部屋の取扱い不動産会社
| 会社名 | (株)プラン・ドゥ・シーJR尼崎駅前店(SUUMO経由) | ||
|---|---|---|---|
| 所在地 | 兵庫県尼崎市潮江1-7-1-101 | 交通 | - |
| 営業時間 | 10:00~19:00 | 定休日 | 年中無休 |
| 免許番号 | 国土交通大臣9550 | 取引態様 | 仲介 |
| 不動産会社管理番号 | 100480127972 | 当社管理番号 | 89 |
| 所属団体 | (公社)全日本不動産協会兵庫県本部会員 | ||
| 公正取引協議会 | (公社)近畿地区不動産公正取引協議会加盟 | ||
| 取扱い物件情報 | 物件詳細へ | ||
※各種情報と現状に差異がある場合は、現状優先となります。問い合わせをすることで、より詳しい条件、情報を確認する事ができます。
提供:(株)プラン・ドゥ・シーJR尼崎駅前店(SUUMO経由)
この物件が気になったら掲載期限まであと12日
フジパレス武庫之荘駅北II番館に条件(家賃・エリア)が近い物件一覧
| 写真 | 家賃 管理費等 | 敷金 礼金 | 間取り 専有面積 | 築年数 | 最寄り駅 所在地 | キープ | 詳細 |
|---|---|---|---|---|---|---|---|
マンション LANI TERRACE NISHINOMIYA(3LDK/2階) | |||||||
![]() | 13万円 5,000円 | なし 26万円 | 3LDK 67.32m2 | 築38年 | 阪神本線 甲子園駅 徒歩17分 阪神本線 鳴尾・武庫川女子大前駅 徒歩24分 兵庫県西宮市浜甲子園 | 詳細を見る | |
マンション アリビオ立花(1K/3階) | |||||||
![]() | 6.5万円 7,000円 | なし 6.5万円 | 1K 24.73m2 | 築10年 | 東海道本線 立花駅 徒歩4分 阪神電鉄本線 出屋敷駅 徒歩30分 阪急電鉄神戸線 武庫之荘駅 徒歩31分 兵庫県尼崎市七松町1丁目 | 詳細を見る | |
アパート クレイノ大物(1K/2階) | |||||||
![]() | 6.2万円 5,000円 | なし 6.2万円 | 1K 24.84m2 | 築9年 | 阪神本線 大物駅 徒歩9分 阪神本線 尼崎駅(阪神) 徒歩15分 阪神本線 杭瀬駅 徒歩27分 兵庫県尼崎市東本町 | 詳細を見る | |
アパート フジパレス東園田公園番館(1LDK/3階) | |||||||
![]() | 7.4万円 5,400円 | なし 15万円 | 1LDK 36.06m2 | 築2年 | 阪急電鉄神戸線 園田駅 徒歩9分 福知山線 塚口駅(JR) 徒歩37分 東海道本線 尼崎駅(JR) 徒歩45分 兵庫県尼崎市東園田町6丁目 | 詳細を見る | |
アパート METEOR GRAND(1LDK/3階) | |||||||
![]() | 11.5万円 6,000円 | なし 23万円 | 1LDK 40.05m2 | 新築 | 阪急神戸線 武庫之荘駅 徒歩12分 JR東海道本線 立花駅 徒歩19分 JR東海道本線 甲子園口駅 徒歩26分 兵庫県尼崎市南武庫之荘 | 詳細を見る | |
マンション MAISON PREMIER (1LDK/6階) | |||||||
![]() | 7.9万円 8,800円 | なし なし | 1LDK 30.01m2 | 築1年 | 阪神電鉄本線 出屋敷駅 徒歩6分 阪神電鉄本線 尼崎駅(阪神) 徒歩13分 東海道本線 立花駅 徒歩37分 兵庫県尼崎市西本町8丁目 | 詳細を見る | |
アパート シャイン(1LDK/1階) | |||||||
![]() | 9.65万円 5,000円 | なし なし | 1LDK 40.32m2 | 築1年 | 阪神電鉄本線 尼崎センタープール前駅 徒歩9分 阪神電鉄本線 出屋敷駅 徒歩17分 阪神電鉄武庫川線 武庫川駅 徒歩23分 兵庫県尼崎市道意町6丁目 | 詳細を見る | |







