賃貸マンション
ガラ・シティ駒沢大学の賃貸物件情報(1K/8階)
| 家賃 | 管理費等 | 敷金 | 礼金 | 間取り | 専有面積 |
|---|---|---|---|---|---|
| 8.3万円 | 8,000円 | 8.3万円 | 16.6万円 | 1K | 22.77m2 |
入居決定でお祝い金最大100,000円
- 保証金
- -
- 償却・敷引
- -
- 築年数
- 築25年
- 所在階
- 8階
- 向き
- 南
Point
薬や日用品を買うのに便利なココカラファイン駒沢店まで397mです。浴室乾燥機を備え付けているので、浴室や洗濯物からスピーディーに湿気を除去してカビの発生を防げます。お気軽にお問い合わせ下さい。
提供:NAVI HOME(株)目黒店(SUUMO経由)

詳細情報 ガラ・シティ駒沢大学
物件紹介
ガラ・シティ駒沢大学は東急田園都市線桜新町駅から徒歩9分にあり、駅近で通勤通学に便利なマンションです。
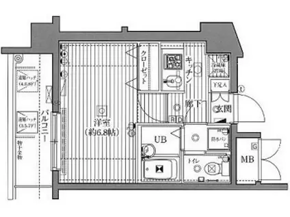
このお部屋は2階以上に位置しているので、通行人や周囲の住人からの視線が気になりにくく、防犯面でも安心。建物のエントランスはオートロックがついており、インターホンにはTVモニタもついているため、相手の顔を確認してから来客対応することができます。
人気の南向き・フローリングのお部屋。角部屋でもあるため、周囲の居住者の生活音も気になりにくい場所です。キッチンはシステムキッチン仕様になっていますので、お料理好きの方にもぴったり。バス・トイレは別なので、のんびりお風呂タイムも楽しめるでしょう。また、雨の日でも浴室乾燥機を使えば、お洗濯も問題ありません。
建物にはエレベーターがついているので、重い荷物があっても安心。共用部には宅配ボックスが設定されているので、不在の時にも荷物を受け取ることができます。
このお部屋は2階以上に位置しているので、通行人や周囲の住人からの視線が気になりにくく、防犯面でも安心。建物のエントランスはオートロックがついており、インターホンにはTVモニタもついているため、相手の顔を確認してから来客対応することができます。
人気の南向き・フローリングのお部屋。角部屋でもあるため、周囲の居住者の生活音も気になりにくい場所です。キッチンはシステムキッチン仕様になっていますので、お料理好きの方にもぴったり。バス・トイレは別なので、のんびりお風呂タイムも楽しめるでしょう。また、雨の日でも浴室乾燥機を使えば、お洗濯も問題ありません。
建物にはエレベーターがついているので、重い荷物があっても安心。共用部には宅配ボックスが設定されているので、不在の時にも荷物を受け取ることができます。
お金・契約の情報
※「-」と表示されているものは、実際は料金が発生するものもございます。詳細はお問い合わせください。
| 家賃 | 8.3万円 | 管理費・共益費 | 8,000円 |
|---|---|---|---|
| 敷金 | 8.3万円 | 礼金 | 16.6万円 |
| 入居決定でお祝い金最大100,000円 | |||
| 保証金 | - | 償却・敷引 | - |
| 住宅保険料 | - | 更新料 | - |
| 保証会社利用 | 必須 | 保証会社名 | - |
| 保証会社費用 | - | 保証会社備考 | 保証会社利用必 賃料等の0.5ヶ月分 月額保証料:1.2% |
| 契約形態 | - | 契約期間 | - |
| 入居・引渡期間 | 即時 | 現況 | - |
| 契約備考 | ※退去時にエアコンクリーニング費用13200円(税込)、ルームクリーニング費用38500円(税込)が発生します 合計2.31万円(内訳:鍵交換代2.31万円) 更新料 新賃料1.00ヶ月分 1K 普通借家2年 損保【2万円2年】 バストイレ別、バルコニー、エアコン、ガスコンロ対応、クロゼット、フローリング、TVインターホン、浴室乾燥機、オートロック、室内洗濯置、シューズボックス、システムキッチン、南向き、角住戸、温水洗浄便座、エレベーター、2口コンロ、宅配ボックス、即入居可、最上階、防犯カメラ、グリル付、全居室洋室、敷金1ヶ月、全居室フローリング、2沿線利用可、耐震構造、2駅利用可、3駅以上利用可、駅徒歩10分以内、24時間ゴミ出し可、敷地内ごみ置き場、全居室6畳以上、都市ガス、玄関収納 | ||
部屋の情報
| 間取り | 1K | 専有面積 | 22.77m2 |
|---|---|---|---|
| 所在階 / 向き | 8階 / 南 | バルコニー面積 | - |
| 水道 / ガス | - | ||
| 設備 | バス・トイレ別、2階以上、オートロック、テレビドアホン、宅配ボックス、浴室乾燥機、システムキッチン、エアコン、エレベーター、温水洗浄便座、南向き、角部屋、バルコニー、フローリング、2口コンロ、コンロ:ガス、洗濯機:室内 | ||
| 当社物件ID | 160042544 | ||
建物の情報
| 建物名 | ガラ・シティ駒沢大学 | ||
|---|---|---|---|
| 所在地 | 東京都世田谷区駒沢 | ||
| 交通 | 東急田園都市線 桜新町駅 徒歩9分 東急田園都市線 駒沢大学駅 徒歩10分 東急世田谷線 世田谷駅 徒歩23分 | ||
| 階数 | 8階建 | 総戸数 | - |
| 築年月 | 2001年08月 / 築25年 | エレベーター | あり |
| 駐車場 | なし | バイク置き場 | - |
| 駐輪場 | - | 管理人/管理会社 | - |
| 周辺環境 | その他 セブンイレブン 世田谷駒沢4丁目店(コンビニ)まで195m その他 ココカラファイン 駒沢店(ドラッグストア)まで397m その他 まいばすけっと 駒沢4丁目店(スーパー)まで26m その他 ロイヤルホスト駒沢店(飲食店)まで791m その他 天下一品 駒沢店(飲食店)まで809m その他 大東京信用組合 三軒茶屋支店(銀行)まで2325m | ||
| 建物種別 | マンション | 建物構造 | RC(鉄筋コンクリート) |
この部屋の取扱い不動産会社
| 会社名 | NAVI HOME(株)恵比寿2nd(SUUMO経由) | ||
|---|---|---|---|
| 所在地 | 東京都渋谷区広尾1-1-39 恵比寿プライムスクエアタワー3階 | 交通 | - |
| 営業時間 | 9:00~21:00 | 定休日 | 定休日なし |
| 免許番号 | 東京都知事107196 | 取引態様 | 仲介 |
| 不動産会社管理番号 | 100477525813 | 当社管理番号 | 89 |
| 所属団体 | (公社)東京都宅地建物取引業協会会員 | ||
| 公正取引協議会 | (公社)首都圏不動産公正取引協議会加盟 | ||
| 取扱い物件情報 | 物件詳細へ | ||
※各種情報と現状に差異がある場合は、現状優先となります。問い合わせをすることで、より詳しい条件、情報を確認する事ができます。
提供:NAVI HOME(株)恵比寿2nd(SUUMO経由)
この物件が気になったら掲載期限まであと11日
ガラ・シティ駒沢大学に条件(家賃・エリア)が近い物件一覧
| 写真 | 家賃 管理費等 | 敷金 礼金 | 間取り 専有面積 | 築年数 | 最寄り駅 所在地 | キープ | 詳細 |
|---|---|---|---|---|---|---|---|
アパート サン ヴィータ(1K/2階) | |||||||
![]() | 8.8万円 5,000円 | 8.8万円 なし | 1K 18.95m2 | 築6年 | 京浜急行電鉄本線 京急蒲田駅 徒歩6分 京浜急行電鉄本線 梅屋敷駅(東京) 徒歩10分 東京都大田区蒲田3丁目 | 詳細を見る | |
マンション カスクハイム1号・2号(1K/2階) | |||||||
![]() | 5.8万円 2,000円 | 5.8万円 なし | 1K 15.86m2 | 築37年 | 京急本線 梅屋敷駅(東京) 徒歩8分 京急本線 大森町駅 徒歩14分 京急本線 京急蒲田駅 徒歩16分 東京都大田区大森中 | 詳細を見る | |
アパート ヴェリテ・アイケイ(1K/1階) | |||||||
![]() | 5.8万円 2,000円 | 5.8万円 なし | 1K 20.83m2 | 築33年 | 京浜急行電鉄本線 大森町駅 徒歩7分 京浜急行電鉄本線 梅屋敷駅(東京) 徒歩9分 東京都大田区大森西5丁目 | 詳細を見る | |
マンション SUN RESIDENCE(1K/4階) | |||||||
![]() | 9.5万円 7,000円 | なし 14.25万円 | 1K 26.02m2 | 築10年 | 京急空港線 穴守稲荷駅 徒歩2分 京急空港線 天空橋駅 徒歩11分 京急空港線 大鳥居駅 徒歩11分 東京都大田区羽田 | 詳細を見る | |
マンション ルーブル千鳥町(1K/3階) | |||||||
![]() | 8.6万円 なし | なし 8.6万円 | 1K 20.16m2 | 築25年 | 東急池上線 千鳥町駅 徒歩2分 東急多摩川線 下丸子駅 徒歩6分 東急多摩川線 武蔵新田駅 徒歩9分 東京都大田区千鳥 | 詳細を見る | |
マンション HYS BRILLER大森北(1K/3階) | |||||||
![]() | 10.4万円 8,000円 | なし 10.4万円 | 1K 25.3m2 | 築8年 | 京浜急行電鉄本線 平和島駅 徒歩7分 京浜急行電鉄本線 大森海岸駅 徒歩8分 京浜東北・根岸線 大森駅(東京) 徒歩15分 東京都大田区大森北3丁目 | 詳細を見る | |
マンション フラットJY(ワンルーム/2階) | |||||||
![]() | 6.2万円 2,000円 | 6.2万円 6.2万円 | ワンルーム 19.5m2 | 築33年 | 京浜急行電鉄空港線 糀谷駅 徒歩4分 京浜急行電鉄本線 京急蒲田駅 徒歩13分 東京都大田区南蒲田3丁目 | 詳細を見る | |
アパート パールハイツ(ワンルーム/2階) | |||||||
![]() | 5.6万円 2,000円 | 5.6万円 なし | ワンルーム 16.97m2 | 築16年 | 東急池上線 蓮沼駅 徒歩10分 JR京浜東北線 蒲田駅 徒歩12分 東急池上線 池上駅 徒歩16分 東京都大田区西蒲田 | 詳細を見る | |








