賃貸マンション
エステート大通の賃貸物件情報(1K/4階)
| 家賃 | 管理費等 | 敷金 | 礼金 | 間取り | 専有面積 |
|---|---|---|---|---|---|
| 3.2万円 | 6,400円 | 3.2万円 | なし | 1K | 24.84m2 |
入居決定でお祝い金最大100,000円
- 保証金
- -
- 償却・敷引
- -
- 築年数
- 築47年
- 所在階
- 4階
- 向き
- 東
Point
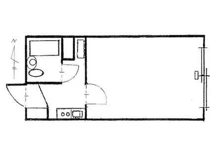
1K 24.84平米・経済的な灯油ストーブ、灯油ボイラー・フローリング・家具・家電付き
提供:(株)アパマン・プラザ(SUUMO経由)

詳細情報 エステート大通
物件紹介
エステート大通は地下鉄東西線西18丁目駅から徒歩1分にあり、駅近で通勤通学に便利なマンションです。
このお部屋は2階以上に位置しているので、通行人や周囲の住人からの視線が気になりにくく、防犯面でも安心です。
フローリングのお部屋なのでお掃除もラクラク。キッチンはシステムキッチン仕様になっていますので、お料理好きの方にもぴったり。
通信設備面では、インターネット接続が可能です。また、BSアンテナもありますので、おうち時間も充実するでしょう(別途工事、契約料が必要な場合あり)。
建物にはエレベーターがついているので、重い荷物があっても安心。
このお部屋は2階以上に位置しているので、通行人や周囲の住人からの視線が気になりにくく、防犯面でも安心です。
フローリングのお部屋なのでお掃除もラクラク。キッチンはシステムキッチン仕様になっていますので、お料理好きの方にもぴったり。
通信設備面では、インターネット接続が可能です。また、BSアンテナもありますので、おうち時間も充実するでしょう(別途工事、契約料が必要な場合あり)。
建物にはエレベーターがついているので、重い荷物があっても安心。
お金・契約の情報
※「-」と表示されているものは、実際は料金が発生するものもございます。詳細はお問い合わせください。
| 家賃 | 3.2万円 | 管理費・共益費 | 6,400円 |
|---|---|---|---|
| 敷金 | 3.2万円 | 礼金 | なし |
| 入居決定でお祝い金最大100,000円 | |||
| 保証金 | - | 償却・敷引 | - |
| 住宅保険料 | - | 更新料 | - |
| 保証会社利用 | 利用可 | 保証会社名 | 日本セーフティー |
| 保証会社費用 | - | 保証会社備考 | 日本セーフティー利用可 契約時に賃料の50%(最低2万円)更新時に1万円 保証人がいない場合に保証会社利用。 |
| 契約形態 | - | 契約期間 | - |
| 入居・引渡期間 | 即時 | 現況 | - |
| 契約備考 | 通勤管理/エステート大通は地下鉄東西線の「大通西18丁目」駅徒歩1分、市電停「西15丁目」まで徒歩4分で交通の便がとてもよく、西18丁目界隈は札幌医科大学、専門学校などがあります。また、病院などの医療施設や公共施設も整っている地区です。ローソン、セイコーマート、もあります。徒歩4分で北海道立近代美術館、その横には知事公館があり大通公園にも歩いて行けます。そして円山公園へも徒歩圏内です。 室内はワンル 合計3.74万円(内訳:水廻消毒料(税込)2.86万円事務手数料(税込)0.88万円) 1K 普通借家2年 損保【1.1万円1年】 ガスコンロ対応、クロゼット、フローリング、室内洗濯置、陽当り良好、システムキッチン、エレベーター、2口コンロ、光ファイバー、即入居可、礼金不要、照明付、分譲賃貸、灯油暖房、保証人不要、冷蔵庫、仲介手数料不要、敷金1ヶ月、2沿線利用可、駅まで平坦、洗濯機、保証金不要、灯油ボイラー、平坦地、電子レンジ、ベッド、家電付、家具付、カーテン付、2駅利用可、3駅以上利用可、駅徒歩5分以内、駅徒歩10分以内、日勤管理、都市ガス、BS、年内入居可、年度内入居可、保証会社利用可、全室照明付、テレビ、ダイニングテーブル・デスク | ||
部屋の情報
| 間取り | 1K | 専有面積 | 24.84m2 |
|---|---|---|---|
| 所在階 / 向き | 4階 / 東 | バルコニー面積 | - |
| 水道 / ガス | - | ||
| 設備 | 2階以上、インターネット対応、システムキッチン、エレベーター、フローリング、2口コンロ、コンロ:ガス、BSアンテナ、洗濯機:室内 | ||
| 当社物件ID | 100999471 | ||
建物の情報
| 建物名 | エステート大通 | ||
|---|---|---|---|
| 所在地 | 北海道札幌市中央区大通西 | ||
| 交通 | 地下鉄東西線 西18丁目駅 徒歩1分 札幌市電 西15丁目駅 徒歩4分 地下鉄東西線 円山公園駅 徒歩10分 | ||
| 階数 | 6階建 | 総戸数 | 35戸 |
| 築年月 | 1979年12月 / 築47年 | エレベーター | あり |
| 駐車場 | なし | バイク置き場 | - |
| 駐輪場 | - | 管理人/管理会社 | - |
| 周辺環境 | その他 北海道芸術高校札幌サテライトキャンパス(高校・高専)まで150m その他 セイコーマート 大通店(コンビニ)まで60m その他 ローソン 札幌大通西十九丁目店(コンビニ)まで130m その他 北海道立札幌医科大学(大学・短大)まで385m その他 北海道立近代美術館(その他)まで490m その他 NTT東日本札幌病院 診療案内(病院)まで500m | ||
| 建物種別 | マンション | 建物構造 | RC(鉄筋コンクリート) |
この部屋の取扱い不動産会社
| 会社名 | (株)アパマン・プラザ(SUUMO経由) | ||
|---|---|---|---|
| 所在地 | 北海道札幌市中央区南九条西4-1-12 | 交通 | - |
| 営業時間 | 9:10~18:30 | 定休日 | 日曜日 |
| 免許番号 | 北海道知事石狩3992 | 取引態様 | 仲介 |
| 不動産会社管理番号 | 100484153723 | 当社管理番号 | 89 |
| 所属団体 | (公社)北海道宅地建物取引業協会会員 | ||
| 公正取引協議会 | (一社)北海道不動産公正取引協議会加盟 | ||
| 取扱い物件情報 | 物件詳細へ | ||
※各種情報と現状に差異がある場合は、現状優先となります。問い合わせをすることで、より詳しい条件、情報を確認する事ができます。
提供:(株)アパマン・プラザ(SUUMO経由)
この物件が気になったら掲載期限まであと10日
エステート大通に条件(家賃・エリア)が近い物件一覧
| 写真 | 家賃 管理費等 | 敷金 礼金 | 間取り 専有面積 | 築年数 | 最寄り駅 所在地 | キープ | 詳細 |
|---|---|---|---|---|---|---|---|
一戸建て 北海道小樽市 築57年(4LDK) | |||||||
![]() | 3.5万円 なし | なし 3.5万円 | 4LDK 91.9m2 | 築57年 | 北海道小樽市長橋5丁目 | 詳細を見る | |
アパート グレースコート(ワンルーム/4階) | |||||||
![]() | 2.2万円 3,000円 | なし なし | ワンルーム 14.48m2 | 築19年 | 北海道石狩市花川南五条5丁目 | 詳細を見る | |
アパート ライムライトⅠ(ワンルーム/1階) | |||||||
![]() | 3万円 なし | なし 3万円 | ワンルーム 20m2 | 築32年 | 函館本線 小樽駅 徒歩13分 北海道小樽市緑1丁目 | 詳細を見る | |
マンション ロードサイド24(ワンルーム/4階) | |||||||
![]() | 4万円 3,000円 | なし なし | ワンルーム 22.3m2 | 築41年 | 札幌市軌道線 石山通駅 徒歩5分 北海道札幌市中央区南二十四条西11丁目 | 詳細を見る | |
マンション パワービル大麻駅前(ワンルーム/5階) | |||||||
![]() | 3.1万円 3,000円 | なし なし | ワンルーム 30.5m2 | 築38年 | JR函館本線 大麻駅 徒歩1分 北海道江別市文京台東町 | 詳細を見る | |
アパート リベラ95(2LDK/1階) | |||||||
![]() | 4.5万円 なし | なし なし | 2LDK 52.47m2 | 築31年 | 北海道小樽市オタモイ3丁目 | 詳細を見る | |
マンション パークヒルズ沢町(2LDK/4階) | |||||||
![]() | 4.4万円 3,000円 | 4.4万円 なし | 2LDK 36.5m2 | 築35年 | 函館本線 大麻駅 徒歩12分 北海道江別市大麻沢町 | 詳細を見る | |
アパート ハイツグリーンヒル(1LDK/2階) | |||||||
![]() | 5万円 3,000円 | 5万円 なし | 1LDK 37.7m2 | 築29年 | 北海道北広島市大曲緑ヶ丘1丁目 | 詳細を見る | |









