賃貸マンション
京急本線 京急新子安駅 徒歩6分 10階建 築15年の賃貸物件情報(1LDK/5階)
| 家賃 | 管理費等 | 敷金 | 礼金 | 間取り | 専有面積 |
|---|---|---|---|---|---|
| 12.5万円 | 1.5万円 | 12.5万円 | 12.5万円 | 1LDK | 40.03m2 |
入居決定でお祝い金最大100,000円
- 保証金
- -
- 償却・敷引
- -
- 築年数
- 築15年
- 所在階
- 5階
- 向き
- 北西
Point
室内設備は洗面所独立・浴室乾燥機などが揃っており、とても充実しています。共用部には宅配ボックスが備え付けられているため、対面で荷物を受け取る必要がなくなります。
提供:(株)未来企画本店(SUUMO経由)

詳細情報 京急本線 京急新子安駅 徒歩6分 10階建 築15年
物件紹介
京急本線京急新子安駅から徒歩6分にあり、駅近で通勤通学に便利なマンションです。
このお部屋は2階以上に位置しているので、通行人や周囲の住人からの視線が気になりにくく、防犯面でも安心。建物のエントランスはオートロックがついており、インターホンにはTVモニタもついているため、相手の顔を確認してから来客対応することができます。
おしゃれなデザイナーズ物件!人気の角部屋で周囲の居住者の生活音も気になりにくく、また、フローリングのお部屋なのでお掃除もラクラク。キッチンはシステムキッチン仕様になっていますので、お料理好きの方にもぴったり。バス・トイレは別なので、のんびりお風呂タイムも楽しめるでしょう。また、雨の日でも浴室乾燥機を使えば、お洗濯も問題ありません。
建物にはエレベーターがついているので、重い荷物があっても安心。共用部には宅配ボックスが設定されているので、不在の時にも荷物を受け取ることができます。
このお部屋は2階以上に位置しているので、通行人や周囲の住人からの視線が気になりにくく、防犯面でも安心。建物のエントランスはオートロックがついており、インターホンにはTVモニタもついているため、相手の顔を確認してから来客対応することができます。
おしゃれなデザイナーズ物件!人気の角部屋で周囲の居住者の生活音も気になりにくく、また、フローリングのお部屋なのでお掃除もラクラク。キッチンはシステムキッチン仕様になっていますので、お料理好きの方にもぴったり。バス・トイレは別なので、のんびりお風呂タイムも楽しめるでしょう。また、雨の日でも浴室乾燥機を使えば、お洗濯も問題ありません。
建物にはエレベーターがついているので、重い荷物があっても安心。共用部には宅配ボックスが設定されているので、不在の時にも荷物を受け取ることができます。
お金・契約の情報
※「-」と表示されているものは、実際は料金が発生するものもございます。詳細はお問い合わせください。
| 家賃 | 12.5万円 | 管理費・共益費 | 1.5万円 |
|---|---|---|---|
| 敷金 | 12.5万円 | 礼金 | 12.5万円 |
| 入居決定でお祝い金最大100,000円 | |||
| 保証金 | - | 償却・敷引 | - |
| 住宅保険料 | - | 更新料 | - |
| 保証会社利用 | 必須 | 保証会社名 | - |
| 保証会社費用 | - | 保証会社備考 | 保証会社利用必 期間:2年 初期;月額賃料・共益費等の50%。月額;月額賃料・共益費等の1%。外国籍の場合;初期;月額賃料・共益費等の60%、月額;月額賃料・共益費等2%。 |
| 契約形態 | - | 契約期間 | - |
| 入居・引渡期間 | 即時 | 現況 | - |
| 契約備考 | 全物件初期費用分割可能。当店は地元で30年営業している不動産総合会社です!全業者の掲載されている物件を一括してご紹介はもちろん、ネット掲載前の未公開物件が店内には多数ございます!貸主との距離が近い物件につきましては申込後の家賃交渉など全力で交渉させて頂きます!また関東で最も安い引越し業者と提携しておりますのでお申し込み時にご紹介も可能です!お部屋の事なら些細な事でもお気軽にご相談下さい! 合計4.4万円(内訳:ライフサポートクラブ2.2万円鍵交換代2.2万円) 更新料 新賃料1.00ヶ月分 自治会費 月額200円 1LDK 普通借家2年 損保【2万円2年】 バストイレ別、エアコン、ガスコンロ対応、フローリング、TVインターホン、浴室乾燥機、オートロック、室内洗濯置、陽当り良好、シューズボックス、システムキッチン、追焚機能浴室、角住戸、温水洗浄便座、エレベーター、洗面所独立、2口コンロ、駐輪場、宅配ボックス、閑静な住宅地、照明付、バイク置場、デザイナーズ、仲手0.55ヶ月、ディンプルキー、眺望良好、都市ガス | ||
部屋の情報
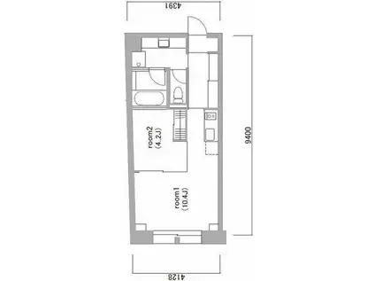
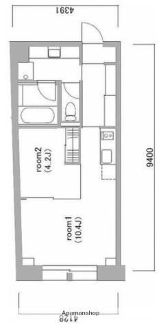
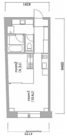
| 間取り | 1LDK | 専有面積 | 40.03m2 |
|---|---|---|---|
| 所在階 / 向き | 5階 / 北西 | バルコニー面積 | - |
| 水道 / ガス | - | ||
| 設備 | バス・トイレ別、2階以上、オートロック、テレビドアホン、宅配ボックス、浴室乾燥機、追い焚き、システムキッチン、エアコン、エレベーター、温水洗浄便座、角部屋、フローリング、洗髪洗面化粧台、2口コンロ、コンロ:ガス、デザイナーズ、洗濯機:室内 | ||
| 当社物件ID | 15127541 | ||
建物の情報
| 建物名 | 京急本線 京急新子安駅 徒歩6分 10階建 築15年 | ||
|---|---|---|---|
| 所在地 | 神奈川県横浜市神奈川区子安通 | ||
| 交通 | 京急本線 京急新子安駅 徒歩6分 JR京浜東北線 新子安駅 徒歩9分 JR横浜線 大口駅 徒歩19分 | ||
| 階数 | 地下1地上10階建 | 総戸数 | 46戸 |
| 築年月 | 2011年02月 / 築15年 | エレベーター | あり |
| 駐車場 | 空有 22000円 | バイク置き場 | あり |
| 駐輪場 | あり | 管理人/管理会社 | - |
| 周辺環境 | その他 まいばすけっと 子安駅前店(スーパー)まで993m その他 MEGAドン・キホーテUNY 横浜大口店(その他)まで1426m その他 大戸屋ごはん処 シァルプラット東神奈川店(飲食店)まで2619m その他 マクドナルド 東神奈川駅店(飲食店)まで2603m その他 セブンイレブン 横浜松見町3丁目店(コンビニ)まで2962m その他 maruetsu(マルエツ) 東神奈川店(スーパー)まで2696m | ||
| 建物種別 | マンション | 建物構造 | RC(鉄筋コンクリート) |
この部屋の取扱い不動産会社
| 会社名 | (株)未来企画桜木町店(SUUMO経由) | ||
|---|---|---|---|
| 所在地 | 神奈川県横浜市中区宮川町2-55-1ルリエ横浜宮川町2階 | 交通 | - |
| 営業時間 | 10:00~19:00 | 定休日 | 年末年始、水曜日不定休 |
| 免許番号 | 神奈川県知事17616 | 取引態様 | 仲介 |
| 不動産会社管理番号 | 100474265140 | 当社管理番号 | 89 |
| 所属団体 | (公社)神奈川県宅地建物取引業協会会員 | ||
| 公正取引協議会 | (公社)首都圏不動産公正取引協議会加盟 | ||
| 取扱い物件情報 | 物件詳細へ | ||
※各種情報と現状に差異がある場合は、現状優先となります。問い合わせをすることで、より詳しい条件、情報を確認する事ができます。
提供:(株)未来企画桜木町店(SUUMO経由)
この物件が気になったら掲載期限まであと10日
京急本線 京急新子安駅 徒歩6分 10階建 築15年に条件(家賃・エリア)が近い物件一覧
| 写真 | 家賃 管理費等 | 敷金 礼金 | 間取り 専有面積 | 築年数 | 最寄り駅 所在地 | キープ | 詳細 |
|---|---|---|---|---|---|---|---|
マンション アルカン・メール 藤沢(1LDK/3階) | |||||||
![]() | 13.9万円 1.45万円 | 13.9万円 13.9万円 | 1LDK 45.13m2 | 新築 | JR東海道本線 藤沢駅 徒歩11分 小田急江ノ島線 藤沢本町駅 徒歩15分 江ノ島電鉄線 石上駅 徒歩19分 神奈川県藤沢市藤沢 | 詳細を見る | |
マンション ディアーナ川崎大師(ワンルーム/5階) | |||||||
![]() | 8.6万円 1万円 | なし 12.9万円 | ワンルーム 25.2m2 | 築2年 | 京急大師線 川崎大師駅 徒歩4分 神奈川県川崎市川崎区大師駅前 | 詳細を見る | |
マンション ミラージュ新子安(1K/4階) | |||||||
![]() | 8.6万円 8,000円 | なし 8.6万円 | 1K 24.49m2 | 築14年 | 京急本線 子安駅 徒歩6分 JR京浜東北線 新子安駅 徒歩10分 京急本線 京急新子安駅 徒歩10分 神奈川県横浜市神奈川区入江 | 詳細を見る | |
マンション ドルフィンハイツ II(3DK/3階) | |||||||
![]() | 10.5万円 5,000円 | 10.5万円 10.5万円 | 3DK 48m2 | 築52年 | 京急本線 八丁畷駅 徒歩5分 JR南武線 川崎新町駅 徒歩9分 京急本線 鶴見市場駅 徒歩12分 神奈川県川崎市川崎区池田 | 詳細を見る | |
マンション ガーラ・クレスタ川崎(2K/9階) | |||||||
![]() | 9.6万円 9,000円 | 9.6万円 19.2万円 | 2K 25.51m2 | 築2年 | 京急本線 京急川崎駅 徒歩8分 JR京浜東北線 川崎駅 徒歩10分 京急大師線 港町駅 徒歩14分 神奈川県川崎市川崎区榎町 | 詳細を見る | |
アパート H.Aホライゾン(1K/3階) | |||||||
![]() | 8.2万円 3,000円 | なし なし | 1K 20.18m2 | 築5年 | 京浜急行電鉄大師線 小島新田駅 徒歩8分 神奈川県川崎市川崎区殿町3丁目 | 詳細を見る | |
マンション スパシエイラーレ横浜(ワンルーム/3階) | |||||||
![]() | 7.7万円 1万円 | なし なし | ワンルーム 21.61m2 | 築6年 | 京急本線 京急新子安駅 徒歩9分 JR京浜東北線 新子安駅 徒歩10分 京急本線 生麦駅 徒歩10分 神奈川県横浜市鶴見区生麦 | 詳細を見る | |







