賃貸アパート
GREEN COURTの賃貸物件情報(1K/2階)
| 家賃 | 管理費等 | 敷金 | 礼金 | 間取り | 専有面積 |
|---|---|---|---|---|---|
| 7.8万円 | なし | 7.8万円 | 7.8万円 | 1K | 28.01m2 |
入居決定でお祝い金最大100,000円
- 保証金
- -
- 償却・敷引
- -
- 築年数
- 築12年
- 所在階
- 2階
- 向き
- -
Point
オンラインにて申込みから契約までのお手続きも可能です。入居日が合わずにお悩みの方、契約金のお見積もりや室内写真のご要望などお気軽にお問い合わせください。初期費用の分割払いも承ります。
提供:(株)エールーム上野店(SUUMO経由)

詳細情報 GREEN COURT
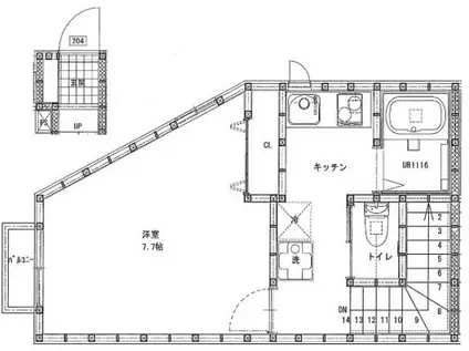
物件紹介
GREEN COURTは東京メトロ千代田線北千住駅から徒歩12分にあるアパートです。
このお部屋は2階以上に位置しているので、通行人や周囲の住人からの視線が気になりにくく、防犯面でも安心です。
人気の角部屋で周囲の居住者の生活音も気になりにくく、また、フローリングのお部屋なのでお掃除もラクラク。キッチンはシステムキッチン仕様になっていますので、お料理好きの方にもぴったり。また、バス・トイレは別で、のんびりお風呂タイムも楽しめるでしょう。
このお部屋は2階以上に位置しているので、通行人や周囲の住人からの視線が気になりにくく、防犯面でも安心です。
人気の角部屋で周囲の居住者の生活音も気になりにくく、また、フローリングのお部屋なのでお掃除もラクラク。キッチンはシステムキッチン仕様になっていますので、お料理好きの方にもぴったり。また、バス・トイレは別で、のんびりお風呂タイムも楽しめるでしょう。
お金・契約の情報
※「-」と表示されているものは、実際は料金が発生するものもございます。詳細はお問い合わせください。
| 家賃 | 7.8万円 | 管理費・共益費 | なし |
|---|---|---|---|
| 敷金 | 7.8万円 | 礼金 | 7.8万円 |
| 入居決定でお祝い金最大100,000円 | |||
| 保証金 | - | 償却・敷引 | - |
| 住宅保険料 | - | 更新料 | - |
| 保証会社利用 | 必須 | 保証会社名 | - |
| 保証会社費用 | - | 保証会社備考 | 保証会社利用必 初回保証料:総賃料の50パーセント 月額保証料:800円 |
| 契約形態 | - | 契約期間 | - |
| 入居・引渡期間 | 即時 | 現況 | - |
| 契約備考 | 初期費用の分割・クレジットカード決済可能です!お気軽にご相談下さい。退去時室内クリーニング代(66000円)借主負担。短期違約金として、半年未満の解約は賃料等の1ヶ月となり、1年未満の解約は賃料等の0.5ヶ月となります。 合計3.3万円(内訳:鍵交換代3.3万円) 更新料 新賃料1.00ヶ月分 1K 普通借家2年 損保【1万円2年】 バストイレ別、バルコニー、エアコン、クロゼット、フローリング、室内洗濯置、シューズボックス、システムキッチン、角住戸、温水洗浄便座、即入居可、2面採光、最上階、IHクッキングヒーター、2沿線利用可、保証金不要、2駅利用可、3駅以上利用可、3沿線以上利用可、敷地内ごみ置き場、初期費用カード決済可 | ||
部屋の情報
| 間取り | 1K | 専有面積 | 28.01m2 |
|---|---|---|---|
| 所在階 / 向き | 2階 / - | バルコニー面積 | - |
| 水道 / ガス | - | ||
| 設備 | バス・トイレ別、2階以上、システムキッチン、エアコン、温水洗浄便座、角部屋、バルコニー、フローリング、コンロ:IH、洗濯機:室内 | ||
| 当社物件ID | 58451476 | ||
建物の情報
| 建物名 | GREEN COURT | ||
|---|---|---|---|
| 所在地 | 東京都足立区千住大川町 | ||
| 交通 | 東京メトロ千代田線 北千住駅 徒歩12分 京成本線 千住大橋駅 徒歩21分 東武伊勢崎線 小菅駅 徒歩26分 | ||
| 階数 | 2階建 | 総戸数 | 8戸 |
| 築年月 | 2014年11月 / 築12年 | エレベーター | - |
| 駐車場 | なし | バイク置き場 | - |
| 駐輪場 | - | 管理人/管理会社 | - |
| 周辺環境 | その他 北千住駅(その他)まで1141m その他 小菅駅(その他)まで1991m その他 千住大橋(その他)まで1701m その他 おっ母さん 北千住店(スーパー)まで689m その他 ローソン 北千住駅西口店(コンビニ)まで1032m その他 どらっくぱぱす 堀切菖蒲園店(ドラッグストア)まで3492m | ||
| 建物種別 | アパート | 建物構造 | 木造 |
この部屋の取扱い不動産会社
| 会社名 | (株)エールーム上野店(SUUMO経由) | ||
|---|---|---|---|
| 所在地 | 東京都台東区上野6-7-16 古谷ビル8階 | 交通 | - |
| 営業時間 | 10:00~19:00 | 定休日 | 毎週水曜日(祝日の場合は営業) |
| 免許番号 | 国土交通大臣9710 | 取引態様 | 仲介 |
| 不動産会社管理番号 | 100492927507 | 当社管理番号 | 89 |
| 所属団体 | (公社)東京都宅地建物取引業協会会員 | ||
| 公正取引協議会 | (公社)首都圏不動産公正取引協議会加盟 | ||
| 取扱い物件情報 | 物件詳細へ | ||
※各種情報と現状に差異がある場合は、現状優先となります。問い合わせをすることで、より詳しい条件、情報を確認する事ができます。
提供:(株)エールーム上野店(SUUMO経由)
この物件が気になったら掲載期限まであと11日
GREEN COURTに条件(家賃・エリア)が近い物件一覧
| 写真 | 家賃 管理費等 | 敷金 礼金 | 間取り 専有面積 | 築年数 | 最寄り駅 所在地 | キープ | 詳細 |
|---|---|---|---|---|---|---|---|
マンション 藤美マンション(2DK/1階) | |||||||
![]() | 8.3万円 なし | なし なし | 2DK 40m2 | 築35年 | 京成金町線 京成金町駅 徒歩27分 JR常磐線 亀有駅 徒歩39分 東京都葛飾区水元 | 詳細を見る | |
マンション 押上パークスクエア(ワンルーム/7階) | |||||||
![]() | 10.2万円 5,000円 | なし なし | ワンルーム 35.32m2 | 築35年 | 東武伊勢崎線 曳舟駅 徒歩3分 京成押上線 京成曳舟駅 徒歩6分 京成押上線 押上駅 徒歩10分 東京都墨田区押上 | 詳細を見る | |
アパート パラッツオ ビアンカ(2LDK/3階) | |||||||
![]() | 12.35万円 4,100円 | なし 18.53万円 | 2LDK 66.02m2 | 新築 | 東武伊勢崎線 竹ノ塚駅 徒歩35分 東京都足立区花畑 | 詳細を見る | |
アパート ハーモニーテラス一ツ家IX(ワンルーム/2階) | |||||||
![]() | 5.95万円 4,000円 | なし なし | ワンルーム 18.08m2 | 築3年 | つくばエクスプレス 六町駅 徒歩10分 つくばエクスプレス 青井駅 徒歩16分 東京メトロ千代田線 北綾瀬駅 徒歩20分 東京都足立区一ツ家 | 詳細を見る | |
アパート コーポ橋本(ワンルーム/2階) | |||||||
![]() | 5.8万円 2,000円 | なし なし | ワンルーム 18.78m2 | 築39年 | 東武伊勢崎・大師線 竹ノ塚駅 徒歩4分 東京都足立区西竹の塚2丁目 | 詳細を見る | |
マンション フリージア梅島(1LDK/2階) | |||||||
![]() | 8.6万円 1.2万円 | 8.6万円 8.6万円 | 1LDK 29.28m2 | 築1年 | 東武伊勢崎線 梅島駅 徒歩10分 東武伊勢崎線 五反野駅 徒歩10分 東武伊勢崎線 小菅駅 徒歩22分 東京都足立区梅田 | 詳細を見る | |
マンション IXO熊野前駅(1DK/1階) | |||||||
![]() | 11.2万円 5,000円 | なし 11.2万円 | 1DK 30.25m2 | 築1年 | 東京都荒川線 東尾久三丁目駅 徒歩4分 東京都荒川区東尾久6丁目 | 詳細を見る | |
マンション 蓮芽ビル(1DK/5階) | |||||||
![]() | 9万円 5,000円 | 9万円 なし | 1DK 30m2 | 築53年 | 都営新宿線 菊川駅(東京) 徒歩2分 都営大江戸線 森下駅(東京) 徒歩11分 東京メトロ半蔵門線 清澄白河駅 徒歩17分 東京都墨田区菊川 | 詳細を見る | |







/105x80-f1-q70-wp1)
