賃貸マンション
パークアクシス浅草橋2の賃貸物件情報(1LDK/2階)
| 家賃 | 管理費等 | 敷金 | 礼金 | 間取り | 専有面積 |
|---|---|---|---|---|---|
| 19.4万円 | 1.5万円 | 19.4万円 | 19.4万円 | 1LDK | 40.27m2 |
入居決定でお祝い金最大100,000円
- 保証金
- -
- 償却・敷引
- -
- 築年数
- 築9年
- 所在階
- 2階
- 向き
- 南東
Point
駅近くの便利な立地 複数路線利用可 南東向きのお部屋
提供:株式会社サンコーホーム(賃貸スモッカ経由)

詳細情報 パークアクシス浅草橋2
物件紹介
パークアクシス浅草橋2は総武・中央緩行線浅草橋駅から徒歩2分にあり、駅近で通勤通学に便利なマンションです。
このお部屋は2階以上に位置しているので通行人や周囲の住人からの視線が気になりにくく、建物のエントランスはオートロックがついているので防犯性が高くなっています。
フローリングのお部屋なのでお掃除もラクラク。室内には人気のウォークインクローゼットがありますので、たくさんの荷物も効率的に収納ができます。キッチンはシステムキッチン仕様になっていますので、お料理好きの方にもぴったり。バス・トイレは別なので、のんびりお風呂タイムも楽しめるでしょう。また、雨の日でも浴室乾燥機を使えば、お洗濯も問題ありません。
通信設備面では、インターネット接続が可能です。また、BSアンテナ・CSアンテナもありますので、おうち時間も充実するでしょう(別途工事、契約料が必要な場合あり)。
床暖房があり、冬も足元から暖かく快適に過ごすことができます。建物にはエレベーターがついているので、重い荷物があっても安心。共用部には宅配ボックスが設定されているので、不在の時にも荷物を受け取ることができます。
このお部屋は2階以上に位置しているので通行人や周囲の住人からの視線が気になりにくく、建物のエントランスはオートロックがついているので防犯性が高くなっています。
フローリングのお部屋なのでお掃除もラクラク。室内には人気のウォークインクローゼットがありますので、たくさんの荷物も効率的に収納ができます。キッチンはシステムキッチン仕様になっていますので、お料理好きの方にもぴったり。バス・トイレは別なので、のんびりお風呂タイムも楽しめるでしょう。また、雨の日でも浴室乾燥機を使えば、お洗濯も問題ありません。
通信設備面では、インターネット接続が可能です。また、BSアンテナ・CSアンテナもありますので、おうち時間も充実するでしょう(別途工事、契約料が必要な場合あり)。
床暖房があり、冬も足元から暖かく快適に過ごすことができます。建物にはエレベーターがついているので、重い荷物があっても安心。共用部には宅配ボックスが設定されているので、不在の時にも荷物を受け取ることができます。
お金・契約の情報
※「-」と表示されているものは、実際は料金が発生するものもございます。詳細はお問い合わせください。
| 家賃 | 19.4万円 | 管理費・共益費 | 1.5万円 |
|---|---|---|---|
| 敷金 | 19.4万円 | 礼金 | 19.4万円 |
| 入居決定でお祝い金最大100,000円 | |||
| 保証金 | - | 償却・敷引 | - |
| 住宅保険料 | 住宅保険料あり | 更新料 | - |
| 契約形態 | 定期借家 | 契約期間 | 2年 |
| 入居・引渡期間 | 相談 | 現況 | 居住中 |
| 契約備考 | 初期費用のクレジットカード払いや各種分割払い可能です。諸条件ご相談ください。その他インターネット掲載物件は当店で併せてご紹介可能です 更新料:無し 保証会社:利用必須 初回保証委託料(最低15,000円):月額賃料等の50%、 2年目以降:10,000円/年 その他設備/条件:独立洗面台 | ||
部屋の情報
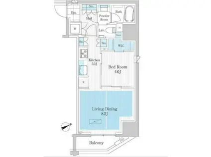
| 間取り | 1LDK | 専有面積 | 40.27m2 |
|---|---|---|---|
| 所在階 / 向き | 2階 / 南東 | バルコニー面積 | - |
| 水道 / ガス | - | ||
| 設備 | バス・トイレ別、2階以上、オートロック、宅配ボックス、浴室乾燥機、ウォークインクローゼット、追い焚き、インターネット対応、システムキッチン、エアコン、エレベーター、バルコニー、フローリング、床暖房、CSアンテナ、BSアンテナ、洗濯機:室内 | ||
| 当社物件ID | 160062412 | ||
建物の情報
| 建物名 | パークアクシス浅草橋2 | ||
|---|---|---|---|
| 所在地 | 東京都台東区柳橋1丁目 | ||
| 交通 | 総武・中央緩行線 浅草橋駅 徒歩2分 東京都浅草線 浅草橋駅 徒歩2分 総武本線 馬喰町駅 徒歩6分 | ||
| 階数 | 15階建 | 総戸数 | - |
| 築年月 | 2017年12月 / 築9年 | エレベーター | あり |
| 駐車場 | - | バイク置き場 | - |
| 駐輪場 | - | 管理人/管理会社 | - |
| 建物種別 | マンション | 建物構造 | RC(鉄筋コンクリート) |
この部屋の取扱い不動産会社
| 会社名 | 株式会社サンコーホーム(賃貸スモッカ経由) | ||
|---|---|---|---|
| 所在地 | 東京都台東区上野5丁目23-8 キューアス御徒町ビル3F | 交通 | - |
| 営業時間 | - | 定休日 | - |
| 免許番号 | 東京都知事免許(2)第96594号 | 取引態様 | 仲介 |
| 不動産会社管理番号 | sankohome_120160010077986 | 当社管理番号 | 463 |
| 所属団体 | (公社)全国宅地建物取引業協会連合会\n公益社団法人首都圏不動産公正取引協議会 | ||
| 公正取引協議会 | (公社)全国宅地建物取引業保証協会 | ||
| 取扱い物件情報 | 物件詳細へ | ||
※各種情報と現状に差異がある場合は、現状優先となります。問い合わせをすることで、より詳しい条件、情報を確認する事ができます。
提供:株式会社サンコーホーム(賃貸スモッカ経由)
この物件が気になったら掲載期限まであと7日
パークアクシス浅草橋2に条件(家賃・エリア)が近い物件一覧
| 写真 | 家賃 管理費等 | 敷金 礼金 | 間取り 専有面積 | 築年数 | 最寄り駅 所在地 | キープ | 詳細 |
|---|---|---|---|---|---|---|---|
マンション グランド・ガーラ銀座(1K/7階) | |||||||
![]() | 11.8万円 1.2万円 | 11.8万円 11.8万円 | 1K 25.09m2 | 築19年 | 東京地下鉄有楽町線 新富町駅(東京) 徒歩2分 東京地下鉄日比谷線 東銀座駅 徒歩5分 東京地下鉄銀座線 銀座駅 徒歩8分 東京都中央区銀座1丁目 | 詳細を見る | |
マンション クレール日本橋(1LDK/12階) | |||||||
![]() | 24.5万円 なし | 24.5万円 24.5万円 | 1LDK 41.06m2 | 築9年 | 東京都新宿線 馬喰横山駅 徒歩2分 総武本線 馬喰町駅 徒歩2分 東京都中央区日本橋馬喰町1丁目 | 詳細を見る | |
マンション クラリティア浅草(1DK/5階) | |||||||
![]() | 14万円 1.5万円 | 14万円 なし | 1DK 25.46m2 | 築1年 | 東武伊勢崎・大師線 浅草駅(東武・都営・メトロ) 徒歩9分 東京都浅草線 浅草駅(東武・都営・メトロ) 徒歩10分 つくばエクスプレス 浅草駅(つくばEXP) 徒歩13分 東京都台東区浅草6丁目 | 詳細を見る | |
マンション ルフォンプログレ本郷三丁目(1DK/3階) | |||||||
![]() | 16.2万円 1万円 | 16.2万円 なし | 1DK 26.78m2 | 築1年 | 東京都大江戸線 本郷三丁目駅 徒歩4分 東京地下鉄丸ノ内線 本郷三丁目駅 徒歩6分 東京地下鉄千代田線 湯島駅 徒歩10分 東京都文京区本郷3丁目 | 詳細を見る | |
マンション S-RESIDENCE駒込六義園(1K/9階) | |||||||
![]() | 11.7万円 1.5万円 | なし なし | 1K 25.22m2 | 築4年 | 東京地下鉄南北線 駒込駅 徒歩6分 山手線 駒込駅 徒歩7分 東京都文京区本駒込5丁目 | 詳細を見る | |
マンション グランデュール富士(1SLDK/11階) | |||||||
![]() | 20.5万円 8,000円 | 20.5万円 20.5万円 | 1SLDK 52.8m2 | 築6年 | 山手線 西日暮里駅 徒歩3分 東京地下鉄千代田線 西日暮里駅 徒歩3分 京浜東北・根岸線 西日暮里駅 徒歩3分 東京都荒川区西日暮里2丁目 | 詳細を見る | |
マンション パークアクシス小伝馬町(ワンルーム/3階) | |||||||
![]() | 17.7万円 1.1万円 | 17.7万円 17.7万円 | ワンルーム 31.28m2 | 築10年 | 東京地下鉄日比谷線 小伝馬町駅 徒歩3分 総武本線 馬喰町駅 徒歩5分 山手線 秋葉原駅 徒歩11分 東京都千代田区岩本町1丁目 | 詳細を見る | |
マンション メイクスデザイン茅場町(1K/6階) | |||||||
![]() | 12万円 1.5万円 | 12万円 12万円 | 1K 29.29m2 | 築19年 | 東京地下鉄日比谷線 茅場町駅 徒歩7分 東京地下鉄東西線 茅場町駅 徒歩7分 京葉線 八丁堀駅(東京) 徒歩8分 東京都中央区新川1丁目 | 詳細を見る | |









