賃貸マンション
世田谷桜丘グレイスコートの賃貸物件情報(3LDK/2階)
| 家賃 | 管理費等 | 敷金 | 礼金 | 間取り | 専有面積 |
|---|---|---|---|---|---|
| 22万円 | 1万円 | 44万円 | 22万円 | 3LDK | 72.34m2 |
入居決定でお祝い金最大100,000円
- 保証金
- -
- 償却・敷引
- -
- 築年数
- 築32年
- 所在階
- 2階
- 向き
- 南
Point
共用部には敷地内ごみ置き場・エレベータなど様々な設備やサービスが揃っているので便利です。
提供:(株)アシスト経堂店(SUUMO経由)

詳細情報 世田谷桜丘グレイスコート
物件紹介
世田谷桜丘グレイスコートは小田急線千歳船橋駅から徒歩8分にあり、駅近で通勤通学に便利なマンションです。
このお部屋は2階以上に位置しているので、通行人や周囲の住人からの視線が気になりにくく、防犯面でも安心。建物のエントランスはオートロックがついており、インターホンにはTVモニタもついているため、相手の顔を確認してから来客対応することができます。
こちらは楽器相談が可能な物件。楽器演奏をお考えの方はぜひ相談してみてください。人気の南向き・フローリングのお部屋。角部屋でもあるため、周囲の居住者の生活音も気になりにくい場所です。室内にはウォークインクローゼットがありますので、たくさんの荷物も効率的に収納ができます。キッチンはシステムキッチン仕様になっていますので、お料理好きの方にもぴったり。バス・トイレは別なので、のんびりお風呂タイムも楽しめるでしょう。また、雨の日でも浴室乾燥機を使えば、お洗濯も問題ありません。
通信設備面では、インターネット接続が可能です。また、CATVにも対応しているので、おうち時間も充実するでしょう(別途工事、契約料が必要な場合あり)。
建物にはエレベーターがついているので、重い荷物があっても安心。
このお部屋は2階以上に位置しているので、通行人や周囲の住人からの視線が気になりにくく、防犯面でも安心。建物のエントランスはオートロックがついており、インターホンにはTVモニタもついているため、相手の顔を確認してから来客対応することができます。
こちらは楽器相談が可能な物件。楽器演奏をお考えの方はぜひ相談してみてください。人気の南向き・フローリングのお部屋。角部屋でもあるため、周囲の居住者の生活音も気になりにくい場所です。室内にはウォークインクローゼットがありますので、たくさんの荷物も効率的に収納ができます。キッチンはシステムキッチン仕様になっていますので、お料理好きの方にもぴったり。バス・トイレは別なので、のんびりお風呂タイムも楽しめるでしょう。また、雨の日でも浴室乾燥機を使えば、お洗濯も問題ありません。
通信設備面では、インターネット接続が可能です。また、CATVにも対応しているので、おうち時間も充実するでしょう(別途工事、契約料が必要な場合あり)。
建物にはエレベーターがついているので、重い荷物があっても安心。
お金・契約の情報
※「-」と表示されているものは、実際は料金が発生するものもございます。詳細はお問い合わせください。
| 家賃 | 22万円 | 管理費・共益費 | 1万円 |
|---|---|---|---|
| 敷金 | 44万円 | 礼金 | 22万円 |
| 入居決定でお祝い金最大100,000円 | |||
| 保証金 | - | 償却・敷引 | - |
| 住宅保険料 | 1円 | 更新料 | - |
| 保証会社利用 | 必須 | 保証会社名 | - |
| 保証会社費用 | - | 保証会社備考 | 初回:賃料総額100% 月額:賃料総額2% |
| 契約形態 | - | 契約期間 | 2年 |
| 入居・引渡期間 | 相談 | 現況 | - |
| 入居可能条件 | ペット不可 | ||
| 契約備考 | 火災保険料:25550円 リロサポ加入:月額1500円 駐車場登録料 1台(利用時のみ):11000円 除菌施工料:19800円 その他設備/条件:室内洗濯機置き場、独立洗面台、クローゼット、シューズボックス | ||
部屋の情報
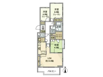
| 間取り | 3LDK | 専有面積 | 72.34m2 |
|---|---|---|---|
| 間取り詳細 | LDK(14帖)、洋室(6帖)、洋室(4帖)、和室(4.5帖) | ||
| 所在階 / 向き | 2階 / 南 | バルコニー面積 | - |
| 水道 / ガス | 水道【公営】、ガス【都市】 | ||
| 設備 | バス・トイレ別、オートロック、テレビドアホン、ウォークインクローゼット、追い焚き、インターネット対応、システムキッチン、エアコン、エレベーター、温水洗浄便座、角部屋、バルコニー、フローリング、3口コンロ、コンロ:ガス、シャワー、給湯 | ||
| 当社物件ID | 102252392 | ||
建物の情報
| 建物名 | 世田谷桜丘グレイスコート | ||
|---|---|---|---|
| 所在地 | 東京都世田谷区桜丘5丁目 | ||
| 交通 | 小田急電鉄小田原線 千歳船橋駅 徒歩10分 小田急電鉄小田原線 祖師ケ谷大蔵駅 徒歩17分 | ||
| 階数 | 3階建 | 総戸数 | - |
| 築年月 | 1994年03月 / 築32年 | エレベーター | あり |
| 駐車場 | - | バイク置き場 | - |
| 駐輪場 | - | 管理人/管理会社 | - |
| 周辺環境 | 販売店 徒歩10分(728m) 小学校 世田谷区立山野小学校 徒歩12分(918m) その他 ドラッグストア その他 公園 その他 銀行 その他 * | ||
| 建物種別 | マンション | 建物構造 | RC(鉄筋コンクリート) |
この部屋の取扱い不動産会社
| 会社名 | ハウスコム西東京株式会社 千歳烏山店 | ||
|---|---|---|---|
| 所在地 | 東京都世田谷区2-1駅前ビル1階 | 交通 | - |
| 営業時間 | 10:00~18:00 | 定休日 | - |
| 免許番号 | 東京都知事(1)第108225号 | 取引態様 | 仲介 |
| 不動産会社管理番号 | HC2-4440796-205-0107 | 当社管理番号 | 468 |
| 所属団体 | 、 | ||
| 取扱い物件情報 | 物件詳細へ | ||
※各種情報と現状に差異がある場合は、現状優先となります。問い合わせをすることで、より詳しい条件、情報を確認する事ができます。
提供:ハウスコム西東京株式会社 千歳烏山店
この物件が気になったら掲載期限まであと4日
世田谷桜丘グレイスコートに条件(家賃・エリア)が近い物件一覧
| 写真 | 家賃 管理費等 | 敷金 礼金 | 間取り 専有面積 | 築年数 | 最寄り駅 所在地 | キープ | 詳細 |
|---|---|---|---|---|---|---|---|
マンション ラ・メゾン足柄(2LDK/3階) | |||||||
![]() | 15.7万円 3,000円 | 15.7万円 15.7万円 | 2LDK 54.74m2 | 築34年 | JR京浜東北線 蒲田駅 徒歩6分 京急本線 京急蒲田駅 徒歩14分 京急本線 梅屋敷駅(東京) 徒歩18分 東京都大田区蒲田 | 詳細を見る | |
アパート フォレスタ世田谷(2LDK/2階) | |||||||
![]() | 18.5万円 1,000円 | 18.5万円 なし | 2LDK 47.7m2 | 築55年 | 東急池上線 雪が谷大塚駅 徒歩6分 東急東横線 田園調布駅 徒歩16分 東急目黒線 多摩川駅 徒歩16分 東京都世田谷区東玉川 | 詳細を見る | |
一戸建て 京浜急行電鉄本線 六郷土手駅 徒歩5分 築23年(1LDK) | |||||||
![]() | 25.5万円 なし | 51万円 25.5万円 | 1LDK 99.8m2 | 築23年 | 京浜急行電鉄本線 六郷土手駅 徒歩5分 京浜急行電鉄本線 雑色駅 徒歩13分 東京都大田区仲六郷4丁目 | 詳細を見る | |
マンション RJRプレシア蒲田(1LDK/5階) | |||||||
![]() | 18.1万円 1.2万円 | 18.1万円 なし | 1LDK 33.73m2 | 新築 | JR京浜東北線 蒲田駅 徒歩10分 東急池上線 蒲田駅 徒歩11分 東急多摩川線 蒲田駅 徒歩11分 東京都大田区西蒲田 | 詳細を見る | |
マンション シャルマンドミール(2LDK/2階) | |||||||
![]() | 18.2万円 3,000円 | 18.2万円 18.2万円 | 2LDK 57.22m2 | 築11年 | 京急本線 大森町駅 徒歩14分 京急本線 梅屋敷駅(東京) 徒歩15分 京急空港線 糀谷駅 徒歩26分 東京都大田区大森南 | 詳細を見る | |
マンション コンフォリア・リヴ大森西(2LDK/4階) | |||||||
![]() | 20万円 1.8万円 | 20万円 なし | 2LDK 45.2m2 | 築1年 | 京急本線 大森町駅 徒歩12分 京急本線 梅屋敷駅(東京) 徒歩14分 京急空港線 京急蒲田駅 徒歩21分 東京都大田区大森西 | 詳細を見る | |
マンション オカバ世田谷深沢ヘーベルメゾン(3LDK/3階) | |||||||
![]() | 29.1万円 1万円 | 14.55万円 29.1万円 | 3LDK 73.66m2 | 築1年 | 東急大井町線 等々力駅 徒歩16分 東急大井町線 上野毛駅 徒歩19分 東急大井町線 尾山台駅 徒歩21分 東京都世田谷区深沢 | 詳細を見る | |







