賃貸マンション
ラ ヴィエルジュ白金の賃貸物件情報(1LDK/3階)
| 家賃 | 管理費等 | 敷金 | 礼金 | 間取り | 専有面積 |
|---|---|---|---|---|---|
| 18.3万円 | 1万円 | 18.3万円 | 18.3万円 | 1LDK | 37.68m2 |
入居決定でお祝い金最大100,000円
- 保証金
- -
- 償却・敷引
- -
- 築年数
- 築6年
- 所在階
- 3階
- 向き
- -
Point
☆仲介手数料不要の物件多数☆現地集合・オンライン内見も可能☆他社様より手厚いサポート/お引越しまでのお手続代行します☆初期費用(全額又は一部)分割可能☆
提供:(株)ファティライズ新宿店(SUUMO経由)

詳細情報 ラ ヴィエルジュ白金
物件紹介
ラ ヴィエルジュ白金は都営三田線白金高輪駅から徒歩10分にあり、駅近で通勤通学に便利なマンションです。
このお部屋は2階以上に位置しているので通行人や周囲の住人からの視線が気になりにくく、建物のエントランスはオートロックがついているので防犯性が高くなっています。
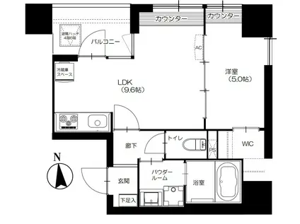
人気の角部屋で周囲の居住者の生活音も気になりにくく、また、フローリングのお部屋なのでお掃除もラクラク。室内にはウォークインクローゼットがありますので、たくさんの荷物も効率的に収納ができます。キッチンはシステムキッチン仕様になっていますので、お料理好きの方にもぴったり。バス・トイレは別なので、のんびりお風呂タイムも楽しめるでしょう。また、雨の日でも浴室乾燥機を使えば、お洗濯も問題ありません。
通信設備面では、インターネットが無料で使えるので、月々の出費を抑えられるのも魅力です。また、CATVにも対応しているので、おうち時間も充実するでしょう(別途工事、CATVの契約料等が必要な場合あり)。
建物にはエレベーターがついているので、重い荷物があっても安心。共用部には宅配ボックスが設定されているので、不在の時にも荷物を受け取ることができます。また、ペット飼育の相談ができますので、あなたの大切な家族の一員も快適に暮らせるか、ぜひ確認してみてください。
このお部屋は2階以上に位置しているので通行人や周囲の住人からの視線が気になりにくく、建物のエントランスはオートロックがついているので防犯性が高くなっています。
人気の角部屋で周囲の居住者の生活音も気になりにくく、また、フローリングのお部屋なのでお掃除もラクラク。室内にはウォークインクローゼットがありますので、たくさんの荷物も効率的に収納ができます。キッチンはシステムキッチン仕様になっていますので、お料理好きの方にもぴったり。バス・トイレは別なので、のんびりお風呂タイムも楽しめるでしょう。また、雨の日でも浴室乾燥機を使えば、お洗濯も問題ありません。
通信設備面では、インターネットが無料で使えるので、月々の出費を抑えられるのも魅力です。また、CATVにも対応しているので、おうち時間も充実するでしょう(別途工事、CATVの契約料等が必要な場合あり)。
建物にはエレベーターがついているので、重い荷物があっても安心。共用部には宅配ボックスが設定されているので、不在の時にも荷物を受け取ることができます。また、ペット飼育の相談ができますので、あなたの大切な家族の一員も快適に暮らせるか、ぜひ確認してみてください。
お金・契約の情報
※「-」と表示されているものは、実際は料金が発生するものもございます。詳細はお問い合わせください。
| 家賃 | 18.3万円 | 管理費・共益費 | 1万円 |
|---|---|---|---|
| 敷金 | 18.3万円 | 礼金 | 18.3万円 |
| 入居決定でお祝い金最大100,000円 | |||
| 保証金 | - | 償却・敷引 | - |
| 住宅保険料 | - | 更新料 | - |
| 契約形態 | - | 契約期間 | - |
| 入居・引渡期間 | - | 現況 | - |
| 入居可能条件 | ペット相談 | ||
| 契約備考 | ☆仲介手数料不要の物件多数☆現地集合・オンライン内見も可能☆他社様より手厚いサポート/お引越しまでのお手続代行します☆初期費用(全額又は一部)分割可能☆ 1LDK ペット相談 普通借家2年 損保【1.9万円2年】 バストイレ別、エアコン、クロゼット、フローリング、浴室乾燥機、オートロック、室内洗濯置、システムキッチン、追焚機能浴室、角住戸、温水洗浄便座、エレベーター、駐輪場、宅配ボックス、CATV、外壁タイル張り、ペット相談、ウォークインクロゼット、敷金1ヶ月、ディンプルキー、ネット使用料不要、駅徒歩10分以内、高速ネット対応、礼金1ヶ月 入居日:'26年4月上旬 | ||
部屋の情報
| 間取り | 1LDK | 専有面積 | 37.68m2 |
|---|---|---|---|
| 所在階 / 向き | 3階 / - | バルコニー面積 | - |
| 水道 / ガス | - | ||
| 設備 | バス・トイレ別、2階以上、オートロック、宅配ボックス、浴室乾燥機、ウォークインクローゼット、追い焚き、インターネット対応、システムキッチン、エアコン、エレベーター、温水洗浄便座、角部屋、フローリング、CATV、インターネット使用料無料、洗濯機:室内 | ||
| 当社物件ID | 37716734 | ||
建物の情報
| 建物名 | ラ ヴィエルジュ白金 | ||
|---|---|---|---|
| 所在地 | 東京都港区白金 | ||
| 交通 | 都営三田線 白金高輪駅 徒歩10分 東京メトロ南北線 白金台駅 徒歩15分 東京メトロ日比谷線 広尾駅 徒歩17分 | ||
| 階数 | 10階建 | 総戸数 | - |
| 築年月 | 2020年03月 / 築6年 | エレベーター | あり |
| 駐車場 | なし | バイク置き場 | - |
| 駐輪場 | あり | 管理人/管理会社 | - |
| 周辺環境 | その他 広尾プラザ(ショッピングセンター)まで1099m その他 白金アエルシティ(ショッピングセンター)まで896m その他 Hanamasa Plus+南麻布店(スーパー)まで537m その他 まいばすけっと白金6丁目店(スーパー)まで493m その他 ミニストップ白金6丁目店(コンビニ)まで75m その他 ゴルフ5プレステージ広尾店(ショッピングセンター)まで1003m | ||
| 建物種別 | マンション | 建物構造 | RC(鉄筋コンクリート) |
この部屋の取扱い不動産会社
| 会社名 | (株)ファティライズ新宿店(SUUMO経由) | ||
|---|---|---|---|
| 所在地 | 東京都新宿区西新宿1-15-4 第2セイコービル6階 | 交通 | - |
| 営業時間 | 9:30~19:00 | 定休日 | 無し |
| 免許番号 | 東京都知事93915 | 取引態様 | 仲介 |
| 不動産会社管理番号 | 100488316266 | 当社管理番号 | 89 |
| 所属団体 | (公社)東京都宅地建物取引業協会会員 | ||
| 公正取引協議会 | (公社)首都圏不動産公正取引協議会加盟 | ||
| 取扱い物件情報 | 物件詳細へ | ||
※各種情報と現状に差異がある場合は、現状優先となります。問い合わせをすることで、より詳しい条件、情報を確認する事ができます。
提供:(株)ファティライズ新宿店(SUUMO経由)
この物件が気になったら掲載期限まであと10日
ラ ヴィエルジュ白金に条件(家賃・エリア)が近い物件一覧
| 写真 | 家賃 管理費等 | 敷金 礼金 | 間取り 専有面積 | 築年数 | 最寄り駅 所在地 | キープ | 詳細 |
|---|---|---|---|---|---|---|---|
マンション ミェーレ日本橋(1LDK/2階) | |||||||
![]() | 19.6万円 1.1万円 | なし 19.6万円 | 1LDK 40.04m2 | 築12年 | 東京地下鉄日比谷線 小伝馬町駅 徒歩2分 総武本線 馬喰町駅 徒歩4分 東京都新宿線 馬喰横山駅 徒歩4分 東京都中央区日本橋大伝馬町 | 詳細を見る | |
マンション クレストコート門前仲町(1DK/10階) | |||||||
![]() | 15.8万円 1.2万円 | 15.8万円 なし | 1DK 26.14m2 | 築1年 | 東京地下鉄東西線 門前仲町駅 徒歩7分 東京都江東区永代1丁目 | 詳細を見る | |
マンション あやめガーデン(2K/12階) | |||||||
![]() | 17.5万円 1万円 | 17.5万円 17.5万円 | 2K 42.26m2 | 築12年 | 東京メトロ日比谷線 築地駅 徒歩1分 東京メトロ有楽町線 新富町駅(東京) 徒歩6分 東京メトロ日比谷線 東銀座駅 徒歩6分 東京都中央区築地 | 詳細を見る | |
マンション I‐CASA SHINAGAWA(1LDK/3階) | |||||||
![]() | 16万円 1万円 | 16万円 32万円 | 1LDK 39.85m2 | 築12年 | 京浜急行電鉄本線 立会川駅 徒歩8分 京浜東北・根岸線 大森駅(東京) 徒歩12分 東京都品川区南大井5丁目 | 詳細を見る | |
一戸建て 東京地下鉄有楽町線 豊洲駅 徒歩12分 築51年(3DK) | |||||||
![]() | 13.8万円 なし | 13.8万円 13.8万円 | 3DK 64.71m2 | 築51年 | 東京地下鉄有楽町線 豊洲駅 徒歩12分 京葉線 潮見駅 徒歩20分 東京地下鉄東西線 木場駅 徒歩24分 東京都江東区枝川1丁目 | 詳細を見る | |
マンション スカイコート銀座東第2(1DK/7階) | |||||||
![]() | 17.9万円 1.1万円 | なし 17.9万円 | 1DK 40.7m2 | 築22年 | 東京地下鉄有楽町線 新富町駅(東京) 徒歩6分 京葉線 八丁堀駅(東京) 徒歩7分 東京地下鉄日比谷線 築地駅 徒歩10分 東京都中央区湊3丁目 | 詳細を見る | |
マンション メイクスデザイン住吉アジールコート(1K/4階) | |||||||
![]() | 11.6万円 1.1万円 | なし 11.6万円 | 1K 25.6m2 | 築12年 | 東京メトロ半蔵門線 住吉駅(東京) 徒歩8分 都営大江戸線 清澄白河駅 徒歩14分 都営新宿線 菊川駅(東京) 徒歩16分 東京都江東区扇橋 | 詳細を見る | |
マンション アリュール砂町銀座(1LDK/4階) | |||||||
![]() | 11.8万円 9,500円 | 11.8万円 11.8万円 | 1LDK 30.37m2 | 築2年 | 東京都新宿線 大島駅(東京) 徒歩15分 東京都江東区北砂4丁目 | 詳細を見る | |



/105x80-f1-q70-wp1)





