賃貸マンション
A LA MODEの賃貸物件情報(1K/2階)
| 家賃 | 管理費等 | 敷金 | 礼金 | 間取り | 専有面積 |
|---|---|---|---|---|---|
| 9.5万円 | なし | 9.5万円 | 14.25万円 | 1K | 27.97m2 |
入居決定でお祝い金最大100,000円
- 保証金
- -
- 償却・敷引
- -
- 築年数
- 築24年
- 所在階
- 2階
- 向き
- 南東
Point
//初期費用分割利用可//リモート提案や現地集合など、ご案内の場所や時間も柔軟に対応しますので、まずはお気軽に検討ください!
提供:LDK+C(CAFE) (株)リオパートナーズ(SUUMO経由)

詳細情報 A LA MODE
物件紹介
A LA MODEは東急東横線祐天寺駅から徒歩16分にあるマンションです。
このお部屋は2階以上に位置しているので、通行人や周囲の住人からの視線が気になりにくく、防犯面でも安心。建物のエントランスはオートロックがついており、インターホンにはTVモニタもついているため、相手の顔を確認してから来客対応することができます。
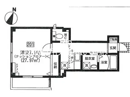
人気の南向きのお部屋。角部屋でもあるため、周囲の居住者の生活音も気になりにくい場所です。バス・トイレ別の仕様で、のんびりお風呂タイムも楽しめます。
通信設備面では、インターネット接続が可能です。また、CATVにも対応しているので、おうち時間も充実するでしょう(別途工事、契約料が必要な場合あり)。
このお部屋は2階以上に位置しているので、通行人や周囲の住人からの視線が気になりにくく、防犯面でも安心。建物のエントランスはオートロックがついており、インターホンにはTVモニタもついているため、相手の顔を確認してから来客対応することができます。
人気の南向きのお部屋。角部屋でもあるため、周囲の居住者の生活音も気になりにくい場所です。バス・トイレ別の仕様で、のんびりお風呂タイムも楽しめます。
通信設備面では、インターネット接続が可能です。また、CATVにも対応しているので、おうち時間も充実するでしょう(別途工事、契約料が必要な場合あり)。
お金・契約の情報
※「-」と表示されているものは、実際は料金が発生するものもございます。詳細はお問い合わせください。
| 家賃 | 9.5万円 | 管理費・共益費 | なし |
|---|---|---|---|
| 敷金 | 9.5万円 | 礼金 | 14.25万円 |
| 入居決定でお祝い金最大100,000円 | |||
| 保証金 | - | 償却・敷引 | - |
| 住宅保険料 | - | 更新料 | - |
| 保証会社利用 | 必須 | 保証会社名 | リクルートフォレントインシュア |
| 保証会社費用 | - | 保証会社備考 | オリコフォレントインシュア利用必 初回保証委託料:60% (最低保証委託料:30,000円)、事務手数料:毎月家賃の1.8% |
| 契約形態 | - | 契約期間 | - |
| 入居・引渡期間 | 即時 | 現況 | - |
| 契約備考 | 更新料1ヶ月 1K 普通借家2年 損保【2万円2年】 バストイレ別、バルコニー、エアコン、ガスコンロ対応、TVインターホン、オートロック、室内洗濯置、シューズボックス、角住戸、洗面所独立、駐輪場、CATV、2面採光、敷金1ヶ月、CATVインターネット、東南向き、都市ガス、保証会社利用可、初期費用カード決済可 | ||
部屋の情報
| 間取り | 1K | 専有面積 | 27.97m2 |
|---|---|---|---|
| 所在階 / 向き | 2階 / 南東 | バルコニー面積 | - |
| 水道 / ガス | - | ||
| 設備 | バス・トイレ別、2階以上、オートロック、テレビドアホン、インターネット対応、エアコン、南向き、角部屋、バルコニー、洗髪洗面化粧台、コンロ:ガス、CATV、洗濯機:室内 | ||
| 当社物件ID | 22779434 | ||
建物の情報
| 建物名 | A LA MODE | ||
|---|---|---|---|
| 所在地 | 東京都世田谷区下馬 | ||
| 交通 | 東急東横線 祐天寺駅 徒歩16分 東急田園都市線 三軒茶屋駅 徒歩16分 東急東横線 学芸大学駅 徒歩19分 | ||
| 階数 | 3階建 | 総戸数 | - |
| 築年月 | 2002年03月 / 築24年 | エレベーター | - |
| 駐車場 | なし | バイク置き場 | - |
| 駐輪場 | あり | 管理人/管理会社 | - |
| 建物種別 | マンション | 建物構造 | 鉄骨造 |
この部屋の取扱い不動産会社
| 会社名 | LDK+C(CAFE) (株)リオパートナーズ(SUUMO経由) | ||
|---|---|---|---|
| 所在地 | 東京都新宿区新宿5-9-6 UIビル2階 | 交通 | - |
| 営業時間 | 10~19時 | 定休日 | 年中無休 |
| 免許番号 | 東京都知事101626 | 取引態様 | 仲介 |
| 不動産会社管理番号 | 100474198212 | 当社管理番号 | 89 |
| 所属団体 | (公社)全日本不動産協会東京都本部会員 | ||
| 公正取引協議会 | (公社)首都圏不動産公正取引協議会加盟 | ||
| 取扱い物件情報 | 物件詳細へ | ||
※各種情報と現状に差異がある場合は、現状優先となります。問い合わせをすることで、より詳しい条件、情報を確認する事ができます。
提供:LDK+C(CAFE) (株)リオパートナーズ(SUUMO経由)
この物件が気になったら掲載期限まであと7日
A LA MODEに条件(家賃・エリア)が近い物件一覧
| 写真 | 家賃 管理費等 | 敷金 礼金 | 間取り 専有面積 | 築年数 | 最寄り駅 所在地 | キープ | 詳細 |
|---|---|---|---|---|---|---|---|
マンション MODULOR久が原(ワンルーム/1階) | |||||||
![]() | 10.6万円 1万円 | なし なし | ワンルーム 22.41m2 | 築22年 | 東急池上線 千鳥町駅 徒歩6分 東急池上線 池上駅 徒歩10分 東京都大田区千鳥1丁目 | 詳細を見る | |
マンション REALIZE蒲田Ⅱ(1K/3階) | |||||||
![]() | 10.4万円 8,000円 | なし 10.4万円 | 1K 25.5m2 | 築6年 | 京浜急行電鉄空港線 糀谷駅 徒歩13分 東京都大田区東蒲田2丁目 | 詳細を見る | |
マンション グランドコンシェルジュ大森西(1LDK/5階) | |||||||
![]() | 14万円 5,000円 | 14万円 14万円 | 1LDK 35.89m2 | 築19年 | 京急本線 大森町駅 徒歩9分 京急本線 梅屋敷駅(東京) 徒歩12分 京急本線 平和島駅 徒歩21分 東京都大田区大森西 | 詳細を見る | |
アパート ロジェ西蒲田(1DK/4階) | |||||||
![]() | 8.7万円 なし | 8.7万円 8.7万円 | 1DK 25.89m2 | 築37年 | JR京浜東北線 蒲田駅 徒歩12分 東急池上線 蓮沼駅 徒歩15分 京急本線 梅屋敷駅(東京) 徒歩16分 東京都大田区西蒲田 | 詳細を見る | |
マンション SEED JUST B-BASE Ⅱ(1LDK/4階) | |||||||
![]() | 8.8万円 1.5万円 | 8.8万円 8.8万円 | 1LDK 23.07m2 | 新築 | 東京モノレール羽田 昭和島駅 徒歩11分 京浜急行電鉄本線 梅屋敷駅(東京) 徒歩19分 東京都大田区大森南4丁目 | 詳細を見る | |






