賃貸マンション
スカイヒルズN15の賃貸物件情報(1K/4階)
| 家賃 | 管理費等 | 敷金 | 礼金 | 間取り | 専有面積 |
|---|---|---|---|---|---|
| 5.6万円 | 6,000円 | なし | なし | 1K | 32.05m2 |
入居決定でお祝い金最大100,000円
- 保証金
- -
- 償却・敷引
- -
- 築年数
- 築26年
- 所在階
- 4階
- 向き
- 西
Point
北海道大学の学生さんにお勧め。先輩方が多数入居されています。オール電化で安心快適ライフをお過ごしください。
提供:(株)タカラ(SUUMO経由)

詳細情報 スカイヒルズN15
物件紹介
スカイヒルズN15は地下鉄南北線北18条駅から徒歩5分にあり、駅近で通勤通学に便利なマンションです。
このお部屋は2階以上に位置しているので、通行人や周囲の住人からの視線が気になりにくく、防犯面でも安心。建物のエントランスはオートロックがついており、インターホンにはTVモニタもついているため、相手の顔を確認してから来客対応することができます。
人気の角部屋で周囲の居住者の生活音も気になりにくく、また、フローリングのお部屋なのでお掃除もラクラク。キッチンはシステムキッチン仕様になっていますので、お料理好きの方にもぴったり。また、バス・トイレは別で、のんびりお風呂タイムも楽しめるでしょう。
通信設備面では、インターネットが無料で使えるので、月々の出費を抑えられるのも魅力です。また、BSアンテナ・CSアンテナもありますので、おうち時間も充実するでしょう(別途工事、BS・CSの契約料等が必要な場合あり)。
建物にはエレベーターがついているので、重い荷物があっても安心。共用部には宅配ボックスが設定されているので、不在の時にも荷物を受け取ることができます。
このお部屋は2階以上に位置しているので、通行人や周囲の住人からの視線が気になりにくく、防犯面でも安心。建物のエントランスはオートロックがついており、インターホンにはTVモニタもついているため、相手の顔を確認してから来客対応することができます。
人気の角部屋で周囲の居住者の生活音も気になりにくく、また、フローリングのお部屋なのでお掃除もラクラク。キッチンはシステムキッチン仕様になっていますので、お料理好きの方にもぴったり。また、バス・トイレは別で、のんびりお風呂タイムも楽しめるでしょう。
通信設備面では、インターネットが無料で使えるので、月々の出費を抑えられるのも魅力です。また、BSアンテナ・CSアンテナもありますので、おうち時間も充実するでしょう(別途工事、BS・CSの契約料等が必要な場合あり)。
建物にはエレベーターがついているので、重い荷物があっても安心。共用部には宅配ボックスが設定されているので、不在の時にも荷物を受け取ることができます。
お金・契約の情報
※「-」と表示されているものは、実際は料金が発生するものもございます。詳細はお問い合わせください。
| 家賃 | 5.6万円 | 管理費・共益費 | 6,000円 |
|---|---|---|---|
| 敷金 | なし | 礼金 | なし |
| 入居決定でお祝い金最大100,000円 | |||
| 保証金 | - | 償却・敷引 | - |
| 住宅保険料 | - | 更新料 | - |
| 保証会社利用 | 必須 | 保証会社名 | - |
| 保証会社費用 | - | 保証会社備考 | 保証会社利用必 ROOM iD(エポスカード)利用可。初回保証料は月額家賃等の50%、月次保証料は1.5%。 |
| 契約形態 | - | 契約期間 | - |
| 入居・引渡期間 | 相談 | 現況 | - |
| 契約備考 | 北海道大学まで400m/カーシェアリングステーションが敷地内/管理人が月曜日から金曜日の午前8時~午後1時まで常駐。退去予告2ヶ月前、3月に解約の場合は25日迄に明け渡し条件。退去時清掃料38,720円(税込)【エアコンは寒冷地用ではありません。】法人契約の場合敷金1ヶ月 駐車場の空き状況等は [要確認] 合計0.99万円(内訳:カギ交換費0.99万円) 町内会費100円/月、24時間管理料1210円/月、エアコン洗浄料16500円 1K 事務所利用不可 損保【2万円2年】 バストイレ別、バルコニー、エアコン、クロゼット、フローリング、シャワー付洗面台、TVインターホン、オートロック、室内洗濯置、システムキッチン、角住戸、温水洗浄便座、脱衣所、エレベーター、洗面所独立、駐輪場、宅配ボックス、光ファイバー、外壁タイル張り、防犯カメラ、電気コンロ、仲介手数料不要、オール電化、2沿線利用可、CS、ネット使用料不要、ロードヒーティング、エレベーター2基、3駅以上利用可、駅徒歩5分以内、敷地内ごみ置き場、平面駐車場、日勤管理、当社管理物件、蓄熱式暖房、玄関収納、BS、保証会社利用可、全室照明付 | ||
部屋の情報
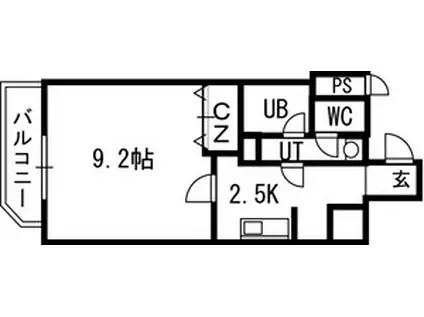
| 間取り | 1K | 専有面積 | 32.05m2 |
|---|---|---|---|
| 所在階 / 向き | 4階 / 西 | バルコニー面積 | - |
| 水道 / ガス | - | ||
| 設備 | バス・トイレ別、2階以上、オートロック、テレビドアホン、宅配ボックス、インターネット対応、システムキッチン、エアコン、エレベーター、温水洗浄便座、角部屋、バルコニー、フローリング、洗髪洗面化粧台、オール電化、CSアンテナ、BSアンテナ、インターネット使用料無料、洗濯機:室内 | ||
| 当社物件ID | 37144699 | ||
建物の情報
| 建物名 | スカイヒルズN15 | ||
|---|---|---|---|
| 所在地 | 北海道札幌市北区北十五条西 | ||
| 交通 | 地下鉄南北線 北18条駅 徒歩5分 地下鉄南北線 北12条駅 徒歩7分 地下鉄東豊線 北13条東駅 徒歩10分 | ||
| 階数 | 15階建 | 総戸数 | 111戸 |
| 築年月 | 2000年03月 / 築26年 | エレベーター | あり |
| 駐車場 | 空有 15400円 | バイク置き場 | - |
| 駐輪場 | あり | 管理人/管理会社 | - |
| 周辺環境 | その他 北海道大学医学部保健学科(大学・短大)まで470m その他 私立藤女子大学(大学・短大)まで287m その他 コープさっぽろ北12条店(スーパー)まで560m その他 ローソン(コンビニ)まで110m | ||
| 建物種別 | マンション | 建物構造 | RC(鉄筋コンクリート) |
この部屋の取扱い不動産会社
| 会社名 | (株)タカラ(SUUMO経由) | ||
|---|---|---|---|
| 所在地 | 北海道札幌市中央区南一条西10-4タイムビル6階 | 交通 | - |
| 営業時間 | 9:00~17:00 | 定休日 | 日・祝 |
| 免許番号 | 北海道知事石狩3700 | 取引態様 | 代理 |
| 不動産会社管理番号 | 100484790999 | 当社管理番号 | 89 |
| 所属団体 | (公社)北海道宅地建物取引業協会会員 | ||
| 公正取引協議会 | (一社)北海道不動産公正取引協議会加盟 | ||
| 取扱い物件情報 | 物件詳細へ | ||
※各種情報と現状に差異がある場合は、現状優先となります。問い合わせをすることで、より詳しい条件、情報を確認する事ができます。
提供:(株)タカラ(SUUMO経由)
この物件が気になったら掲載期限まであと11日
スカイヒルズN15に条件(家賃・エリア)が近い物件一覧
| 写真 | 家賃 管理費等 | 敷金 礼金 | 間取り 専有面積 | 築年数 | 最寄り駅 所在地 | キープ | 詳細 |
|---|---|---|---|---|---|---|---|
マンション ESTALION SOEN(1LDK/3階) | |||||||
![]() | 6.4万円 4,000円 | なし なし | 1LDK 30.39m2 | 新築 | 札沼線 桑園駅 徒歩5分 北海道札幌市中央区北十三条西16丁目 | 詳細を見る | |
マンション ALBARISE 北栄 (1LDK/3階) | |||||||
![]() | 7.3万円 5,000円 | 7.3万円 7.3万円 | 1LDK 39.46m2 | 新築 | 千歳線 千歳駅(北海道) 徒歩15分 北海道千歳市北栄1丁目 | 詳細を見る | |
マンション アートパレス壱番館(1DK/6階) | |||||||
![]() | 4.8万円 6,000円 | なし なし | 1DK 33.12m2 | 築29年 | 地下鉄南北線 北24条駅 徒歩3分 地下鉄南北線 北18条駅 徒歩15分 地下鉄南北線 北34条駅 徒歩16分 北海道札幌市北区北二十三条西 | 詳細を見る | |
マンション メニーズコート創成タウン C棟(1DK/1階) | |||||||
![]() | 5.2万円 3,000円 | なし なし | 1DK 26.35m2 | 築3年 | 札幌市南北線 北18条駅 徒歩10分 北海道札幌市東区北二十条東1丁目 | 詳細を見る | |
アパート TK-エスパス(2LDK/1階) | |||||||
![]() | 4.6万円 4,000円 | 4.6万円 なし | 2LDK 50.32m2 | 築29年 | 札沼線 新琴似駅 徒歩30分 北海道札幌市北区新琴似三条12丁目 | 詳細を見る | |
マンション リアン北広島III(1LDK/4階) | |||||||
![]() | 6.2万円 3,000円 | なし なし | 1LDK 29.41m2 | 築2年 | JR千歳線 北広島駅 徒歩19分 JR千歳線 上野幌駅 徒歩92分 JR千歳線 島松駅 徒歩102分 北海道北広島市共栄町 | 詳細を見る | |
マンション マック恵庭本町コート(4LDK/8階) | |||||||
![]() | 7万円 なし | 7万円 なし | 4LDK 80.28m2 | 築33年 | 千歳線 恵庭駅 徒歩18分 北海道恵庭市本町 | 詳細を見る | |
アパート LUCENT HILL 小樽(1K/1階) | |||||||
![]() | 4万円 3,500円 | なし 4万円 | 1K 23.1m2 | 築19年 | JR函館本線 小樽駅 徒歩4分 北海道小樽市稲穂 | 詳細を見る | |



/105x80-f1-q70-wp1)




/105x80-f1-q70-wp1)
