賃貸マンション
ライオンズマンション三宮の賃貸物件情報(1K/4階)
| 家賃 | 管理費等 | 敷金 | 礼金 | 間取り | 専有面積 |
|---|---|---|---|---|---|
| 3.9万円 | 6,000円 | なし | 3.9万円 | 1K | 14.96m2 |
入居決定でお祝い金最大100,000円
- 保証金
- -
- 償却・敷引
- -
- 築年数
- 築41年
- 所在階
- 4階
- 向き
- 西
Point
お問合せは、電話がオススメです☆LINEでやり取りがご希望の方は、「その他の問合せ」でLINE希望と入れて頂き電話番号を入力頂ければSMSへLINE IDを送らせて頂きます♪
提供:(株)プラン・ドゥ・シー元町店(SUUMO経由)

詳細情報 ライオンズマンション三宮
物件紹介
ライオンズマンション三宮は阪神本線神戸三宮駅から徒歩6分にあり、駅近で通勤通学に便利なマンションです。
このお部屋は2階以上に位置しているので通行人や周囲の住人からの視線が気になりにくく、建物のエントランスはオートロックがついているので防犯性が高くなっています。
おしゃれなデザイナーズ物件!フローリングのお部屋なのでお掃除もラクラク。キッチンはシステムキッチン仕様になっていますので、お料理好きの方にもぴったり。
通信設備面では、インターネット接続が可能です。また、BSアンテナ・CSアンテナがありCATVにも対応しているので、おうち時間も充実するでしょう(別途工事、契約料が必要な場合あり)。
建物にはエレベーターがついているので、重い荷物があっても安心。
このお部屋は2階以上に位置しているので通行人や周囲の住人からの視線が気になりにくく、建物のエントランスはオートロックがついているので防犯性が高くなっています。
おしゃれなデザイナーズ物件!フローリングのお部屋なのでお掃除もラクラク。キッチンはシステムキッチン仕様になっていますので、お料理好きの方にもぴったり。
通信設備面では、インターネット接続が可能です。また、BSアンテナ・CSアンテナがありCATVにも対応しているので、おうち時間も充実するでしょう(別途工事、契約料が必要な場合あり)。
建物にはエレベーターがついているので、重い荷物があっても安心。
お金・契約の情報
※「-」と表示されているものは、実際は料金が発生するものもございます。詳細はお問い合わせください。
| 家賃 | 3.9万円 | 管理費・共益費 | 6,000円 |
|---|---|---|---|
| 敷金 | なし | 礼金 | 3.9万円 |
| 入居決定でお祝い金最大100,000円 | |||
| 保証金 | - | 償却・敷引 | - |
| 住宅保険料 | - | 更新料 | - |
| 契約形態 | - | 契約期間 | - |
| 入居・引渡期間 | - | 現況 | - |
| 契約備考 | 巡回管理 合計4.95万円(内訳:エアコンクリーニング代1.65万円鍵交換代3.3万円) 更新料 16500円 室内清掃費用 44000円 1K 事務所利用不可 普通借家2年 損保【1.8万円2年】 バルコニー、エアコン、クロゼット、フローリング、オートロック、室内洗濯置、シューズボックス、システムキッチン、エレベーター、駐輪場、光ファイバー、敷金不要、防犯カメラ、IHクッキングヒーター、保証人不要、バイク置場、2沿線利用可、2駅利用可、3駅以上利用可、3沿線以上利用可、駅徒歩10分以内、日勤管理、都市ガス、年内入居可、礼金1ヶ月、IT重説対応物件、初期費用カード決済可 入居日:'26年4月中旬 | ||
部屋の情報
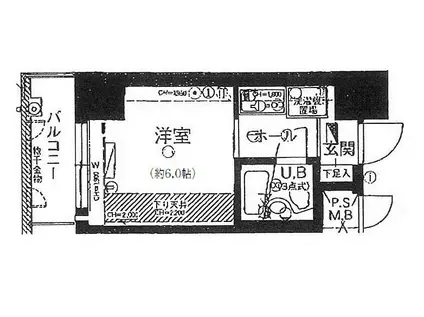
| 間取り | 1K | 専有面積 | 14.96m2 |
|---|---|---|---|
| 所在階 / 向き | 4階 / 西 | バルコニー面積 | - |
| 水道 / ガス | - | ||
| 設備 | 2階以上、オートロック、インターネット対応、システムキッチン、エアコン、エレベーター、バルコニー、フローリング、コンロ:IH、洗濯機:室内 | ||
| 当社物件ID | 11800007 | ||
建物の情報
| 建物名 | ライオンズマンション三宮 | ||
|---|---|---|---|
| 所在地 | 兵庫県神戸市中央区御幸通 | ||
| 交通 | 阪神本線 神戸三宮駅(阪神) 徒歩6分 JR東海道本線 三ノ宮駅(JR) 徒歩9分 阪急神戸線 神戸三宮駅(阪急) 徒歩11分 | ||
| 階数 | 地下1地上12階建 | 総戸数 | 120戸 |
| 築年月 | 1986年02月 / 築41年 | エレベーター | あり |
| 駐車場 | 近隣 200m27500円 | バイク置き場 | あり |
| 駐輪場 | あり | 管理人/管理会社 | - |
| 周辺環境 | その他 神戸市立中央小学校(小学校)まで1097m その他 私立神戸女子大学三宮キャンパス(大学・短大)まで1513m その他 阪急OASIS(オアシス) 神戸旭通店(スーパー)まで487m その他 ローソン 神戸御幸通四丁目店(コンビニ)まで115m その他 神戸市立布引中学校(中学校)まで2326m | ||
| 建物種別 | マンション | 建物構造 | SRC(鉄骨鉄筋コンクリート) |
この部屋の取扱い不動産会社
| 会社名 | いい部屋ネット(株)クラウドエステート(SUUMO経由) | ||
|---|---|---|---|
| 所在地 | 兵庫県神戸市中央区相生町2-3-9 2階 | 交通 | - |
| 営業時間 | 9時半~19時 | 定休日 | - |
| 免許番号 | 兵庫県知事12224 | 取引態様 | 仲介 |
| 不動産会社管理番号 | 100491093567 | 当社管理番号 | 89 |
| 所属団体 | (公社)全日本不動産協会兵庫県本部会員 | ||
| 公正取引協議会 | (公社)近畿地区不動産公正取引協議会加盟 | ||
| 取扱い物件情報 | 物件詳細へ | ||
※各種情報と現状に差異がある場合は、現状優先となります。問い合わせをすることで、より詳しい条件、情報を確認する事ができます。
提供:いい部屋ネット(株)クラウドエステート(SUUMO経由)
この物件が気になったら掲載期限まであと11日
ライオンズマンション三宮に条件(家賃・エリア)が近い物件一覧
| 写真 | 家賃 管理費等 | 敷金 礼金 | 間取り 専有面積 | 築年数 | 最寄り駅 所在地 | キープ | 詳細 |
|---|---|---|---|---|---|---|---|
アパート ハーベストスクエア壱番館(1LDK/1階) | |||||||
![]() | 5.95万円 3,500円 | なし 5.95万円 | 1LDK 42.37m2 | 築20年 | 山陽本線 大久保駅(兵庫) 徒歩29分 兵庫県明石市大久保町大窪 | 詳細を見る | |
アパート 神戸電鉄粟生線 広野ゴルフ場前駅 徒歩17分 築19年(1K/1階) | |||||||
![]() | 5万円 5,000円 | なし 5万円 | 1K 29.98m2 | 築19年 | 神戸電鉄粟生線 広野ゴルフ場前駅 徒歩17分 神戸電鉄粟生線 緑が丘駅(兵庫) 徒歩19分 神戸電鉄粟生線 押部谷駅 徒歩40分 兵庫県三木市緑が丘町西2丁目 | 詳細を見る | |
アパート サンロード・Ⅳ(1K/1階) | |||||||
![]() | 4.75万円 4,000円 | なし 4.75万円 | 1K 33.15m2 | 築23年 | 山陽本線 魚住駅 徒歩15分 山陽電気鉄道本線 山陽魚住駅 徒歩28分 兵庫県明石市魚住町清水 | 詳細を見る | |
マンション N-CUBE TARUYAMACHI(ワンルーム/6階) | |||||||
![]() | 4.7万円 1万円 | なし 4.7万円 | ワンルーム 20m2 | 築39年 | 山陽本線 明石駅 徒歩5分 山陽電気鉄道本線 西新町駅 徒歩9分 山陽電気鉄道本線 人丸前駅 徒歩18分 兵庫県明石市樽屋町 | 詳細を見る | |
マンション ビレッジハウス志染(3DK/2階) | |||||||
![]() | 6.07万円 なし | なし なし | 3DK 54.38m2 | 築46年 | 神戸電鉄粟生線 志染駅 徒歩16分 神戸電鉄粟生線 恵比須駅 徒歩27分 神戸電鉄粟生線 広野ゴルフ場前駅 徒歩32分 兵庫県三木市志染町西自由が丘 | 詳細を見る | |
アパート アルカンシエル(2DK/2階) | |||||||
![]() | 5.25万円 3,300円 | なし 5.25万円 | 2DK 43.82m2 | 築24年 | 兵庫県加古郡稲美町国岡1丁目 | 詳細を見る | |
アパート グリーンヒル青山(1K/2階) | |||||||
![]() | 4.2万円 3,000円 | なし なし | 1K 20.75m2 | 築35年 | 神戸電鉄粟生線 緑が丘駅(兵庫) 徒歩6分 神戸電鉄粟生線 広野ゴルフ場前駅 徒歩15分 神戸電鉄粟生線 押部谷駅 徒歩21分 兵庫県三木市緑が丘町本町1 | 詳細を見る | |
アパート サンエイトB(3DK/2階) | |||||||
![]() | 5.5万円 2,200円 | なし 5.5万円 | 3DK 63.19m2 | 築30年 | 兵庫県加古郡稲美町六分一 | 詳細を見る | |







