賃貸マンション
アダージオの賃貸物件情報(1LDK/4階)
| 家賃 | 管理費等 | 敷金 | 礼金 | 間取り | 専有面積 |
|---|---|---|---|---|---|
| 9.4万円 | 1万円 | なし | 18.8万円 | 1LDK | 36.67m2 |
入居決定でお祝い金最大100,000円
Point
RC造・JR高槻駅徒歩2分!!☆
提供:アパマンショップ阪急高槻店

詳細情報 アダージオ
物件紹介
アダージオはJR東海道本線高槻駅から徒歩1分にあり、駅近で通勤通学に便利なマンションです。
このお部屋は2階以上に位置しているので、通行人や周囲の住人からの視線が気になりにくく、防犯面でも安心。建物のエントランスはオートロックがついており、インターホンにはTVモニタもついているため、相手の顔を確認してから来客対応することができます。
人気の角部屋で周囲の居住者の生活音も気になりにくく、また、フローリングのお部屋なのでお掃除もラクラク。室内にはウォークインクローゼットがありますので、たくさんの荷物も効率的に収納ができます。キッチンはシステムキッチン仕様になっていますので、お料理好きの方にもぴったり。バス・トイレは別なので、のんびりお風呂タイムも楽しめるでしょう。また、雨の日でも浴室乾燥機を使えば、お洗濯も問題ありません。
通信設備面では、インターネットが無料で使えるので、月々の出費を抑えられるのも魅力です。また、BSアンテナ・CSアンテナがありCATVにも対応しているので、おうち時間も充実するでしょう(別途工事、BS・CS・CATVの契約料等が必要な場合あり)。
建物にはエレベーターがついているので、重い荷物があっても安心。共用部には宅配ボックスが設定されているので、不在の時にも荷物を受け取ることができます。
このお部屋は2階以上に位置しているので、通行人や周囲の住人からの視線が気になりにくく、防犯面でも安心。建物のエントランスはオートロックがついており、インターホンにはTVモニタもついているため、相手の顔を確認してから来客対応することができます。
人気の角部屋で周囲の居住者の生活音も気になりにくく、また、フローリングのお部屋なのでお掃除もラクラク。室内にはウォークインクローゼットがありますので、たくさんの荷物も効率的に収納ができます。キッチンはシステムキッチン仕様になっていますので、お料理好きの方にもぴったり。バス・トイレは別なので、のんびりお風呂タイムも楽しめるでしょう。また、雨の日でも浴室乾燥機を使えば、お洗濯も問題ありません。
通信設備面では、インターネットが無料で使えるので、月々の出費を抑えられるのも魅力です。また、BSアンテナ・CSアンテナがありCATVにも対応しているので、おうち時間も充実するでしょう(別途工事、BS・CS・CATVの契約料等が必要な場合あり)。
建物にはエレベーターがついているので、重い荷物があっても安心。共用部には宅配ボックスが設定されているので、不在の時にも荷物を受け取ることができます。
お金・契約の情報
※「-」と表示されているものは、実際は料金が発生するものもございます。詳細はお問い合わせください。
| 家賃 | 9.4万円 | 管理費・共益費 | 1万円 |
|---|---|---|---|
| 敷金 | なし | 礼金 | 18.8万円 |
| 入居決定でお祝い金最大100,000円 | |||
| 保証金 | - | 償却・敷引 | - |
| 住宅保険料 | 2.5万円(2年) | 更新料 | - |
| 保証会社利用 | 必須 | 保証会社名 | クレディセゾン |
| 保証会社費用 | - | 保証会社備考 | 初回:総賃料の50% 更新料:総賃料の1%(毎月) |
| 契約形態 | - | 契約期間 | 2年 |
| 入居・引渡期間 | 2026年04月中旬 | 現況 | - |
| 契約備考 | ※1年未満での解約は、賃料1ヶ月分の違約金有●自転車(ラック式場所指定1世帯1台):月額2,500円(税込)●原付のみ:月額3,500(税込)※空き確認要 鍵交換代 22000円/室内除菌消臭費 16500円、[退去時費用:ルームクリーニング 44,000円 ※故意・過失等別途実費] | ||
部屋の情報
| 間取り | 1LDK | 専有面積 | 36.67m2 |
|---|---|---|---|
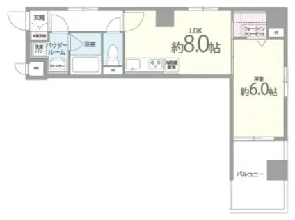
| 間取り詳細 | LDK(8帖)、洋室(6帖) | ||
| 所在階 / 向き | 4階 / 西 | バルコニー面積 | - |
| 水道 / ガス | ガス【都市】 | ||
| 設備 | バス・トイレ別、オートロック、テレビドアホン、宅配ボックス、浴室乾燥機、ウォークインクローゼット、追い焚き、インターネット対応、システムキッチン、エレベーター、温水洗浄便座、角部屋、バルコニー、コンロ:ガス、CATV、インターネット使用料無料、シャワー、洗濯機:室内 | ||
| 当社物件ID | 20819748 | ||
建物の情報
| 建物名 | アダージオ | ||
|---|---|---|---|
| 所在地 | 大阪府高槻市高槻町 | ||
| 交通 | 東海道本線 高槻駅 徒歩3分 | ||
| 階数 | 7階建 | 総戸数 | 23戸 |
| 築年月 | 2013年03月 / 築13年 | エレベーター | あり |
| 駐車場 | - | バイク置き場 | - |
| 駐輪場 | あり | 管理人/管理会社 | - |
| 周辺環境 | 病院 高槻病院 徒歩11分(850m) その他 大阪医科薬科大学病院 徒歩8分(600m) その他 関西大学 高槻ミューズキャンパス 徒歩9分(700m) その他 セブンイレブン 高槻高槻町店 徒歩3分(180m) その他 関西スーパー 高槻店 徒歩5分(400m) その他 アル・プラザ高槻 徒歩5分(400m) その他 警察署 高槻駅前交番 徒歩5分(350m) その他 スギドラッグ たかつき本通り店 徒歩4分(300m) | ||
| 建物種別 | マンション | 建物構造 | RC(鉄筋コンクリート) |
この部屋の取扱い不動産会社
| 会社名 | アパマンショップ高槻中央店 | ||
|---|---|---|---|
| 所在地 | 大阪府高槻市紺屋町 6-7仙波ビル1階 | 交通 | 東海道本線高槻から徒歩3分 |
| 営業時間 | 09:30〜18:00 | 定休日 | 水曜日 |
| 免許番号 | 大阪府知事(12)21564 | 取引態様 | 仲介 |
| 不動産会社管理番号 | 56792198 | 当社管理番号 | 4 |
| 所属団体 | (一社)大阪府宅地建物取引業協会 | ||
| 公正取引協議会 | (公社) 近畿地区不動産公正取引協議会加盟 | ||
| 取扱い物件情報 | 物件詳細へ | ||
※各種情報と現状に差異がある場合は、現状優先となります。問い合わせをすることで、より詳しい条件、情報を確認する事ができます。
提供:アパマンショップ高槻中央店
この物件が気になったら掲載期限まであと12日
アダージオに条件(家賃・エリア)が近い物件一覧
| 写真 | 家賃 管理費等 | 敷金 礼金 | 間取り 専有面積 | 築年数 | 最寄り駅 所在地 | キープ | 詳細 |
|---|---|---|---|---|---|---|---|
マンション エスポワール茨木(3LDK/2階) | |||||||
| 6.4万円 4,400円 | なし 6.4万円 | 3LDK 63.32m2 | 築32年 | 東海道本線 摂津富田駅 徒歩18分 東海道本線 JR総持寺駅 徒歩19分 阪急電鉄京都線 富田駅(大阪) 徒歩19分 大阪府茨木市東太田2丁目4-23 | 詳細を見る | ||
マンション はっぴぃ・かむ(ワンルーム/1階) | |||||||
| 6.2万円 5,000円 | なし 6.2万円 | ワンルーム 35m2 | 築21年 | 阪急電鉄京都線 上牧駅(大阪) 徒歩4分 東海道本線 島本駅 徒歩14分 阪急電鉄京都線 水無瀬駅 徒歩14分 大阪府高槻市 | 詳細を見る | ||
マンション ディアコート津田(2LDK/3階) | |||||||
![]() | 6.65万円 3,900円 | なし なし | 2LDK 60.36m2 | 築29年 | JR片町線 津田駅 徒歩3分 JR片町線 藤阪駅 徒歩23分 大阪府枚方市津田駅前 | 詳細を見る | |
アパート グリーンハイツA棟(1LDK/2階) | |||||||
| 6.5万円 3,000円 | 6.5万円 13万円 | 1LDK 36.4m2 | 築47年 | 阪急電鉄京都線 南茨木駅 徒歩11分 大阪モノレール本線 南茨木駅 徒歩11分 東海道本線 千里丘駅 徒歩15分 大阪府茨木市丑寅2丁目5-10 | 詳細を見る | ||
アパート パインオークV(1DK/1階) | |||||||
![]() | 6.8万円 3,500円 | なし 6.8万円 | 1DK 32.16m2 | 築6年 | 京阪本線 牧野駅 徒歩16分 京阪本線 樟葉駅 徒歩23分 京阪本線 御殿山駅 徒歩40分 大阪府枚方市樋之上町 | 詳細を見る | |
マンション ソルテラスOSAKA千里丘駅前(1LDK/10階) | |||||||
| 8.75万円 7,320円 | なし なし | 1LDK 27.82m2 | 新築 | 東海道本線 千里丘駅 徒歩4分 阪急電鉄京都線 摂津市駅 徒歩7分 大阪モノレール本線 沢良宜駅 徒歩16分 大阪府摂津市千里丘東2丁目49-2 | 詳細を見る | ||


