賃貸マンション
クリオ阪東橋の賃貸物件情報(2DK/11階)
| 家賃 | 管理費等 | 敷金 | 礼金 | 間取り | 専有面積 |
|---|---|---|---|---|---|
| 14.1万円 | 1万円 | 14.1万円 | 14.1万円 | 2DK | 45.96m2 |
入居決定でお祝い金最大100,000円
Point
収納はクロゼット・シューズボックスなど豊富なので、衣類や履き物の整理がしやすく便利です。
提供:ハウスコム東神奈川株式会社 関内店

詳細情報 クリオ阪東橋
物件紹介
クリオ阪東橋は京浜急行電鉄本線黄金町駅から徒歩4分にあり、駅近で通勤通学に便利なマンションです。
このお部屋は2階以上に位置しているので、通行人や周囲の住人からの視線が気になりにくく、防犯面でも安心。建物のエントランスはオートロックがついており、インターホンにはTVモニタもついているため、相手の顔を確認してから来客対応することができます。
おしゃれなデザイナーズ物件!人気の角部屋で周囲の居住者の生活音も気になりにくく、また、フローリングのお部屋なのでお掃除もラクラク。キッチンはシステムキッチン仕様になっていますので、お料理好きの方にもぴったり。バス・トイレは別なので、のんびりお風呂タイムも楽しめるでしょう。また、雨の日でも浴室乾燥機を使えば、お洗濯も問題ありません。
通信設備面では、インターネットが無料で使えるので、月々の出費を抑えられるのも魅力です。また、BSアンテナ・CSアンテナもありますので、おうち時間も充実するでしょう(別途工事、BS・CSの契約料等が必要な場合あり)。
建物にはエレベーターがついているので、重い荷物があっても安心。共用部には宅配ボックスが設定されているので、不在の時にも荷物を受け取ることができます。
このお部屋は2階以上に位置しているので、通行人や周囲の住人からの視線が気になりにくく、防犯面でも安心。建物のエントランスはオートロックがついており、インターホンにはTVモニタもついているため、相手の顔を確認してから来客対応することができます。
おしゃれなデザイナーズ物件!人気の角部屋で周囲の居住者の生活音も気になりにくく、また、フローリングのお部屋なのでお掃除もラクラク。キッチンはシステムキッチン仕様になっていますので、お料理好きの方にもぴったり。バス・トイレは別なので、のんびりお風呂タイムも楽しめるでしょう。また、雨の日でも浴室乾燥機を使えば、お洗濯も問題ありません。
通信設備面では、インターネットが無料で使えるので、月々の出費を抑えられるのも魅力です。また、BSアンテナ・CSアンテナもありますので、おうち時間も充実するでしょう(別途工事、BS・CSの契約料等が必要な場合あり)。
建物にはエレベーターがついているので、重い荷物があっても安心。共用部には宅配ボックスが設定されているので、不在の時にも荷物を受け取ることができます。
お金・契約の情報
※「-」と表示されているものは、実際は料金が発生するものもございます。詳細はお問い合わせください。
| 家賃 | 14.1万円 | 管理費・共益費 | 1万円 |
|---|---|---|---|
| 敷金 | 14.1万円 | 礼金 | 14.1万円 |
| 入居決定でお祝い金最大100,000円 | |||
| 保証金 | - | 償却・敷引 | - |
| 住宅保険料 | 1円 | 更新料 | - |
| その他費用 | SYLAプレミアムクラブ:2.42万円 | ||
| 保証会社利用 | 必須 | 保証会社名 | エルズサポート |
| 保証会社費用 | - | 保証会社備考 | 初回50%、月額保証料700円、月額事務手数料330円〜 外国籍の方:GTNを利用。初回保証料100%(最低保証料40,000円)、月額保証料1,000円 |
| 契約形態 | - | 契約期間 | 2年 |
| 入居・引渡期間 | 2026年02月下旬 | 現況 | - |
| 入居可能条件 | 2人入居可、ペット不可 | ||
| 契約備考 | 鍵交換費用:33000 室内清掃費用:82500 その他設備/条件:室内洗濯機置き場、独立洗面台、クローゼット、シューズボックス、分譲賃貸 | ||
部屋の情報
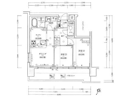
| 間取り | 2DK | 専有面積 | 45.96m2 |
|---|---|---|---|
| 間取り詳細 | 洋室(4.2帖)、D(6.7帖)、洋室(5.5帖)、K(3帖) | ||
| 所在階 / 向き | 11階 / 北西 | バルコニー面積 | 12m2 |
| 水道 / ガス | 水道【公営】、ガス【都市】 | ||
| 設備 | バス・トイレ別、オートロック、宅配ボックス、浴室乾燥機、追い焚き、インターネット対応、システムキッチン、カウンターキッチン、エアコン、エレベーター、バルコニー、フローリング、3口コンロ、CSアンテナ、BSアンテナ、インターネット使用料無料 | ||
| 当社物件ID | 13808930 | ||
建物の情報
| 建物名 | クリオ阪東橋 | ||
|---|---|---|---|
| 所在地 | 神奈川県横浜市中区末吉町3丁目 | ||
| 交通 | 京浜急行電鉄本線 黄金町駅 徒歩4分 横浜市ブルーライン 阪東橋駅 徒歩5分 | ||
| 階数 | 11階建 | 総戸数 | 50戸 |
| 築年月 | 2008年07月 / 築18年 | エレベーター | あり |
| 駐車場 | - | バイク置き場 | - |
| 駐輪場 | - | 管理人/管理会社 | - |
| 周辺環境 | その他 ドラッグストア その他 公園 その他 銀行 その他 * | ||
| 建物種別 | マンション | 建物構造 | RC(鉄筋コンクリート) |
この部屋の取扱い不動産会社
| 会社名 | ハウスコム東神奈川株式会社 関内店 | ||
|---|---|---|---|
| 所在地 | 神奈川県横浜市中区15-1フィル・パーク関内駅前Ⅱ5階 | 交通 | - |
| 営業時間 | 10:00~18:00 | 定休日 | 水曜定休 |
| 免許番号 | 神奈川県知事(1)第31769号 | 取引態様 | 仲介 |
| 不動産会社管理番号 | HC5-5283342-1101-0205 | 当社管理番号 | 468 |
| 所属団体 | 、 | ||
| 取扱い物件情報 | 物件詳細へ | ||
※各種情報と現状に差異がある場合は、現状優先となります。問い合わせをすることで、より詳しい条件、情報を確認する事ができます。
提供:ハウスコム東神奈川株式会社 関内店
この物件が気になったら掲載期限まであと4日
クリオ阪東橋に条件(家賃・エリア)が近い物件一覧
| 写真 | 家賃 管理費等 | 敷金 礼金 | 間取り 専有面積 | 築年数 | 最寄り駅 所在地 | キープ | 詳細 |
|---|---|---|---|---|---|---|---|
マンション ガーラ・グランディ新丸子(1K/11階) | |||||||
![]() | 8.8万円 9,000円 | 8.8万円 17.6万円 | 1K 20m2 | 築8年 | 東急東横線 新丸子駅 徒歩4分 東急目黒線 新丸子駅 徒歩4分 東急東横線 武蔵小杉駅 徒歩10分 神奈川県川崎市中原区丸子通 | 詳細を見る | |
マンション ラシーヌ(1LDK/8階) | |||||||
![]() | 15.1万円 6,500円 | なし 30.2万円 | 1LDK 43.3m2 | 新築 | 小田急線 向ケ丘遊園駅 徒歩6分 小田急線 登戸駅 徒歩10分 JR南武線 登戸駅 徒歩11分 神奈川県川崎市多摩区登戸 | 詳細を見る | |
マンション ホーユウパレス宮前平第二(3LDK/7階) | |||||||
![]() | 9.9万円 1.9万円 | 9.9万円 9.9万円 | 3LDK 63.79m2 | 築39年 | 神奈川県川崎市宮前区菅生ケ丘 | 詳細を見る | |
マンション アスターミキ(2LDK/3階) | |||||||
![]() | 14.5万円 8,500円 | なし 14.5万円 | 2LDK 65.04m2 | 新築 | 小田急線 生田駅(神奈川) 徒歩29分 小田急線 読売ランド前駅 徒歩41分 神奈川県川崎市多摩区長沢 | 詳細を見る | |
マンション イースト SEDONA(2LDK/3階) | |||||||
![]() | 20.3万円 1.25万円 | 20.3万円 20.3万円 | 2LDK 58.36m2 | 築1年 | JR南武線 中野島駅 徒歩15分 小田急線 向ケ丘遊園駅 徒歩17分 小田急線 登戸駅 徒歩20分 神奈川県川崎市多摩区登戸 | 詳細を見る | |
アパート フォンターナ(1LDK/1階) | |||||||
![]() | 11万円 5,500円 | なし 11万円 | 1LDK 40.37m2 | 築10年 | JR南武線 中野島駅 徒歩7分 JR南武線 稲田堤駅 徒歩21分 京王相模原線 京王稲田堤駅 徒歩24分 神奈川県川崎市多摩区中野島 | 詳細を見る | |
マンション アザリー武蔵小杉(1K/4階) | |||||||
![]() | 9万円 5,000円 | 9万円 9万円 | 1K 22.73m2 | 築15年 | JR横須賀線 武蔵小杉駅 徒歩8分 東急東横線 元住吉駅 徒歩10分 JR南武線 武蔵小杉駅 徒歩12分 神奈川県川崎市中原区今井南町 | 詳細を見る | |
マンション シーフォルムカワサキ(1DK/3階) | |||||||
![]() | 10.8万円 1万円 | 10.8万円 10.8万円 | 1DK 26.72m2 | 築5年 | JR京浜東北線 川崎駅 徒歩7分 京急本線 京急川崎駅 徒歩8分 京急大師線 港町駅 徒歩17分 神奈川県川崎市川崎区東田町 | 詳細を見る | |









