賃貸マンション
グランド・ガーラ桜木町駅前の賃貸物件情報(1K/7階)
| 家賃 | 管理費等 | 敷金 | 礼金 | 間取り | 専有面積 |
|---|---|---|---|---|---|
| 8.1万円 | 8,000円 | 8.1万円 | 16.2万円 | 1K | 20.02m2 |
入居決定でお祝い金最大100,000円
- 保証金
- -
- 償却・敷引
- -
- 築年数
- 築14年
- 所在階
- 7階
- 向き
- 北東
Point
まずはお問い合わせ!
不動産会社は街のプロ、あなたに合った物件がきっと見つかります。
提供:(株)ライフサロン横浜(SUUMO経由)

詳細情報 グランド・ガーラ桜木町駅前
物件紹介
グランド・ガーラ桜木町駅前はブルーライン桜木町駅から徒歩1分にあり、駅近で通勤通学に便利なマンションです。
このお部屋は2階以上に位置しているので、通行人や周囲の住人からの視線が気になりにくく、防犯面でも安心。建物のエントランスはオートロックがついており、インターホンにはTVモニタもついているため、相手の顔を確認してから来客対応することができます。
フローリングのお部屋なのでお掃除もラクラク。キッチンはシステムキッチン仕様になっていますので、お料理好きの方にもぴったり。バス・トイレは別なので、のんびりお風呂タイムも楽しめるでしょう。また、雨の日でも浴室乾燥機を使えば、お洗濯も問題ありません。
通信設備面では、インターネット接続が可能です(別途工事、契約料が必要な場合あり)。
建物にはエレベーターがついているので、重い荷物があっても安心。共用部には宅配ボックスが設定されているので、不在の時にも荷物を受け取ることができます。
このお部屋は2階以上に位置しているので、通行人や周囲の住人からの視線が気になりにくく、防犯面でも安心。建物のエントランスはオートロックがついており、インターホンにはTVモニタもついているため、相手の顔を確認してから来客対応することができます。
フローリングのお部屋なのでお掃除もラクラク。キッチンはシステムキッチン仕様になっていますので、お料理好きの方にもぴったり。バス・トイレは別なので、のんびりお風呂タイムも楽しめるでしょう。また、雨の日でも浴室乾燥機を使えば、お洗濯も問題ありません。
通信設備面では、インターネット接続が可能です(別途工事、契約料が必要な場合あり)。
建物にはエレベーターがついているので、重い荷物があっても安心。共用部には宅配ボックスが設定されているので、不在の時にも荷物を受け取ることができます。
お金・契約の情報
※「-」と表示されているものは、実際は料金が発生するものもございます。詳細はお問い合わせください。
| 家賃 | 8.1万円 | 管理費・共益費 | 8,000円 |
|---|---|---|---|
| 敷金 | 8.1万円 | 礼金 | 16.2万円 |
| 入居決定でお祝い金最大100,000円 | |||
| 保証金 | - | 償却・敷引 | - |
| 住宅保険料 | - | 更新料 | - |
| 保証会社利用 | 必須 | 保証会社名 | - |
| 保証会社費用 | - | 保証会社備考 | 保証会社利用必 賃貸保証料:0.50ヶ月 保証料:賃料等の0.5ヶ月分(最低保証料2万円)/月額保証料 賃料等の1.2% |
| 契約形態 | - | 契約期間 | - |
| 入居・引渡期間 | - | 現況 | - |
| 契約備考 | 横浜市ブルーライン関内駅徒歩9分 合計10.08万円(内訳:鍵交換代:23100円/室内清掃費用:38500円/エアコンクリーニング費用/1基:13200円/火災保険料(地震特約付き):26000円) 更新料新賃料(ヶ月):1.00ヶ月 1K 普通借家2年 損保【2.6万円2年】 バストイレ別、バルコニー、エアコン、ガスコンロ対応、クロゼット、フローリング、TVインターホン、浴室乾燥機、オートロック、室内洗濯置、陽当り良好、シューズボックス、システムキッチン、温水洗浄便座、脱衣所、エレベーター、洗面所独立、2口コンロ、駐輪場、宅配ボックス、光ファイバー、外壁タイル張り、防犯カメラ、照明付、全居室収納、グリル付、全居室洋室、保証人不要、敷金1ヶ月、カードキー、全居室フローリング、ネット専用回線、駅まで平坦、保証金不要、24時間換気システム、フロントサービス、平坦地、人感照明センサー、エレベーター2基、2駅利用可、3駅以上利用可、3沿線以上利用可、駅前、駅徒歩5分以内、駅徒歩10分以内、二重床構造、二重天井構造、24時間ゴミ出し可、敷地内ごみ置き場、都市ガス、玄関収納、オートライト、ダウンライト、高速ネット対応、礼金2ヶ月、IT重説対応物件、初期費用カード決済可、家賃カード決済可 入居日:'25年12月下旬 | ||
部屋の情報
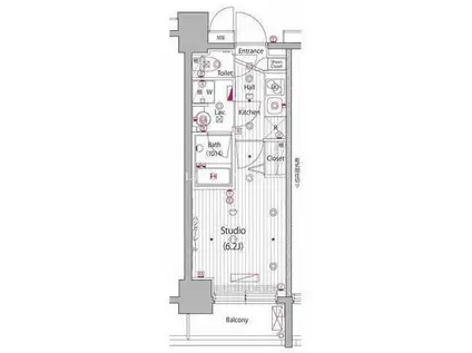
| 間取り | 1K | 専有面積 | 20.02m2 |
|---|---|---|---|
| 所在階 / 向き | 7階 / 北東 | バルコニー面積 | 3m2 |
| 水道 / ガス | - | ||
| 設備 | バス・トイレ別、2階以上、オートロック、テレビドアホン、宅配ボックス、浴室乾燥機、インターネット対応、システムキッチン、エアコン、エレベーター、温水洗浄便座、バルコニー、フローリング、洗髪洗面化粧台、2口コンロ、コンロ:ガス、洗濯機:室内 | ||
| 当社物件ID | 20643005 | ||
建物の情報
| 建物名 | グランド・ガーラ桜木町駅前 | ||
|---|---|---|---|
| 所在地 | 神奈川県横浜市中区花咲町 | ||
| 交通 | ブルーライン 桜木町駅 徒歩1分 みなとみらい線 馬車道駅 徒歩7分 京急本線 日ノ出町駅 徒歩9分 | ||
| 階数 | 地下1地上11階建 | 総戸数 | - |
| 築年月 | 2012年05月 / 築14年 | エレベーター | あり |
| 駐車場 | なし | バイク置き場 | - |
| 駐輪場 | あり | 管理人/管理会社 | - |
| 周辺環境 | その他 桜木町駅(JR 根岸線)(その他)まで260m その他 馬車道駅(横浜高速鉄道 みなとみらい線)(その他)まで610m その他 日ノ出町駅(京急 本線)(その他)まで600m その他 関内駅(JR 根岸線)(その他)まで950m その他 桜木町ぴおシティ(ショッピングセンター)まで160m その他 JR桜木町ビル(ショッピングセンター)まで230m | ||
| 建物種別 | マンション | 建物構造 | RC(鉄筋コンクリート) |
この部屋の取扱い不動産会社
| 会社名 | (株)ライフサロン横浜(SUUMO経由) | ||
|---|---|---|---|
| 所在地 | 神奈川県横浜市中区万代町3-5-8大久保ビル1階 | 交通 | - |
| 営業時間 | 9:30~18:30 | 定休日 | 第1・3火曜日 毎週水曜日 |
| 免許番号 | 神奈川県知事28172 | 取引態様 | 仲介 |
| 不動産会社管理番号 | 100476258079 | 当社管理番号 | 89 |
| 所属団体 | (公社)神奈川県宅地建物取引業協会会員 | ||
| 公正取引協議会 | (公社)首都圏不動産公正取引協議会加盟 | ||
| 取扱い物件情報 | 物件詳細へ | ||
※各種情報と現状に差異がある場合は、現状優先となります。問い合わせをすることで、より詳しい条件、情報を確認する事ができます。
提供:(株)ライフサロン横浜(SUUMO経由)
この物件が気になったら掲載期限まであと12日
グランド・ガーラ桜木町駅前に条件(家賃・エリア)が近い物件一覧
| 写真 | 家賃 管理費等 | 敷金 礼金 | 間取り 専有面積 | 築年数 | 最寄り駅 所在地 | キープ | 詳細 |
|---|---|---|---|---|---|---|---|
マンション GENOVIA二子新地(1K/2階) | |||||||
![]() | 12.4万円 1万円 | なし なし | 1K 25.35m2 | 築1年 | 東急田園都市線 二子新地駅 徒歩5分 東急田園都市線 高津駅(神奈川) 徒歩11分 東急田園都市線 二子玉川駅 徒歩13分 神奈川県川崎市高津区瀬田 | 詳細を見る | |
マンション ハイツ兼信(2DK/3階) | |||||||
![]() | 7万円 なし | 7万円 7万円 | 2DK 35.64m2 | 築51年 | グリーンライン 東山田駅 徒歩33分 神奈川県川崎市宮前区南野川 | 詳細を見る | |
マンション LEXE 横濱関内(1K/3階) | |||||||
![]() | 8.95万円 1.2万円 | なし なし | 1K 25.93m2 | 築1年 | 京浜急行電鉄本線 日ノ出町駅 徒歩5分 神奈川県横浜市中区福富町西通 | 詳細を見る | |
マンション ラフィスタ元町Ⅱ(1K/1階) | |||||||
![]() | 8.45万円 1.5万円 | なし なし | 1K 22.16m2 | 築3年 | 横浜高速鉄道MM線 元町・中華街駅 徒歩6分 神奈川県横浜市中区新山下1丁目 | 詳細を見る | |
マンション コーポラスノグチ(1K/3階) | |||||||
![]() | 5.7万円 3,000円 | 5.7万円 なし | 1K 22.41m2 | 築36年 | JR南武線 向河原駅 徒歩3分 JR横須賀線 武蔵小杉駅 徒歩8分 東急東横線 武蔵小杉駅 徒歩15分 神奈川県川崎市中原区下沼部 | 詳細を見る | |
マンション サンローレル(2LDK/3階) | |||||||
![]() | 12.4万円 6,500円 | なし 24.8万円 | 2LDK 50.58m2 | 築13年 | JR南武線 川崎新町駅 徒歩6分 神奈川県川崎市川崎区渡田 | 詳細を見る | |
マンション CREST TAPP 川崎II(1K/11階) | |||||||
![]() | 9.72万円 1万円 | なし なし | 1K 20.95m2 | 築1年 | 京急大師線 京急川崎駅 徒歩9分 京急本線 六郷土手駅 徒歩16分 JR京浜東北線 川崎駅 徒歩18分 神奈川県川崎市川崎区本町 | 詳細を見る | |
アパート マリン・コア(2DK/2階) | |||||||
![]() | 8.5万円 3,000円 | 17万円 なし | 2DK 44.3m2 | 築59年 | 小田急電鉄江ノ島線 鵠沼海岸駅 徒歩4分 江ノ島電鉄 鵠沼駅 徒歩10分 神奈川県藤沢市鵠沼松が岡3丁目 | 詳細を見る | |




/105x80-f1-q70-wp1)




