賃貸アパート
ハイムさくらの賃貸物件情報(2LDK/2階)
| 家賃 | 管理費等 | 敷金 | 礼金 | 間取り | 専有面積 |
|---|---|---|---|---|---|
| 4.4万円 | 2,500円 | なし | なし | 2LDK | 50.08m2 |
入居決定でお祝い金最大100,000円
- 保証金
- -
- 償却・敷引
- -
- 築年数
- 築25年
- 所在階
- 2階
- 向き
- 南
Point
柴田町のお部屋探しはピタットハウスの(株)FNEXTにお任せ下さい♪県南地域・岩沼市・名取市の物件情報多数♪セキスイハイム施工♪人気の中階段タイプ♪追い焚き・温水洗浄便座・物置あり♪
提供:(株)伸和(SUUMO経由)

詳細情報 ハイムさくら
物件紹介
ハイムさくらはJR東北本線船岡駅から徒歩9分にあり、駅近で通勤通学に便利なアパートです。
このお部屋は2階以上に位置しているので、通行人や周囲の住人からの視線が気になりにくく、防犯面でも安心。インターホンにはTVモニタもついているため、相手の顔を確認してから来客対応することができます。
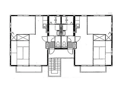
人気の南向き・フローリングのお部屋。角部屋でもあるため、周囲の居住者の生活音も気になりにくい場所です。バス・トイレ別の仕様で、のんびりお風呂タイムも楽しめます。
通信設備面ではBSアンテナがありますので、おうち時間も充実するでしょう(別途工事、契約料が必要な場合あり)。
このお部屋は2階以上に位置しているので、通行人や周囲の住人からの視線が気になりにくく、防犯面でも安心。インターホンにはTVモニタもついているため、相手の顔を確認してから来客対応することができます。
人気の南向き・フローリングのお部屋。角部屋でもあるため、周囲の居住者の生活音も気になりにくい場所です。バス・トイレ別の仕様で、のんびりお風呂タイムも楽しめます。
通信設備面ではBSアンテナがありますので、おうち時間も充実するでしょう(別途工事、契約料が必要な場合あり)。
お金・契約の情報
※「-」と表示されているものは、実際は料金が発生するものもございます。詳細はお問い合わせください。
| 家賃 | 4.4万円 | 管理費・共益費 | 2,500円 |
|---|---|---|---|
| 敷金 | なし | 礼金 | なし |
| 入居決定でお祝い金最大100,000円 | |||
| 保証金 | - | 償却・敷引 | - |
| 住宅保険料 | - | 更新料 | - |
| 保証会社利用 | 必須 | 保証会社名 | - |
| 保証会社費用 | - | 保証会社備考 | 保証会社利用必 初回保証料賃料総額の50%及び毎月賃料総額の1.2%手数料 |
| 契約形態 | - | 契約期間 | - |
| 入居・引渡期間 | 即時 | 現況 | - |
| 契約備考 | 巡回管理 合計1.65万円(内訳:ハイム´SCLUB:16,500円(2年分)) 2LDK 損保【要】 バストイレ別、バルコニー、エアコン、ガスコンロ対応、クロゼット、TVインターホン、室内洗濯置、シューズボックス、南向き、追焚機能浴室、角住戸、温水洗浄便座、脱衣所、洗面所独立、最上階、保証人不要、全居室フローリング、物置、南面リビング、平面駐車場、南面バルコニー、BS、IT重説対応物件、初期費用カード決済可 | ||
部屋の情報
| 間取り | 2LDK | 専有面積 | 50.08m2 |
|---|---|---|---|
| 所在階 / 向き | 2階 / 南 | バルコニー面積 | - |
| 水道 / ガス | - | ||
| 設備 | バス・トイレ別、2階以上、テレビドアホン、追い焚き、エアコン、温水洗浄便座、南向き、角部屋、バルコニー、フローリング、洗髪洗面化粧台、コンロ:ガス、BSアンテナ、洗濯機:室内 | ||
| 当社物件ID | 29616689 | ||
建物の情報
| 建物名 | ハイムさくら | ||
|---|---|---|---|
| 所在地 | 宮城県柴田郡柴田町大字船岡新生町 | ||
| 交通 | JR東北本線 船岡駅(宮城) 徒歩9分 JR東北本線 大河原駅(宮城) 徒歩49分 JR東北本線 槻木駅 徒歩58分 | ||
| 階数 | 2階建 | 総戸数 | 4戸 |
| 築年月 | 2001年02月 / 築25年 | エレベーター | - |
| 駐車場 | 空有 2200円 | バイク置き場 | - |
| 駐輪場 | - | 管理人/管理会社 | - |
| 周辺環境 | その他 イオン船岡店(スーパー)まで973m その他 柴田町立船迫中学校(中学校)まで1327m その他 柴田町立船迫小学校(小学校)まで948m その他 幸楽苑柴田店(飲食店)まで362m その他 すき家4号柴田店(飲食店)まで514m その他 セブンイレブン柴田バイパス店(コンビニ)まで912m | ||
| 建物種別 | アパート | 建物構造 | 軽量鉄骨造 |
この部屋の取扱い不動産会社
| 会社名 | ピタットハウス岩沼店(株)F-NEXT(SUUMO経由) | ||
|---|---|---|---|
| 所在地 | 宮城県岩沼市桜5-4-47 | 交通 | - |
| 営業時間 | 9:00~18:00 | 定休日 | 毎週水曜日 |
| 免許番号 | 宮城県知事7203 | 取引態様 | 仲介 |
| 不動産会社管理番号 | 100456846481 | 当社管理番号 | 89 |
| 所属団体 | (公社)全日本不動産協会宮城県本部会員 | ||
| 公正取引協議会 | 東北地区不動産公正取引協議会加盟 | ||
| 取扱い物件情報 | 物件詳細へ | ||
※各種情報と現状に差異がある場合は、現状優先となります。問い合わせをすることで、より詳しい条件、情報を確認する事ができます。
提供:ピタットハウス岩沼店(株)F-NEXT(SUUMO経由)
この物件が気になったら掲載期限まであと4日
ハイムさくらに条件(家賃・エリア)が近い物件一覧
| 写真 | 家賃 管理費等 | 敷金 礼金 | 間取り 専有面積 | 築年数 | 最寄り駅 所在地 | キープ | 詳細 |
|---|---|---|---|---|---|---|---|
アパート コーポ山田(1LDK/1階) | |||||||
![]() | 3.3万円 2,000円 | なし なし | 1LDK 44.71m2 | 築35年 | JR東北本線 大河原駅(宮城) 徒歩13分 JR東北本線 船岡駅(宮城) 徒歩35分 阿武隈急行 東船岡駅 徒歩57分 宮城県柴田郡大河原町字高砂町 | 詳細を見る | |
アパート ベリエ・セゾンA(2LDK/2階) | |||||||
![]() | 4.7万円 1,500円 | なし なし | 2LDK 58.12m2 | 築23年 | JR東北本線 槻木駅 徒歩12分 阿武隈急行 東船岡駅 徒歩58分 JR東北本線 船岡駅(宮城) 徒歩63分 宮城県柴田郡柴田町槻木駅西 | 詳細を見る | |
アパート BEL SUONO(1LDK/2階) | |||||||
![]() | 5.1万円 3,500円 | なし なし | 1LDK 43.19m2 | 築1年 | JR東北本線 大河原駅(宮城) 徒歩22分 宮城県柴田郡大河原町字南原町 | 詳細を見る | |
アパート コーポはらまえ(1K/2階) | |||||||
![]() | 3.3万円 なし | なし なし | 1K 23m2 | 築39年 | JR東北本線 船岡駅(宮城) 徒歩15分 阿武隈急行 東船岡駅 徒歩24分 宮城県柴田郡柴田町船岡東 | 詳細を見る | |
アパート グリーンベル(2DK/1階) | |||||||
![]() | 3.7万円 1,500円 | 3.7万円 なし | 2DK 50.92m2 | 築29年 | JR東北本線 船岡駅(宮城) 徒歩16分 宮城県柴田郡柴田町西船迫 | 詳細を見る | |
アパート レオパレスフローラ新町(1K/2階) | |||||||
![]() | 3.8万円 4,000円 | なし なし | 1K 28.02m2 | 築19年 | 常磐線 亘理駅 徒歩6分 宮城県亘理郡亘理町 | 詳細を見る | |
アパート シティハイムパラダイス(3K/2階) | |||||||
![]() | 4.5万円 2,000円 | 9万円 なし | 3K 38.88m2 | 築31年 | 東北本線 船岡駅(宮城) 徒歩5分 宮城県柴田郡柴田町船岡中央1丁目 | 詳細を見る | |
マンション パセオプラシード弐番館(1K/2階) | |||||||
![]() | 3.8万円 3,500円 | なし なし | 1K 25.37m2 | 築21年 | 常磐線 亘理駅 徒歩5分 宮城県亘理郡亘理町 | 詳細を見る | |




/105x80-f1-q70-wp1)
/105x80-f1-q70-wp1)
/105x80-f1-q70-wp1)