賃貸マンション
クレヴィア神戸ポートアイランドの賃貸物件情報(3LDK/8階)
| 家賃 | 管理費等 | 敷金 | 礼金 | 間取り | 専有面積 |
|---|---|---|---|---|---|
| 18万円 | なし | 18万円 | 36万円 | 3LDK | 68.23m2 |
入居決定でお祝い金最大100,000円
- 保証金
- -
- 償却・敷引
- -
- 築年数
- 築8年
- 所在階
- 8階
- 向き
- 南西
Point
築浅分譲貸物件☆エアコン3台、照明器具付き☆最新設備☆駅前徒歩1分☆
提供:いい部屋ネット大東建託リーシング(株)三宮店(SUUMO経由)

詳細情報 クレヴィア神戸ポートアイランド
物件紹介
クレヴィア神戸ポートアイランドはポートアイランド線南公園駅から徒歩1分にあり、駅近で通勤通学に便利なマンションです。
このお部屋は2階以上に位置しているので、通行人や周囲の住人からの視線が気になりにくく、防犯面でも安心。建物のエントランスはオートロックがついており、インターホンにはTVモニタもついているため、相手の顔を確認してから来客対応することができます。
おしゃれなデザイナーズ物件!人気の南向き・フローリングのお部屋。角部屋でもあるため、周囲の居住者の生活音も気になりにくい場所です。室内にはウォークインクローゼットがありますので、たくさんの荷物も効率的に収納ができます。キッチンはシステムキッチン仕様になっていますので、お料理好きの方にもぴったり。バス・トイレは別なので、のんびりお風呂タイムも楽しめるでしょう。また、雨の日でも浴室乾燥機を使えば、お洗濯も問題ありません。
通信設備面では、インターネットが無料で使えるので、月々の出費を抑えられるのも魅力です。また、BSアンテナ・CSアンテナがありCATVにも対応しているので、おうち時間も充実するでしょう(別途工事、BS・CS・CATVの契約料等が必要な場合あり)。
床暖房があり、冬も足元から暖かく快適に過ごすことができます。建物にはエレベーターがついているので、重い荷物があっても安心。共用部には宅配ボックスが設定されているので、不在の時にも荷物を受け取ることができます。
このお部屋は2階以上に位置しているので、通行人や周囲の住人からの視線が気になりにくく、防犯面でも安心。建物のエントランスはオートロックがついており、インターホンにはTVモニタもついているため、相手の顔を確認してから来客対応することができます。
おしゃれなデザイナーズ物件!人気の南向き・フローリングのお部屋。角部屋でもあるため、周囲の居住者の生活音も気になりにくい場所です。室内にはウォークインクローゼットがありますので、たくさんの荷物も効率的に収納ができます。キッチンはシステムキッチン仕様になっていますので、お料理好きの方にもぴったり。バス・トイレは別なので、のんびりお風呂タイムも楽しめるでしょう。また、雨の日でも浴室乾燥機を使えば、お洗濯も問題ありません。
通信設備面では、インターネットが無料で使えるので、月々の出費を抑えられるのも魅力です。また、BSアンテナ・CSアンテナがありCATVにも対応しているので、おうち時間も充実するでしょう(別途工事、BS・CS・CATVの契約料等が必要な場合あり)。
床暖房があり、冬も足元から暖かく快適に過ごすことができます。建物にはエレベーターがついているので、重い荷物があっても安心。共用部には宅配ボックスが設定されているので、不在の時にも荷物を受け取ることができます。
お金・契約の情報
※「-」と表示されているものは、実際は料金が発生するものもございます。詳細はお問い合わせください。
| 家賃 | 18万円 | 管理費・共益費 | なし |
|---|---|---|---|
| 敷金 | 18万円 | 礼金 | 36万円 |
| 入居決定でお祝い金最大100,000円 | |||
| 保証金 | - | 償却・敷引 | - |
| 住宅保険料 | - | 更新料 | - |
| 契約形態 | - | 契約期間 | - |
| 入居・引渡期間 | - | 現況 | - |
| 契約備考 | 巡回管理/家賃保証会社加入 3LDK 普通借家2年 損保【要】 バストイレ別、バルコニー、エアコン、ガスコンロ対応、クロゼット、フローリング、TVインターホン、浴室乾燥機、オートロック、室内洗濯置、陽当り良好、シューズボックス、システムキッチン、追焚機能浴室、温水洗浄便座、脱衣所、エレベーター、洗面所独立、駐輪場、宅配ボックス、CATV、光ファイバー、外壁タイル張り、閑静な住宅地、BS・CS、3口以上コンロ、対面式キッチン、防犯カメラ、照明付、全居室収納、振分、CATVインターネット、バイク置場、CS、駅まで平坦、ネット使用料不要、床暖房、食器洗乾燥機、眺望良好、24時間換気システム、エアコン3台、フロントサービス、平坦地、エレベーター2基、ISDN対応、始発駅、3駅以上利用可、駅前、駅徒歩5分以内、平面駐車場、南西向き、LDK12畳以上、都市ガス、洗面所にドア、玄関収納、BS、高速ネット対応、LAN、IT重説対応物件、通風良好 入居日:'26年4月上旬 | ||
部屋の情報
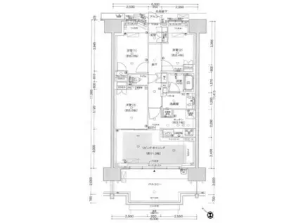
| 間取り | 3LDK | 専有面積 | 68.23m2 |
|---|---|---|---|
| 所在階 / 向き | 8階 / 南西 | バルコニー面積 | - |
| 水道 / ガス | - | ||
| 設備 | バス・トイレ別、2階以上、オートロック、テレビドアホン、宅配ボックス、浴室乾燥機、追い焚き、インターネット対応、システムキッチン、エアコン、エレベーター、温水洗浄便座、南向き、バルコニー、フローリング、洗髪洗面化粧台、床暖房、2口コンロ、コンロ:ガス、CATV、CSアンテナ、BSアンテナ、インターネット使用料無料、洗濯機:室内 | ||
| 当社物件ID | 34301870 | ||
建物の情報
| 建物名 | クレヴィア神戸ポートアイランド | ||
|---|---|---|---|
| 所在地 | 兵庫県神戸市中央区港島中町 | ||
| 交通 | ポートアイランド線 南公園駅 徒歩1分 ポートアイランド線 市民広場駅 徒歩9分 ポートアイランド線 医療センター駅 徒歩10分 | ||
| 階数 | 15階建 | 総戸数 | - |
| 築年月 | 2018年08月 / 築8年 | エレベーター | あり |
| 駐車場 | 空有 1500円/平置駐 | バイク置き場 | あり |
| 駐輪場 | あり | 管理人/管理会社 | - |
| 周辺環境 | その他 グルメシティポートアイランド店(スーパー)まで915m その他 トーホーストアポーアイ店(スーパー)まで985m その他 セブンイレブン神戸港島中町6丁目店(コンビニ)まで468m その他 ローソンポートピアプラザ店(コンビニ)まで684m その他 IKEA神戸(ホームセンター)まで110m その他 兵庫県立こども病院(病院)まで176m | ||
| 建物種別 | マンション | 建物構造 | RC(鉄筋コンクリート) |
この部屋の取扱い不動産会社
| 会社名 | ホームメイトFC神戸三宮店(株)NextAge(SUUMO経由) | ||
|---|---|---|---|
| 所在地 | 兵庫県神戸市中央区北長狭通1-20-2 JP三宮駅前ビル6階 6C号室 | 交通 | - |
| 営業時間 | 10:00~19:00 | 定休日 | 無し |
| 免許番号 | 兵庫県知事11454 | 取引態様 | 仲介 |
| 不動産会社管理番号 | 100488948610 | 当社管理番号 | 89 |
| 所属団体 | (一社)兵庫県宅地建物取引業協会会員 | ||
| 公正取引協議会 | (公社)近畿地区不動産公正取引協議会加盟 | ||
| 取扱い物件情報 | 物件詳細へ | ||
※各種情報と現状に差異がある場合は、現状優先となります。問い合わせをすることで、より詳しい条件、情報を確認する事ができます。
提供:ホームメイトFC神戸三宮店(株)NextAge(SUUMO経由)
この物件が気になったら掲載期限まであと11日
クレヴィア神戸ポートアイランドに条件(家賃・エリア)が近い物件一覧
| 写真 | 家賃 管理費等 | 敷金 礼金 | 間取り 専有面積 | 築年数 | 最寄り駅 所在地 | キープ | 詳細 |
|---|---|---|---|---|---|---|---|
アパート LA MAISON林崎(2LDK/2階) | |||||||
![]() | 12.5万円 7,000円 | 3万円 25万円 | 2LDK 58.68m2 | 築1年 | 山陽電気鉄道本線 林崎松江海岸駅 徒歩9分 山陽電気鉄道本線 西新町駅 徒歩12分 兵庫県明石市林崎1 | 詳細を見る | |
マンション GROOVE上甲子園レジデンス(3LDK/4階) | |||||||
![]() | 18.4万円 1万円 | なし なし | 3LDK 68.44m2 | 築1年 | 阪神電鉄本線 久寿川駅 徒歩11分 阪急電鉄今津線 阪神国道駅 徒歩14分 阪神電鉄本線 甲子園駅 徒歩17分 兵庫県西宮市上甲子園4丁目 | 詳細を見る | |
アパート シャーメゾンさくら大久保駅前(2LDK/4階) | |||||||
![]() | 13.9万円 1.05万円 | 3万円 なし | 2LDK 62.54m2 | 築3年 | JR山陽本線 大久保駅(兵庫) 徒歩2分 山陽電鉄本線 中八木駅 徒歩23分 山陽電鉄本線 江井ケ島駅 徒歩25分 兵庫県明石市大久保町駅前 | 詳細を見る | |
アパート グランアヴァンティ2B(2DK/2階) | |||||||
![]() | 11万円 6,000円 | 3万円 20万円 | 2DK 53.48m2 | 築13年 | 山陽電気鉄道本線 中八木駅 徒歩12分 山陽本線 大久保駅(兵庫) 徒歩20分 兵庫県明石市大久保町谷八木 | 詳細を見る | |
一戸建て 山陽本線 魚住駅 徒歩25分 築40年(4SDK) | |||||||
![]() | 12万円 なし | なし 12万円 | 4SDK 86.95m2 | 築40年 | 山陽本線 魚住駅 徒歩25分 山陽本線 土山駅 徒歩28分 兵庫県加古郡稲美町六分一 | 詳細を見る | |
マンション フェリッツ上甲子園(2LDK/2階) | |||||||
![]() | 15万円 5,000円 | なし 30万円 | 2LDK 83.31m2 | 築29年 | 阪神電鉄本線 久寿川駅 徒歩12分 阪急電鉄今津線 阪神国道駅 徒歩15分 阪神電鉄本線 甲子園駅 徒歩16分 兵庫県西宮市上甲子園4丁目 | 詳細を見る | |
アパート モダンパレス(2LDK/2階) | |||||||
![]() | 12.35万円 3,000円 | なし 14万円 | 2LDK 59.58m2 | 築1年 | JR山陽本線 大久保駅(兵庫) 徒歩12分 兵庫県明石市大久保町大窪 | 詳細を見る | |
アパート エルビエントⅡ(2LDK/3階) | |||||||
![]() | 11.6万円 6,500円 | 3万円 25万円 | 2LDK 58.38m2 | 築9年 | 山陽本線 大久保駅(兵庫) 徒歩11分 山陽電気鉄道本線 中八木駅 徒歩26分 山陽電気鉄道本線 藤江駅 徒歩37分 兵庫県明石市大久保町大窪 | 詳細を見る | |







