賃貸アパート
リノリノアパートメント吉島の賃貸物件情報(ワンルーム/2階)
| 家賃 | 管理費等 | 敷金 | 礼金 | 間取り | 専有面積 |
|---|---|---|---|---|---|
| 6.3万円 | 3,000円 | 6.3万円 | なし | ワンルーム | 32.95m2 |
入居決定でお祝い金最大100,000円
Point
来店しないお部屋探し、オンライン来店実施しております♪
提供:アパマンショップ新白島駅前店

詳細情報 リノリノアパートメント吉島
物件紹介
リノリノアパートメント吉島は広島電鉄江波線舟入南駅から徒歩8分にあり、駅近で通勤通学に便利なアパートです。
このお部屋は2階以上に位置しているので、通行人や周囲の住人からの視線が気になりにくく、防犯面でも安心。建物のエントランスはオートロックがついており、インターホンにはTVモニタもついているため、相手の顔を確認してから来客対応することができます。
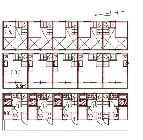
おしゃれなデザイナーズ物件!フローリングのお部屋なのでお掃除もラクラク。室内には人気のウォークインクローゼットとロフトがありますので、たくさんの荷物も効率的に収納ができ、お部屋のアレンジも自在です。キッチンはシステムキッチン仕様になっていますので、お料理好きの方にもぴったり。バス・トイレは別なので、のんびりお風呂タイムも楽しめるでしょう。また、雨の日でも浴室乾燥機を使えば、お洗濯も問題ありません。
通信設備面では、インターネットが無料で使えるので、月々の出費を抑えられるのも魅力です(別途工事等が必要な場合あり)。
このお部屋は2階以上に位置しているので、通行人や周囲の住人からの視線が気になりにくく、防犯面でも安心。建物のエントランスはオートロックがついており、インターホンにはTVモニタもついているため、相手の顔を確認してから来客対応することができます。
おしゃれなデザイナーズ物件!フローリングのお部屋なのでお掃除もラクラク。室内には人気のウォークインクローゼットとロフトがありますので、たくさんの荷物も効率的に収納ができ、お部屋のアレンジも自在です。キッチンはシステムキッチン仕様になっていますので、お料理好きの方にもぴったり。バス・トイレは別なので、のんびりお風呂タイムも楽しめるでしょう。また、雨の日でも浴室乾燥機を使えば、お洗濯も問題ありません。
通信設備面では、インターネットが無料で使えるので、月々の出費を抑えられるのも魅力です(別途工事等が必要な場合あり)。
お金・契約の情報
※「-」と表示されているものは、実際は料金が発生するものもございます。詳細はお問い合わせください。
| 家賃 | 6.3万円 | 管理費・共益費 | 3,000円 |
|---|---|---|---|
| 敷金 | 6.3万円 | 礼金 | なし |
| 入居決定でお祝い金最大100,000円 | |||
| 保証金 | - | 償却・敷引 | - |
| 住宅保険料 | - | 更新料 | - |
| 保証会社利用 | 必須 | 保証会社名 | 全保連 |
| 保証会社費用 | - | 保証会社備考 | 初回:月額総額の100% |
| 契約形態 | - | 契約期間 | 2年 |
| 入居・引渡期間 | 2026年05月上旬 | 現況 | - |
| 契約備考 | インターネット初期登録時料3300円 | ||
部屋の情報
| 間取り | ワンルーム | 専有面積 | 32.95m2 |
|---|---|---|---|
| 間取り詳細 | 洋室(7.6帖) | ||
| 所在階 / 向き | 2階 / 西 | バルコニー面積 | 3m2 |
| 水道 / ガス | ガス【プロパン】 | ||
| 設備 | バス・トイレ別、テレビドアホン、ウォークインクローゼット、追い焚き、光ファイバー対応、システムキッチン、バルコニー、フローリング、コンロ:IH、インターネット使用料無料、洗濯機:室内 | ||
| 当社物件ID | 102650630 | ||
建物の情報
| 建物名 | リノリノアパートメント吉島 | ||
|---|---|---|---|
| 所在地 | 広島県広島市中区吉島西2丁目 | ||
| 交通 | 広島電鉄江波線 舟入南駅 徒歩9分 | ||
| 階数 | 2階建 | 総戸数 | 5戸 |
| 築年月 | 2018年12月 / 築8年 | エレベーター | - |
| 駐車場 | - | バイク置き場 | あり |
| 駐輪場 | あり | 管理人/管理会社 | - |
| 周辺環境 | 病院 吉島病院 徒歩15分(1141m) その他 (株)フレスタ/吉島店 徒歩5分(329m) その他 広島舟入南郵便局 徒歩8分(594m) その他 マックスバリュエクスプレス舟入南店 徒歩12分(936m) その他 広島信用金庫江波支店 徒歩12分(881m) その他 (株)スパーク/光南店 徒歩15分(1162m) その他 広島県情報プラザ広島県立図書館 徒歩18分(1412m) その他 マルシェー光南店 徒歩16分(1220m) | ||
| 建物種別 | アパート | 建物構造 | 木造 |
この部屋の取扱い不動産会社
| 会社名 | アパマンショップ広島駅前店 | ||
|---|---|---|---|
| 所在地 | 広島県広島市南区大須賀町 13-5田村ビル1階 | 交通 | 広島電鉄本線広島駅から徒歩4分 |
| 営業時間 | 09:30〜18:30(1月〜3月) | 定休日 | - |
| 免許番号 | 国土交通大臣(4)7268 | 取引態様 | 仲介 |
| 不動産会社管理番号 | 92454843 | 当社管理番号 | 4 |
| 所属団体 | (公社)広島県宅地建物取引業協会 | ||
| 公正取引協議会 | 中国地区不動産公正取引協議会加盟 | ||
| 取扱い物件情報 | 物件詳細へ | ||
※各種情報と現状に差異がある場合は、現状優先となります。問い合わせをすることで、より詳しい条件、情報を確認する事ができます。
提供:アパマンショップ広島駅前店
この物件が気になったら掲載期限まであと12日
リノリノアパートメント吉島に条件(家賃・エリア)が近い物件一覧
| 写真 | 家賃 管理費等 | 敷金 礼金 | 間取り 専有面積 | 築年数 | 最寄り駅 所在地 | キープ | 詳細 |
|---|---|---|---|---|---|---|---|
一戸建て 広島県山県郡北広島町 築30年(3LDK) | |||||||
![]() | 6万円 なし | 18万円 6万円 | 3LDK 89.34m2 | 築30年 | 広島県山県郡北広島町中祖 | 詳細を見る | |
一戸建て 広島県廿日市市 築24年(4SLDK) | |||||||
![]() | 9万円 なし | 27万円 9万円 | 4SLDK 128.34m2 | 築24年 | 広島県廿日市市四季が丘2丁目 | 詳細を見る | |
アパート インフィニティ大須(1K/3階) | |||||||
![]() | 6.3万円 なし | 12.6万円 6.3万円 | 1K 28.28m2 | 築9年 | 呉線 天神川駅 徒歩6分 山陽本線 天神川駅 徒歩6分 広島県安芸郡府中町大須1丁目 | 詳細を見る | |
タウンハウス EBBA VILLAGE(1K) | |||||||
![]() | 5.8万円 2,000円 | 11.6万円 5.8万円 | 1K 31.22m2 | 築5年 | 広島電鉄江波線 江波駅 徒歩15分 広島県広島市中区江波栄町 | 詳細を見る | |
一戸建て 広島県廿日市市 築41年(4LDK) | |||||||
![]() | 4.9万円 なし | 4.9万円 4.9万円 | 4LDK 118.02m2 | 築41年 | 広島県廿日市市永原 | 詳細を見る | |





