賃貸マンション
グランドハイライズの賃貸物件情報(3DK/6階)
| 家賃 | 管理費等 | 敷金 | 礼金 | 間取り | 専有面積 |
|---|---|---|---|---|---|
| 16万円 | 1.6万円 | 32万円 | 16万円 | 3DK | 55.15m2 |
入居決定でお祝い金最大100,000円
- 保証金
- -
- 償却・敷引
- -
- 築年数
- 築24年
- 所在階
- 6階
- 向き
- 南
Point
当物件は初期費用分割払い可(クレジットカード決済も可)/お客様のご希望に合わせた方法(店頭、オンライン等)で物件をご提案いたします。初期費用のお見積りや入居希望日のご相談もお気軽にお問い合わせください
提供:アエラス新小岩店 (株)アエラス.FR(SUUMO経由)

詳細情報 グランドハイライズ
物件紹介
グランドハイライズは都営新宿線一之江駅から徒歩1分にあり、駅近で通勤通学に便利なマンションです。
このお部屋は2階以上に位置しているので、通行人や周囲の住人からの視線が気になりにくく、防犯面でも安心。建物のエントランスはオートロックがついており、インターホンにはTVモニタもついているため、相手の顔を確認してから来客対応することができます。
人気の南向きのお部屋。また、フローリングなのでお掃除もラクラク。キッチンはシステムキッチン仕様になっていますので、お料理好きの方にもぴったり。また、バス・トイレは別で、のんびりお風呂タイムも楽しめるでしょう。
通信設備面では、インターネット接続が可能です。また、BSアンテナ・CSアンテナもありますので、おうち時間も充実するでしょう(別途工事、契約料が必要な場合あり)。
建物にはエレベーターがついているので、重い荷物があっても安心。共用部には宅配ボックスが設定されているので、不在の時にも荷物を受け取ることができます。
このお部屋は2階以上に位置しているので、通行人や周囲の住人からの視線が気になりにくく、防犯面でも安心。建物のエントランスはオートロックがついており、インターホンにはTVモニタもついているため、相手の顔を確認してから来客対応することができます。
人気の南向きのお部屋。また、フローリングなのでお掃除もラクラク。キッチンはシステムキッチン仕様になっていますので、お料理好きの方にもぴったり。また、バス・トイレは別で、のんびりお風呂タイムも楽しめるでしょう。
通信設備面では、インターネット接続が可能です。また、BSアンテナ・CSアンテナもありますので、おうち時間も充実するでしょう(別途工事、契約料が必要な場合あり)。
建物にはエレベーターがついているので、重い荷物があっても安心。共用部には宅配ボックスが設定されているので、不在の時にも荷物を受け取ることができます。
お金・契約の情報
※「-」と表示されているものは、実際は料金が発生するものもございます。詳細はお問い合わせください。
| 家賃 | 16万円 | 管理費・共益費 | 1.6万円 |
|---|---|---|---|
| 敷金 | 32万円 | 礼金 | 16万円 |
| 入居決定でお祝い金最大100,000円 | |||
| 保証金 | - | 償却・敷引 | - |
| 住宅保険料 | - | 更新料 | - |
| 契約形態 | - | 契約期間 | - |
| 入居・引渡期間 | 即時 | 現況 | - |
| 契約備考 | 江戸川区立一之江小学校まで657m/ピノキオ幼児舎ゆめのこ保育園まで84m/鍵交換代借主負担/駐輪場代借主負担(使用時) 3DK 二人入居可/子供可/事務所利用不可 普通借家2年 損保【要】 バストイレ別、バルコニー、エアコン、ガスコンロ対応、フローリング、オートロック、システムキッチン、南向き、追焚機能浴室、脱衣所、エレベーター、洗面所独立、洗面化粧台、2口コンロ、駐輪場、宅配ボックス、光ファイバー、外壁タイル張り、即入居可、BS・CS、オートバス、全居室洋室、二人入居相談、ディンプルキー、敷金2ヶ月、保証金不要、ルーフバルコニー、外壁コンクリート、3駅以上利用可、駅前、駅徒歩5分以内、都市ガス、高速ネット対応、礼金1ヶ月、初期費用カード決済可 | ||
部屋の情報
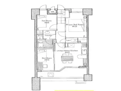
| 間取り | 3DK | 専有面積 | 55.15m2 |
|---|---|---|---|
| 所在階 / 向き | 6階 / 南 | バルコニー面積 | - |
| 水道 / ガス | - | ||
| 設備 | バス・トイレ別、2階以上、オートロック、宅配ボックス、追い焚き、インターネット対応、システムキッチン、エアコン、エレベーター、南向き、バルコニー、フローリング、洗髪洗面化粧台、2口コンロ、コンロ:ガス、CSアンテナ、BSアンテナ | ||
| 当社物件ID | 13679867 | ||
建物の情報
| 建物名 | グランドハイライズ | ||
|---|---|---|---|
| 所在地 | 東京都江戸川区一之江 | ||
| 交通 | 都営新宿線 一之江駅 徒歩1分 都営新宿線 船堀駅 徒歩25分 都営新宿線 瑞江駅 徒歩29分 | ||
| 階数 | 11階建 | 総戸数 | - |
| 築年月 | 2003年02月 / 築24年 | エレベーター | あり |
| 駐車場 | 空有 20900円 | バイク置き場 | - |
| 駐輪場 | あり | 管理人/管理会社 | - |
| 周辺環境 | その他 ウエルシア薬局江戸川一之江店(ドラッグストア)まで282m その他 サイゼリヤ一之江駅前店(飲食店)まで89m その他 タカオー(ホームセンター)まで391m その他 ヤマイチ 一之江駅前店(スーパー)まで78m その他 ローソン 一之江七丁目店(コンビニ)まで134m その他 江戸川区立松江第五中学校(中学校)まで756m | ||
| 建物種別 | マンション | 建物構造 | RC(鉄筋コンクリート) |
この部屋の取扱い不動産会社
| 会社名 | アエラス新小岩店 (株)アエラス.FR(SUUMO経由) | ||
|---|---|---|---|
| 所在地 | 東京都葛飾区新小岩1-41-7 山城屋アオイビル 2階・3階 | 交通 | - |
| 営業時間 | 10:00~19:00(時間外対応出来る場合有り) | 定休日 | 毎週水曜日 |
| 免許番号 | 国土交通大臣10206 | 取引態様 | 仲介 |
| 不動産会社管理番号 | 100503105251 | 当社管理番号 | 89 |
| 所属団体 | (公社)東京都宅地建物取引業協会会員 | ||
| 公正取引協議会 | (公社)首都圏不動産公正取引協議会加盟 | ||
| 取扱い物件情報 | 物件詳細へ | ||
※各種情報と現状に差異がある場合は、現状優先となります。問い合わせをすることで、より詳しい条件、情報を確認する事ができます。
提供:アエラス新小岩店 (株)アエラス.FR(SUUMO経由)
この物件が気になったら掲載期限まであと11日
グランドハイライズに条件(家賃・エリア)が近い物件一覧
| 写真 | 家賃 管理費等 | 敷金 礼金 | 間取り 専有面積 | 築年数 | 最寄り駅 所在地 | キープ | 詳細 |
|---|---|---|---|---|---|---|---|
マンション ザ・パークハビオ木場(1K/15階) | |||||||
![]() | 14.2万円 1.5万円 | 14.2万円 なし | 1K 25.18m2 | 築8年 | 東京メトロ東西線 木場駅 徒歩5分 都営大江戸線 門前仲町駅 徒歩14分 JR京葉線 越中島駅 徒歩19分 東京都江東区木場 | 詳細を見る | |
マンション グランドコンシェルジュ錦糸町アジールコート(1K/10階) | |||||||
![]() | 10.1万円 5,000円 | 10.1万円 10.1万円 | 1K 21.53m2 | 築18年 | 都営新宿線 菊川駅(東京) 徒歩9分 JR総武線 両国駅 徒歩10分 都営大江戸線 森下駅(東京) 徒歩13分 東京都墨田区緑 | 詳細を見る | |
マンション EST FELICITA 押上(1SLDK/1階) | |||||||
![]() | 20万円 8,000円 | なし なし | 1SLDK 46.43m2 | 築1年 | 東京地下鉄半蔵門線 押上駅 徒歩5分 東武伊勢崎・大師線 押上駅 徒歩12分 東京都墨田区押上3丁目 | 詳細を見る | |
マンション CASA FIORE 亀戸(1LDK/4階) | |||||||
![]() | 13.3万円 1.5万円 | なし なし | 1LDK 28.64m2 | 築1年 | 東武鉄道亀戸線 亀戸水神駅 徒歩8分 総武・中央緩行線 亀戸駅 徒歩9分 東京都新宿線 大島駅(東京) 徒歩9分 東京都江東区亀戸7丁目 | 詳細を見る | |
マンション グランカーサ住吉II(1DK/6階) | |||||||
![]() | 13.9万円 1万円 | なし なし | 1DK 25.91m2 | 築1年 | 都営新宿線 住吉駅(東京) 徒歩10分 東京メトロ東西線 東陽町駅 徒歩18分 東京メトロ半蔵門線 清澄白河駅 徒歩18分 東京都江東区千田 | 詳細を見る | |
マンション ALPHA PRIME東陽町(1LDK/8階) | |||||||
![]() | 16.5万円 2万円 | 16.5万円 16.5万円 | 1LDK 35.1m2 | 築3年 | 東京メトロ東西線 東陽町駅 徒歩9分 東京メトロ東西線 木場駅 徒歩15分 JR京葉線 潮見駅 徒歩18分 東京都江東区塩浜 | 詳細を見る | |
マンション プレール・ドゥーク木場親水公園(1K/2階) | |||||||
![]() | 10.9万円 1.1万円 | なし 10.9万円 | 1K 21.87m2 | 築20年 | 東京地下鉄東西線 木場駅 徒歩8分 東京都大江戸線 門前仲町駅 徒歩12分 東京地下鉄東西線 門前仲町駅 徒歩12分 東京都江東区木場3丁目 | 詳細を見る | |
マンション メイクスダブルアート小村井(1LDK/5階) | |||||||
![]() | 15.5万円 1万円 | なし 15.5万円 | 1LDK 40.83m2 | 築2年 | 東武亀戸線 小村井駅 徒歩6分 東武亀戸線 東あずま駅 徒歩11分 京成押上線 京成曳舟駅 徒歩17分 東京都墨田区文花 | 詳細を見る | |









