賃貸マンション
コンフォリア・リヴ木場イーストⅠの賃貸物件情報(1K/6階)
| 家賃 | 管理費等 | 敷金 | 礼金 | 間取り | 専有面積 |
|---|---|---|---|---|---|
| 13.9万円 | 8,000円 | 13.9万円 | なし | 1K | 25.16m2 |
入居決定でお祝い金最大100,000円
Point
■東京メトロ東西線木場駅1番出口より徒歩5分※時間制限有(5
提供:アパマンショップ蒲田店

詳細情報 コンフォリア・リヴ木場イーストⅠ
物件紹介
コンフォリア・リヴ木場イーストⅠは東京地下鉄東西線木場駅から徒歩8分にあり、駅近で通勤通学に便利なマンションです。
このお部屋は2階以上に位置しているので、通行人や周囲の住人からの視線が気になりにくく、防犯面でも安心です。
バス・トイレ別の仕様で、のんびりお風呂タイムも楽しめます。また、浴室乾燥機を使えば、雨の日でもお洗濯は問題ありません。
通信設備面ではBSアンテナ・CSアンテナがありますので、おうち時間も充実するでしょう(別途工事、契約料が必要な場合あり)。
建物にはエレベーターがついているので、重い荷物があっても安心。共用部には宅配ボックスが設定されているので、不在の時にも荷物を受け取ることができます。また、ペット飼育の相談ができますので、あなたの大切な家族の一員も快適に暮らせるか、ぜひ確認してみてください。
このお部屋は2階以上に位置しているので、通行人や周囲の住人からの視線が気になりにくく、防犯面でも安心です。
バス・トイレ別の仕様で、のんびりお風呂タイムも楽しめます。また、浴室乾燥機を使えば、雨の日でもお洗濯は問題ありません。
通信設備面ではBSアンテナ・CSアンテナがありますので、おうち時間も充実するでしょう(別途工事、契約料が必要な場合あり)。
建物にはエレベーターがついているので、重い荷物があっても安心。共用部には宅配ボックスが設定されているので、不在の時にも荷物を受け取ることができます。また、ペット飼育の相談ができますので、あなたの大切な家族の一員も快適に暮らせるか、ぜひ確認してみてください。
お金・契約の情報
※「-」と表示されているものは、実際は料金が発生するものもございます。詳細はお問い合わせください。
| 家賃 | 13.9万円 | 管理費・共益費 | 8,000円 |
|---|---|---|---|
| 敷金 | 13.9万円 | 礼金 | なし |
| 入居決定でお祝い金最大100,000円 | |||
| 保証金 | - | 償却・敷引 | - |
| 住宅保険料 | 1.655万円(2年) | 更新料 | - |
| 保証会社利用 | 必須 | 保証会社名 | エポスカード(RP) |
| 保証会社費用 | - | 保証会社備考 | 保証料:賃料等の50%(最低2万)、月額保証料:賃料等の1%(更新料無) |
| 契約形態 | - | 契約期間 | 2年 |
| 入居・引渡期間 | 相談 | 現況 | - |
| 入居可能条件 | ペット可 | ||
| 契約備考 | 敷金積み増し:ペット飼育 1.00カ月、小型犬:可、大型犬:不可、猫:可、その他:小型犬1匹又は猫2匹迄 清掃費 38500円/エアコン清掃費 11000円 | ||
部屋の情報
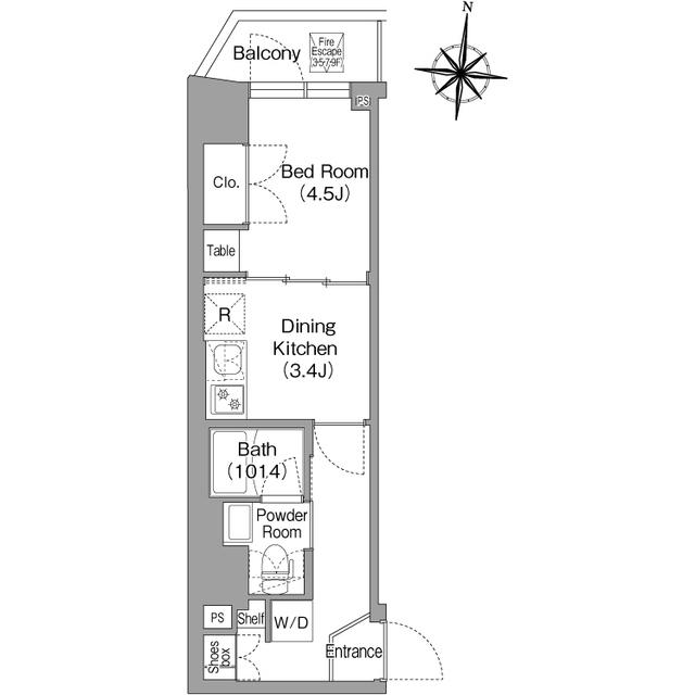
| 間取り | 1K | 専有面積 | 25.16m2 |
|---|---|---|---|
| 間取り詳細 | 洋室(4.3帖) | ||
| 所在階 / 向き | 6階 / 北 | バルコニー面積 | - |
| 水道 / ガス | - | ||
| 設備 | バス・トイレ別、宅配ボックス、浴室乾燥機、エレベーター、CSアンテナ、BSアンテナ、洗濯機:室内 | ||
| 当社物件ID | 160125365 | ||
建物の情報
| 建物名 | コンフォリア・リヴ木場イーストⅠ | ||
|---|---|---|---|
| 所在地 | 東京都江東区東陽1丁目 | ||
| 交通 | 東京地下鉄東西線 木場駅 徒歩8分 | ||
| 階数 | 9階建 | 総戸数 | 26戸 |
| 築年月 | 2025年11月 / 築1年 | エレベーター | あり |
| 駐車場 | - | バイク置き場 | - |
| 駐輪場 | あり | 管理人/管理会社 | - |
| 建物種別 | マンション | 建物構造 | RC(鉄筋コンクリート) |
この部屋の取扱い不動産会社
| 会社名 | アパマンショップ錦糸町店 | ||
|---|---|---|---|
| 所在地 | 東京都墨田区錦糸3丁目 3−1太田ビル4F | 交通 | 総武本線錦糸町から徒歩1分 |
| 営業時間 | 10:00〜18:30(12/27〜1/3は年末年始休) | 定休日 | - |
| 免許番号 | 東京都知事(2)103682 | 取引態様 | 仲介 |
| 不動産会社管理番号 | 1002093453 | 当社管理番号 | 4 |
| 所属団体 | (公社)東京都宅地建物取引業協会 | ||
| 公正取引協議会 | (公社) 首都圏不動産公正取引協議会加盟 | ||
| 取扱い物件情報 | 物件詳細へ | ||
※各種情報と現状に差異がある場合は、現状優先となります。問い合わせをすることで、より詳しい条件、情報を確認する事ができます。
提供:アパマンショップ錦糸町店
この物件が気になったら掲載期限まであと12日
コンフォリア・リヴ木場イーストⅠに条件(家賃・エリア)が近い物件一覧
| 写真 | 家賃 管理費等 | 敷金 礼金 | 間取り 専有面積 | 築年数 | 最寄り駅 所在地 | キープ | 詳細 |
|---|---|---|---|---|---|---|---|
アパート ウッドクレスト羽田レジデンス(ワンルーム/3階) | |||||||
![]() | 8.9万円 8,000円 | 8.9万円 なし | ワンルーム 31.07m2 | 新築 | 京急空港線 天空橋駅 徒歩7分 京急空港線 穴守稲荷駅 徒歩8分 東京モノレール 天空橋駅 徒歩9分 東京都大田区羽田 | 詳細を見る | |
マンション 門前仲町レジデンス参番館(1K/13階) | |||||||
![]() | 10.8万円 7,000円 | 11.5万円 なし | 1K 23.14m2 | 築16年 | 東京地下鉄東西線 門前仲町駅 徒歩7分 東京都江東区富岡1丁目 | 詳細を見る | |
マンション ガリシア本所吾妻橋サウス(1K/7階) | |||||||
![]() | 10.9万円 1.2万円 | なし 10.9万円 | 1K 25.76m2 | 築6年 | 東京都浅草線 本所吾妻橋駅 徒歩8分 京成電鉄押上線 押上駅 徒歩12分 東京都墨田区本所4丁目 | 詳細を見る | |
アパート アルぺージュ大森J棟(2LDK/3階) | |||||||
![]() | 18.2万円 1万円 | なし 50万円 | 2LDK 57.87m2 | 築11年 | 京浜急行電鉄本線 大森町駅 徒歩14分 東京都大田区大森西4丁目 | 詳細を見る | |
マンション コンフォリア西蒲田(2DK/13階) | |||||||
![]() | 19.2万円 1.2万円 | 19.2万円 なし | 2DK 44.69m2 | 築17年 | JR京浜東北線 蒲田駅 徒歩6分 東急池上線 蓮沼駅 徒歩7分 京急本線 京急蒲田駅 徒歩17分 東京都大田区西蒲田 | 詳細を見る | |
マンション ドゥーエ蒲田(1K/7階) | |||||||
![]() | 10.6万円 7,000円 | 10.6万円 10.6万円 | 1K 22.08m2 | 築19年 | 東急池上線 蒲田駅 徒歩8分 東急多摩川線 蒲田駅 徒歩8分 JR京浜東北線 蒲田駅 徒歩9分 東京都大田区西蒲田 | 詳細を見る | |
マンション PREMIUM CUBE 両国DEUX(1LDK/10階) | |||||||
![]() | 18万円 2万円 | なし 18万円 | 1LDK 41m2 | 築5年 | 東京都大江戸線 両国駅 徒歩10分 東京都墨田区亀沢4丁目 | 詳細を見る | |
マンション SEED JUST B-BASE Ⅱ(1LDK/1階) | |||||||
![]() | 8.8万円 1.5万円 | 8.8万円 8.8万円 | 1LDK 23.07m2 | 新築 | 東京モノレール羽田 昭和島駅 徒歩11分 京浜急行電鉄本線 梅屋敷駅(東京) 徒歩19分 東京都大田区大森南4丁目 | 詳細を見る | |








/105x80-f1-q70-wp1)
