賃貸マンション
シャーメゾン クレスト ライフの賃貸物件情報(2LDK/1階)
| 家賃 | 管理費等 | 敷金 | 礼金 | 間取り | 専有面積 |
|---|---|---|---|---|---|
| 16.5万円 | 1.2万円 | 5万円 | 10万円 | 2LDK | 68.88m2 |
入居決定でお祝い金最大100,000円
- 保証金
- -
- 償却・敷引
- -
- 築年数
- 築1年
- 所在階
- 1階
- 向き
- 東
Point
お部屋探しはツインホーム東三国店へお任せください!
提供:ツインホーム(株)東三国店(SUUMO経由)

詳細情報 シャーメゾン クレスト ライフ
物件紹介
シャーメゾン クレスト ライフは阪急宝塚線豊中駅から徒歩9分にあり、駅近で通勤通学に便利なマンションです。
建物のエントランスはオートロックがついており、インターホンにはTVモニタもついているため、相手の顔を確認してから来客対応することができます。
人気の角部屋で周囲の居住者の生活音も気になりにくく、また、フローリングのお部屋なのでお掃除もラクラク。室内にはウォークインクローゼットがありますので、たくさんの荷物も効率的に収納ができます。キッチンはシステムキッチン仕様になっていますので、お料理好きの方にもぴったり。バス・トイレは別なので、のんびりお風呂タイムも楽しめるでしょう。また、雨の日でも浴室乾燥機を使えば、お洗濯も問題ありません。
通信設備面では、インターネットが無料で使えるので、月々の出費を抑えられるのも魅力です。また、BSアンテナがありCATVにも対応しているので、おうち時間も充実するでしょう(別途工事、BS・CATVの契約料等が必要な場合あり)。
建物にはエレベーターがついているので、重い荷物があっても安心。共用部には宅配ボックスが設定されているので、不在の時にも荷物を受け取ることができます。
建物のエントランスはオートロックがついており、インターホンにはTVモニタもついているため、相手の顔を確認してから来客対応することができます。
人気の角部屋で周囲の居住者の生活音も気になりにくく、また、フローリングのお部屋なのでお掃除もラクラク。室内にはウォークインクローゼットがありますので、たくさんの荷物も効率的に収納ができます。キッチンはシステムキッチン仕様になっていますので、お料理好きの方にもぴったり。バス・トイレは別なので、のんびりお風呂タイムも楽しめるでしょう。また、雨の日でも浴室乾燥機を使えば、お洗濯も問題ありません。
通信設備面では、インターネットが無料で使えるので、月々の出費を抑えられるのも魅力です。また、BSアンテナがありCATVにも対応しているので、おうち時間も充実するでしょう(別途工事、BS・CATVの契約料等が必要な場合あり)。
建物にはエレベーターがついているので、重い荷物があっても安心。共用部には宅配ボックスが設定されているので、不在の時にも荷物を受け取ることができます。
お金・契約の情報
※「-」と表示されているものは、実際は料金が発生するものもございます。詳細はお問い合わせください。
| 家賃 | 16.5万円 | 管理費・共益費 | 1.2万円 |
|---|---|---|---|
| 敷金 | 5万円 | 礼金 | 10万円 |
| 入居決定でお祝い金最大100,000円 | |||
| 保証金 | - | 償却・敷引 | - |
| 住宅保険料 | - | 更新料 | - |
| 契約形態 | - | 契約期間 | - |
| 入居・引渡期間 | 即時 | 現況 | - |
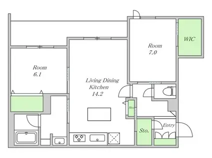
| 契約備考 | 2LDK 二人入居可/子供可 損保【要】 バストイレ別、バルコニー、エアコン、ガスコンロ対応、クロゼット、シャワー付洗面台、TVインターホン、浴室乾燥機、オートロック、室内洗濯置、陽当り良好、シューズボックス、システムキッチン、追焚機能浴室、角住戸、温水洗浄便座、脱衣所、エレベーター、洗面所独立、洗面化粧台、駐輪場、宅配ボックス、CATV、即入居可、閑静な住宅地、3口以上コンロ、対面式キッチン、防犯カメラ、全居室収納、グリル付、全居室洋室、ウォークインクロゼット、二人入居相談、全居室フローリング、ネット使用料不要、24時間換気システム、複層ガラス、クロゼット2ヶ所、電子ロック、人感照明センサー、太陽光発電システム、2駅利用可、3駅以上利用可、駅徒歩10分以内、敷地内ごみ置き場、築5年以内、平面駐車場、LDK12畳以上、都市ガス、洗面所にドア、エコジョーズ、シャッター、玄関収納、BS、通風良好 | ||
部屋の情報
| 間取り | 2LDK | 専有面積 | 68.88m2 |
|---|---|---|---|
| 所在階 / 向き | 1階 / 東 | バルコニー面積 | - |
| 水道 / ガス | - | ||
| 設備 | バス・トイレ別、オートロック、テレビドアホン、宅配ボックス、浴室乾燥機、ウォークインクローゼット、追い焚き、インターネット対応、システムキッチン、エアコン、エレベーター、温水洗浄便座、角部屋、バルコニー、フローリング、洗髪洗面化粧台、2口コンロ、コンロ:ガス、CATV、BSアンテナ、インターネット使用料無料、洗濯機:室内 | ||
| 当社物件ID | 158744400 | ||
建物の情報
| 建物名 | シャーメゾン クレスト ライフ | ||
|---|---|---|---|
| 所在地 | 大阪府豊中市立花町 | ||
| 交通 | 阪急宝塚線 豊中駅 徒歩9分 阪急宝塚線 岡町駅 徒歩15分 阪急宝塚線 蛍池駅 徒歩20分 | ||
| 階数 | 3階建 | 総戸数 | - |
| 築年月 | 2025年09月 / 築1年 | エレベーター | あり |
| 駐車場 | 空有 16500円 | バイク置き場 | - |
| 駐輪場 | あり | 管理人/管理会社 | - |
| 周辺環境 | その他 阪急OASIS(オアシス) 豊中駅前店(スーパー)まで734m その他 ライフ岡町店(スーパー)まで1422m その他 ETRE(エトレ)とよなか(ショッピングセンター)まで633m その他 ローソン 豊中立花町三丁目店(コンビニ)まで315m その他 ダイコクドラッグ 豊中駅前店(ドラッグストア)まで640m | ||
| 建物種別 | マンション | 建物構造 | 鉄骨造 |
この部屋の取扱い不動産会社
| 会社名 | ツインホーム(株)東三国店(SUUMO経由) | ||
|---|---|---|---|
| 所在地 | 大阪府大阪市淀川区宮原1-19-19 | 交通 | - |
| 営業時間 | 10:00~20:00 | 定休日 | 無し、年末年始 |
| 免許番号 | 大阪府知事46704 | 取引態様 | 仲介 |
| 不動産会社管理番号 | 100433542309 | 当社管理番号 | 89 |
| 所属団体 | (公社)全日本不動産協会大阪府本部会員 | ||
| 公正取引協議会 | (公社)近畿地区不動産公正取引協議会加盟 | ||
| 取扱い物件情報 | 物件詳細へ | ||
※各種情報と現状に差異がある場合は、現状優先となります。問い合わせをすることで、より詳しい条件、情報を確認する事ができます。
提供:ツインホーム(株)東三国店(SUUMO経由)
この物件が気になったら掲載期限まであと11日
シャーメゾン クレスト ライフに条件(家賃・エリア)が近い物件一覧
| 写真 | 家賃 管理費等 | 敷金 礼金 | 間取り 専有面積 | 築年数 | 最寄り駅 所在地 | キープ | 詳細 |
|---|---|---|---|---|---|---|---|
マンション リビエナ グラン 新梅田(2LDK/3階) | |||||||
| 17.7万円 8,000円 | 5万円 なし | 2LDK 63.72m2 | 新築 | 大阪市千日前線 野田阪神駅 徒歩15分 阪神電鉄本線 野田駅(阪神) 徒歩16分 大阪環状線 福島駅(JR西日本) 徒歩18分 大阪府大阪市北区大淀中5丁目14-168 | 詳細を見る | ||
マンション リビオメゾン新大阪(2LDK/8階) | |||||||
| 15.1万円 1.2万円 | なし なし | 2LDK 41.2m2 | 築1年 | 大阪市御堂筋線 新大阪駅 徒歩8分 東海道本線 東淀川駅 徒歩8分 大阪市御堂筋線 東三国駅 徒歩13分 大阪府大阪市淀川区宮原1丁目16-31 | 詳細を見る | ||
マンション ALIVIO(1LDK/1階) | |||||||
| 11.8万円 9,000円 | 5万円 なし | 1LDK 46.86m2 | 築4年 | 東海道本線 岸辺駅 徒歩13分 阪急電鉄京都線 正雀駅 徒歩21分 阪急電鉄京都線 摂津市駅 徒歩33分 大阪府吹田市岸部北3丁目19-5 | 詳細を見る | ||
マンション アーバネックス大阪天満宮Ⅱ(2LDK/3階) | |||||||
| 16.4万円 1.3万円 | なし 16.4万円 | 2LDK 43.43m2 | 築1年 | JR東西線 大阪天満宮駅 徒歩4分 京阪電気鉄道京阪線 天満橋駅 徒歩6分 大阪市谷町線 天満橋駅 徒歩8分 大阪府大阪市北区天満3丁目11-2 | 詳細を見る | ||
マンション スプランディッドライズ新大阪ノース(1LDK/10階) | |||||||
| 10.8万円 1万円 | なし 10.8万円 | 1LDK 31.4m2 | 築1年 | 東海道本線 東淀川駅 徒歩3分 大阪市御堂筋線 新大阪駅 徒歩12分 大阪市御堂筋線 東三国駅 徒歩14分 大阪府大阪市東淀川区西淡路1丁目11-3-1部 | 詳細を見る | ||
マンション オルキデア クオーレ(2LDK/1階) | |||||||
| 14.4万円 1.2万円 | 5万円 なし | 2LDK 65.61m2 | 新築 | 阪急電鉄京都線 上新庄駅 徒歩8分 阪急電鉄千里線 下新庄駅 徒歩13分 阪急電鉄京都線 相川駅 徒歩24分 大阪府大阪市東淀川区上新庄2丁目252-1-2-3-4-6-1 | 詳細を見る | ||
マンション カルム千里山土井(2SLDK/2階) | |||||||
| 13.8万円 1.2万円 | なし 40万円 | 2SLDK 75.06m2 | 築29年 | 阪急電鉄千里線 関大前駅 徒歩6分 阪急電鉄千里線 千里山駅 徒歩10分 北大阪急行南北線 緑地公園駅 徒歩13分 大阪府吹田市千里山西1丁目19-2 | 詳細を見る | ||
マンション MSR新大阪南(1DK/3階) | |||||||
| 12.5万円 8,000円 | なし なし | 1DK 31.66m2 | 築3年 | 阪急電鉄京都線 南方駅(大阪) 徒歩5分 阪急電鉄京都線 崇禅寺駅 徒歩14分 阪急電鉄千里線 柴島駅 徒歩17分 大阪府大阪市淀川区西中島1丁目1-14 | 詳細を見る | ||
豊中市の町名から探す
豊中市の部屋を間取りから探す
豊中市の駅から探す
豊中市と隣接している市区町村から探す
- 豊中市(4,994)
- 大阪市都島区(1,766)
- 大阪市福島区(2,519)
- 大阪市此花区(431)
- 大阪市西区(4,885)
- 大阪市港区(1,322)
- 大阪市大正区(1,100)
- 大阪市天王寺区(1,280)
- 大阪市浪速区(3,948)
- 大阪市西淀川区(1,920)
- 大阪市東淀川区(5,017)
- 大阪市東成区(2,878)
- 大阪市生野区(1,684)
- 大阪市旭区(1,703)
- 大阪市城東区(2,127)
- 大阪市阿倍野区(1,428)
- 大阪市住吉区(1,891)
- 大阪市東住吉区(2,054)
- 大阪市西成区(835)
- 大阪市淀川区(5,560)
- 大阪市鶴見区(1,062)
- 大阪市住之江区(944)
- 大阪市平野区(2,015)
- 大阪市北区(5,732)
- 大阪市中央区(5,314)
- 池田市(1,575)
- 吹田市(6,832)
- 箕面市(1,625)

