賃貸マンション
ギャラン竪町の賃貸物件情報(1LDK/15階)
| 家賃 | 管理費等 | 敷金 | 礼金 | 間取り | 専有面積 |
|---|---|---|---|---|---|
| 7.3万円 | 5,000円 | なし | 14.6万円 | 1LDK | 40.04m2 |
入居決定でお祝い金最大100,000円
- 保証金
- -
- 償却・敷引
- -
- 築年数
- 築10年
- 所在階
- 15階
- 向き
- 南
Point
西小倉エリア、築浅マンション♪サンリブも横にあり買い物も便利です(^^♪都市ガス仕様・ネット無料と入居後のランニングコストも抑えての生活スタイルが可能です!
提供:(株)タウンハウジング福岡小倉店(SUUMO経由)

詳細情報 ギャラン竪町
物件紹介
ギャラン竪町はJR鹿児島本線西小倉駅から徒歩10分にあり、駅近で通勤通学に便利なマンションです。
このお部屋は2階以上に位置しているので、通行人や周囲の住人からの視線が気になりにくく、防犯面でも安心。建物のエントランスはオートロックがついており、インターホンにはTVモニタもついているため、相手の顔を確認してから来客対応することができます。
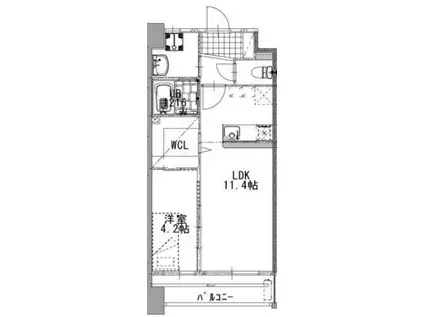
おしゃれなデザイナーズ物件!人気の南向き・フローリングのお部屋。角部屋でもあるため、周囲の居住者の生活音も気になりにくい場所です。室内にはウォークインクローゼットがありますので、たくさんの荷物も効率的に収納ができます。キッチンはシステムキッチン仕様になっていますので、お料理好きの方にもぴったり。バス・トイレは別なので、のんびりお風呂タイムも楽しめるでしょう。また、雨の日でも浴室乾燥機を使えば、お洗濯も問題ありません。
通信設備面では、インターネットが無料で使えるので、月々の出費を抑えられるのも魅力です。また、BSアンテナ・CSアンテナもありますので、おうち時間も充実するでしょう(別途工事、BS・CSの契約料等が必要な場合あり)。
建物にはエレベーターがついているので、重い荷物があっても安心。共用部には宅配ボックスが設定されているので、不在の時にも荷物を受け取ることができます。
このお部屋は2階以上に位置しているので、通行人や周囲の住人からの視線が気になりにくく、防犯面でも安心。建物のエントランスはオートロックがついており、インターホンにはTVモニタもついているため、相手の顔を確認してから来客対応することができます。
おしゃれなデザイナーズ物件!人気の南向き・フローリングのお部屋。角部屋でもあるため、周囲の居住者の生活音も気になりにくい場所です。室内にはウォークインクローゼットがありますので、たくさんの荷物も効率的に収納ができます。キッチンはシステムキッチン仕様になっていますので、お料理好きの方にもぴったり。バス・トイレは別なので、のんびりお風呂タイムも楽しめるでしょう。また、雨の日でも浴室乾燥機を使えば、お洗濯も問題ありません。
通信設備面では、インターネットが無料で使えるので、月々の出費を抑えられるのも魅力です。また、BSアンテナ・CSアンテナもありますので、おうち時間も充実するでしょう(別途工事、BS・CSの契約料等が必要な場合あり)。
建物にはエレベーターがついているので、重い荷物があっても安心。共用部には宅配ボックスが設定されているので、不在の時にも荷物を受け取ることができます。
お金・契約の情報
※「-」と表示されているものは、実際は料金が発生するものもございます。詳細はお問い合わせください。
| 家賃 | 7.3万円 | 管理費・共益費 | 5,000円 |
|---|---|---|---|
| 敷金 | なし | 礼金 | 14.6万円 |
| 入居決定でお祝い金最大100,000円 | |||
| 保証金 | - | 償却・敷引 | - |
| 住宅保険料 | - | 更新料 | - |
| 契約形態 | - | 契約期間 | - |
| 入居・引渡期間 | - | 現況 | - |
| 入居可能条件 | 事務所可 | ||
| 契約備考 | 【オンライン見学もOK→連絡ください】【入居時費用のクレジット払いOK(分割可能)】【お急ぎの方はお電話ください→TEL】北九州市賃貸、県外からの転勤、同棲・結婚、就職・進学に関る新居探し、法人契約もお気軽に相談ください。賃貸、お部屋探し、不動産、北九州、スーモ、ネット、クレジット決済可能 1LDK 単身者可/二人入居可/子供可/事務所利用相談 普通借家2年 損保【要】 バストイレ別、バルコニー、エアコン、クロゼット、フローリング、TVインターホン、浴室乾燥機、オートロック、室内洗濯置、陽当り良好、シューズボックス、南向き、追焚機能浴室、温水洗浄便座、脱衣所、エレベーター、洗面所独立、駐輪場、宅配ボックス、光ファイバー、外壁タイル張り、敷金不要、対面式キッチン、防犯カメラ、IHクッキングヒーター、ウォークインクロゼット、保証人不要、バイク置場、24時間緊急通報システム、全居室フローリング、デザイナーズ、玄関ホール、2沿線利用可、仲手0.55ヶ月、ネット専用回線、駅まで平坦、ネット使用料不要、眺望良好、保証金不要、事務所相談、外壁コンクリート、平坦地、エレベーター2基、可動間仕切り、3駅以上利用可、駅徒歩10分以内、上階無し、敷地内ごみ置き場、都市ガス、洗面所に窓、洗面所にドア、南面バルコニー、BS、高速ネット対応、礼金2ヶ月、IT重説対応物件、初期費用カード決済可、通風良好 入居日:'26年4月中旬 | ||
部屋の情報
| 間取り | 1LDK | 専有面積 | 40.04m2 |
|---|---|---|---|
| 所在階 / 向き | 15階 / 南 | バルコニー面積 | - |
| 水道 / ガス | - | ||
| 設備 | バス・トイレ別、2階以上、オートロック、テレビドアホン、宅配ボックス、浴室乾燥機、ウォークインクローゼット、追い焚き、インターネット対応、エアコン、エレベーター、温水洗浄便座、南向き、バルコニー、フローリング、洗髪洗面化粧台、コンロ:IH、デザイナーズ、BSアンテナ、インターネット使用料無料、洗濯機:室内 | ||
| 当社物件ID | 21523443 | ||
建物の情報
| 建物名 | ギャラン竪町 | ||
|---|---|---|---|
| 所在地 | 福岡県北九州市小倉北区竪町 | ||
| 交通 | JR鹿児島本線 西小倉駅 徒歩10分 北九州モノレール 旦過駅 徒歩18分 JR鹿児島本線 小倉駅(福岡) 徒歩21分 | ||
| 階数 | 15階建 | 総戸数 | 164戸 |
| 築年月 | 2017年02月 / 築10年 | エレベーター | あり |
| 駐車場 | 空有 11000円 | バイク置き場 | あり |
| 駐輪場 | あり | 管理人/管理会社 | - |
| 周辺環境 | その他 【サンリブ西小倉店】(スーパー)まで23m その他 【マツモトキヨシ西小倉店】(ドラッグストア)まで27m その他 【小倉田町郵便局】(郵便局)まで124m その他 【セブンイレブン小倉竪町店】(コンビニ)まで241m その他 【北九州市立西小倉小学校】(小学校)まで475m その他 【マックスバリュ小倉愛宕店】(スーパー)まで638m | ||
| 建物種別 | マンション | 建物構造 | RC(鉄筋コンクリート) |
この部屋の取扱い不動産会社
| 会社名 | レントセーフティー(株)本店(SUUMO経由) | ||
|---|---|---|---|
| 所在地 | 福岡県北九州市小倉北区香春口1-1-3 | 交通 | - |
| 営業時間 | 9時30分~17時30分 | 定休日 | 毎日営業中 |
| 免許番号 | 福岡県知事18913 | 取引態様 | 仲介 |
| 不動産会社管理番号 | 100491207018 | 当社管理番号 | 89 |
| 所属団体 | (公社)全日本不動産協会福岡県本部会員 | ||
| 公正取引協議会 | (一社)九州不動産公正取引協議会加盟 | ||
| 取扱い物件情報 | 物件詳細へ | ||
※各種情報と現状に差異がある場合は、現状優先となります。問い合わせをすることで、より詳しい条件、情報を確認する事ができます。
提供:レントセーフティー(株)本店(SUUMO経由)
この物件が気になったら掲載期限まであと10日
ギャラン竪町に条件(家賃・エリア)が近い物件一覧
| 写真 | 家賃 管理費等 | 敷金 礼金 | 間取り 専有面積 | 築年数 | 最寄り駅 所在地 | キープ | 詳細 |
|---|---|---|---|---|---|---|---|
マンション 第五共立ビル(2LDK/7階) | |||||||
![]() | 5.7万円 2,000円 | なし なし | 2LDK 56.7m2 | 築53年 | 日豊本線 城野駅(JR) 徒歩11分 北九州高速鉄道 城野駅(北九州モノレール) 徒歩23分 北九州高速鉄道 片野駅 徒歩23分 福岡県北九州市小倉北区重住3丁目 | 詳細を見る | |
マンション 山喜ビル(2DK/6階) | |||||||
![]() | 5.2万円 2,000円 | なし なし | 2DK 46.44m2 | 築41年 | 日豊本線 西小倉駅 徒歩29分 北九州高速鉄道 香春口三萩野駅 徒歩33分 福岡県北九州市小倉北区下到津4丁目 | 詳細を見る | |
アパート クラールFKⅡA(2LDK/2階) | |||||||
![]() | 6.7万円 2,900円 | なし 6.7万円 | 2LDK 59.55m2 | 築1年 | 福岡県京都郡苅田町 | 詳細を見る | |
アパート DORO片野(1LDK/2階) | |||||||
![]() | 5.7万円 3,000円 | なし なし | 1LDK 30.22m2 | 築2年 | 日豊本線 城野駅(JR) 徒歩10分 北九州高速鉄道 片野駅 徒歩10分 北九州高速鉄道 城野駅(北九州モノレール) 徒歩12分 福岡県北九州市小倉北区片野新町1丁目 | 詳細を見る | |
マンション LA PAUSE愛宕(1LDK/1階) | |||||||
![]() | 6万円 5,000円 | なし 12万円 | 1LDK 40.52m2 | 築1年 | 鹿児島本線 西小倉駅 徒歩13分 北九州高速鉄道 平和通駅 徒歩22分 北九州高速鉄道 旦過駅 徒歩23分 福岡県北九州市小倉北区愛宕2丁目 | 詳細を見る | |
マンション MERVEILLE・三萩野(1LDK/1階) | |||||||
![]() | 6万円 5,000円 | 6万円 なし | 1LDK 32.8m2 | 築5年 | 北九州高速鉄道 香春口三萩野駅 徒歩3分 福岡県北九州市小倉北区香春口1丁目 | 詳細を見る | |
マンション GALA PLATINUM COURT(1LDK/8階) | |||||||
![]() | 7.2万円 4,000円 | なし なし | 1LDK 40m2 | 築6年 | 北九州高速鉄道 香春口三萩野駅 徒歩9分 北九州高速鉄道 片野駅 徒歩15分 福岡県北九州市小倉北区白銀1丁目 | 詳細を見る | |
アパート コゥジィコート芦屋(2DK/1階) | |||||||
![]() | 4.75万円 3,500円 | なし 3万円 | 2DK 51.15m2 | 築19年 | 鹿児島本線 遠賀川駅 徒歩50分 鹿児島本線 水巻駅 徒歩69分 福岡県遠賀郡芦屋町大字芦屋 | 詳細を見る | |








