賃貸マンション
パークアクシス御茶ノ水ステージの賃貸物件情報(1LDK/6階)
| 家賃 | 管理費等 | 敷金 | 礼金 | 間取り | 専有面積 |
|---|---|---|---|---|---|
| 21.9万円 | 1万円 | 21.9万円 | 21.9万円 | 1LDK | 44.57m2 |
入居決定でお祝い金最大100,000円
- 保証金
- -
- 償却・敷引
- -
- 築年数
- 築20年
- 所在階
- 6階
- 向き
- 南
Point
仲手0 ピアノ、ペット相談可 設備充実です
提供:株式会社サンコーホーム(賃貸スモッカ経由)

詳細情報 パークアクシス御茶ノ水ステージ
物件紹介
パークアクシス御茶ノ水ステージは東京地下鉄銀座線末広町駅から徒歩6分にあり、駅近で通勤通学に便利なマンションです。
このお部屋は2階以上に位置しているので通行人や周囲の住人からの視線が気になりにくく、建物のエントランスはオートロックがついているので防犯性が高くなっています。
人気の南向きのお部屋。キッチンはシステムキッチン仕様になっていますので、お料理好きの方にもぴったり。バス・トイレは別なので、のんびりお風呂タイムも楽しめるでしょう。また、雨の日でも浴室乾燥機を使えば、お洗濯も問題ありません。
通信設備面では、インターネット接続が可能です。また、BSアンテナ・CSアンテナがありCATVにも対応しているので、おうち時間も充実するでしょう(別途工事、契約料が必要な場合あり)。
床暖房があり、冬も足元から暖かく快適に過ごすことができます。建物にはエレベーターがついているので、重い荷物があっても安心。共用部には宅配ボックスが設定されているので、不在の時にも荷物を受け取ることができます。
このお部屋は2階以上に位置しているので通行人や周囲の住人からの視線が気になりにくく、建物のエントランスはオートロックがついているので防犯性が高くなっています。
人気の南向きのお部屋。キッチンはシステムキッチン仕様になっていますので、お料理好きの方にもぴったり。バス・トイレは別なので、のんびりお風呂タイムも楽しめるでしょう。また、雨の日でも浴室乾燥機を使えば、お洗濯も問題ありません。
通信設備面では、インターネット接続が可能です。また、BSアンテナ・CSアンテナがありCATVにも対応しているので、おうち時間も充実するでしょう(別途工事、契約料が必要な場合あり)。
床暖房があり、冬も足元から暖かく快適に過ごすことができます。建物にはエレベーターがついているので、重い荷物があっても安心。共用部には宅配ボックスが設定されているので、不在の時にも荷物を受け取ることができます。
お金・契約の情報
※「-」と表示されているものは、実際は料金が発生するものもございます。詳細はお問い合わせください。
| 家賃 | 21.9万円 | 管理費・共益費 | 1万円 |
|---|---|---|---|
| 敷金 | 21.9万円 | 礼金 | 21.9万円 |
| 入居決定でお祝い金最大100,000円 | |||
| 保証金 | - | 償却・敷引 | - |
| 住宅保険料 | 住宅保険料あり | 更新料 | - |
| 契約形態 | - | 契約期間 | 2年 |
| 入居・引渡期間 | 2026年01月中旬 | 現況 | 居住中 |
| 契約備考 | 初期費用のクレジットカード払いや各種分割払い可能です。諸条件ご相談ください。その他インターネット掲載物件は当店で併せてご紹介可能です 更新料:1ヶ月 保証会社:利用必須 初回保証委託料(最低20,000円):月額賃料等の50%、 2年目以降:9,600円/年 その他設備/条件:敷地内ゴミ置場 | ||
部屋の情報
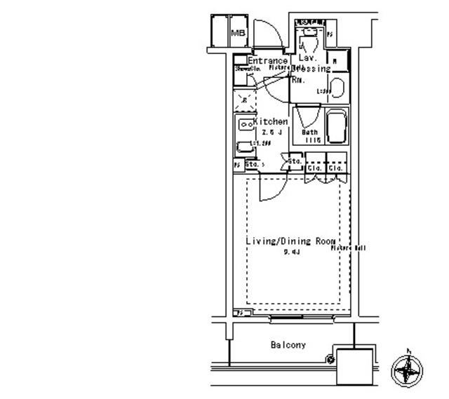
| 間取り | 1LDK | 専有面積 | 44.57m2 |
|---|---|---|---|
| 間取り詳細 | LDK(10.2帖)、洋室(5.9帖) | ||
| 所在階 / 向き | 6階 / 南 | バルコニー面積 | - |
| 水道 / ガス | - | ||
| 設備 | バス・トイレ別、2階以上、オートロック、宅配ボックス、浴室乾燥機、追い焚き、インターネット対応、システムキッチン、エアコン、エレベーター、南向き、バルコニー、床暖房、CATV、CSアンテナ、BSアンテナ、洗濯機:室内 | ||
| 当社物件ID | 1575011 | ||
建物の情報
| 建物名 | パークアクシス御茶ノ水ステージ | ||
|---|---|---|---|
| 所在地 | 東京都文京区湯島3丁目 | ||
| 交通 | 東京地下鉄銀座線 末広町駅(東京) 徒歩6分 中央本線 御茶ノ水駅 徒歩8分 山手線 秋葉原駅 徒歩13分 | ||
| 階数 | 13階建 | 総戸数 | - |
| 築年月 | 2006年02月 / 築20年 | エレベーター | あり |
| 駐車場 | - | バイク置き場 | - |
| 駐輪場 | - | 管理人/管理会社 | - |
| 建物種別 | マンション | 建物構造 | RC(鉄筋コンクリート) |
この部屋の取扱い不動産会社
| 会社名 | 株式会社サンコーホーム(賃貸スモッカ経由) | ||
|---|---|---|---|
| 所在地 | 東京都台東区上野5丁目23-8 キューアス御徒町ビル3F | 交通 | - |
| 営業時間 | - | 定休日 | - |
| 免許番号 | 東京都知事免許(2)第96594号 | 取引態様 | 仲介 |
| 不動産会社管理番号 | sankohome_120160010051907 | 当社管理番号 | 463 |
| 所属団体 | (公社)全国宅地建物取引業協会連合会\n公益社団法人首都圏不動産公正取引協議会 | ||
| 公正取引協議会 | (公社)全国宅地建物取引業保証協会 | ||
| 取扱い物件情報 | 物件詳細へ | ||
※各種情報と現状に差異がある場合は、現状優先となります。問い合わせをすることで、より詳しい条件、情報を確認する事ができます。
提供:株式会社サンコーホーム(賃貸スモッカ経由)
この物件が気になったら掲載期限まであと6日
パークアクシス御茶ノ水ステージに条件(家賃・エリア)が近い物件一覧
| 写真 | 家賃 管理費等 | 敷金 礼金 | 間取り 専有面積 | 築年数 | 最寄り駅 所在地 | キープ | 詳細 |
|---|---|---|---|---|---|---|---|
マンション チェスターコート御茶ノ水(1K/2階) | |||||||
![]() | 13.9万円 1万円 | なし なし | 1K 27.09m2 | 築19年 | 東京都新宿線 小川町駅(東京) 徒歩3分 東京地下鉄千代田線 新御茶ノ水駅 徒歩5分 東京地下鉄丸ノ内線 淡路町駅 徒歩6分 東京都千代田区神田小川町3丁目 | 詳細を見る | |
マンション エスタート三ノ輪(1LDK/8階) | |||||||
![]() | 16.8万円 1.5万円 | 16.8万円 なし | 1LDK 41.49m2 | 築5年 | 東京地下鉄日比谷線 三ノ輪駅 徒歩6分 東京都台東区竜泉3丁目 | 詳細を見る | |
マンション スパシエリーヴァ浅草(1LDK/14階) | |||||||
![]() | 17万円 5,000円 | 17万円 17万円 | 1LDK 44.14m2 | 築19年 | 東武伊勢崎・大師線 浅草駅(東武・都営・メトロ) 徒歩14分 東京地下鉄銀座線 浅草駅(東武・都営・メトロ) 徒歩15分 つくばエクスプレス 浅草駅(つくばEXP) 徒歩19分 東京都台東区今戸1丁目 | 詳細を見る | |
マンション オーパスホームズ白山(1LDK/4階) | |||||||
![]() | 26万円 2万円 | なし なし | 1LDK 52.31m2 | 築26年 | 東京都三田線 白山駅(東京) 徒歩5分 東京地下鉄南北線 東大前駅 徒歩5分 東京都文京区向丘1丁目 | 詳細を見る | |
マンション レジーナ浅草橋(1LDK/7階) | |||||||
![]() | 13.5万円 1.2万円 | なし 13.5万円 | 1LDK 35.33m2 | 築20年 | JR総武線 浅草橋駅 徒歩6分 都営浅草線 蔵前駅 徒歩8分 都営大江戸線 新御徒町駅 徒歩10分 東京都台東区浅草橋 | 詳細を見る | |
マンション ZOOM飯田橋(ワンルーム/4階) | |||||||
![]() | 14.9万円 9,000円 | 14.9万円 なし | ワンルーム 25.44m2 | 築13年 | 東京都大江戸線 飯田橋駅 徒歩9分 総武・中央緩行線 飯田橋駅 徒歩10分 東京地下鉄丸ノ内線 後楽園駅 徒歩10分 東京都文京区水道1丁目 | 詳細を見る | |
マンション アジールコート後楽園(1DK/2階) | |||||||
![]() | 15.1万円 1万円 | 15.1万円 なし | 1DK 27.6m2 | 築1年 | 東京都三田線 春日駅(東京) 徒歩7分 東京地下鉄丸ノ内線 後楽園駅 徒歩10分 東京都文京区白山1丁目 | 詳細を見る | |
マンション AZEST浅草(1LDK/7階) | |||||||
![]() | 17.5万円 1.5万円 | なし なし | 1LDK 40.7m2 | 築4年 | 東武伊勢崎・大師線 浅草駅(東武・都営・メトロ) 徒歩10分 東京都台東区浅草6丁目 | 詳細を見る | |









