賃貸マンション
パークアクシス御茶ノ水ステージの賃貸物件情報(1K/1階)
| 家賃 | 管理費等 | 敷金 | 礼金 | 間取り | 専有面積 |
|---|---|---|---|---|---|
| 13.7万円 | 8,000円 | 13.7万円 | 13.7万円 | 1K | 29.7m2 |
入居決定でお祝い金最大100,000円
- 保証金
- -
- 償却・敷引
- -
- 築年数
- 築20年
- 所在階
- 1階
- 向き
- 南
Point
オーナー様と直接取引している物件を10万戸以上保有しているため、賃料、初期費用、賃料発生日など諸条件をなんでもご相談くださいませ。
提供:ハウス・トゥ・ハウス・ネットサービス(株)田端店(SUUMO経由)

詳細情報 パークアクシス御茶ノ水ステージ
物件紹介
パークアクシス御茶ノ水ステージは東京メトロ銀座線末広町駅から徒歩6分にあり、駅近で通勤通学に便利なマンションです。
このお部屋は2階以上に位置しているので、通行人や周囲の住人からの視線が気になりにくく、防犯面でも安心。建物のエントランスはオートロックがついており、インターホンにはTVモニタもついているため、相手の顔を確認してから来客対応することができます。
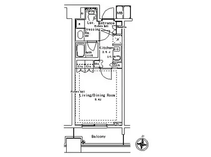
こちらは楽器相談が可能な物件。楽器演奏をお考えの方はぜひ相談してみてください。人気の南向きのお部屋。また、フローリングなのでお掃除もラクラク。キッチンはシステムキッチン仕様になっていますので、お料理好きの方にもぴったり。バス・トイレは別なので、のんびりお風呂タイムも楽しめるでしょう。また、雨の日でも浴室乾燥機を使えば、お洗濯も問題ありません。
通信設備面ではBSアンテナ・CSアンテナがあり、CATVにも対応しているので、おうち時間も充実するでしょう(別途工事、契約料が必要な場合あり)。
床暖房があり、冬も足元から暖かく快適に過ごすことができます。建物にはエレベーターがついているので、重い荷物があっても安心。共用部には宅配ボックスが設定されているので、不在の時にも荷物を受け取ることができます。また、ペット飼育の相談ができますので、あなたの大切な家族の一員も快適に暮らせるか、ぜひ確認してみてください。
このお部屋は2階以上に位置しているので、通行人や周囲の住人からの視線が気になりにくく、防犯面でも安心。建物のエントランスはオートロックがついており、インターホンにはTVモニタもついているため、相手の顔を確認してから来客対応することができます。
こちらは楽器相談が可能な物件。楽器演奏をお考えの方はぜひ相談してみてください。人気の南向きのお部屋。また、フローリングなのでお掃除もラクラク。キッチンはシステムキッチン仕様になっていますので、お料理好きの方にもぴったり。バス・トイレは別なので、のんびりお風呂タイムも楽しめるでしょう。また、雨の日でも浴室乾燥機を使えば、お洗濯も問題ありません。
通信設備面ではBSアンテナ・CSアンテナがあり、CATVにも対応しているので、おうち時間も充実するでしょう(別途工事、契約料が必要な場合あり)。
床暖房があり、冬も足元から暖かく快適に過ごすことができます。建物にはエレベーターがついているので、重い荷物があっても安心。共用部には宅配ボックスが設定されているので、不在の時にも荷物を受け取ることができます。また、ペット飼育の相談ができますので、あなたの大切な家族の一員も快適に暮らせるか、ぜひ確認してみてください。
お金・契約の情報
※「-」と表示されているものは、実際は料金が発生するものもございます。詳細はお問い合わせください。
| 家賃 | 13.7万円 | 管理費・共益費 | 8,000円 |
|---|---|---|---|
| 敷金 | 13.7万円 | 礼金 | 13.7万円 |
| 入居決定でお祝い金最大100,000円 | |||
| 保証金 | - | 償却・敷引 | - |
| 住宅保険料 | - | 更新料 | - |
| 保証会社利用 | 必須 | 保証会社名 | - |
| 保証会社費用 | - | 保証会社備考 | 保証会社利用必 初回保証委託料(最低20000円):月額賃料等の50%、 2年目以降:9600円/年 |
| 契約形態 | - | 契約期間 | - |
| 入居・引渡期間 | - | 現況 | - |
| 入居可能条件 | 楽器相談、ペット相談 | ||
| 契約備考 | ◆ペット相談可(小型犬2匹まで/猫不可/敷金1ヶ月積み増し)◆ピアノ相談可◆1年未満解約は賃料等1ヶ月分の短期解約違約金有。 合計1.65万円(内訳:鍵交換代1.65万円) 更新料 新賃料1.00ヶ月分 室内清掃費用 55000円 口座振替手数料 月額110円 1K 二人入居可/ペット相談/楽器相談/事務所利用不可 普通借家2年 損保【要】 バストイレ別、バルコニー、エアコン、ガスコンロ対応、クロゼット、浴室乾燥機、オートロック、室内洗濯置、シューズボックス、システムキッチン、南向き、追焚機能浴室、エレベーター、洗面化粧台、2口コンロ、宅配ボックス、CATV、ペット相談、保証人不要、CS、床暖房、楽器相談、敷地内ごみ置き場、BS、IT重説対応物件 入居日:'26年2月下旬 | ||
部屋の情報
| 間取り | 1K | 専有面積 | 29.7m2 |
|---|---|---|---|
| 所在階 / 向き | 1階 / 南 | バルコニー面積 | - |
| 水道 / ガス | - | ||
| 設備 | バス・トイレ別、オートロック、宅配ボックス、浴室乾燥機、追い焚き、システムキッチン、エアコン、エレベーター、南向き、バルコニー、床暖房、2口コンロ、コンロ:ガス、CATV、CSアンテナ、BSアンテナ、洗濯機:室内 | ||
| 当社物件ID | 1548248 | ||
建物の情報
| 建物名 | パークアクシス御茶ノ水ステージ | ||
|---|---|---|---|
| 所在地 | 東京都文京区湯島 | ||
| 交通 | 東京メトロ銀座線 末広町駅(東京) 徒歩6分 東京メトロ千代田線 湯島駅 徒歩10分 JR山手線 秋葉原駅 徒歩13分 | ||
| 階数 | 地下2地上13階建 | 総戸数 | - |
| 築年月 | 2006年02月 / 築20年 | エレベーター | あり |
| 駐車場 | なし | バイク置き場 | - |
| 駐輪場 | - | 管理人/管理会社 | - |
| 周辺環境 | その他 ピーコックストア 神田妻恋坂店(スーパー)まで320m その他 上野フロンティアタワー(ショッピングセンター)まで873m その他 東京ドームシティ アトラクションズ(その他)まで1508m その他 お茶の水公園(公園)まで432m その他 東京ドーム天然温泉 Spa LaQua(その他)まで1706m その他 大坪会(医療法人社団)東都文京病院(病院)まで59m | ||
| 建物種別 | マンション | 建物構造 | RC(鉄筋コンクリート) |
この部屋の取扱い不動産会社
| 会社名 | ハウス・トゥ・ハウス・ネットサービス(株)田端店(SUUMO経由) | ||
|---|---|---|---|
| 所在地 | 東京都北区田端1-5-5 サンハイム田端101 | 交通 | - |
| 営業時間 | 10:00~18:30(1~3月は9:30~) | 定休日 | 水曜日 |
| 免許番号 | 国土交通大臣7400 | 取引態様 | 仲介 |
| 不動産会社管理番号 | 100480431298 | 当社管理番号 | 89 |
| 所属団体 | (公社)全日本不動産協会東京都本部会員 | ||
| 公正取引協議会 | (公社)首都圏不動産公正取引協議会加盟 | ||
| 取扱い物件情報 | 物件詳細へ | ||
※各種情報と現状に差異がある場合は、現状優先となります。問い合わせをすることで、より詳しい条件、情報を確認する事ができます。
提供:ハウス・トゥ・ハウス・ネットサービス(株)田端店(SUUMO経由)
この物件が気になったら掲載期限まであと11日
パークアクシス御茶ノ水ステージに条件(家賃・エリア)が近い物件一覧
| 写真 | 家賃 管理費等 | 敷金 礼金 | 間取り 専有面積 | 築年数 | 最寄り駅 所在地 | キープ | 詳細 |
|---|---|---|---|---|---|---|---|
マンション バウスフラッツ蔵前(1LDK/9階) | |||||||
![]() | 16.6万円 1万円 | 16.6万円 なし | 1LDK 30.4m2 | 築1年 | 東京都浅草線 蔵前駅 徒歩2分 東京都大江戸線 蔵前駅 徒歩7分 東京都台東区蔵前4丁目 | 詳細を見る | |
アパート リブリ・LE・LIEN(1LDK/2階) | |||||||
![]() | 12万円 4,000円 | なし 12万円 | 1LDK 36.3m2 | 築10年 | 東京地下鉄日比谷線 南千住駅 徒歩16分 常磐線 南千住駅 徒歩19分 東京都台東区清川1丁目 | 詳細を見る | |
マンション LASANTE 千駄木(1LDK/9階) | |||||||
![]() | 22.1万円 1.2万円 | なし なし | 1LDK 42.35m2 | 築18年 | 山手線 西日暮里駅 徒歩5分 東京都文京区千駄木3丁目 | 詳細を見る | |
マンション モンレーヴ本駒込(1DK/1階) | |||||||
![]() | 13.5万円 5,000円 | 13.5万円 13.5万円 | 1DK 30.35m2 | 新築 | 山手線 駒込駅 徒歩8分 東京都三田線 千石駅 徒歩10分 東京地下鉄南北線 本駒込駅 徒歩12分 東京都文京区本駒込5丁目 | 詳細を見る | |
マンション プランドール2(1K/4階) | |||||||
![]() | 9.8万円 8,000円 | 4.9万円 14.7万円 | 1K 33.37m2 | 築9年 | 東京都荒川線 東尾久三丁目駅 徒歩2分 日暮里舎人ライナー 熊野前駅 徒歩8分 東京地下鉄千代田線 町屋駅 徒歩9分 東京都荒川区東尾久6丁目 | 詳細を見る | |
マンション グランカーサ上野松が谷(1DK/6階) | |||||||
![]() | 13.9万円 1万円 | なし なし | 1DK 25.24m2 | 築1年 | つくばエクスプレス 浅草駅(つくばEXP) 徒歩7分 東京地下鉄銀座線 稲荷町駅(東京) 徒歩8分 東京地下鉄銀座線 田原町駅(東京) 徒歩9分 東京都台東区松が谷2丁目 | 詳細を見る | |
マンション ベルグレード浅草(1K/4階) | |||||||
![]() | 10万円 1.5万円 | 10万円 10万円 | 1K 25.07m2 | 築4年 | つくばエクスプレス 浅草駅(つくばEXP) 徒歩9分 東京地下鉄銀座線 浅草駅(東武・都営・メトロ) 徒歩15分 東京都浅草線 浅草駅(東武・都営・メトロ) 徒歩15分 東京都台東区浅草5丁目 | 詳細を見る | |
マンション マンション岡(ワンルーム/5階) | |||||||
![]() | 8.8万円 なし | 35.2万円 17.6万円 | ワンルーム 17m2 | 築52年 | 東京地下鉄丸ノ内線 御茶ノ水駅 徒歩4分 総武・中央緩行線 御茶ノ水駅 徒歩5分 東京地下鉄銀座線 末広町駅(東京) 徒歩9分 東京都文京区湯島1丁目 | 詳細を見る | |









