賃貸マンション
アゼスト東十条の賃貸物件情報(1K/4階)
| 家賃 | 管理費等 | 敷金 | 礼金 | 間取り | 専有面積 |
|---|---|---|---|---|---|
| 8.8万円 | 1.2万円 | なし | 8.8万円 | 1K | 26.16m2 |
入居決定でお祝い金最大100,000円
- 保証金
- -
- 償却・敷引
- -
- 築年数
- 築12年
- 所在階
- 4階
- 向き
- 北東
Point
十条銀座アーケード商店街・東十条銀座商店街があるため買い物の利便性も良好です♪
提供:i-Room巣鴨店(株)ルーク不動産(SUUMO経由)

詳細情報 アゼスト東十条
物件紹介
アゼスト東十条はJR京浜東北線東十条駅から徒歩4分にあり、駅近で通勤通学に便利なマンションです。
このお部屋は2階以上に位置しているので、通行人や周囲の住人からの視線が気になりにくく、防犯面でも安心。建物のエントランスはオートロックがついており、インターホンにはTVモニタもついているため、相手の顔を確認してから来客対応することができます。
フローリングのお部屋なのでお掃除もラクラク。キッチンはシステムキッチン仕様になっていますので、お料理好きの方にもぴったり。バス・トイレは別なので、のんびりお風呂タイムも楽しめるでしょう。また、雨の日でも浴室乾燥機を使えば、お洗濯も問題ありません。
通信設備面では、インターネット接続が可能です。また、BSアンテナ・CSアンテナがありCATVにも対応しているので、おうち時間も充実するでしょう(別途工事、契約料が必要な場合あり)。
建物にはエレベーターがついているので、重い荷物があっても安心。共用部には宅配ボックスが設定されているので、不在の時にも荷物を受け取ることができます。また、ペット飼育の相談ができますので、あなたの大切な家族の一員も快適に暮らせるか、ぜひ確認してみてください。
このお部屋は2階以上に位置しているので、通行人や周囲の住人からの視線が気になりにくく、防犯面でも安心。建物のエントランスはオートロックがついており、インターホンにはTVモニタもついているため、相手の顔を確認してから来客対応することができます。
フローリングのお部屋なのでお掃除もラクラク。キッチンはシステムキッチン仕様になっていますので、お料理好きの方にもぴったり。バス・トイレは別なので、のんびりお風呂タイムも楽しめるでしょう。また、雨の日でも浴室乾燥機を使えば、お洗濯も問題ありません。
通信設備面では、インターネット接続が可能です。また、BSアンテナ・CSアンテナがありCATVにも対応しているので、おうち時間も充実するでしょう(別途工事、契約料が必要な場合あり)。
建物にはエレベーターがついているので、重い荷物があっても安心。共用部には宅配ボックスが設定されているので、不在の時にも荷物を受け取ることができます。また、ペット飼育の相談ができますので、あなたの大切な家族の一員も快適に暮らせるか、ぜひ確認してみてください。
お金・契約の情報
※「-」と表示されているものは、実際は料金が発生するものもございます。詳細はお問い合わせください。
| 家賃 | 8.8万円 | 管理費・共益費 | 1.2万円 |
|---|---|---|---|
| 敷金 | なし | 礼金 | 8.8万円 |
| 入居決定でお祝い金最大100,000円 | |||
| 保証金 | - | 償却・敷引 | - |
| 住宅保険料 | - | 更新料 | - |
| 保証会社利用 | 必須 | 保証会社名 | - |
| 保証会社費用 | - | 保証会社備考 | 保証会社利用必 初回保証料:総賃料の50% 詳しくはお問い合わせください |
| 契約形態 | - | 契約期間 | - |
| 入居・引渡期間 | 相談 | 現況 | - |
| 入居可能条件 | ペット相談 | ||
| 契約備考 | 巡回管理 合計3.3万円(内訳:鍵交換代3.3万円) 更新料 新賃料1.00ヶ月分 室内清掃費用 44000円 オムサポ(24時間サポート・火災保険) 月額2200円 1K ペット相談 普通借家2年 損保【要】 バストイレ別、バルコニー、エアコン、ガスコンロ対応、クロゼット、フローリング、TVインターホン、浴室乾燥機、オートロック、室内洗濯置、シューズボックス、システムキッチン、温水洗浄便座、脱衣所、エレベーター、洗面所独立、洗面化粧台、2口コンロ、駐輪場、宅配ボックス、CATV、外壁タイル張り、BS・CS、敷金不要、防犯カメラ、独立型キッチン、ペット相談、全居室収納、全居室洋室、バイク置場、全居室フローリング、2沿線利用可、ディンプルキー、CS、ネット専用回線、24時間換気システム、耐火構造、2駅利用可、3駅以上利用可、3沿線以上利用可、駅徒歩5分以内、駅徒歩10分以内、24時間ゴミ出し可、敷地内ごみ置き場、都市ガス、玄関収納、BS、礼金1ヶ月、保証会社利用可、初期費用カード決済可 | ||
部屋の情報
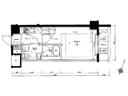
| 間取り | 1K | 専有面積 | 26.16m2 |
|---|---|---|---|
| 所在階 / 向き | 4階 / 北東 | バルコニー面積 | - |
| 水道 / ガス | - | ||
| 設備 | バス・トイレ別、2階以上、オートロック、テレビドアホン、宅配ボックス、浴室乾燥機、インターネット対応、システムキッチン、エアコン、エレベーター、温水洗浄便座、バルコニー、フローリング、洗髪洗面化粧台、2口コンロ、コンロ:ガス、CATV、CSアンテナ、BSアンテナ、洗濯機:室内 | ||
| 当社物件ID | 160118069 | ||
建物の情報
| 建物名 | アゼスト東十条 | ||
|---|---|---|---|
| 所在地 | 東京都北区東十条 | ||
| 交通 | JR京浜東北線 東十条駅 徒歩4分 東京メトロ南北線 王子神谷駅 徒歩9分 JR埼京線 十条駅(東京) 徒歩14分 | ||
| 階数 | 7階建 | 総戸数 | - |
| 築年月 | 2014年07月 / 築12年 | エレベーター | あり |
| 駐車場 | 近隣 1505m33264円 | バイク置き場 | あり |
| 駐輪場 | あり | 管理人/管理会社 | - |
| 周辺環境 | その他 サミットストア 王子桜田通り店(スーパー)まで303m その他 コインランドリーマンマチャオ 東十条店(その他)まで282m その他 明理会中央総合病院(病院)まで135m その他 東十条区民センター(その他)まで164m その他 北区立東十条小学校(小学校)まで212m その他 渋谷医院(病院)まで219m | ||
| 建物種別 | マンション | 建物構造 | RC(鉄筋コンクリート) |
この部屋の取扱い不動産会社
| 会社名 | i-Room(株)ルーク不動産(SUUMO経由) | ||
|---|---|---|---|
| 所在地 | 東京都豊島区駒込1-43-14 | 交通 | - |
| 営業時間 | 9:00~18:00 | 定休日 | 火曜日 |
| 免許番号 | 東京都知事95272 | 取引態様 | 仲介 |
| 不動産会社管理番号 | 100480074165 | 当社管理番号 | 89 |
| 所属団体 | (公社)東京都宅地建物取引業協会会員 | ||
| 公正取引協議会 | (公社)首都圏不動産公正取引協議会加盟 | ||
| 取扱い物件情報 | 物件詳細へ | ||
※各種情報と現状に差異がある場合は、現状優先となります。問い合わせをすることで、より詳しい条件、情報を確認する事ができます。
提供:i-Room(株)ルーク不動産(SUUMO経由)
この物件が気になったら掲載期限まであと10日
アゼスト東十条に条件(家賃・エリア)が近い物件一覧
| 写真 | 家賃 管理費等 | 敷金 礼金 | 間取り 専有面積 | 築年数 | 最寄り駅 所在地 | キープ | 詳細 |
|---|---|---|---|---|---|---|---|
マンション ステージファースト本駒込(1K/9階) | |||||||
![]() | 8万円 1万円 | 8万円 8万円 | 1K 22.32m2 | 築23年 | 山手線 田端駅 徒歩11分 東京地下鉄南北線 駒込駅 徒歩12分 東京地下鉄千代田線 千駄木駅 徒歩12分 東京都文京区本駒込4丁目 | 詳細を見る | |
マンション LIBERT&233町屋(ワンルーム/3階) | |||||||
![]() | 9.7万円 1万円 | 9.7万円 9.7万円 | ワンルーム 25.3m2 | 築2年 | 東京都荒川線 荒川二丁目駅 徒歩5分 東京地下鉄千代田線 町屋駅 徒歩7分 常磐線 三河島駅 徒歩10分 東京都荒川区荒川4丁目 | 詳細を見る | |
マンション ブランシェ文京白山Ⅱ(ワンルーム/1階) | |||||||
![]() | 9万円 1.2万円 | なし なし | ワンルーム 22.24m2 | 築12年 | 東京都三田線 白山駅(東京) 徒歩9分 東京都文京区白山2丁目 | 詳細を見る | |
マンション パレヴェール文京(ワンルーム/3階) | |||||||
![]() | 6.9万円 4,000円 | 6.9万円 なし | ワンルーム 20.82m2 | 築36年 | 東京都荒川線 早稲田駅(都電) 徒歩7分 東京地下鉄有楽町線 江戸川橋駅 徒歩11分 東京地下鉄東西線 早稲田駅(メトロ) 徒歩11分 東京都文京区関口1丁目 | 詳細を見る | |
マンション モンレーヴ本駒込(1DK/1階) | |||||||
![]() | 13.5万円 5,000円 | 13.5万円 13.5万円 | 1DK 30.35m2 | 新築 | 山手線 駒込駅 徒歩8分 東京都三田線 千石駅 徒歩10分 東京地下鉄南北線 本駒込駅 徒歩12分 東京都文京区本駒込5丁目 | 詳細を見る | |
マンション アルカディアⅤ(1K/6階) | |||||||
![]() | 9.5万円 5,800円 | なし 14.25万円 | 1K 25.8m2 | 築11年 | 東京地下鉄日比谷線 南千住駅 徒歩5分 東京地下鉄日比谷線 三ノ輪駅 徒歩8分 常磐線 南千住駅 徒歩8分 東京都荒川区南千住2丁目 | 詳細を見る | |
マンション アドリーム千駄木(1K/5階) | |||||||
![]() | 7.3万円 6,000円 | 7.3万円 7.3万円 | 1K 16.35m2 | 築32年 | 山手線 西日暮里駅 徒歩10分 東京地下鉄千代田線 千駄木駅 徒歩10分 東京地下鉄南北線 本駒込駅 徒歩13分 東京都文京区千駄木4丁目 | 詳細を見る | |
マンション プランドール2(1K/4階) | |||||||
![]() | 9.8万円 8,000円 | 4.9万円 14.7万円 | 1K 33.37m2 | 築9年 | 東京都荒川線 東尾久三丁目駅 徒歩2分 日暮里舎人ライナー 熊野前駅 徒歩8分 東京地下鉄千代田線 町屋駅 徒歩9分 東京都荒川区東尾久6丁目 | 詳細を見る | |








