賃貸マンション
ユリカロゼAZ西台の賃貸物件情報(1K/3階)
| 家賃 | 管理費等 | 敷金 | 礼金 | 間取り | 専有面積 |
|---|---|---|---|---|---|
| 8.4万円 | 1.5万円 | なし | 8.4万円 | 1K | 26.07m2 |
入居決定でお祝い金最大100,000円
- 保証金
- 8.4万円
- 償却・敷引
- 8.4万円
- 築年数
- 築6年
- 所在階
- 3階
- 向き
- -
Point
セキュリティ面は、オートロック・TVインターホンなど充実しているので安心して生活できます。室内設備は浴室乾燥機・洗面化粧台など豊富に揃っており、過ごしやすいお部屋になっております。
提供:(株)LIFIXGROUP高田馬場本店(SUUMO経由)

詳細情報 ユリカロゼAZ西台
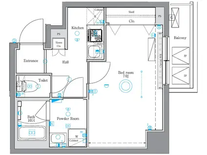
物件紹介
ユリカロゼAZ西台は都営三田線西台駅から徒歩5分にあり、駅近で通勤通学に便利なマンションです。
このお部屋は2階以上に位置しているので、通行人や周囲の住人からの視線が気になりにくく、防犯面でも安心。建物のエントランスはオートロックがついており、インターホンにはTVモニタもついているため、相手の顔を確認してから来客対応することができます。
おしゃれなデザイナーズ物件!人気の角部屋で周囲の居住者の生活音も気になりにくく、また、フローリングのお部屋なのでお掃除もラクラク。室内にはウォークインクローゼットがありますので、たくさんの荷物も効率的に収納ができます。キッチンはシステムキッチン仕様になっていますので、お料理好きの方にもぴったり。バス・トイレは別なので、のんびりお風呂タイムも楽しめるでしょう。また、雨の日でも浴室乾燥機を使えば、お洗濯も問題ありません。
通信設備面では、インターネットが無料で使えるので、月々の出費を抑えられるのも魅力です(別途工事等が必要な場合あり)。
建物にはエレベーターがついているので、重い荷物があっても安心。共用部には宅配ボックスが設定されているので、不在の時にも荷物を受け取ることができます。また、ペット飼育の相談ができますので、あなたの大切な家族の一員も快適に暮らせるか、ぜひ確認してみてください。
このお部屋は2階以上に位置しているので、通行人や周囲の住人からの視線が気になりにくく、防犯面でも安心。建物のエントランスはオートロックがついており、インターホンにはTVモニタもついているため、相手の顔を確認してから来客対応することができます。
おしゃれなデザイナーズ物件!人気の角部屋で周囲の居住者の生活音も気になりにくく、また、フローリングのお部屋なのでお掃除もラクラク。室内にはウォークインクローゼットがありますので、たくさんの荷物も効率的に収納ができます。キッチンはシステムキッチン仕様になっていますので、お料理好きの方にもぴったり。バス・トイレは別なので、のんびりお風呂タイムも楽しめるでしょう。また、雨の日でも浴室乾燥機を使えば、お洗濯も問題ありません。
通信設備面では、インターネットが無料で使えるので、月々の出費を抑えられるのも魅力です(別途工事等が必要な場合あり)。
建物にはエレベーターがついているので、重い荷物があっても安心。共用部には宅配ボックスが設定されているので、不在の時にも荷物を受け取ることができます。また、ペット飼育の相談ができますので、あなたの大切な家族の一員も快適に暮らせるか、ぜひ確認してみてください。
お金・契約の情報
※「-」と表示されているものは、実際は料金が発生するものもございます。詳細はお問い合わせください。
| 家賃 | 8.4万円 | 管理費・共益費 | 1.5万円 |
|---|---|---|---|
| 敷金 | なし | 礼金 | 8.4万円 |
| 入居決定でお祝い金最大100,000円 | |||
| 保証金 | 8.4万円 | 償却・敷引 | 8.4万円 |
| 住宅保険料 | - | 更新料 | - |
| 保証会社利用 | 必須 | 保証会社名 | 全保連 |
| 保証会社費用 | - | 保証会社備考 | 全保連利用必 賃料等の60% |
| 契約形態 | - | 契約期間 | - |
| 入居・引渡期間 | - | 現況 | - |
| 入居可能条件 | ペット相談 | ||
| 契約備考 | 合計4.2万円(内訳:アクセス24(税別・初回のみ)1.2万円鍵交換手数料(税別)3万円) 更新料 新賃料1.00ヶ月分 1K 二人入居可/ペット相談 損保【2万円2年】 バストイレ別、バルコニー、エアコン、ガスコンロ対応、クロゼット、フローリング、TVインターホン、浴室乾燥機、オートロック、室内洗濯置、シューズボックス、システムキッチン、角住戸、温水洗浄便座、脱衣所、エレベーター、洗面所独立、洗面化粧台、2口コンロ、駐輪場、宅配ボックス、外壁タイル張り、敷金不要、防犯カメラ、ペット相談、分譲賃貸、全居室洋室、二人入居相談、24時間緊急通報システム、ディンプルキー、ネット使用料不要、ダブルロックキー、24時間換気システム、24時間ゴミ出し可、風除室、敷地内ごみ置き場、セキュリティ会社加入済、都市ガス、洗面所にドア、マルチメディアコンセント、年内入居可 入居日:'26年4月中旬 | ||
部屋の情報
| 間取り | 1K | 専有面積 | 26.07m2 |
|---|---|---|---|
| 所在階 / 向き | 3階 / - | バルコニー面積 | - |
| 水道 / ガス | - | ||
| 設備 | バス・トイレ別、2階以上、オートロック、テレビドアホン、宅配ボックス、浴室乾燥機、インターネット対応、システムキッチン、エアコン、エレベーター、温水洗浄便座、角部屋、バルコニー、フローリング、洗髪洗面化粧台、2口コンロ、コンロ:ガス、インターネット使用料無料、洗濯機:室内 | ||
| 当社物件ID | 58855794 | ||
建物の情報
| 建物名 | ユリカロゼAZ西台 | ||
|---|---|---|---|
| 所在地 | 東京都板橋区高島平 | ||
| 交通 | 都営三田線 西台駅 徒歩5分 都営三田線 高島平駅 徒歩10分 都営三田線 蓮根駅 徒歩16分 | ||
| 階数 | 5階建 | 総戸数 | 22戸 |
| 築年月 | 2021年03月 / 築6年 | エレベーター | あり |
| 駐車場 | なし | バイク置き場 | - |
| 駐輪場 | あり | 管理人/管理会社 | - |
| 建物種別 | マンション | 建物構造 | RC(鉄筋コンクリート) |
この部屋の取扱い不動産会社
| 会社名 | (株)DoDoNPA新橋店(SUUMO経由) | ||
|---|---|---|---|
| 所在地 | 東京都港区新橋2-18-3 故萩堂ビル5階 | 交通 | - |
| 営業時間 | 10時~19時 | 定休日 | 水曜日 |
| 免許番号 | 東京都知事110262 | 取引態様 | 仲介 |
| 不動産会社管理番号 | 100493055602 | 当社管理番号 | 89 |
| 所属団体 | (公社)全日本不動産協会東京都本部会員 | ||
| 公正取引協議会 | (公社)首都圏不動産公正取引協議会加盟 | ||
| 取扱い物件情報 | 物件詳細へ | ||
※各種情報と現状に差異がある場合は、現状優先となります。問い合わせをすることで、より詳しい条件、情報を確認する事ができます。
提供:(株)DoDoNPA新橋店(SUUMO経由)
この物件が気になったら掲載期限まであと10日
ユリカロゼAZ西台に条件(家賃・エリア)が近い物件一覧
| 写真 | 家賃 管理費等 | 敷金 礼金 | 間取り 専有面積 | 築年数 | 最寄り駅 所在地 | キープ | 詳細 |
|---|---|---|---|---|---|---|---|
マンション ファーストマンション(1K/4階) | |||||||
![]() | 5.8万円 1,000円 | 5.8万円 なし | 1K 19m2 | 築39年 | 西武新宿線 上石神井駅 徒歩4分 西武新宿線 上井草駅 徒歩17分 西武新宿線 武蔵関駅 徒歩19分 東京都練馬区上石神井 | 詳細を見る | |
アパート カーサ ディ ルーチェ(1K/2階) | |||||||
![]() | 7.4万円 3,000円 | 7.4万円 7.4万円 | 1K 23.37m2 | 築13年 | 東京メトロ有楽町線 千川駅 徒歩14分 東京メトロ有楽町線 小竹向原駅 徒歩16分 東武東上線 大山駅(東京) 徒歩18分 東京都板橋区大谷口上町 | 詳細を見る | |
アパート レオネクストやまとII(1K/1階) | |||||||
![]() | 8.8万円 5,500円 | なし 8.8万円 | 1K 29.47m2 | 築14年 | 東京メトロ南北線 王子神谷駅 徒歩19分 JR京浜東北線 王子駅 徒歩22分 JR高崎線 尾久駅 徒歩27分 東京都北区豊島 | 詳細を見る | |
マンション サンクレストSAITO(1DK/3階) | |||||||
![]() | 7.7万円 3,000円 | 7.7万円 7.7万円 | 1DK 28.5m2 | 築36年 | 東武東上線 大山駅(東京) 徒歩5分 都営三田線 板橋区役所前駅 徒歩5分 JR埼京線 板橋駅 徒歩14分 東京都板橋区大山東町 | 詳細を見る | |
マンション 萬ビル(ワンルーム/4階) | |||||||
![]() | 7.9万円 1.5万円 | 7.9万円 7.9万円 | ワンルーム 22m2 | 築35年 | JR山手線 大塚駅(東京) 徒歩5分 JR山手線 巣鴨駅 徒歩13分 都営三田線 西巣鴨駅 徒歩14分 東京都豊島区北大塚 | 詳細を見る | |
マンション AXIA TOKIWADAI(ワンルーム/4階) | |||||||
![]() | 7.2万円 5,000円 | なし なし | ワンルーム 15.2m2 | 築4年 | 東武東上線 ときわ台駅(東京) 徒歩5分 東武東上線 中板橋駅 徒歩14分 東京メトロ有楽町線 小竹向原駅 徒歩27分 東京都板橋区南常盤台 | 詳細を見る | |
マンション クレヴィスタ板橋志村(1K/2階) | |||||||
![]() | 9.4万円 5,000円 | なし 9.4万円 | 1K 25.55m2 | 築8年 | 都営三田線 志村三丁目駅 徒歩6分 都営三田線 蓮根駅 徒歩10分 都営三田線 西台駅 徒歩22分 東京都板橋区坂下 | 詳細を見る | |
マンション サンクレスト中村橋(3DK/1階) | |||||||
![]() | 12.5万円 5,000円 | 12.5万円 12.5万円 | 3DK 54.62m2 | 築35年 | 西武池袋線 中村橋駅 徒歩9分 西武池袋線 富士見台駅 徒歩18分 都営大江戸線 練馬駅 徒歩20分 東京都練馬区中村 | 詳細を見る | |








