賃貸マンション
レジディア蒲田IIの賃貸物件情報(1K/2階)
| 家賃 | 管理費等 | 敷金 | 礼金 | 間取り | 専有面積 |
|---|---|---|---|---|---|
| 10.6万円 | 1万円 | なし | なし | 1K | 22.65m2 |
入居決定でお祝い金最大100,000円
- 保証金
- -
- 償却・敷引
- -
- 築年数
- 築20年
- 所在階
- 2階
- 向き
- 南
Point
まずはお問い合わせ!
不動産会社は街のプロ、あなたに合った物件がきっと見つかります。
提供:(株)KENTY不動産蒲田東口店(SUUMO経由)

詳細情報 レジディア蒲田II
物件紹介
レジディア蒲田IIは東急池上線蒲田駅から徒歩4分にあり、駅近で通勤通学に便利なマンションです。
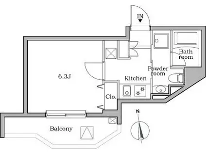
このお部屋は2階以上に位置しているので、通行人や周囲の住人からの視線が気になりにくく、防犯面でも安心。建物のエントランスはオートロックがついており、インターホンにはTVモニタもついているため、相手の顔を確認してから来客対応することができます。
人気の南向きのお部屋。また、フローリングなのでお掃除もラクラク。キッチンはシステムキッチン仕様になっていますので、お料理好きの方にもぴったり。バス・トイレは別なので、のんびりお風呂タイムも楽しめるでしょう。また、雨の日でも浴室乾燥機を使えば、お洗濯も問題ありません。
通信設備面では、インターネット接続が可能です。また、BSアンテナ・CSアンテナがありCATVにも対応しているので、おうち時間も充実するでしょう(別途工事、契約料が必要な場合あり)。
建物にはエレベーターがついているので、重い荷物があっても安心。共用部には宅配ボックスが設定されているので、不在の時にも荷物を受け取ることができます。また、ペット飼育の相談ができますので、あなたの大切な家族の一員も快適に暮らせるか、ぜひ確認してみてください。
このお部屋は2階以上に位置しているので、通行人や周囲の住人からの視線が気になりにくく、防犯面でも安心。建物のエントランスはオートロックがついており、インターホンにはTVモニタもついているため、相手の顔を確認してから来客対応することができます。
人気の南向きのお部屋。また、フローリングなのでお掃除もラクラク。キッチンはシステムキッチン仕様になっていますので、お料理好きの方にもぴったり。バス・トイレは別なので、のんびりお風呂タイムも楽しめるでしょう。また、雨の日でも浴室乾燥機を使えば、お洗濯も問題ありません。
通信設備面では、インターネット接続が可能です。また、BSアンテナ・CSアンテナがありCATVにも対応しているので、おうち時間も充実するでしょう(別途工事、契約料が必要な場合あり)。
建物にはエレベーターがついているので、重い荷物があっても安心。共用部には宅配ボックスが設定されているので、不在の時にも荷物を受け取ることができます。また、ペット飼育の相談ができますので、あなたの大切な家族の一員も快適に暮らせるか、ぜひ確認してみてください。
お金・契約の情報
※「-」と表示されているものは、実際は料金が発生するものもございます。詳細はお問い合わせください。
| 家賃 | 10.6万円 | 管理費・共益費 | 1万円 |
|---|---|---|---|
| 敷金 | なし | 礼金 | なし |
| 入居決定でお祝い金最大100,000円 | |||
| 保証金 | - | 償却・敷引 | - |
| 住宅保険料 | - | 更新料 | - |
| 保証会社利用 | 必須 | 保証会社名 | - |
| 保証会社費用 | - | 保証会社備考 | 保証会社利用必 初回契約時:40%、更新時:10 000円、月額:1 000円 |
| 契約形態 | - | 契約期間 | - |
| 入居・引渡期間 | 即時 | 現況 | - |
| 入居可能条件 | ペット相談 | ||
| 契約備考 | ※敷金0:個人契約限定※1年未満解約時、賃料1ヶ月分の違約金有り※保証会社利用必須※大手法人契約の場合は敷金2ヶ月※セカンドハウス利用不可※2025年10月室内リノベーション施工予定※主な施工内容【キッチン・洗面台・浴室・フローリング】 合計2.2万円(内訳:鍵交換代2.2万円) 更新料 新賃料1.00ヶ月分 インターネット使用料 月額1650円 1K ペット相談 普通借家2年 損保【2.15万円2年】 バストイレ別、エアコン、ガスコンロ対応、クロゼット、フローリング、TVインターホン、浴室乾燥機、オートロック、室内洗濯置、シューズボックス、南向き、温水洗浄便座、脱衣所、エレベーター、洗面化粧台、宅配ボックス、CATV、即入居可、礼金不要、敷金不要、防犯カメラ、ペット相談、2沿線利用可、CS、ダブルロックキー、保証金不要、2駅利用可、3駅以上利用可、3沿線以上利用可、駅徒歩5分以内、駅徒歩10分以内、都市ガス、洗面所にドア、BS、リノベーション、敷金・礼金不要、初期費用カード決済可 敷金積み増し【ペット飼育の場合敷金1ヶ月(総額)】 | ||
部屋の情報
| 間取り | 1K | 専有面積 | 22.65m2 |
|---|---|---|---|
| 所在階 / 向き | 2階 / 南 | バルコニー面積 | - |
| 水道 / ガス | - | ||
| 設備 | バス・トイレ別、2階以上、オートロック、テレビドアホン、宅配ボックス、浴室乾燥機、エアコン、エレベーター、温水洗浄便座、南向き、フローリング、コンロ:ガス、CATV、CSアンテナ、BSアンテナ、洗濯機:室内 | ||
| 当社物件ID | 101791637 | ||
建物の情報
| 建物名 | レジディア蒲田II | ||
|---|---|---|---|
| 所在地 | 東京都大田区蒲田 | ||
| 交通 | 東急池上線 蒲田駅 徒歩4分 JR京浜東北線 蒲田駅 徒歩5分 京急本線 京急蒲田駅 徒歩11分 | ||
| 階数 | 15階建 | 総戸数 | 78戸 |
| 築年月 | 2006年09月 / 築20年 | エレベーター | あり |
| 駐車場 | なし | バイク置き場 | - |
| 駐輪場 | - | 管理人/管理会社 | - |
| 周辺環境 | その他 マルエツ かまた店(スーパー)まで27m その他 まつや蒲田店(飲食店)まで474m その他 ファミリーマート 大田区役所前店(コンビニ)まで63m その他 ファミリーマート 環八蒲田本町店(コンビニ)まで144m その他 Olympic(オリンピック) 蒲田店(ホームセンター)まで615m その他 らあめん花月嵐 西蒲田店(飲食店)まで413m | ||
| 建物種別 | マンション | 建物構造 | RC(鉄筋コンクリート) |
この部屋の取扱い不動産会社
| 会社名 | (株)リビングライフ賃貸センターJR蒲田店(SUUMO経由) | ||
|---|---|---|---|
| 所在地 | 東京都大田区西蒲田7-43-6 リラーシュコート西蒲田 | 交通 | - |
| 営業時間 | 10:00~18:00 | 定休日 | 水曜日 |
| 免許番号 | 国土交通大臣7124 | 取引態様 | 仲介 |
| 不動産会社管理番号 | 100475787690 | 当社管理番号 | 89 |
| 所属団体 | (公社)全日本不動産協会東京都本部会員 | ||
| 公正取引協議会 | (公社)首都圏不動産公正取引協議会加盟 | ||
| 取扱い物件情報 | 物件詳細へ | ||
※各種情報と現状に差異がある場合は、現状優先となります。問い合わせをすることで、より詳しい条件、情報を確認する事ができます。
提供:(株)リビングライフ賃貸センターJR蒲田店(SUUMO経由)
この物件が気になったら掲載期限まであと11日
レジディア蒲田IIに条件(家賃・エリア)が近い物件一覧
| 写真 | 家賃 管理費等 | 敷金 礼金 | 間取り 専有面積 | 築年数 | 最寄り駅 所在地 | キープ | 詳細 |
|---|---|---|---|---|---|---|---|
マンション ガラ・ステージ森下(1K/2階) | |||||||
![]() | 8.2万円 9,000円 | 8.2万円 8.2万円 | 1K 24.54m2 | 築20年 | 東京都新宿線 菊川駅(東京) 徒歩4分 東京都大江戸線 森下駅(東京) 徒歩6分 東京地下鉄半蔵門線 清澄白河駅 徒歩10分 東京都江東区森下3丁目 | 詳細を見る | |
マンション フルールメゾン(2LDK/4階) | |||||||
![]() | 16.1万円 7,200円 | 16.1万円 32.2万円 | 2LDK 57.68m2 | 築24年 | 京浜急行電鉄本線 六郷土手駅 徒歩1分 京浜急行電鉄本線 雑色駅 徒歩17分 東京都大田区仲六郷4丁目 | 詳細を見る | |
マンション フラーレン(2K/2階) | |||||||
![]() | 10.1万円 4,000円 | 10.1万円 なし | 2K 36.52m2 | 築28年 | 東京モノレール羽田 昭和島駅 徒歩13分 京浜急行電鉄本線 梅屋敷駅(東京) 徒歩19分 東京都大田区大森南3丁目 | 詳細を見る | |
マンション LA MAISON EPICA(1DK/2階) | |||||||
![]() | 10.9万円 5,000円 | 10.9万円 なし | 1DK 33.06m2 | 築18年 | 京浜東北・根岸線 蒲田駅 徒歩9分 京浜急行電鉄本線 京急蒲田駅 徒歩12分 東京都大田区蒲田1丁目 | 詳細を見る | |
マンション グランディール(1K/5階) | |||||||
![]() | 8.7万円 5,000円 | 8.7万円 なし | 1K 24.42m2 | 築22年 | 京浜急行電鉄本線 大森町駅 徒歩5分 京浜急行電鉄本線 梅屋敷駅(東京) 徒歩9分 東京都大田区大森中1丁目 | 詳細を見る | |
マンション スカイコート池上壱番館(1K/4階) | |||||||
![]() | 8.5万円 1万円 | 8.5万円 なし | 1K 21.07m2 | 築16年 | 東急池上線 池上駅 徒歩9分 東京都大田区池上3丁目 | 詳細を見る | |
マンション ピソ・リベルタ(1K/3階) | |||||||
![]() | 8万円 3,000円 | 8万円 4万円 | 1K 25.18m2 | 築21年 | 京浜急行電鉄本線 梅屋敷駅(東京) 徒歩6分 京浜急行電鉄本線 大森町駅 徒歩12分 東京都大田区大森西6丁目 | 詳細を見る | |
アパート SEED SAVE PETIRASU Ⅲ(1LDK/1階) | |||||||
![]() | 10.7万円 1万円 | 21.4万円 10.7万円 | 1LDK 30.55m2 | 新築 | 東京モノレール羽田 昭和島駅 徒歩12分 京浜急行電鉄本線 大森町駅 徒歩18分 東京都大田区大森東5丁目 | 詳細を見る | |








