賃貸マンション
ガーラ・レジデンス川崎南幸町の賃貸物件情報(3LDK/9階)
| 家賃 | 管理費等 | 敷金 | 礼金 | 間取り | 専有面積 |
|---|---|---|---|---|---|
| 23.5万円 | 1.5万円 | 23.5万円 | 47万円 | 3LDK | 65.8m2 |
入居決定でお祝い金最大100,000円
- 保証金
- -
- 償却・敷引
- -
- 築年数
- 築12年
- 所在階
- 9階
- 向き
- 南
Point
地域に根付いて45年以上、賃貸物件を多数取り揃えております!お客様に寄り添い理想の賃貸物件が見つかるよう、全力でサポートさせて頂きます♪他社物件もご紹介可能です!オンライン内見・相談も可能です★
提供:リロの不動産(株)日商ベックス蒲田店(SUUMO経由)

詳細情報 ガーラ・レジデンス川崎南幸町
物件紹介
ガーラ・レジデンス川崎南幸町はJR南武線尻手駅から徒歩6分にあり、駅近で通勤通学に便利なマンションです。
このお部屋は2階以上に位置しているので、通行人や周囲の住人からの視線が気になりにくく、防犯面でも安心。建物のエントランスはオートロックがついており、インターホンにはTVモニタもついているため、相手の顔を確認してから来客対応することができます。
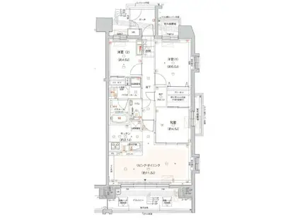
人気の南向き・フローリングのお部屋。角部屋でもあるため、周囲の居住者の生活音も気になりにくい場所です。キッチンはシステムキッチン仕様になっていますので、お料理好きの方にもぴったり。バス・トイレは別なので、のんびりお風呂タイムも楽しめるでしょう。また、雨の日でも浴室乾燥機を使えば、お洗濯も問題ありません。
通信設備面では、インターネットが無料で使えるので、月々の出費を抑えられるのも魅力です。また、BSアンテナ・CSアンテナもありますので、おうち時間も充実するでしょう(別途工事、BS・CSの契約料等が必要な場合あり)。
床暖房があり、冬も足元から暖かく快適に過ごすことができます。建物にはエレベーターがついているので、重い荷物があっても安心。共用部には宅配ボックスが設定されているので、不在の時にも荷物を受け取ることができます。
このお部屋は2階以上に位置しているので、通行人や周囲の住人からの視線が気になりにくく、防犯面でも安心。建物のエントランスはオートロックがついており、インターホンにはTVモニタもついているため、相手の顔を確認してから来客対応することができます。
人気の南向き・フローリングのお部屋。角部屋でもあるため、周囲の居住者の生活音も気になりにくい場所です。キッチンはシステムキッチン仕様になっていますので、お料理好きの方にもぴったり。バス・トイレは別なので、のんびりお風呂タイムも楽しめるでしょう。また、雨の日でも浴室乾燥機を使えば、お洗濯も問題ありません。
通信設備面では、インターネットが無料で使えるので、月々の出費を抑えられるのも魅力です。また、BSアンテナ・CSアンテナもありますので、おうち時間も充実するでしょう(別途工事、BS・CSの契約料等が必要な場合あり)。
床暖房があり、冬も足元から暖かく快適に過ごすことができます。建物にはエレベーターがついているので、重い荷物があっても安心。共用部には宅配ボックスが設定されているので、不在の時にも荷物を受け取ることができます。
お金・契約の情報
※「-」と表示されているものは、実際は料金が発生するものもございます。詳細はお問い合わせください。
| 家賃 | 23.5万円 | 管理費・共益費 | 1.5万円 |
|---|---|---|---|
| 敷金 | 23.5万円 | 礼金 | 47万円 |
| 入居決定でお祝い金最大100,000円 | |||
| 保証金 | - | 償却・敷引 | - |
| 住宅保険料 | - | 更新料 | - |
| 保証会社利用 | 必須 | 保証会社名 | - |
| 保証会社費用 | - | 保証会社備考 | 保証会社利用必 初回契約時:50%、月額:1.2% |
| 契約形態 | - | 契約期間 | - |
| 入居・引渡期間 | - | 現況 | - |
| 契約備考 | JR南武線川崎駅徒歩15分 合計2.31万円(内訳:鍵交換代 23100円税込) (退去時)エアコンクリーニング(費用/1台につき 13200円/退去時 ハウスクリーニング 51700円/退去時 更新料 1ヶ月 3LDK 二人入居可/子供可 普通借家2年 損保【2.6万円2年】 バストイレ別、バルコニー、エアコン、ガスコンロ対応、フローリング、シャワー付洗面台、TVインターホン、浴室乾燥機、オートロック、室内洗濯置、陽当り良好、シューズボックス、システムキッチン、南向き、追焚機能浴室、角住戸、温水洗浄便座、脱衣所、エレベーター、洗面所独立、洗面化粧台、駐輪場、宅配ボックス、光ファイバー、外壁タイル張り、2面採光、BS・CS、3口以上コンロ、対面式キッチン、防犯カメラ、照明付、オートバス、グリル付、保証人不要、二人入居相談、全居室フローリング、3面採光、エアコン2台、ディンプルキー、CS、ネット使用料不要、床暖房、食器洗乾燥機、眺望良好、24時間換気システム、フロントサービス、人感照明センサー、3駅以上利用可、3沿線以上利用可、駅徒歩10分以内、24時間ゴミ出し可、敷地内ごみ置き場、セキュリティ会社加入済、LDK12畳以上、和室、都市ガス、BS、高速ネット対応、IT重説対応物件、通風良好 入居日:'26年1月中旬 | ||
部屋の情報
| 間取り | 3LDK | 専有面積 | 65.8m2 |
|---|---|---|---|
| 所在階 / 向き | 9階 / 南 | バルコニー面積 | - |
| 水道 / ガス | - | ||
| 設備 | バス・トイレ別、2階以上、オートロック、テレビドアホン、宅配ボックス、浴室乾燥機、追い焚き、インターネット対応、システムキッチン、エアコン、エレベーター、温水洗浄便座、南向き、角部屋、バルコニー、フローリング、洗髪洗面化粧台、床暖房、2口コンロ、コンロ:ガス、CSアンテナ、BSアンテナ、インターネット使用料無料、洗濯機:室内 | ||
| 当社物件ID | 160082427 | ||
建物の情報
| 建物名 | ガーラ・レジデンス川崎南幸町 | ||
|---|---|---|---|
| 所在地 | 神奈川県川崎市幸区南幸町 | ||
| 交通 | JR南武線 尻手駅 徒歩6分 JR東海道本線 川崎駅 徒歩13分 京急本線 京急川崎駅 徒歩18分 | ||
| 階数 | 13階建 | 総戸数 | - |
| 築年月 | 2014年03月 / 築12年 | エレベーター | あり |
| 駐車場 | 空有 20000円 | バイク置き場 | - |
| 駐輪場 | あり | 管理人/管理会社 | - |
| 周辺環境 | その他 ミューザ川崎(ショッピングセンター)まで894m その他 サミットストア尻手駅前店(スーパー)まで267m その他 まいばすけっと尻手駅前店(スーパー)まで360m その他 ローソン・スリーエフ川崎南部市場前店(コンビニ)まで220m その他 マツモトキヨシ尻手駅前店(ドラッグストア)まで267m | ||
| 建物種別 | マンション | 建物構造 | RC(鉄筋コンクリート) |
この部屋の取扱い不動産会社
| 会社名 | リロの不動産(株)日商ベックス蒲田店(SUUMO経由) | ||
|---|---|---|---|
| 所在地 | 東京都大田区西蒲田7-1-6 | 交通 | - |
| 営業時間 | 9:00~18:00 | 定休日 | 水曜日 |
| 免許番号 | 国土交通大臣3273 | 取引態様 | 仲介 |
| 不動産会社管理番号 | 100478917071 | 当社管理番号 | 89 |
| 取扱い物件情報 | 物件詳細へ | ||
※各種情報と現状に差異がある場合は、現状優先となります。問い合わせをすることで、より詳しい条件、情報を確認する事ができます。
提供:リロの不動産(株)日商ベックス蒲田店(SUUMO経由)
この物件が気になったら掲載期限まであと11日
ガーラ・レジデンス川崎南幸町に条件(家賃・エリア)が近い物件一覧
| 写真 | 家賃 管理費等 | 敷金 礼金 | 間取り 専有面積 | 築年数 | 最寄り駅 所在地 | キープ | 詳細 |
|---|---|---|---|---|---|---|---|
マンション RETE TAMAPLAZA(1DK/8階) | |||||||
![]() | 14.8万円 1万円 | 14.8万円 なし | 1DK 39.96m2 | 築23年 | 東急田園都市線 たまプラーザ駅 徒歩2分 神奈川県横浜市青葉区美しが丘1丁目 | 詳細を見る | |
マンション アウリスタ(2LDK/3階) | |||||||
![]() | 29万円 9,000円 | なし 58万円 | 2LDK 77.01m2 | 新築 | 東急田園都市線 たまプラーザ駅 徒歩11分 ブルーライン あざみ野駅 徒歩12分 東急田園都市線 あざみ野駅 徒歩12分 神奈川県横浜市青葉区美しが丘 | 詳細を見る | |
マンション CASA HIYOSHI(1LDK/5階) | |||||||
![]() | 19.5万円 5,000円 | 19.5万円 19.5万円 | 1LDK 61.5m2 | 築34年 | 東急東横線 日吉駅(神奈川) 徒歩3分 東急東横線 元住吉駅 徒歩22分 東急東横線 綱島駅 徒歩31分 神奈川県横浜市港北区日吉本町 | 詳細を見る | |
アパート アベニール大倉山(2LDK/1階) | |||||||
![]() | 16.9万円 6,000円 | なし 33.8万円 | 2LDK 61.16m2 | 築2年 | 東急東横線 大倉山駅(神奈川) 徒歩20分 神奈川県横浜市港北区大倉山6丁目 | 詳細を見る | |
マンション レジデンス1870(ワンルーム/5階) | |||||||
![]() | 14.9万円 1.2万円 | なし なし | ワンルーム 47.36m2 | 築6年 | JR京浜東北線 関内駅 徒歩5分 ブルーライン 伊勢佐木長者町駅 徒歩7分 JR京浜東北線 桜木町駅 徒歩8分 神奈川県横浜市中区福富町東通 | 詳細を見る | |
アパート プロイド中央H棟(3LDK/1階) | |||||||
![]() | 23.4万円 6,000円 | なし 46.8万円 | 3LDK 88.95m2 | 築21年 | ブルーライン センター南駅 徒歩8分 グリーンライン センター北駅 徒歩12分 ブルーライン 中川駅(神奈川) 徒歩29分 神奈川県横浜市都筑区茅ケ崎中央 | 詳細を見る | |
マンション イール馬車道(1LDK/5階) | |||||||
![]() | 14.7万円 9,000円 | なし 44.1万円 | 1LDK 36.54m2 | 築8年 | みなとみらい線 馬車道駅 徒歩3分 JR京浜東北線 関内駅 徒歩5分 JR京浜東北線 桜木町駅 徒歩8分 神奈川県横浜市中区太田町 | 詳細を見る | |
マンション エイチエフ新横浜レジデンス(1LDK/3階) | |||||||
![]() | 15.5万円 1万円 | 15.5万円 15.5万円 | 1LDK 50.73m2 | 築20年 | JR横浜線 新横浜駅 徒歩10分 JR横浜線 小机駅 徒歩20分 ブルーライン 北新横浜駅 徒歩20分 神奈川県横浜市港北区新横浜 | 詳細を見る | |









