賃貸マンション
ヴィラルーチェの賃貸物件情報(1DK/5階)
| 家賃 | 管理費等 | 敷金 | 礼金 | 間取り | 専有面積 |
|---|---|---|---|---|---|
| 9.5万円 | 5,000円 | 9.5万円 | 9.5万円 | 1DK | 29.95m2 |
入居決定でお祝い金最大100,000円
Point
マンションの住人や関係者だけが入れるオートロック付き物件です。化粧品やスタイリング剤などをまとめて出し入れして、サッと身支度を整えられる独立洗面台があります。こちらの物件は閑静な住宅地にあります。
提供:LIXIL不動産ショップ 昭産建設(株)(SUUMO経由)

詳細情報 ヴィラルーチェ
物件紹介
ヴィラルーチェは東京メトロ東西線葛西駅から徒歩6分にあり、駅近で通勤通学に便利なマンションです。
このお部屋は2階以上に位置しているので通行人や周囲の住人からの視線が気になりにくく、建物のエントランスはオートロックがついているので防犯性が高くなっています。
おしゃれなデザイナーズ物件!人気の南向きのお部屋。角部屋でもあるため、周囲の居住者の生活音も気になりにくい場所です。キッチンはシステムキッチン仕様になっていますので、お料理好きの方にもぴったり。また、バス・トイレは別で、のんびりお風呂タイムも楽しめるでしょう。
通信設備面ではCATVに対応しているので、おうち時間も充実するでしょう(別途工事、契約料が必要な場合あり)。
建物にはエレベーターがついているので、重い荷物があっても安心。共用部には宅配ボックスが設定されているので、不在の時にも荷物を受け取ることができます。
このお部屋は2階以上に位置しているので通行人や周囲の住人からの視線が気になりにくく、建物のエントランスはオートロックがついているので防犯性が高くなっています。
おしゃれなデザイナーズ物件!人気の南向きのお部屋。角部屋でもあるため、周囲の居住者の生活音も気になりにくい場所です。キッチンはシステムキッチン仕様になっていますので、お料理好きの方にもぴったり。また、バス・トイレは別で、のんびりお風呂タイムも楽しめるでしょう。
通信設備面ではCATVに対応しているので、おうち時間も充実するでしょう(別途工事、契約料が必要な場合あり)。
建物にはエレベーターがついているので、重い荷物があっても安心。共用部には宅配ボックスが設定されているので、不在の時にも荷物を受け取ることができます。
お金・契約の情報
※「-」と表示されているものは、実際は料金が発生するものもございます。詳細はお問い合わせください。
| 家賃 | 9.5万円 | 管理費・共益費 | 5,000円 |
|---|---|---|---|
| 敷金 | 9.5万円 | 礼金 | 9.5万円 |
| 入居決定でお祝い金最大100,000円 | |||
| 保証金 | - | 償却・敷引 | - |
| 住宅保険料 | - | 更新料 | - |
| 保証会社利用 | 必須 | 保証会社名 | - |
| 保証会社費用 | - | 保証会社備考 | 保証会社利用必 初回:60%、月次:440円、年間:10 000円 |
| 契約形態 | - | 契約期間 | - |
| 入居・引渡期間 | - | 現況 | - |
| 契約備考 | 合計4.4万円(内訳:24時間サポート1.65万円鍵交換代2.75万円) 更新料 新賃料1.50ヶ月分 1DK 二人入居可 普通借家2年 損保【要】 バストイレ別、バルコニー、エアコン、ガスコンロ対応、オートロック、室内洗濯置、陽当り良好、システムキッチン、角住戸、温水洗浄便座、エレベーター、洗面所独立、駐輪場、宅配ボックス、CATV、閑静な住宅地、デザイナーズ、ディンプルキー、眺望良好、都市ガス 入居日:'26年4月上旬 | ||
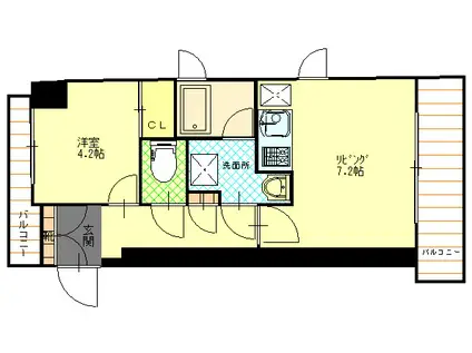
部屋の情報
| 間取り | 1DK | 専有面積 | 29.95m2 |
|---|---|---|---|
| 所在階 / 向き | 5階 / 南西 | バルコニー面積 | - |
| 水道 / ガス | - | ||
| 設備 | バス・トイレ別、2階以上、オートロック、宅配ボックス、システムキッチン、エアコン、エレベーター、温水洗浄便座、南向き、角部屋、バルコニー、洗髪洗面化粧台、コンロ:ガス、デザイナーズ、CATV、洗濯機:室内 | ||
| 当社物件ID | 6474908 | ||
建物の情報
| 建物名 | ヴィラルーチェ | ||
|---|---|---|---|
| 所在地 | 東京都江戸川区中葛西 | ||
| 交通 | 東京メトロ東西線 葛西駅 徒歩6分 | ||
| 階数 | 11階建 | 総戸数 | 36戸 |
| 築年月 | 2012年08月 / 築14年 | エレベーター | あり |
| 駐車場 | なし | バイク置き場 | - |
| 駐輪場 | あり | 管理人/管理会社 | - |
| 周辺環境 | その他 ローソン(コンビニ)まで209m その他 ローソン(コンビニ)まで155m その他 まいばすけっと(コンビニ)まで135m その他 河内屋(その他)まで278m その他 ワイズマート(スーパー)まで528m | ||
| 建物種別 | マンション | 建物構造 | RC(鉄筋コンクリート) |
この部屋の取扱い不動産会社
| 会社名 | LIXIL不動産ショップ 昭産建設(株)(SUUMO経由) | ||
|---|---|---|---|
| 所在地 | 東京都江戸川区中葛西5-34-7 | 交通 | - |
| 営業時間 | 10:00~21:00 | 定休日 | 毎週水曜日 |
| 免許番号 | 東京都知事79627 | 取引態様 | 仲介 |
| 不動産会社管理番号 | 100485986208 | 当社管理番号 | 89 |
| 所属団体 | (公社)東京都宅地建物取引業協会会員 | ||
| 公正取引協議会 | (公社)首都圏不動産公正取引協議会加盟 | ||
| 取扱い物件情報 | 物件詳細へ | ||
※各種情報と現状に差異がある場合は、現状優先となります。問い合わせをすることで、より詳しい条件、情報を確認する事ができます。
提供:LIXIL不動産ショップ 昭産建設(株)(SUUMO経由)
この物件が気になったら掲載期限まであと10日
ヴィラルーチェに条件(家賃・エリア)が近い物件一覧
| 写真 | 家賃 管理費等 | 敷金 礼金 | 間取り 専有面積 | 築年数 | 最寄り駅 所在地 | キープ | 詳細 |
|---|---|---|---|---|---|---|---|
マンション PRIMAL KINSHICHOII(1DK/4階) | |||||||
![]() | 13.3万円 1万円 | なし なし | 1DK 25.44m2 | 築3年 | JR総武線快速 錦糸町駅 徒歩4分 東京メトロ半蔵門線 錦糸町駅 徒歩4分 東京メトロ半蔵門線 住吉駅(東京) 徒歩16分 東京都墨田区江東橋 | 詳細を見る | |
マンション GENOVIA本所吾妻橋III(ワンルーム/10階) | |||||||
![]() | 11.8万円 1万円 | なし なし | ワンルーム 26.04m2 | 築3年 | 東京メトロ半蔵門線 錦糸町駅 徒歩15分 JR総武線 錦糸町駅 徒歩17分 東京メトロ半蔵門線 住吉駅(東京) 徒歩28分 東京都墨田区石原 | 詳細を見る | |
マンション プライムアーバン豊洲(ワンルーム/2階) | |||||||
![]() | 14.3万円 9,000円 | 14.3万円 14.3万円 | ワンルーム 33.52m2 | 築22年 | 東京地下鉄有楽町線 豊洲駅 徒歩4分 ゆりかもめ 豊洲駅 徒歩5分 ゆりかもめ 新豊洲駅 徒歩15分 東京都江東区豊洲4丁目 | 詳細を見る | |
マンション パルウッド両国(1DK/7階) | |||||||
![]() | 11.5万円 5,000円 | なし 11.5万円 | 1DK 30.25m2 | 築24年 | JR総武線 両国駅 徒歩3分 都営浅草線 東日本橋駅 徒歩14分 都営新宿線 森下駅(東京) 徒歩15分 東京都墨田区両国 | 詳細を見る | |
マンション マレオドゥール(2K/5階) | |||||||
![]() | 7万円 2,000円 | なし なし | 2K 29.16m2 | 築41年 | 京葉線 潮見駅 徒歩8分 東京都江東区潮見1丁目 | 詳細を見る | |






