賃貸アパート
ハイツトレジャーの賃貸物件情報(2LDK/2階)
| 家賃 | 管理費等 | 敷金 | 礼金 | 間取り | 専有面積 |
|---|---|---|---|---|---|
| 4万円 | なし | 4万円 | なし | 2LDK | 42.12m2 |
入居決定でお祝い金最大100,000円
Point
お一人お一人のお客様のご条件・悩みに沿いながら、ご希望にぴったりのお部屋探しをさせていただきます。「不動産のビッグ」にて、お客様の本当の声をぜひお聞かせください。
提供:(株)生活プロデュース管理部(SUUMO経由)

詳細情報 ハイツトレジャー
物件紹介
ハイツトレジャーはJR宗谷本線新旭川駅から徒歩10分にあり、駅近で通勤通学に便利なアパートです。
このお部屋は2階以上に位置しているので、通行人や周囲の住人からの視線が気になりにくく、防犯面でも安心です。
このお部屋は2階以上に位置しているので、通行人や周囲の住人からの視線が気になりにくく、防犯面でも安心です。
お金・契約の情報
※「-」と表示されているものは、実際は料金が発生するものもございます。詳細はお問い合わせください。
| 家賃 | 4万円 | 管理費・共益費 | なし |
|---|---|---|---|
| 敷金 | 4万円 | 礼金 | なし |
| 入居決定でお祝い金最大100,000円 | |||
| 保証金 | - | 償却・敷引 | - |
| 住宅保険料 | - | 更新料 | - |
| 保証会社利用 | 必須 | 保証会社名 | - |
| 保証会社費用 | - | 保証会社備考 | 保証会社利用必 保証会社要加入:保証料月額総賃料の50%~100%(敷金無料) |
| 契約形態 | - | 契約期間 | - |
| 入居・引渡期間 | 即時 | 現況 | - |
| 契約備考 | 合計2.65万円(内訳:ハウスクリーニング 26500円税込) 暖房メンテナンス 22000円/退去時 2LDK 二人入居可/子供可/ルームシェア相談 普通借家2年 損保【2万円2年】 室内洗濯置、シューズボックス、即入居可、礼金不要、最上階、照明付、保証人不要、二人入居相談、2沿線利用可、ルームシェア相談、2駅利用可、駅徒歩10分以内、バス停徒歩3分以内、和室、プロパンガス、IT重説対応物件、LGBTフレンドリー、初期費用カード決済可 | ||
部屋の情報
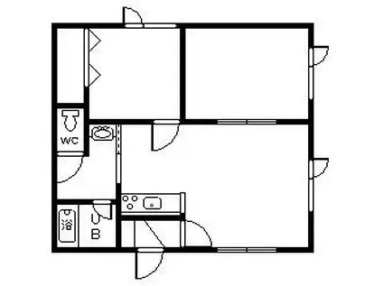
| 間取り | 2LDK | 専有面積 | 42.12m2 |
|---|---|---|---|
| 所在階 / 向き | 2階 / 北西 | バルコニー面積 | - |
| 水道 / ガス | - | ||
| 設備 | 2階以上、洗濯機:室内 | ||
| 当社物件ID | 160137603 | ||
建物の情報
| 建物名 | ハイツトレジャー | ||
|---|---|---|---|
| 所在地 | 北海道旭川市東五条 | ||
| 交通 | JR宗谷本線 新旭川駅 徒歩10分 JR函館本線 旭川駅 徒歩40分 | ||
| 階数 | 2階建 | 総戸数 | 4戸 |
| 築年月 | 1982年04月 / 築45年 | エレベーター | - |
| 駐車場 | なし | バイク置き場 | - |
| 駐輪場 | - | 管理人/管理会社 | - |
| 周辺環境 | その他 新富小学校(小学校)まで1100m その他 明星中学校(中学校)まで1200m | ||
| 建物種別 | アパート | 建物構造 | 木造 |
この部屋の取扱い不動産会社
| 会社名 | (株)生活プロデュース管理部(SUUMO経由) | ||
|---|---|---|---|
| 所在地 | 北海道旭川市神楽二条9-1-1 | 交通 | - |
| 営業時間 | 9:30~18:00 | 定休日 | 不定休 |
| 免許番号 | 北海道知事上川1074 | 取引態様 | 仲介 |
| 不動産会社管理番号 | 100480617988 | 当社管理番号 | 89 |
| 所属団体 | (公社)北海道宅地建物取引業協会会員 | ||
| 公正取引協議会 | (一社)北海道不動産公正取引協議会加盟 | ||
| 取扱い物件情報 | 物件詳細へ | ||
※各種情報と現状に差異がある場合は、現状優先となります。問い合わせをすることで、より詳しい条件、情報を確認する事ができます。
提供:(株)生活プロデュース管理部(SUUMO経由)
この物件が気になったら掲載期限まであと11日
ハイツトレジャーに条件(家賃・エリア)が近い物件一覧
| 写真 | 家賃 管理費等 | 敷金 礼金 | 間取り 専有面積 | 築年数 | 最寄り駅 所在地 | キープ | 詳細 |
|---|---|---|---|---|---|---|---|
アパート DRY壱番館(1LDK/2階) | |||||||
![]() | 5.2万円 なし | なし なし | 1LDK 42.12m2 | 築22年 | 北海道旭川市春光町 | 詳細を見る | |
アパート LINO GRACE(1LDK/2階) | |||||||
![]() | 5.6万円 2,000円 | 5.6万円 なし | 1LDK 45.47m2 | 築12年 | 石北本線 旭川四条駅 徒歩30分 北海道旭川市南七条通26丁目 | 詳細を見る | |
アパート ハンドレッドヴィレッジI棟(1LDK/2階) | |||||||
![]() | 2.6万円 なし | 2.6万円 なし | 1LDK 32.4m2 | 築30年 | 宗谷本線 新旭川駅 徒歩22分 北海道旭川市大雪通9丁目 | 詳細を見る | |
アパート アリュール(2LDK/2階) | |||||||
![]() | 5.6万円 2,300円 | なし なし | 2LDK 58.87m2 | 築15年 | 北海道旭川市東光十一条 | 詳細を見る | |
マンション ルーベデンス6条(3LDK/8階) | |||||||
![]() | 5万円 9,500円 | 5万円 なし | 3LDK 65.06m2 | 築45年 | JR富良野線 旭川駅 徒歩20分 JR函館本線 旭川駅 徒歩20分 JR宗谷本線 旭川駅 徒歩20分 北海道旭川市六条通 | 詳細を見る | |
マンション メゾン・ド・アーブルD(ワンルーム/1階) | |||||||
![]() | 2.8万円 3,000円 | なし なし | ワンルーム 24.94m2 | 築23年 | 石北本線 旭川四条駅 徒歩20分 北海道旭川市宮下通26丁目 | 詳細を見る | |
マンション 宮の杜ハイツ(ワンルーム/3階) | |||||||
![]() | 2.8万円 2,000円 | 2.8万円 なし | ワンルーム 18m2 | 築42年 | 富良野線 西御料駅 徒歩14分 北海道旭川市緑が丘東五条1丁目 | 詳細を見る | |
一戸建て 富良野線 神楽岡駅 徒歩16分 築50年(3LDK) | |||||||
![]() | 4.4万円 なし | 4.4万円 なし | 3LDK 80.19m2 | 築50年 | 富良野線 神楽岡駅 徒歩16分 北海道旭川市神楽岡八条4丁目 | 詳細を見る | |









