賃貸マンション
イーグルハウス亀戸の賃貸物件情報(1K/3階)
| 家賃 | 管理費等 | 敷金 | 礼金 | 間取り | 専有面積 |
|---|---|---|---|---|---|
| 7.4万円 | 3,000円 | 7.4万円 | 7.4万円 | 1K | 19.22m2 |
入居決定でお祝い金最大100,000円
- 保証金
- -
- 償却・敷引
- -
- 築年数
- 築29年
- 所在階
- 3階
- 向き
- 南東
Point
駅徒歩5分 南東向きバルコニー 角部屋 バストイレ別 ガスコンロ可 宅配BOX TVモニター付インターホン
提供:(株)ルームワン神田店(SUUMO経由)

詳細情報 イーグルハウス亀戸
物件紹介
イーグルハウス亀戸はJR総武線亀戸駅から徒歩5分にあり、駅近で通勤通学に便利なマンションです。
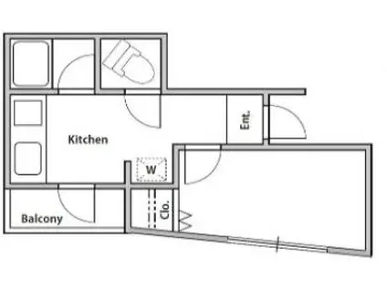
このお部屋は2階以上に位置しているので、通行人や周囲の住人からの視線が気になりにくく、防犯面でも安心。インターホンにはTVモニタもついているため、相手の顔を確認してから来客対応することができます。
人気の南向き・フローリングのお部屋。角部屋でもあるため、周囲の居住者の生活音も気になりにくい場所です。バス・トイレ別の仕様で、のんびりお風呂タイムも楽しめます。
通信設備面では、インターネット接続が可能です。また、BSアンテナ・CSアンテナもありますので、おうち時間も充実するでしょう(別途工事、契約料が必要な場合あり)。
共用部には宅配ボックスが設定されているので、不在の時にも荷物を受け取ることができます。
このお部屋は2階以上に位置しているので、通行人や周囲の住人からの視線が気になりにくく、防犯面でも安心。インターホンにはTVモニタもついているため、相手の顔を確認してから来客対応することができます。
人気の南向き・フローリングのお部屋。角部屋でもあるため、周囲の居住者の生活音も気になりにくい場所です。バス・トイレ別の仕様で、のんびりお風呂タイムも楽しめます。
通信設備面では、インターネット接続が可能です。また、BSアンテナ・CSアンテナもありますので、おうち時間も充実するでしょう(別途工事、契約料が必要な場合あり)。
共用部には宅配ボックスが設定されているので、不在の時にも荷物を受け取ることができます。
お金・契約の情報
※「-」と表示されているものは、実際は料金が発生するものもございます。詳細はお問い合わせください。
| 家賃 | 7.4万円 | 管理費・共益費 | 3,000円 |
|---|---|---|---|
| 敷金 | 7.4万円 | 礼金 | 7.4万円 |
| 入居決定でお祝い金最大100,000円 | |||
| 保証金 | - | 償却・敷引 | - |
| 住宅保険料 | - | 更新料 | - |
| 保証会社利用 | 必須 | 保証会社名 | - |
| 保証会社費用 | - | 保証会社備考 | 保証会社利用必 初回50%、1年更新10,000円 |
| 契約形態 | - | 契約期間 | - |
| 入居・引渡期間 | - | 現況 | - |
| 契約備考 | 巡回管理/リモート対応も可能です。物件詳細、周辺環境などはお気軽にお問合せ下さい。初期費用分クレジットカード払い対応可能です。2年未満の解約の場合は賃料等1ヵ月相当額の短期解約違約金あり 合計3.3万円(内訳:鍵交換費用(税込)33000円) 2年未満の解約の場合は賃料等1ヵ月相当額の短期解約違約金あり、24時間サポート(税込)1430円/月、口座振替手数料(税込)330円/月 1K 単身者可/事務所利用不可 普通借家2年 損保【1.8万円2年】 バストイレ別、バルコニー、エアコン、ガスコンロ対応、クロゼット、フローリング、TVインターホン、室内洗濯置、陽当り良好、角住戸、温水洗浄便座、宅配ボックス、閑静な住宅地、照明付、保証人不要、敷金1ヶ月、全居室フローリング、ネット専用回線、駅まで平坦、24時間換気システム、平坦地、南面リビング、全室東南向き、始発駅、3駅以上利用可、3沿線以上利用可、駅徒歩5分以内、東南向き、都市ガス、洗面所にドア、南面バルコニー、玄関収納、礼金1ヶ月、IT重説対応物件、初期費用カード決済可、通風良好 入居日:'26年4月中旬 | ||
部屋の情報
| 間取り | 1K | 専有面積 | 19.22m2 |
|---|---|---|---|
| 所在階 / 向き | 3階 / 南東 | バルコニー面積 | - |
| 水道 / ガス | - | ||
| 設備 | バス・トイレ別、2階以上、テレビドアホン、宅配ボックス、インターネット対応、エアコン、温水洗浄便座、南向き、角部屋、バルコニー、フローリング、コンロ:ガス、洗濯機:室内 | ||
| 当社物件ID | 160538850 | ||
建物の情報
| 建物名 | イーグルハウス亀戸 | ||
|---|---|---|---|
| 所在地 | 東京都江東区亀戸 | ||
| 交通 | JR総武線 亀戸駅 徒歩5分 東武亀戸線 亀戸水神駅 徒歩5分 都営新宿線 大島駅(東京) 徒歩17分 | ||
| 階数 | 4階建 | 総戸数 | 5戸 |
| 築年月 | 1997年11月 / 築29年 | エレベーター | - |
| 駐車場 | なし | バイク置き場 | - |
| 駐輪場 | - | 管理人/管理会社 | - |
| 周辺環境 | その他 アトレ亀戸(ショッピングセンター)まで546m その他 オリンピック(スーパー)まで841m その他 江東病院(病院)まで1148m その他 ピーコックストア大島店(スーパー)まで1213m その他 ダイエー東大島店(スーパー)まで1831m その他 オリナス錦糸町(ショッピングセンター)まで1588m | ||
| 建物種別 | マンション | 建物構造 | 鉄骨造 |
この部屋の取扱い不動産会社
| 会社名 | (株)綿鳥(SUUMO経由) | ||
|---|---|---|---|
| 所在地 | 東京都墨田区亀沢1-7-8 上野ビル5階 | 交通 | - |
| 営業時間 | 10時~18時30分 | 定休日 | 水曜 |
| 免許番号 | 東京都知事109136 | 取引態様 | 仲介 |
| 不動産会社管理番号 | 100492779687 | 当社管理番号 | 89 |
| 所属団体 | (公社)全日本不動産協会東京都本部会員 | ||
| 公正取引協議会 | (公社)首都圏不動産公正取引協議会加盟 | ||
| 取扱い物件情報 | 物件詳細へ | ||
※各種情報と現状に差異がある場合は、現状優先となります。問い合わせをすることで、より詳しい条件、情報を確認する事ができます。
提供:(株)綿鳥(SUUMO経由)
この物件が気になったら掲載期限まであと11日
イーグルハウス亀戸に条件(家賃・エリア)が近い物件一覧
| 写真 | 家賃 管理費等 | 敷金 礼金 | 間取り 専有面積 | 築年数 | 最寄り駅 所在地 | キープ | 詳細 |
|---|---|---|---|---|---|---|---|
アパート エフプレスト大森東(ワンルーム/1階) | |||||||
![]() | 7万円 5,000円 | 7万円 なし | ワンルーム 16.04m2 | 築4年 | 東京モノレール羽田 昭和島駅 徒歩11分 京浜急行電鉄本線 大森町駅 徒歩18分 東京都大田区大森東5丁目 | 詳細を見る | |
マンション グランディール(1K/4階) | |||||||
![]() | 9.6万円 5,000円 | 9.6万円 なし | 1K 25.02m2 | 築22年 | 京浜急行電鉄本線 大森町駅 徒歩5分 京浜急行電鉄本線 梅屋敷駅(東京) 徒歩9分 東京都大田区大森中1丁目 | 詳細を見る | |
マンション SEED JUST B-BASE COAST(1LDK/2階) | |||||||
![]() | 10.1万円 1.5万円 | 10.1万円 10.1万円 | 1LDK 27.92m2 | 築1年 | 東京モノレール 昭和島駅 徒歩11分 京急本線 梅屋敷駅(東京) 徒歩19分 東京都大田区大森南 | 詳細を見る | |
アパート TRIANGLE大森西(ワンルーム/3階) | |||||||
![]() | 7.6万円 3,000円 | 7.6万円 なし | ワンルーム 14.26m2 | 築9年 | 京浜急行電鉄本線 梅屋敷駅(東京) 徒歩11分 京浜急行電鉄本線 大森町駅 徒歩12分 東京都大田区大森西5丁目 | 詳細を見る | |
マンション エクセルⅤ(1K/4階) | |||||||
![]() | 8.4万円 2,000円 | 8.4万円 なし | 1K 23.46m2 | 築27年 | 東急池上線 千鳥町駅 徒歩3分 東急多摩川線 下丸子駅 徒歩6分 東京都大田区千鳥3丁目 | 詳細を見る | |
マンション ハイツACT(1K/3階) | |||||||
![]() | 8.1万円 3,000円 | 8.1万円 16.2万円 | 1K 20.56m2 | 築30年 | 京浜東北・根岸線 蒲田駅 徒歩11分 京浜急行電鉄本線 梅屋敷駅(東京) 徒歩13分 東京都大田区蒲田1丁目 | 詳細を見る | |






