賃貸マンション
エスポワール・ヴェールの賃貸物件情報(1K/4階)
| 家賃 | 管理費等 | 敷金 | 礼金 | 間取り | 専有面積 |
|---|---|---|---|---|---|
| 8.5万円 | なし | 8.5万円 | 8.5万円 | 1K | 27.22m2 |
入居決定でお祝い金最大100,000円
Point
まずはお問い合わせ!
不動産会社は街のプロ、あなたに合った物件がきっと見つかります。
提供:(有)スリー・ワン・プロジェクト(SUUMO経由)

詳細情報 エスポワール・ヴェール
物件紹介
エスポワール・ヴェールは京王線調布駅から徒歩4分にあり、駅近で通勤通学に便利なマンションです。
このお部屋は2階以上に位置しているので、通行人や周囲の住人からの視線が気になりにくく、防犯面でも安心です。
人気の南向きのお部屋。バス・トイレ別の仕様で、のんびりお風呂タイムも楽しめます。
通信設備面ではBSアンテナ・CSアンテナがあり、CATVにも対応しているので、おうち時間も充実するでしょう(別途工事、契約料が必要な場合あり)。
このお部屋は2階以上に位置しているので、通行人や周囲の住人からの視線が気になりにくく、防犯面でも安心です。
人気の南向きのお部屋。バス・トイレ別の仕様で、のんびりお風呂タイムも楽しめます。
通信設備面ではBSアンテナ・CSアンテナがあり、CATVにも対応しているので、おうち時間も充実するでしょう(別途工事、契約料が必要な場合あり)。
お金・契約の情報
※「-」と表示されているものは、実際は料金が発生するものもございます。詳細はお問い合わせください。
| 家賃 | 8.5万円 | 管理費・共益費 | なし |
|---|---|---|---|
| 敷金 | 8.5万円 | 礼金 | 8.5万円 |
| 入居決定でお祝い金最大100,000円 | |||
| 保証金 | - | 償却・敷引 | - |
| 住宅保険料 | - | 更新料 | - |
| 保証会社利用 | 必須 | 保証会社名 | - |
| 保証会社費用 | - | 保証会社備考 | 保証会社利用必 初回保証料:総賃料50% 継続保証料:1万円/年 |
| 契約形態 | - | 契約期間 | - |
| 入居・引渡期間 | - | 現況 | - |
| 契約備考 | 合計2.2万円(内訳:鍵交換代 22000円) 更新料 1ヶ月/更新事務手数料 11000円 1K 普通借家2年 損保【1.9万円2年】 バストイレ別、エアコン、室内洗濯置、シューズボックス、南向き、CATV、最上階、BS・CS、敷金1ヶ月、駅徒歩5分以内、都市ガス、礼金1ヶ月 入居日:'26年6月上旬 | ||
部屋の情報
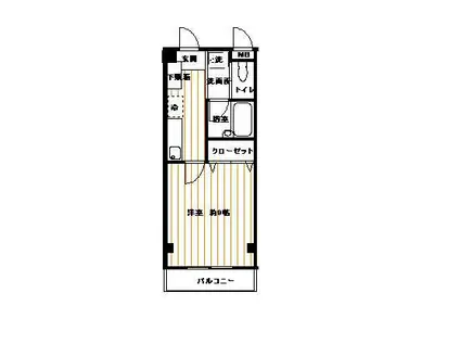
| 間取り | 1K | 専有面積 | 27.22m2 |
|---|---|---|---|
| 所在階 / 向き | 4階 / 南 | バルコニー面積 | - |
| 水道 / ガス | - | ||
| 設備 | バス・トイレ別、2階以上、エアコン、南向き、CATV、CSアンテナ、BSアンテナ、洗濯機:室内 | ||
| 当社物件ID | 2928969 | ||
建物の情報
| 建物名 | エスポワール・ヴェール | ||
|---|---|---|---|
| 所在地 | 東京都調布市布田 | ||
| 交通 | 京王線 調布駅 徒歩4分 | ||
| 階数 | 4階建 | 総戸数 | - |
| 築年月 | 2004年03月 / 築23年 | エレベーター | - |
| 駐車場 | なし | バイク置き場 | - |
| 駐輪場 | - | 管理人/管理会社 | - |
| 建物種別 | マンション | 建物構造 | 鉄骨造 |
この部屋の取扱い不動産会社
| 会社名 | (有)スリー・ワン・プロジェクト(SUUMO経由) | ||
|---|---|---|---|
| 所在地 | 東京都調布市布田1-32-5 | 交通 | - |
| 営業時間 | 10:00~18:00 | 定休日 | 水曜日 |
| 免許番号 | 東京都知事59173 | 取引態様 | 仲介 |
| 不動産会社管理番号 | 100493941106 | 当社管理番号 | 89 |
| 所属団体 | (公社)全日本不動産協会東京都本部会員 | ||
| 公正取引協議会 | (公社)首都圏不動産公正取引協議会加盟 | ||
| 取扱い物件情報 | 物件詳細へ | ||
※各種情報と現状に差異がある場合は、現状優先となります。問い合わせをすることで、より詳しい条件、情報を確認する事ができます。
提供:(有)スリー・ワン・プロジェクト(SUUMO経由)
この物件が気になったら掲載期限まであと10日
エスポワール・ヴェールに条件(家賃・エリア)が近い物件一覧
| 写真 | 家賃 管理費等 | 敷金 礼金 | 間取り 専有面積 | 築年数 | 最寄り駅 所在地 | キープ | 詳細 |
|---|---|---|---|---|---|---|---|
アパート ディエティ世田谷経堂(1K/1階) | |||||||
![]() | 9.1万円 4,000円 | 9.1万円 9.1万円 | 1K 26.91m2 | 築8年 | 小田急線 千歳船橋駅 徒歩5分 小田急線 経堂駅 徒歩15分 小田急線 祖師ケ谷大蔵駅 徒歩23分 東京都世田谷区経堂 | 詳細を見る | |
マンション GENOVIA世田谷砧GREEN VEIL(1K/3階) | |||||||
![]() | 10.2万円 1万円 | なし 10.2万円 | 1K 25.95m2 | 築9年 | 小田急線 祖師ケ谷大蔵駅 徒歩9分 小田急線 千歳船橋駅 徒歩20分 東急田園都市線 用賀駅 徒歩36分 東京都世田谷区砧 | 詳細を見る | |
マンション 菅田ビル(1K/4階) | |||||||
![]() | 5.8万円 5,000円 | 5.8万円 5.8万円 | 1K 15.6m2 | 築32年 | 東急大井町線 上野毛駅 徒歩2分 東京都世田谷区上野毛1丁目 | 詳細を見る | |
マンション IMマンション 当店限定物件(1K/3階) | |||||||
![]() | 6万円 3,000円 | 6万円 6万円 | 1K 25m2 | 築24年 | 京王相模原線 京王多摩川駅 徒歩3分 京王線 調布駅 徒歩13分 京王線 布田駅 徒歩20分 東京都調布市多摩川 | 詳細を見る | |
マンション カーサ フェリズ(1LDK/2階) | |||||||
![]() | 13.2万円 6,000円 | 13.2万円 13.2万円 | 1LDK 50.73m2 | 新築 | 京王競馬場線 府中競馬正門前駅 徒歩10分 京王線 府中駅(東京) 徒歩11分 京王競馬場線 東府中駅 徒歩11分 東京都府中市緑町 | 詳細を見る | |
アパート BIANCANE(1SLDK/2階) | |||||||
![]() | 12万円 5,000円 | 12万円 12万円 | 1SLDK 43.06m2 | 築9年 | 京王線 中河原駅 徒歩12分 JR南武線 分倍河原駅 徒歩18分 JR南武線 府中本町駅 徒歩20分 東京都府中市南町 | 詳細を見る | |
マンション アマビーレ三鷹下連雀(1K/2階) | |||||||
![]() | 11.1万円 7,000円 | 11.1万円 11.1万円 | 1K 27.3m2 | 築2年 | JR中央線 三鷹駅 徒歩11分 JR中央線 吉祥寺駅 徒歩28分 京王井の頭線 井の頭公園駅 徒歩30分 東京都三鷹市下連雀 | 詳細を見る | |
アパート ロコ経堂(1K/2階) | |||||||
![]() | 6.2万円 なし | 6.2万円 6.2万円 | 1K 19.75m2 | 築41年 | 小田急電鉄小田原線 経堂駅 徒歩8分 東急世田谷線 宮の坂駅 徒歩14分 東京都世田谷区経堂5丁目 | 詳細を見る | |









