賃貸アパート
サウスゲートコーポ B棟の賃貸物件情報(2LDK/1階)
| 家賃 | 管理費等 | 敷金 | 礼金 | 間取り | 専有面積 |
|---|---|---|---|---|---|
| 8.2万円 | なし | 12万円 | 8.2万円 | 2LDK | 58.75m2 |
入居決定でお祝い金最大100,000円
Point
知らない人が来た時でも玄関を開ける必要がなくなるTVインターホンを備えております。室内設備は浴室乾燥機・洗面所独立など充実した設備を備え付けています。水道代節約につながる追い焚き機能付きです。
提供:いい部屋ネット大東建託リーシング(株)所沢店(SUUMO経由)

詳細情報 サウスゲートコーポ B棟
物件紹介
サウスゲートコーポ B棟はJR高崎線籠原駅から徒歩6分にあり、駅近で通勤通学に便利なアパートです。
このお部屋のインターホンにはTVモニタがついているため、相手の顔を確認してから来客対応することができます。
人気の南向きのお部屋。キッチンはシステムキッチン仕様になっていますので、お料理好きの方にもぴったり。バス・トイレは別なので、のんびりお風呂タイムも楽しめるでしょう。また、雨の日でも浴室乾燥機を使えば、お洗濯も問題ありません。
通信設備面ではCATVに対応しているので、おうち時間も充実するでしょう(別途工事、契約料が必要な場合あり)。
このお部屋のインターホンにはTVモニタがついているため、相手の顔を確認してから来客対応することができます。
人気の南向きのお部屋。キッチンはシステムキッチン仕様になっていますので、お料理好きの方にもぴったり。バス・トイレは別なので、のんびりお風呂タイムも楽しめるでしょう。また、雨の日でも浴室乾燥機を使えば、お洗濯も問題ありません。
通信設備面ではCATVに対応しているので、おうち時間も充実するでしょう(別途工事、契約料が必要な場合あり)。
お金・契約の情報
※「-」と表示されているものは、実際は料金が発生するものもございます。詳細はお問い合わせください。
| 家賃 | 8.2万円 | 管理費・共益費 | なし |
|---|---|---|---|
| 敷金 | 12万円 | 礼金 | 8.2万円 |
| 入居決定でお祝い金最大100,000円 | |||
| 保証金 | - | 償却・敷引 | - |
| 住宅保険料 | - | 更新料 | - |
| 保証会社利用 | 必須 | 保証会社名 | - |
| 保証会社費用 | - | 保証会社備考 | 保証会社利用必 詳細1:保証人(不要) 保証会社(必須)エルズサポート 初回保証委託料:月額賃料総額50%、毎月保証委託料:800円、引落手数料:月額200円 |
| 契約形態 | - | 契約期間 | - |
| 入居・引渡期間 | 相談 | 現況 | - |
| 契約備考 | 駐車場2台目:4,400円保険加入情報:要名称:東京海上ミレア少額短期保険期間:2年 鍵交換費用:19,800円 更新料 新賃料1.00ヶ月分 2LDK 二人入居可/子供可/事務所利用不可/ルームシェア相談 損保【要】 バストイレ別、エアコン、ガスコンロ対応、クロゼット、シャワー付洗面台、TVインターホン、浴室乾燥機、室内洗濯置、シューズボックス、システムキッチン、南向き、追焚機能浴室、温水洗浄便座、脱衣所、洗面所独立、駐輪場、CATV、照明付、ディンプルキー、内装リフォーム済、浴室に窓、雨戸、ルームシェア相談、南面リビング、学生相談、敷地内ごみ置き場、プロパンガス、洗面所にドア、南面バルコニー、シャッター、ダウンライト、IT重説対応物件、全室照明付 | ||
部屋の情報
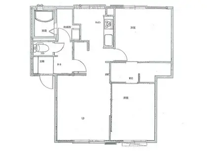
| 間取り | 2LDK | 専有面積 | 58.75m2 |
|---|---|---|---|
| 所在階 / 向き | 1階 / 南 | バルコニー面積 | - |
| 水道 / ガス | - | ||
| 設備 | バス・トイレ別、テレビドアホン、浴室乾燥機、追い焚き、システムキッチン、エアコン、温水洗浄便座、南向き、バルコニー、洗髪洗面化粧台、コンロ:ガス、CATV、洗濯機:室内 | ||
| 当社物件ID | 129801010 | ||
建物の情報
| 建物名 | サウスゲートコーポ B棟 | ||
|---|---|---|---|
| 所在地 | 埼玉県熊谷市籠原南 | ||
| 交通 | JR高崎線 籠原駅 徒歩7分 湘南新宿ライン高海 籠原駅 徒歩7分 | ||
| 階数 | 2階建 | 総戸数 | 6戸 |
| 築年月 | 1995年03月 / 築31年 | エレベーター | - |
| 駐車場 | 空有 付無料 | バイク置き場 | - |
| 駐輪場 | あり | 管理人/管理会社 | - |
| 周辺環境 | その他 ベルク 玉井店(スーパー)まで1274m その他 アリオ(ショッピングセンター)まで1923m その他 サンキ(その他)まで1973m その他 カインズホーム(その他)まで1739m その他 TSUTAYA 籠原店(レンタルビデオ)まで1644m | ||
| 建物種別 | アパート | 建物構造 | 軽量鉄骨造 |
この部屋の取扱い不動産会社
| 会社名 | いい部屋ネット大東建託リーシング(株)深谷店(SUUMO経由) | ||
|---|---|---|---|
| 所在地 | 埼玉県深谷市原郷 2143-5 | 交通 | - |
| 営業時間 | 午前10:00~12:30 午後13:30~18時 | 定休日 | 火曜日・水曜日 |
| 免許番号 | 国土交通大臣9120 | 取引態様 | 仲介 |
| 不動産会社管理番号 | 100475759072 | 当社管理番号 | 89 |
| 所属団体 | (公財)日本賃貸住宅管理協会会員 | ||
| 公正取引協議会 | (公社)首都圏不動産公正取引協議会加盟 | ||
| 取扱い物件情報 | 物件詳細へ | ||
※各種情報と現状に差異がある場合は、現状優先となります。問い合わせをすることで、より詳しい条件、情報を確認する事ができます。
提供:いい部屋ネット大東建託リーシング(株)深谷店(SUUMO経由)
この物件が気になったら掲載期限まであと10日
サウスゲートコーポ B棟に条件(家賃・エリア)が近い物件一覧
| 写真 | 家賃 管理費等 | 敷金 礼金 | 間取り 専有面積 | 築年数 | 最寄り駅 所在地 | キープ | 詳細 |
|---|---|---|---|---|---|---|---|
アパート グランドアーク(1LDK/1階) | |||||||
![]() | 6.2万円 3,500円 | 6.2万円 なし | 1LDK 43.07m2 | 築8年 | JR高崎線 籠原駅 徒歩13分 埼玉県深谷市東方 | 詳細を見る | |
アパート ソレーユメゾン A(2LDK/2階) | |||||||
![]() | 7.8万円 6,000円 | なし 7.8万円 | 2LDK 62.75m2 | 築15年 | JR高崎線 籠原駅 徒歩18分 湘南新宿ライン高海 籠原駅 徒歩18分 埼玉県深谷市東方 | 詳細を見る | |
アパート エバーグリーン栄(2LDK/2階) | |||||||
![]() | 5万円 なし | なし なし | 2LDK 49.5m2 | 築33年 | JR高崎線 深谷駅 徒歩30分 JR高崎線 籠原駅 徒歩53分 秩父鉄道 武川駅 徒歩57分 埼玉県深谷市上柴町西 | 詳細を見る | |
アパート クレバーハイム(1LDK/1階) | |||||||
![]() | 5.2万円 3,500円 | なし 5.2万円 | 1LDK 37.76m2 | 築13年 | 秩父鉄道 行田市駅 徒歩20分 埼玉県行田市 | 詳細を見る | |
アパート ヒカルサ熊谷曙町(1K/1階) | |||||||
![]() | 7.4万円 2,900円 | なし 7.4万円 | 1K 25.83m2 | 新築 | JR高崎線 熊谷駅 徒歩13分 埼玉県熊谷市曙町 | 詳細を見る | |
アパート モダンソレイユⅠ(ワンルーム/1階) | |||||||
![]() | 5.15万円 3,200円 | なし 5.15万円 | ワンルーム 32.9m2 | 築15年 | 秩父鉄道本線 石原駅(埼玉) 徒歩5分 埼玉県熊谷市石原 | 詳細を見る | |
アパート アネシス(2LDK/2階) | |||||||
![]() | 5.9万円 5,500円 | なし なし | 2LDK 56m2 | 築25年 | 埼玉県熊谷市石原 | 詳細を見る | |
アパート グラン・シャトー武蔵嵐山A(1LDK/1階) | |||||||
![]() | 7.75万円 2,800円 | なし 7.75万円 | 1LDK 43m2 | 築1年 | 東武鉄道東上線 武蔵嵐山駅 徒歩5分 埼玉県比企郡嵐山町大字菅谷 | 詳細を見る | |








