賃貸マンション
グランドゥール花梨の賃貸物件情報(1K/1階)
| 家賃 | 管理費等 | 敷金 | 礼金 | 間取り | 専有面積 |
|---|---|---|---|---|---|
| 4.95万円 | 9,000円 | 4.95万円 | 9.9万円 | 1K | 20.8m2 |
入居決定でお祝い金最大100,000円
- 保証金
- -
- 償却・敷引
- -
- 築年数
- 築28年
- 所在階
- 1階
- 向き
- 東
Point
「吉祥寺」駅・「中野」駅行バス停まで徒歩4分☆家具家電付きのデザインルームあり!
提供:UniLife新宿店(株)ジェイ・エス・ビー・ネットワーク(SUUMO経由)

詳細情報 グランドゥール花梨
物件紹介
グランドゥール花梨は京王井の頭線浜田山駅から徒歩14分にあるマンションです。
建物のエントランスはオートロックがついており、防犯性が高くなっています。
フローリングのお部屋なのでお掃除もラクラク。
建物にはエレベーターがついているので、重い荷物があっても安心。共用部には宅配ボックスが設定されているので、不在の時にも荷物を受け取ることができます。
建物のエントランスはオートロックがついており、防犯性が高くなっています。
フローリングのお部屋なのでお掃除もラクラク。
建物にはエレベーターがついているので、重い荷物があっても安心。共用部には宅配ボックスが設定されているので、不在の時にも荷物を受け取ることができます。
お金・契約の情報
※「-」と表示されているものは、実際は料金が発生するものもございます。詳細はお問い合わせください。
| 家賃 | 4.95万円 | 管理費・共益費 | 9,000円 |
|---|---|---|---|
| 敷金 | 4.95万円 | 礼金 | 9.9万円 |
| 入居決定でお祝い金最大100,000円 | |||
| 保証金 | - | 償却・敷引 | - |
| 住宅保険料 | - | 更新料 | - |
| 契約形態 | - | 契約期間 | - |
| 入居・引渡期間 | - | 現況 | - |
| 契約備考 | 巡回管理 1K 学生限定 損保【2.12万円1年】 バルコニー、エアコン、クロゼット、フローリング、オートロック、室内洗濯置、シューズボックス、エレベーター、駐輪場、宅配ボックス、防犯カメラ、ディンプルキー 入居日:'26年4月初旬 | ||
部屋の情報
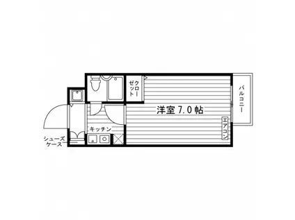
| 間取り | 1K | 専有面積 | 20.8m2 |
|---|---|---|---|
| 所在階 / 向き | 1階 / 東 | バルコニー面積 | - |
| 水道 / ガス | - | ||
| 設備 | オートロック、宅配ボックス、エアコン、エレベーター、バルコニー、フローリング、洗濯機:室内 | ||
| 当社物件ID | 146107818 | ||
建物の情報
| 建物名 | グランドゥール花梨 | ||
|---|---|---|---|
| 所在地 | 東京都杉並区成田西 | ||
| 交通 | 京王井の頭線 浜田山駅 徒歩14分 東京メトロ丸ノ内線 南阿佐ケ谷駅 徒歩19分 京王井の頭線 西永福駅 徒歩22分 | ||
| 階数 | 3階建 | 総戸数 | 26戸 |
| 築年月 | 1998年04月 / 築28年 | エレベーター | あり |
| 駐車場 | なし | バイク置き場 | - |
| 駐輪場 | あり | 管理人/管理会社 | - |
| 周辺環境 | その他 24時間スーパー(スーパー)まで720m その他 コンビニ(コンビニ)まで400m | ||
| 建物種別 | マンション | 建物構造 | RC(鉄筋コンクリート) |
この部屋の取扱い不動産会社
| 会社名 | UniLife新宿店(株)ジェイ・エス・ビー・ネットワーク(SUUMO経由) | ||
|---|---|---|---|
| 所在地 | 東京都新宿区西新宿1-6-1 新宿エルタワー16階 | 交通 | - |
| 営業時間 | 10:00~17:00 | 定休日 | 水曜日 |
| 免許番号 | 国土交通大臣5716 | 取引態様 | 仲介 |
| 不動産会社管理番号 | 100469451817 | 当社管理番号 | 89 |
| 所属団体 | (公社)全日本不動産協会東京都本部会員 | ||
| 公正取引協議会 | (公社)首都圏不動産公正取引協議会加盟 | ||
| 取扱い物件情報 | 物件詳細へ | ||
※各種情報と現状に差異がある場合は、現状優先となります。問い合わせをすることで、より詳しい条件、情報を確認する事ができます。
提供:UniLife新宿店(株)ジェイ・エス・ビー・ネットワーク(SUUMO経由)
この物件が気になったら掲載期限まであと11日
グランドゥール花梨に条件(家賃・エリア)が近い物件一覧
| 写真 | 家賃 管理費等 | 敷金 礼金 | 間取り 専有面積 | 築年数 | 最寄り駅 所在地 | キープ | 詳細 |
|---|---|---|---|---|---|---|---|
マンション ケーシャトレツー(1K/1階) | |||||||
![]() | 7万円 5,000円 | 7万円 なし | 1K 24m2 | 築23年 | 西武池袋線 石神井公園駅 徒歩12分 西武池袋線 大泉学園駅 徒歩20分 西武池袋線 練馬高野台駅 徒歩28分 東京都練馬区石神井町 | 詳細を見る | |
アパート メイプルハイツ(1K/1階) | |||||||
![]() | 5万円 3,000円 | 5万円 5万円 | 1K 19.5m2 | 築42年 | 小田急線 祖師ケ谷大蔵駅 徒歩9分 小田急線 成城学園前駅 徒歩14分 小田急線 千歳船橋駅 徒歩25分 東京都世田谷区砧 | 詳細を見る | |
マンション アトムビル(ワンルーム/2階) | |||||||
![]() | 6.5万円 3,000円 | 6.5万円 6.5万円 | ワンルーム 15m2 | 築42年 | JR中央線 吉祥寺駅 徒歩3分 京王井の頭線 井の頭公園駅 徒歩12分 JR中央線 三鷹駅 徒歩20分 東京都武蔵野市吉祥寺南町 | 詳細を見る | |
マンション ヴィラシャルマン(1K/4階) | |||||||
![]() | 6.9万円 2,000円 | 6.9万円 なし | 1K 20.48m2 | 築27年 | 京王電鉄井の頭線 高井戸駅 徒歩2分 京王電鉄井の頭線 富士見ケ丘駅 徒歩11分 東京都杉並区高井戸東2丁目 | 詳細を見る | |
アパート プチティーケー(ワンルーム/1階) | |||||||
![]() | 4万円 2,000円 | なし なし | ワンルーム 16m2 | 築34年 | 西武池袋線 大泉学園駅 徒歩14分 西武池袋線 保谷駅 徒歩19分 西武新宿線 武蔵関駅 徒歩29分 東京都練馬区東大泉 | 詳細を見る | |
マンション 三幸ビル(ワンルーム/5階) | |||||||
![]() | 4.9万円 3,000円 | 4.18万円 なし | ワンルーム 15.6m2 | 築61年 | 東京地下鉄丸ノ内線 南阿佐ケ谷駅 徒歩4分 東京都杉並区阿佐谷南1丁目 | 詳細を見る | |
マンション GLAND(1K/1階) | |||||||
![]() | 7.5万円 5,000円 | なし なし | 1K 25.2m2 | 築49年 | 都営大江戸線 新江古田駅 徒歩4分 西武池袋線 江古田駅 徒歩6分 西武池袋線 桜台駅(東京) 徒歩12分 東京都練馬区豊玉北 | 詳細を見る | |
マンション アンベリール中野鷺ノ宮(1K/4階) | |||||||
![]() | 7.9万円 1.5万円 | なし なし | 1K 25.74m2 | 築7年 | 西武新宿線 下井草駅 徒歩8分 西武新宿線 鷺ノ宮駅 徒歩10分 西武新宿線 都立家政駅 徒歩20分 東京都中野区白鷺 | 詳細を見る | |







/105x80-f1-q70-wp1)

