賃貸アパート
IKKA国武II B棟の賃貸物件情報(2LDK/1階)
| 家賃 | 管理費等 | 敷金 | 礼金 | 間取り | 専有面積 |
|---|---|---|---|---|---|
| 4.7万円 | 3,000円 | なし | なし | 2LDK | 49.68m2 |
入居決定でお祝い金最大100,000円
- 保証金
- -
- 償却・敷引
- -
- 築年数
- 新築
- 所在階
- 1階
- 向き
- 東
Point
新築長屋タイプの2LDK♪無料WiFi、3口コンロ付きの対面キッチン、雨の日も安心な暖房乾燥機付きで設備が充実。お問い合わせは一家株式会社へ!!
提供:一家(株)広川店(SUUMO経由)

詳細情報 IKKA国武II B棟
物件紹介
IKKA国武II B棟はJR鹿児島本線羽犬塚駅から徒歩67分にあるアパートです。
このお部屋のインターホンにはTVモニタがついているため、相手の顔を確認してから来客対応することができます。
人気の角部屋で周囲の居住者の生活音も気になりにくく、また、フローリングのお部屋なのでお掃除もラクラク。キッチンはシステムキッチン仕様になっていますので、お料理好きの方にもぴったり。バス・トイレは別なので、のんびりお風呂タイムも楽しめるでしょう。また、雨の日でも浴室乾燥機を使えば、お洗濯も問題ありません。
通信設備面では、インターネットが無料で使えるので、月々の出費を抑えられるのも魅力です(別途工事等が必要な場合あり)。
このお部屋のインターホンにはTVモニタがついているため、相手の顔を確認してから来客対応することができます。
人気の角部屋で周囲の居住者の生活音も気になりにくく、また、フローリングのお部屋なのでお掃除もラクラク。キッチンはシステムキッチン仕様になっていますので、お料理好きの方にもぴったり。バス・トイレは別なので、のんびりお風呂タイムも楽しめるでしょう。また、雨の日でも浴室乾燥機を使えば、お洗濯も問題ありません。
通信設備面では、インターネットが無料で使えるので、月々の出費を抑えられるのも魅力です(別途工事等が必要な場合あり)。
お金・契約の情報
※「-」と表示されているものは、実際は料金が発生するものもございます。詳細はお問い合わせください。
| 家賃 | 4.7万円 | 管理費・共益費 | 3,000円 |
|---|---|---|---|
| 敷金 | なし | 礼金 | なし |
| 入居決定でお祝い金最大100,000円 | |||
| 保証金 | - | 償却・敷引 | - |
| 住宅保険料 | - | 更新料 | - |
| 保証会社利用 | 必須 | 保証会社名 | 全保連 |
| 保証会社費用 | - | 保証会社備考 | 全保連利用必 全保連利用必 全保連利用必 初回保証料 総家賃の50% 継続保証料 13000円/1年 |
| 契約形態 | - | 契約期間 | - |
| 入居・引渡期間 | - | 現況 | - |
| 入居可能条件 | 事務所可 | ||
| 契約備考 | 巡回管理 安心入居サポート880円/月 口座振替手数料330円/月退去時クリーニング費 47000円(税別) 2LDK 普通借家2年 損保【2.05万円2年】 バストイレ別、クロゼット、フローリング、TVインターホン、浴室乾燥機、室内洗濯置、陽当り良好、シューズボックス、システムキッチン、追焚機能浴室、角住戸、温水洗浄便座、洗面所独立、洗面化粧台、最上階、3口以上コンロ、防犯カメラ、全居室収納、オートバス、保証人不要、仲介手数料不要、エアコン2台、ネット使用料不要、事務所相談、築2年以内、24時間換気システム、複層ガラス、敷地内ごみ置き場、駐車並列2台、プロパンガス、洗面所にドア、室内物干機、フローリング風フロアタイル 入居日:'26年4月上旬 | ||
部屋の情報
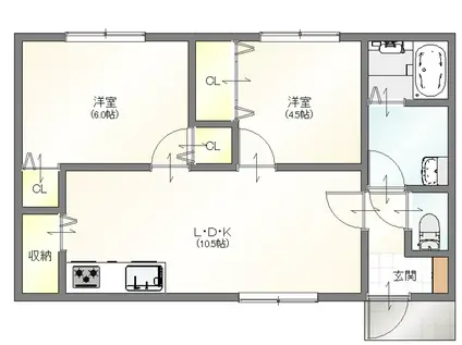
| 間取り | 2LDK | 専有面積 | 49.68m2 |
|---|---|---|---|
| 所在階 / 向き | 1階 / 東 | バルコニー面積 | - |
| 水道 / ガス | - | ||
| 設備 | バス・トイレ別、テレビドアホン、浴室乾燥機、追い焚き、インターネット対応、システムキッチン、エアコン、温水洗浄便座、角部屋、フローリング、洗髪洗面化粧台、2口コンロ、インターネット使用料無料、洗濯機:室内 | ||
| 当社物件ID | 160424700 | ||
建物の情報
| 建物名 | IKKA国武II B棟 | ||
|---|---|---|---|
| 所在地 | 福岡県八女市国武 | ||
| 交通 | JR鹿児島本線 羽犬塚駅 徒歩67分 JR鹿児島本線 筑後船小屋駅 徒歩81分 JR鹿児島本線 西牟田駅 徒歩90分 | ||
| 階数 | 1階建 | 総戸数 | - |
| 築年月 | 2026年03月 / 新築 | エレベーター | - |
| 駐車場 | 空有 6600円 | バイク置き場 | - |
| 駐輪場 | - | 管理人/管理会社 | - |
| 周辺環境 | その他 ゆめタウン八女(スーパー)まで1801m その他 セブンイレブン八女稲富店(コンビニ)まで1230m その他 ローソン八女稲富店(コンビニ)まで1125m その他 ディスカウントドラッグコスモス八女店(ドラッグストア)まで1720m その他 コメリハード&グリーン八女酒井田店(ホームセンター)まで1804m その他 ヤマダデンキテックランド八女店(ホームセンター)まで2020m | ||
| 建物種別 | アパート | 建物構造 | 木造 |
この部屋の取扱い不動産会社
| 会社名 | 一家(株)広川店(SUUMO経由) | ||
|---|---|---|---|
| 所在地 | 福岡県八女郡広川町大字新代 704-8 | 交通 | - |
| 営業時間 | 9時~18時 | 定休日 | 祝日 |
| 免許番号 | 福岡県知事19707 | 取引態様 | 貸主 |
| 不動産会社管理番号 | 100485126384 | 当社管理番号 | 89 |
| 所属団体 | (公社)福岡県宅地建物取引業協会会員 | ||
| 公正取引協議会 | (一社)九州不動産公正取引協議会加盟 | ||
| 取扱い物件情報 | 物件詳細へ | ||
※各種情報と現状に差異がある場合は、現状優先となります。問い合わせをすることで、より詳しい条件、情報を確認する事ができます。
提供:一家(株)広川店(SUUMO経由)
この物件が気になったら掲載期限まであと10日
IKKA国武II B棟に条件(家賃・エリア)が近い物件一覧
| 写真 | 家賃 管理費等 | 敷金 礼金 | 間取り 専有面積 | 築年数 | 最寄り駅 所在地 | キープ | 詳細 |
|---|---|---|---|---|---|---|---|
アパート セジュール二本松C棟(3DK/2階) | |||||||
![]() | 4.2万円 3,000円 | なし 6万円 | 3DK 62.95m2 | 築30年 | 鹿児島本線 羽犬塚駅 徒歩14分 鹿児島本線 筑後船小屋駅 徒歩42分 福岡県筑後市大字長浜 | 詳細を見る | |
アパート ハイデンス長浜(1K/2階) | |||||||
![]() | 3.2万円 2,000円 | なし なし | 1K 27m2 | 築23年 | 福岡県筑後市大字長浜 | 詳細を見る | |
アパート 鹿児島本線 西牟田駅 徒歩18分 築9年(2LDK/2階) | |||||||
![]() | 4.2万円 2,900円 | なし 4.2万円 | 2LDK 59.13m2 | 築9年 | 鹿児島本線 西牟田駅 徒歩18分 西鉄天神大牟田線 三潴駅 徒歩49分 福岡県筑後市大字蔵数 | 詳細を見る | |
一戸建て 鹿児島本線 羽犬塚駅 徒歩85分 築41年(3K) | |||||||
![]() | 4.4万円 1,000円 | なし 4.4万円 | 3K 44.62m2 | 築41年 | 鹿児島本線 羽犬塚駅 徒歩85分 鹿児島本線 筑後船小屋駅 徒歩110分 福岡県八女市納楚 | 詳細を見る | |
一戸建て 鹿児島本線 西牟田駅 徒歩99分 築34年(3DK) | |||||||
![]() | 4.5万円 2,000円 | 9万円 なし | 3DK 52.21m2 | 築34年 | 鹿児島本線 西牟田駅 徒歩99分 久大本線 南久留米駅 徒歩109分 福岡県八女郡広川町大字川上 | 詳細を見る | |
アパート メゾンド瀬高 B(1LDK/1階) | |||||||
![]() | 5.05万円 2,500円 | なし 6.3万円 | 1LDK 44.7m2 | 築1年 | JR鹿児島本線 瀬高駅 徒歩9分 JR鹿児島本線 南瀬高駅 徒歩35分 JR鹿児島本線 筑後船小屋駅 徒歩39分 福岡県みやま市瀬高町下庄 | 詳細を見る | |
アパート ラシーヌⅢ四番館(2LDK/2階) | |||||||
![]() | 4.5万円 2,200円 | なし なし | 2LDK 51.67m2 | 築22年 | 鹿児島本線 羽犬塚駅 徒歩9分 福岡県筑後市大字山ノ井 | 詳細を見る | |
アパート 鹿児島本線 渡瀬駅(福岡) 徒歩4分 築14年(2LDK/1階) | |||||||
![]() | 5.2万円 3,500円 | なし 8万円 | 2LDK 54.7m2 | 築14年 | 鹿児島本線 渡瀬駅(福岡) 徒歩4分 西鉄天神大牟田線 開駅 徒歩9分 福岡県みやま市高田町濃施 | 詳細を見る | |









