賃貸アパート
ペアパレス城山の賃貸物件情報(ワンルーム/2階)
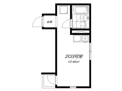
| 家賃 | 管理費等 | 敷金 | 礼金 | 間取り | 専有面積 |
|---|---|---|---|---|---|
| 5.3万円 | 1,000円 | なし | なし | ワンルーム | 12.45m2 |
入居決定でお祝い金最大100,000円
- 保証金
- -
- 償却・敷引
- -
- 築年数
- 築24年
- 所在階
- 2階
- 向き
- 西
Point
当社管理物件ですので、ご内見やご契約、入居中のサポートまで全て当店でご対応ができます!当店は物件管理もしている地元密着型の店舗で、特に中央線・丸ノ内線の駅周り等の地域情報も含め、何でもご相談下さい♪
提供:アルファ丸嶋(株)荻窪支店(SUUMO経由)

詳細情報 ペアパレス城山
物件紹介
ペアパレス城山は都営大江戸線東中野駅から徒歩10分にあり、駅近で通勤通学に便利なアパートです。
このお部屋は2階以上に位置しているので、通行人や周囲の住人からの視線が気になりにくく、防犯面でも安心です。
人気の角部屋で周囲の居住者の生活音も気になりにくく、また、フローリングのお部屋なのでお掃除もラクラク。室内にはウォークインクローゼットがありますので、たくさんの荷物も効率的に収納ができます。
通信設備面では、インターネットが無料で使えるので、月々の出費を抑えられるのも魅力です。また、CATVにも対応しているので、おうち時間も充実するでしょう(別途工事、CATVの契約料等が必要な場合あり)。
このお部屋は2階以上に位置しているので、通行人や周囲の住人からの視線が気になりにくく、防犯面でも安心です。
人気の角部屋で周囲の居住者の生活音も気になりにくく、また、フローリングのお部屋なのでお掃除もラクラク。室内にはウォークインクローゼットがありますので、たくさんの荷物も効率的に収納ができます。
通信設備面では、インターネットが無料で使えるので、月々の出費を抑えられるのも魅力です。また、CATVにも対応しているので、おうち時間も充実するでしょう(別途工事、CATVの契約料等が必要な場合あり)。
お金・契約の情報
※「-」と表示されているものは、実際は料金が発生するものもございます。詳細はお問い合わせください。
| 家賃 | 5.3万円 | 管理費・共益費 | 1,000円 |
|---|---|---|---|
| 敷金 | なし | 礼金 | なし |
| 入居決定でお祝い金最大100,000円 | |||
| 保証金 | - | 償却・敷引 | - |
| 住宅保険料 | - | 更新料 | - |
| 保証会社利用 | 必須 | 保証会社名 | リクルートフォレントインシュア |
| 保証会社費用 | - | 保証会社備考 | オリコフォレントインシュア利用必 初回保証料:総賃料50%・月額保証料:総賃料1%(家賃引落手数料不要) (詳細は担当まで) |
| 契約形態 | - | 契約期間 | - |
| 入居・引渡期間 | 即時 | 現況 | - |
| 契約備考 | ※1年未満での解約の場合、総賃料1ヶ月の違約金あり。スーモ掲載よりも早い情報が当店にはあります★非公開物件もどこよりも多く取り扱っています!不動産業界が長いスタッフが多い当店だから、お部屋探しのコツやいろんなアドバイスもできるんです★あなたのお部屋探しを応援します!お問い合わせお待ちしております。※携帯アドレスからのお問合せはパソコンから受信できるように設定をお願い致します。 合計7.2万円(内訳:クリーニング費用5万円鍵交換代2.2万円) 更新料 新賃料1.00ヶ月分 ワンルーム 単身者限定/子供不可/事務所利用不可/ルームシェア不可 普通借家2年 損保【2万円2年】 エアコン、ガスコンロ対応、フローリング、室内洗濯置、角住戸、CATV、礼金不要、閑静な住宅地、2面採光、最上階、敷金不要、ロフト、CATVインターネット、2沿線利用可、ネット使用料不要、緑豊かな住宅地、2駅利用可、3駅以上利用可、3沿線以上利用可、駅徒歩10分以内、上階無し、オープンキッチン、都市ガス、年内入居可、年度内入居可、敷金・礼金不要、IT重説対応物件 | ||
部屋の情報
| 間取り | ワンルーム | 専有面積 | 12.45m2 |
|---|---|---|---|
| 所在階 / 向き | 2階 / 西 | バルコニー面積 | - |
| 水道 / ガス | - | ||
| 設備 | 2階以上、インターネット対応、エアコン、角部屋、フローリング、ロフトあり、コンロ:ガス、CATV、インターネット使用料無料、洗濯機:室内 | ||
| 当社物件ID | 149121033 | ||
建物の情報
| 建物名 | ペアパレス城山 | ||
|---|---|---|---|
| 所在地 | 東京都中野区中野 | ||
| 交通 | 都営大江戸線 東中野駅 徒歩10分 JR中央線 中野駅(東京) 徒歩12分 東京メトロ丸ノ内線 新中野駅 徒歩15分 | ||
| 階数 | 2階建 | 総戸数 | - |
| 築年月 | 2002年01月 / 築24年 | エレベーター | - |
| 駐車場 | なし | バイク置き場 | - |
| 駐輪場 | - | 管理人/管理会社 | - |
| 周辺環境 | その他 セブンイレブン中野もみじ山通り店(コンビニ)まで378m その他 島忠中野店(ホームセンター)まで343m その他 中野区立中央図書館(図書館)まで374m その他 マルマンストア中野店(スーパー)まで511m その他 業務スーパー 東中野店(スーパー)まで837m その他 中野共立病院附属 中野共立診療所(病院)まで1114m | ||
| 建物種別 | アパート | 建物構造 | 木造 |
この部屋の取扱い不動産会社
| 会社名 | アルファ丸嶋(株)荻窪支店(SUUMO経由) | ||
|---|---|---|---|
| 所在地 | 東京都杉並区天沼3-3-1 | 交通 | - |
| 営業時間 | 10:00~19:00 | 定休日 | 水曜日 |
| 免許番号 | 東京都知事78681 | 取引態様 | 仲介 |
| 不動産会社管理番号 | 100456285711 | 当社管理番号 | 89 |
| 所属団体 | (公社)東京都宅地建物取引業協会会員 | ||
| 公正取引協議会 | (公社)首都圏不動産公正取引協議会加盟 | ||
| 取扱い物件情報 | 物件詳細へ | ||
※各種情報と現状に差異がある場合は、現状優先となります。問い合わせをすることで、より詳しい条件、情報を確認する事ができます。
提供:アルファ丸嶋(株)荻窪支店(SUUMO経由)
この物件が気になったら掲載期限まであと10日
ペアパレス城山に条件(家賃・エリア)が近い物件一覧
| 写真 | 家賃 管理費等 | 敷金 礼金 | 間取り 専有面積 | 築年数 | 最寄り駅 所在地 | キープ | 詳細 |
|---|---|---|---|---|---|---|---|
マンション Cラフォーレ・ドゥ97(1K/2階) | |||||||
![]() | 7.2万円 2,000円 | 7.2万円 なし | 1K 17.01m2 | 築29年 | JR中央線 中野駅(東京) 徒歩8分 東京メトロ丸ノ内線 東高円寺駅 徒歩10分 東京メトロ丸ノ内線 新中野駅 徒歩10分 東京都中野区中野 | 詳細を見る | |
アパート ハウスK(2DK/2階) | |||||||
![]() | 8.5万円 1,000円 | 8.5万円 8.5万円 | 2DK 38.88m2 | 築35年 | JR中央線 荻窪駅 徒歩15分 JR中央線 西荻窪駅 徒歩22分 西武新宿線 井荻駅 徒歩24分 東京都杉並区桃井 | 詳細を見る | |
マンション マリオン高円寺(ワンルーム/3階) | |||||||
![]() | 6万円 4,000円 | 6万円 なし | ワンルーム 16.5m2 | 築38年 | JR中央線 高円寺駅 徒歩5分 東京メトロ丸ノ内線 新高円寺駅 徒歩18分 西武新宿線 野方駅 徒歩20分 東京都杉並区高円寺北 | 詳細を見る | |
アパート ステップ阿佐谷(ワンルーム/2階) | |||||||
![]() | 5.5万円 2,000円 | 5.5万円 5.5万円 | ワンルーム 15.35m2 | 築34年 | JR中央線 阿佐ケ谷駅 徒歩12分 東京都杉並区阿佐谷北 | 詳細を見る | |
アパート 雑司が谷FLATS(ワンルーム/1階) | |||||||
![]() | 8.2万円 5,000円 | なし なし | ワンルーム 18.86m2 | 築3年 | 東京メトロ有楽町線 護国寺駅 徒歩6分 都電荒川線 都電雑司ケ谷駅 徒歩10分 都電荒川線 東池袋四丁目駅 徒歩12分 東京都豊島区雑司が谷 | 詳細を見る | |
マンション MICメゾン壱番館B棟(1K/1階) | |||||||
![]() | 7万円 5,000円 | 7万円 なし | 1K 20.16m2 | 築34年 | 都営大江戸線 練馬春日町駅 徒歩3分 東京メトロ有楽町線 平和台駅(東京) 徒歩17分 都営大江戸線 光が丘駅 徒歩22分 東京都練馬区春日町 | 詳細を見る | |
アパート レオネクスト南大泉(1K/2階) | |||||||
![]() | 8.4万円 5,500円 | なし 8.4万円 | 1K 20.33m2 | 築11年 | 西武池袋・豊島線 保谷駅 徒歩13分 東京都練馬区南大泉4丁目 | 詳細を見る | |








